1
了解一下人防地下室
人防地下室是人防工事的一种,包括外墙、缓冲墙、防爆门、封闭墙、防护隔墙等部分组成,主要用于人民防空临时掩体、战时防空指挥中心、通讯中心、隐蔽所等;部分永备防御工事还具有三防功能。为保障人民防空指挥、通信、掩蔽等需要,具有预定防护功能的地下室,同时还具有在紧急时刻储存粮食淡水的作用。
现实生活中我们接触的人防地下室不打仗时停车用,这叫平战结合人防工程。

平时停车

战时隐蔽、封锁
2
人防区域
要绑好人防区钢筋,我们可以把它看作一个围城的游戏,就是把自己关进笼子里,让外面的敌人进不去,这叫人防区域,人防区域一般由三道防线组成。

1、第1道防线结构顶板和底板
人防地下室顶板和底板设置拉钩是一个容易被忽略的地方,说这块在建模时容易被忽略是因为大对数情况下设计人员往往把这块设置要求标注在设计总说明里面,如果没有仔细阅读结构设计说明,那么自然而然就会漏算了。


2、第2道防线结构墙
战乱时敌人要想进来必须破坏临空墙、挡土墙、人防门框墙,防护单元内的内墙表面上和普通剪力墙没什么区别,但临空墙等内配钢筋和普通内墙内配钢筋就有天壤之别了。

普通剪力墙配筋图

临空墙配筋图

人防门框墙节点平面图

人防门框墙节点剖面图
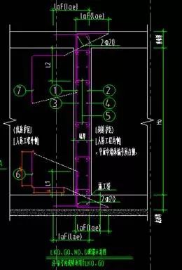
除了锚固方向不同,还有3点区别。
第一点,锚固长度不同。我们平时经常碰到锚固长度(La),抗震锚固长度(LaE),但LaF我们却不经常碰到,它叫做人防锚固长度。根据《人民防空地下室设计规范》GB50038-2005第4.11.6条要求,人防锚固长度是普通锚固长度地1.05。有了人防锚固长度必定有人防搭接长度(LlF),人防搭接要求也是比普通搭接长度的1.05倍。
第二点,临空墙竖向钢筋不能随意搭接,需要根据工程性质及设计要求而确定。

07FG01《防空地下室设计荷载及结构构造》第61页
第三点,垂直于挡土墙的内墙封顶节点做法。

07FG01《防空地下室设计荷载及结构构造》第58页
3、第三道防线-人防门
人防门和战时封堵都是人防整体封闭性的薄弱点。


钢筋混凝土单扇密闭门HM1520

连通口双向受力双扇防护密闭门GSFMG5525(6)

广联达中门框墙结构布筋设置
3
总结感悟
其实想画好一个人防地下室,需要了解、注意的地方还远不止于此,但只要我们保持一颗好学、上进的心,不畏困惑、困难的精神,终究可以学有所成、学有所长。