一、建筑剖面图的形成及作用
1、形成
假想用一个或多个垂直于外墙轴线的铅垂剖切平面将房屋剖开,移去靠近观察者的部分,对留下部分所作的正投影图称为建筑剖面图。
建筑剖面图是整幢建筑物的垂直剖面图。
剖切位置一般选择在房屋构造比较复杂和典型的部位,并且通过墙体上门、窗洞。若为楼房,应选择在楼梯间、层高不同、层数不同的部位,剖切位置符号应在底层平面图中标出。
剖面图的图名应与底层平面图上标注的剖切符号编号一致,如ⅠⅠ剖面图。
1、 作用
建筑剖面图主要用于表达房屋内部高度方向构件布置、上下分层情况、层高、门窗洞口高度,以及房屋内部的结构形式。
它与建筑平面图、立面图相配合,是建筑施工中不可缺少的重要图样之一。
二、建筑剖面图的表示方法
(1) 定位轴线
(2) 图线
(3) 比例
(4) 图例
(5) 剖切位置与数量的选择
(6) 尺寸标注
外部尺寸:总高度,层高,窗洞及窗间墙高度,各主要部位(室外地坪、出入口地面、窗台、门窗顶、檐口墙顶)的标高。
内部尺寸:各层楼地面标高,楼梯平台标高,门洞高度
(7) 楼、地面各层构造作法
(8) 详图索引符号
三、有关中图线、比例的规定
用粗实线绘制被剖到的墙体、楼板、屋面板;用中粗实线绘制房屋的可见轮廓线;用细实线绘制较小的建筑构配件的轮廓线、装修面层线等;而用特粗实线绘制室内、外地坪线。
绘图比例小于等于1:50 时,被剖切到的构配件断面上,可省略材料图例。
绘制比例应与平面图绘图比例相同。
四、建筑剖面图的基本内容
1、表明房屋被剖切到的建筑构配件,在竖向方向上的布置情况,比如各层梁板的具体位置以及与墙柱的关系,屋顶的结构形式;
2、表明房屋内未剖切到而可见的建筑构配件位置和形状。比如可见的墙体、梁柱、阳台、雨蓬、门窗、楼梯段以及各种装饰物和装饰线等;
3、在垂直方向上室内、外各部位构造尺寸,室外要注三道尺寸,水平方向标注定位轴线尺寸。标高尺寸应标注室外地坪、楼面、地面、阳台、台阶等处的建筑标高。
4、表明室内地面、楼面、顶棚、踢脚板、墙裙、屋面等内装修用料及做法,需用详图表示处加标注详图索引符号。
5、标注定位轴线及编号,书写图名和比例
五、建筑剖面图的读图注意事项
1、阅读剖面图时,首先弄清该剖视图的剖切位置,然后逐层分析剖到哪些内容,投影看到哪些内容。(图名对照底层平面图,找到剖切位置及投影方向,由剖切位置结合各层平面图,确定剖切到什么?投影后看到什么?以便弄清楚剖面图中每条线的含义)
2、弄清楚房屋从地面到屋面的内部构造形式及各层楼面、屋面与墙的关系
3、面图中的尺寸重点表明室内外高度尺寸,应校核这些细部尺寸是否与平面图、立面图中的尺寸完全一致。内外装修做法与材料是否也同平面图、立面图一致。(清楚房屋的外部和内部的主要尺寸及主要部位的标高。窗台、窗顶、屋面为结构标高;楼面、平台面等为建筑标高完成面标高)
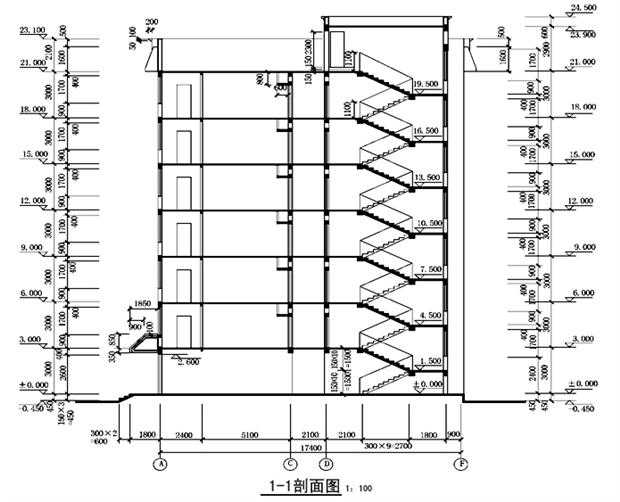
以图58为例,说明剖面图的内容及识读步骤

(图58建筑剖面图)
该图表明被剖到建筑物内部的上下分层及屋顶的形式,反映梁、板、柱、墙之间的关系;表明高度方向上的三道尺寸及标高;图中不能表达清楚的地方可用索引符号表明。