一、总平面图
1、是否标注了0.000处的绝对标高。
2、是否表示了外轮廓的轴线及总尺寸。
3、是否表示了楼层数。
4、是否表示了与主要道路及红线的关系。
5、是否布置了道路及绿化。
6、是否列出了经济技术指标:总用地面积、总建筑面积、停车位数目(办公楼组要写该项)、建筑密度、容积率、绿化率(要求做到35%-50%,没做到要调整绿地面积)。
7、建筑周围设置环形消防车道,宽大于等于4米,转弯处倒角半径12米。
8、线型:一道粗线(外)及一道细线表示建筑轮廓,若有局部层数不同用细线表示其投影线,局部突出屋顶的楼梯间不要画投影。

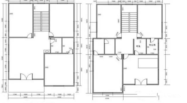
二、楼层平面图:(各层房间不需要布置家具,但卫生间要布置洁具)
1、每层轴网是否一致?上一楼层轴线网编号与下一楼层轴网编号要一致,因为柱是自上至下要对齐的,每层的柱网要一样,除非顶层有抽柱的情况。
2、楼层地面标高是否标注?有水的外走廊、门廊、浴室、卫生间,开水房、消毒室等房间地面是否比相应楼层地面降低了0.01~0.03m?同时在标高变化的门坎处是否画了投影线?3、三道尺寸线是否等间距(100~70mm),标注文是否是统一字体和字高?
4、门窗是否编号,门是否按洞口尺寸、开启方式及构造不同而采用不同编号?
5、柱外皮是否与走道处外皮齐平?装修后从走道上一般应看不到柱,以保证走道疏散宽度。
6、疏散门的开启方向是否朝人流方向开启?门洞宽超过去时1.2m是否按照每扇宽0.6~0.9m的宽度分扇开启(尤其是大门处)?
7、楼梯间是否有跑向标注?首层上半跑,中间层上半跑、下一跑半,顶层下两跑。中间平台是否有标高标注?楼梯尺寸是否在平面图和剖面图上表达全面?
8、一层平面图上是否有散水表达,室外地坪标高,出入口处是否设置台阶或坡道?斜道坡度表示,剖示符是否表达正确的剖示位置和剖示方向,请与剖面图仔细对照投影。一层平面图上是否有指北针表示房屋的朝向?
9、房间名称标注文字是否是同一字体和字高?
10、卫生间等有水房间的地面是否有地漏?地面坡向有表达吗?卫生间卫生设备是否满足使用人数的要求?分隔尺寸是否标注?
11、公共建筑最小门洞宽为 1m,使用面积大和使用人数多及有大型设备进出的门要按规范要求设计宽度,门也应分扇开启。
12、各层平面要有楼面标高,休息平台标高。雨棚标高。
13、房间名称是否表达。
14、剖到的墙线是否加粗,柱子是否填充。

三、屋顶平面图
1、有构件要定位的轴线是否标注?没有定位构件的轴线是否消除?
2、屋面标高一般标注结构层标高,是否标注?
3、雨水管是否布于排水分区的中部或房屋的阴角部位?雨水管间距是否满足实用间距的要求?(18~24m)
4、檐口平面投影与剖面图中檐口是否一致?
5、雨水管是否穿过外挑走廊?如果穿过了要改为沿墙安装水管,而不要在靠栏杆一侧布雨水管。
6、至少要有一个楼梯间上屋顶,上屋顶的梯间的梯段投影是否表达?门坎要高出屋面300挡水,门坎投影是否表达?
7、电梯机房的平面图是否表达?
8、是否有局部屋顶的平面图(上屋顶梯间屋顶,电梯机房屋顶)
9、天沟是否有标高,天沟内排水坡度1%。
10、是否表达排水坡度及方向,分水线,分格缝。

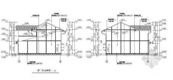
四、立面图
1、尺寸及标高是否完备?
2、雨棚是否表示?
3、是否表示了立面材质?
4、出屋面的楼梯间及电梯间是否表示?
5、外轮廓及地坪线是否加粗?

五、剖面图
1、是否剖到楼梯和反映主要建筑空间的内部变化?
2、剖面图中剖到的墙线加粗,剖到的楼板(一般设为100mm厚)、梯段、梁涂黑。
3、室外地坪,室内地面,楼层地面,屋顶标高是否标注?所剖的墙体是否有定位轴线?4、地坪线与剖到墙体的关系是否正确?先有室外地坪线,砌墙,再回填室内地面,因此墙将室内外地平线断开,如图,你的是否正确?
5、与平面图仔细对照投影,是否与平面图对应?
6、是否表示天沟?
7、剖到的房间是否写名称?
8、楼梯尺寸是否细化?
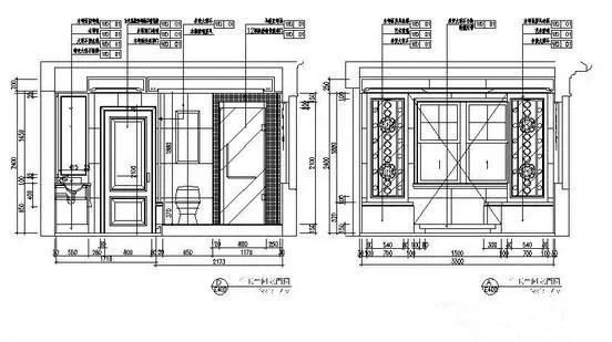
六、详图
1、是否规范表示了详图索引、详图编号,要在相应的平面、或立面、或剖面中表示索引符号,符号大小要符合制图规范的要求。
2、剖到的填充图例。(与剖面图有区别)
3、是否标注了定位轴线?
4、标高尺寸是否完备?
5、与平、立、剖是否对应,尤其是必须画的檐口详图,一定要与屋顶平面、装修表对应。

七、出图前注意事项
1、尺寸标注、字体大小是否合适及统一?
2、各图的定位轴号是否对应?
3、线型是否正确?
4、各图是否按照比例出图?
5、布图顺序是否正确:建筑方案图:总图、各层平面图、屋顶平面图、立面图、剖面图。建筑施工图:设计总说明、总图、各层平面图、屋顶平面图、立面图、剖面图。门窗表、装修表,详图可较为灵活布置,以布图合理为宜。
6、采用统一的图框。