为什么要拿楼梯间举例呢,因为楼梯间有斜段踢脚,处理起来比较麻烦,而且在我们电算里边,楼梯间我们一般不去建模,所以装修部分我们都是手算处理。
2

非成品踢脚线按实贴长度乘以高度以平方米计算,成品踢脚线按实贴长度以延长米计算。楼梯踢脚线如单独计算时按相应定额乘1.15系数。
3
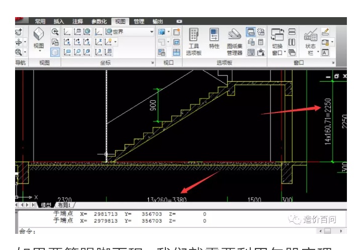
按照上图实务,我们打开图纸,找到楼梯的图纸

如果要算踢脚面积,我们就需要利用勾股定理,算出楼梯的斜长。算斜长需要两个数据,分别是楼梯高度2250,和楼梯的投影长度3380.
我们可以把这个斜长绘制出来。

然后我们将这条线使用偏移功能,平行偏移150(楼梯踢脚高度为150)偏移后,我们获得这样的效果。

面积需要计算两部分。第一矩形面积,第二多个直角三角形面积。
计算式为=sqrt(3.38*3.38 2.25*2.25)*0.15 0.26(踏步宽度)*0.16(踏步高度)*0.5*11(三角形个数)

