一、总体布局
1、建筑沿街长度与中间车道设置
a、商场沿街长度250m以内不设中间车道;
b、沿街长度超过300m设置中间车道将商场首层断开(二层以上及地下全部连通),车道两边商场建筑外墙间距控制在23米左右(7米车道+两边各3米停车下客+两边各3~5米人行道)。

▲成都五块石
2、商场进深与动线选择
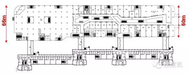
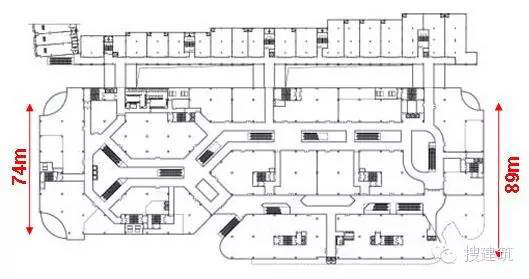
a、尽量选择单动线,商场厚度控制在55~70m(20米商铺+15米内街+20米商铺)
b、进深大的商场,可做内外动线,商场厚度控制在90~100m(20m商铺+15m内街+25~30m商铺+15m外街+20m外街店铺);外街设玻璃顶棚,两端不封闭;外街店铺可做5~8层,高楼层部分业态以餐饮、娱乐为主,营业时间与内街商铺分开;
c、总图布局尽量避免出现商场进深在70~90m的情况;

▲北京常营单动线

▲杭州下沙内外动线

▲成都五块石单动线内外动线
3、与塔楼之间的关系原则
原则一:购物中心顶部尽量不设置塔楼;
原则二:如需要设置塔楼,首选设置在跟购物中心脱开的外街商业上,次选在购物中心外街边界处,且尽量设置非主干道上;
原则三:上述2个原则不适用的情况下,塔楼宜设置在主力百货的上部
原则四:塔楼性质,宜为商业(如:SOHO,写字楼,或酒店等)

▲杭州下沙商业及后街均无塔楼

▲北京常营塔楼位于后街

▲重庆后工塔楼位于次干道

▲成都五块石塔楼为商业性质
4、建筑退界
a、商场外轮廓应尽量靠近道路,原则上,紧贴建筑控制线设置;
b、商场主入口留出室外广场的进深,主入口外轮廓至人行道边线的距离,控制在20~25m;
二、外部交通动线
1、商业环路
a、建筑应沿主要城市道路布局;
b、商场和住宅在同一地块的,应设置外街将地块分开,并在外街一侧布置商铺/底商与商场形成室外商业街(商业街的宽度为26m左右:3m人行道+5.5m停车+9m车道+5.5m停车+3m人行道),利用外部道路和内街形成商场商业环路;

▲北京常营商业环路

▲成都五块石后街尺度
2、商场人行入口
a、商场主入口布置在街角位置,须做到主入口视觉上能够洞穿中庭;主入口宽度控制在6~8m,挑空2~3层;
b、沿商场外墙合理位置设置次入口(宽度4~6m),两入口间距不超过100m;
c、在北方主出入口须设置斗门:
d、次出入口须设置自动感应门;

▲杭州下沙主次入口设置
3、车库出入口
a、依据主要车流来源设置地下车库出入口;以便利车流进出为原则。车流与人流动线设计尽量避免交叉;如平行设计,应设置路沿石进行区隔;
b、有条件的,宜将车库出入口设置在主街,并在车库出入口之前设置出租车停靠带;车库出入口不做单独的雨棚,避免对商业立面的遮挡;

▲成都五块石主街地库入口
4、车库坡道
a、尽量选用直线型坡道;
b、场地条件不允许的情况下,选用环形坡道时,内圈转弯半径不小于7米;外转弯半径不小于:10.6m(单车道);14.2m(双车道)
5、室外停车
a、原则:尽可能多设;
b、位置:利用商场与住宅区之间的外街;
6、出租车停靠站
a、商业建筑外边界线上,需设置出租车停靠站,车位数不小于5个;
b、出租车停靠站,需设置在主出入口侧面,以不影响商场人流进出为原则;
设置雨棚覆盖3个停车位;
7、公交站点
在规划阶段,尽可能影响城市规划部门,将公交站点设置在商场周围;
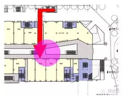
8、地铁/地下过街通道
a、应设置商业街联接商场中庭与地铁/地下过街通道;
b、可在连接处设置下沉庭院解决消防问题,但流线设置应利于人流直接进入商场而非直接疏散到地面;
c、地铁出站标高在负二层的情况,在流线设计上,必须考虑负二、负一均与商场内部直接连通;


▲杭州下沙地铁连接

▲北京常营地铁连接


▲北京常营地铁连接
d、地铁出口与商场有一定距离的情况,宜设置地下连通道(通道两边设铺如无法设铺,须设广告灯箱);
e、城市中远期地铁规划在商场附近设站的情况,在商场设计时必须考虑连通地铁的可能性;
f、地铁与商业衔接口,顶部尽量设玻璃钢构自然采光,以增强空间舒适度与商业氛围。

▲重庆后工地铁连接
9、重庆后工轻轨
设置天桥直接连通轻轨出站口与商场二层或三层;
10、过街天桥
a、商场跨市政道路或内部道路的情况,需设置封闭的天桥将道路两侧二层或三层以上的部分连通(视城市管理规定);
b、过街天桥的宽度不小于12m(除通道外,两侧或单侧设商铺);

▲北京常营过街天桥 a、商场室内与室外场地之间平进平出,避免上下楼梯或台阶,室内外高差用找坡解决;如标高差异大,实际操作中,可采用多首层方式。 b、商场内部需满足无障碍要求,不得出现台阶; c、建筑形态有B1、B2等地下商业楼层设计的,应在街角、轨道交通衔接点、主入口附近设计下沉式广场;搜建筑 ▲北京常营下沉庭院三、竖向

四、柱网
a、垂直于内街方向的柱网宽度:柱宽+4个停车位X 2.4m(停车位宽度);城市对停车位宽度有不同于国标的情况,以能通过报建的要求为准;
b、平行于内街方向的柱网:满足地库停车最高效的柱网布局方式,同时满足商业业态最低柱网要求;
c、商场上方有塔楼的(办公、公寓、住宅),要求塔楼外墙窗顶高度不小于2400mm;


五、层高
1、地上A标准
a、1F结构层高:5.6~6.0m,净高:4.0~4.4m (商业)
b、2F-5F结构层高:5.1m,净高:3.5m(商业)
2、地上B标准
a、1F结构层高:5.1~5.3m,净高:3.5~3.7m (商业)
b、2F-5F结构层高:4.6m,净高:3.0m(商业)
3、地下
a、地下根据业态、车库、地铁连接高度确定;
b、超市要求:结构层高: 5.4m,净高:3.7m(超市灯带下)
4、特殊业态要求
冰场、儿童职场、电影院等特殊业态净高,在经济的情况下满足租户要求;
六、业态及占比
1、主力业态设置
a、龙湖天街:可含主力百货、电影院、超市、冰场、儿童职场;
b、星悦荟:可含电影院、超市。
2、业态占比
a、主力店建面(含公摊)占比:<40%
b、餐饮娱乐建面(含公摊)占比:<25%
七、楼层设置原则
a、地上:商场地上部分不超过5层,局部可突破,但须8F;其中>5F的单层商业面积,占商业建筑总投影面积须15%;
b、地下:商业部分只设B1层,有地铁联接的,可整层或局部设置B2商业;地下部分(含车库)尽量不做B3、B4(减少开挖);

▲杭州下沙高楼层商业
八、内街尺度
a、采用4m(走廊通道)+6m(中空)+4m(走廊通道)要求,
b、内街轴线宽度=1/2柱宽+0.3m装修厚度+4.0m走廊+6.0m中空+4.0m走廊+0.3m装修厚度+1/2柱宽;

▲内街尺度(轴线)
九、中庭尺度
a、在保证得房率不小于60%的情况下,局部中庭尺寸可适当放大,为今后商场推广、活动预留空间;
b、但中庭的中空部分尺度最大控制在12~14米宽*21~24米长。
十、客梯观光梯
1、位置
a、两组客梯(含普通客梯与观光电梯)水平距离60m(目的性消费的区域除外)。垂直电梯可考虑在中庭的一侧;观光电梯可采用全玻璃式,观光电梯须带夜间灯饰效果;
b、停车场内任意停车点位到最近的客梯(含客梯与观光电梯)的距离50m;
2、参数及要求
a、提升速度为:s=1.5-2.0m/s;
b、客梯观光电梯门套需设置三维立体光幕,带防夹功能;具备五方通话功能;
c、客梯和观光电梯内装须选择中高端产品,宜用不锈钢拉丝面/钢化玻璃面(观光电梯);客梯和观光电梯需有无障碍扶手设计。变频式;
d、客梯、观光电梯容量选择:1.0-1.35T/台。
e、客梯或观光电梯并排2台,需有群控功能;搜建筑网;
f、观光电梯外周边或底部宜有灯具装饰;观光电梯井道需有美化装饰或处理-以避免观光电梯周边视觉效果差;
十一、扶梯
1、设置位置及间距
a、在主要中庭空间布置上下扶梯,两个主要中庭空间间距约120m;
b、在两个主要中庭之间,布置一组上下扶梯;

▲成都五块石扶梯设置
2、扶梯形式
a、有条件采用间接飞天梯形成快速动线和空间记忆点,不采用跨层扶梯;
b、首选螺旋式扶梯布局;
c、不能布置螺旋式扶梯的位置布置平行式扶梯;
d、如下位置可布置剪刀式扶梯:
①百货内部;
②连接商业与车库之间,高楼层之间,专为解决高楼层的快速垂直交通;

▲成都五块石间接飞天梯

▲重庆后工螺旋式布局

▲成都五块石平行式扶梯

▲杭州下沙剪刀扶梯
3、设备参数和要求
a、扶梯,选择30度提升角,1000mm宽扶梯;提升速度0.5m/s;扶梯上下承台,(扣除扶梯踏板后的)转弯半径应2m;
b、扶梯桁架侧面和底板,采用不锈钢拉丝面板;
十二、板梯
1、设置位置
a、超市内部(超市跨两层的情况)、超市到车库须设置;
b、地下超市到地面不设;
2、设备参数和要求
a、设备参数和要求:选择12度提升角,1000mm宽,提升速度0.5m/s;人行道上下承台,(扣除扶梯踏板后的)转弯半径应2.5m;
b、板梯桁架侧面和底板,采用不锈钢拉丝面板;
十三、货梯
1、位置原则
a、沿商场内街线性方向,每80~120m设置一对货梯;
b、超市、百货的货梯需与专卖店区分开设置;
c、尽量布置在餐饮附近;
2、设备参数和要求
货梯提升速度选择范围1.0-1.5m/s,建议选择1.0m/s

▲杭州下沙货梯设置
十四、卸货平台
a、购物中心卸货平台:需要配置小型货车进出(载货量1.2吨,暂定),每处卸货电梯可同时容纳2台货车同时卸货;卸货平台深度宜达3-4m;宽度按2台1.2吨货车车宽计算;
b、超市专用卸货平台:提供1台大型集装箱式平台和卸货区+2台中型货车卸货区;卸货承台深度按4-6米计;卸货区面积选择:200-300平米,在室内或带雨棚;(北方区须有可封闭的室内或半室内区域)

▲杭州下沙超市卸货区设置
十五、车位配比
a、车位配比:1-1.2个/100平方米(商业建筑面积);
b、可利用办公、SOHO小户型等业态的停车数量,错峰满足商场的停车需求;
十六、立面
1、立面风格定位
a、经典;
b、龙湖各地区公司统一;
c、宽幅的档次及业态适应能力;
d、满足当前定位及日后档次升级的需要;

2、立面材料
a、石材:提升立面档次;石材划分应规则、整齐、简单,减少挂件用量;
b、金属(雨棚、窗框、广告框、石材收边线条等):精致、精细度;
c、玻璃(橱窗、入口玻璃幕墙):营造商业氛围;
d、百叶(女儿墙、进排风口、石材收边等):功能性、精细度;
e、广告灯箱:立面收益;

3、立面比例
a、南方,广告位:橱窗:实墙=30%:40%:30%,
b、北方,广告位:橱窗:实墙=40%:30%:30%,
4、商场立面与塔楼立面处理关系
a、塔楼位于主沿街面的情况,应避免塔楼竖向线条切断商业裙房,应保持商场部分的立面完整性;
b、塔楼位于背街或后街情况,可突出塔楼的立面完整性;

▲成都五块石立面过程方案

▲重庆后工塔楼立面
5、立面雨棚设置
a、主次入口雨棚,高度设置在一层顶板,主要起挡雨和入口提示作用;
b、沿街店铺的雨棚,高度设置在二层顶板,出挑深度约1200mm;
c、出租车停靠站、公交站点、自行车租赁处等雨棚,以考虑遮雨功能为主,设计应轻盈,较少对商业立面的遮挡;

6、立面广告灯箱
a、室外灯箱安放位置:宜在3F及3F以上;1F、2F以橱窗为主,以增强视觉效果和夜景商业氛围;广告灯箱高宽比:4:3(建议尺寸不小于16m:9m);广告采用内打灯、外挂式;
b、某某LED广告屏幕,位于城市道路交叉口面,或主干道的抢眼位置(设置面向来人和来车方向),结合立面设计面积尽可能大;
c、室外停车场区域、及地下/或屋顶停车场与商场衔接口显眼位置,可设置局部的广告灯箱位;