1、钢梁拼接处用内力设计一般就能满足设计要求,为什么还要采用等强设计?
答:从概念上讲,拼接位置是构件的连续位置,如果按照内力进行拼接位置节点设计势必造成该位置承载力比连续部位要弱,该位置成为薄弱部位,在强风强震,及其他偶然情况下都很可能率先破坏,造成连续倒塌等安全隐患,所以该位置按等强设计是十分必要的。这里说的概念设计是从抵抗不利情况出发的,我们在设计时考虑的地震作用一般为多遇地震作用,也就是小震情况,而我们要通过概念设计以及相关构造保证在设防地震(中震)以及罕遇地震作用甚至是极罕遇地震下的结构安全,此时结构中很多构件出现塑性,在此情况,如果拼接节点是先于构件破坏的,那么整个结构成为机构,后果不堪设想。从规范角度来说,抗规8.2.8等条文也提到了等强连接设计以及强节点弱构件的相关验算,足见节点的重要性。
2、根据门式刚架规范4.1.3条条文说明当屋面均布荷载标值取0.5KN/m2时,可不考虑最不利布置计算屋面连续檩条时活荷载取0.5kN/m2时,就可以不考虑其最不利布置?
答:首先在考虑此条时应根据具体情况而定,规范中规定本条所指的活荷载仅指屋面施工及检修时的人员荷载 同时此条表述与旧版规程类似。首先该条继承了旧规程3.2.2的说法是主要针对刚架构件而言的,刚架构件一般包括刚架梁、柱构件,对于檩条、墙梁等围护构件的计算新版规范没有单独提出,旧版规程则提出屋面构件计算时的活荷载取值大于刚架构件计算时的取值是合理的。活载不利布置是一般活荷载的一种属性,即可变荷载存在加载位置的随机性,例如楼面或楼面各个房间在不同时间呈现不同的人员分布,屋面雪荷载随着背阴、向阳位置、遮挡及随着太阳位置的变化,对于雪的融化及再次冻结都会产生影响,所以门式刚架规范中4.3.5也考虑了类似不利布置的情况。规范4.1.3条的规定认为人员及检修荷载取到相应数值时按照一次性加载也有较大概率能够包络活载不利布置的情况,对于雪荷载等其他活荷载类型还要根据具体情况而定。
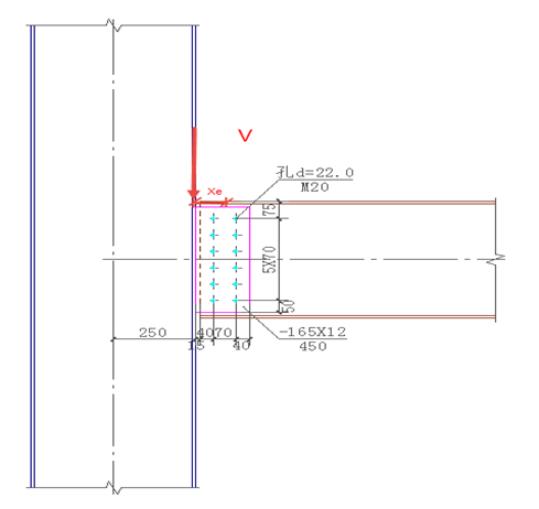
3、采用STS钢结构施工图进行梁柱铰接节点设计时,验算腹板螺栓受剪时,为何程序给出的螺栓所受最大剪力与结果相差较大?
答:如下图所示,当螺栓列数大于2列时,梁端剪力V和螺栓群中心会存在水平向的偏心距,从而产生附加弯矩,附加弯矩M=V*Xe。然后程序会根据此弯矩和剪力按照剪弯螺栓群进行计算,采用下列公式进行计算:
Nv=(M*x_max)/(x_i^2)+V/nbolt,当NvN_v^b时,程序则会调整螺栓直径或增加螺栓个数,再次计算,直到迭代计算满足要求后,输出最后的螺栓所受最大剪力Nv,所以此时,螺栓所受的最大剪力比纯剪状态要大。

4、钢结构门式钢架设计自动生成的柱脚图中为什么没有抗剪键?
答:程序在抗剪验算考虑设置抗剪键的,当满足VN,其中为摩擦系数,此时说明底板摩擦力就能抵抗剪力,不需要设置抗剪键,同时在节点计算书中会输出柱脚抗剪验算是否满足要求的结果。
5、门式刚架出图时,柱端板域内的斜加劲肋特别厚是什么原因?如何调整?
答:门式刚架规范10.2.7第5条规定了柱端转动刚度与梁线刚度的关系,即R25EIb/Lb,R为刚架梁柱节点转动刚度,以保证梁柱节点能够有足够的转动刚度。模型中梁线刚度比柱要大得多,造成验算结果不满足,并且节点转动刚度与梁线刚度的差值非常大,差值就是需要斜加劲肋所要提供的刚度,所以程序计算的柱节点域内斜加劲肋厚度就非常厚了,此时需要调整梁、柱截面尽量满足此条要求,可以减小该加劲肋厚度。
如果由于条件限制,不能对梁柱做较大的调整时,也要采取措施,增加由于梁柱之间未实现刚接时,对于梁跨中部位的影响,应适当增大强度、稳定以及梁挠度的富裕度,保证结构安全。
6、根据抗震规范表8.1.3下的注2:当某个部位各构件的承载力满足2倍地震作用组合下的内力要求是,7~9度的构件抗震等级应允许按降低一度确定在SATWE中应该如何考虑?
答:该条要求在SATWE中需要人工修改参数来执行,首先在参数中将地震影响系数最大值max修改为原来的2倍,然后计算得到相应的结果,人工判断强度和稳定是否满足要求,对于满足要求的构件,返回特殊构件定义中将其抗震等级修改为降低一度之后的抗震等级,再按照原来的地震动参数进行计算即可。
7、有围护结构和无围护的门式刚架除了按照门规确定的风荷载体型系数不同外,能考虑围护结构挡风面积吗?
答:首先有无围护结构并不是封闭式和敞开式的具体的判断条件,还要根据开窗比例判断是否为部分封闭式结构,封闭式、部分封闭式和敞开式三种形式决定了风荷载体型系数(门规称为风荷载系数)的不同取值。二维pk中通过用户定义的迎风宽度和构件高度确定风荷载标准值大小,不会自动考虑有无围护的情况。通过Satwe等三维分析程序并不会的自动判断有无围护结构计算风荷载受荷面积,需要人工调整风荷载或通过定义镂空层实现无围护结构的风荷载正确统计。
2、计算部分
1、一个八层住宅模型,为何靠近顶部若干楼层的剪力墙也会出现偏拉?
答:该模型中出现偏拉的组合为地震参与组合,墙体的轴拉力来源也是来自地震作用,进一步分析,该模型设防裂度7度,场地土类别四类,特征周期达到了0.65s,结构刚度较大,结构周期在0.8s以下,周期折减系数此时为0.75,此时周期影响系数落在0.1s-Tg之间,地震作用较大,顶部以上各层地震作用产生的轴力与恒活荷载作用产生的轴压力相差不大,再加上考虑的双向地震,地震作用产生的轴力进一步加大,此时在一些短墙肢就出现了偏心受拉的情况,由于靠近顶层的墙体组合轴拉力较小,多数偏拉墙肢为大偏拉。
2、如下图:两个模型上部结构相同,模型2比模型1地下部分多出两跨地库,计算后发现右侧模型的位移角大于左侧模型的位移角,一般情况下输入地库是增大了地下结构的刚度,位移反而变大了?

图2 模型1

图2 模型2
答:朴素的说刚度是单位力作用在结构上产生的位移大小,当单位水平力作用在结构上产生的位移就表征得是结构的侧向刚度,侧向位移可以用u=F/K来描述,当作用在结构上的侧向力相同时,其位移大小当然取决其刚度大小,但对于这两个模型其作用条件并不是相同的,而且差异很大,出现这种现象大致可以归纳为两个原因:
1)建入了地下室相关范围的模型宏观上其刚度增大,周期减小,但随着结构周期的减小,结构各个周期对应的地震影响系数总体呈现增大趋势,地震作用水平随之上升,外力增大,其侧向位移等指标就不一定是减小的趋势。
2)同时两个模型主要在于地震作用下的质量差异上,如下图:两个模型由于一个存在外扩的地下车库部分,其地下室部分的自重和荷载导致其质量Geq是另一个的2倍以上,同样地震作用经典的描述为Fek=AlphaGeq,这就直接导致其地震作用水平有了明显的上升,其侧向刚度增大的幅度并没有地震作用增大的多,所以侧向位移u呈增大的趋势。


图3
3、如下图所示:SLAB计算中为什么在弯矩不大的情况板带端部会有较大的受压钢筋?

图4
答:在slab计算参数中板带最小配筋率设置为0.2%,程序按照该配筋率设置受压钢筋,所以会出现问题中描述的情况,将该值改为0后,重新生成数据计算,板带端部受压钢筋为0。
4、模型在计算位移比时,考虑强制刚性楼板假定,最大位移和最小位移也出现在角点位置,为什么位移比指标会出现大于2的情况?
答:根据扭转位移比计算公式,得到楼层最大位移_max,最小位移_min,一般情况下,扭转效应不大的结构最大位移和最小位移为同号,此时扭转位移比_max/(_max+_min)/2,因此该值此时不会超过2,但随着扭转效应的进一步加剧,刚性楼板上外边缘,尤其是角点位置随着刚性楼板转角的增大,最小位移_min会从与最大位移同向变为反向,如下图所示,最小位移出现在左下角点位置,其位移在y向是向下的,而出现最大位移的右侧角点其位移在y向是向下的,此时位移出现反号,最大位移势必超出平均位移的2倍,从而造成位移比大于2的现象。

图5
进一步发现,此位移比大于2情况在扭转效应很大的情况下是一个普遍的现象,如下图,建立一个刚心与质心存在较大偏心的偏置框架核心筒模型。刚性楼板假定下进行计算。得到的位移比结果绝大部分情况均出现了大于2情况。

图6

图7
5、如下图:一个单层钢筋混凝土框架厂房,高低跨,在第四标准层布置吊车荷载,引起楼层受剪承载力超限,增加支撑后,其楼层受剪承载力之比依然不能满足65%的要求,如何处理?

图8
答:该模型是单层带高低跨的钢筋混凝土框架厂房,与问题中提到的模型中的四层似乎是矛盾的,这恰恰是问题所在,实际上四、五层只是在建模当中由于需要布置荷载等原因进行的分层,实际上其并不是严格意义上的楼层,这样的话,基于这样的楼层划分去判断层指标显然是不合理的,如果认为该模型为单层厂房,则楼层间受剪承载力之比问题显然就不存在了,如果认为可在高低跨处分层,可单独建立模型,输入相应荷载,比较与原模型的配筋,通过调整实配钢筋超配系数,将两层模型的配筋量调整到与原模型或施工图配筋一致或非常接近,这时查看其楼层受剪承载力才有一定的意义。
6、在slabcad中的板带结果输出中,为什么按板厚加柱帽厚度输出构造配筋,能不能只按板厚输出配筋?
答:SlabCAD楼板设计参数中板带计算配筋位置选为柱边缘时,程序取边缘截面相应板的厚度,有柱帽时,还要叠加柱帽厚度,同时计算配筋弯矩从柱边缘位置算起,板带计算配筋位置选为柱帽边缘时,程序取柱帽边缘楼板厚度,不会叠加柱帽厚度,但同时计算配筋弯矩从柱帽边缘位置算起,弯矩变化后(通常是变小)对于计算配筋也会产生影响。如果该参数符合设计人员的预期可以通过修改该参数实现设计的意图,如果不符合的话,目前程序则不能改变该位置的板带厚度。