一、消防车道设计规范
(一)低层、多层、中高层住宅
低层、多层、中高层住宅消防车道设计要求:居住区内宜设有消防车道,其转弯半径不应小于6m。
(二)高层(指十层及十层以上的住宅)建筑消防车道设计要求:
1.高层住宅的周围应设有环形车道,其转弯半径不应小于12m(有些地方是9米)。
当设环形车道有困难时,可沿高层建筑的两个长边设置消防车道。当高层建筑的沿街长度超过150m或总长度超过220m时,应在适中位置设置穿过高层建筑的消防车道。
2.消防车道的宽度不应小于4m。
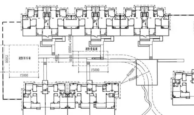
消防车道距高层建筑外墙宜大于5m,
消防车道上空4m以下范围内不应有障碍物。
3.长度超过35m的尽端式车行路应设回车场,
多层可做到12m12m。
高层回车场不宜小于15m15m。
大型消防车的回车场不宜小于18m18m。
4.穿过高层建筑的消防车道,其净宽和净空高度均不应小于4m。
5.一般消防车的长度均大于或接近10m,高度近4m,宽度近2.5m。
6.高层建筑的内院或天井,当其短边长度超过24m时,宜设有进入内院或天井的消防车道。
7.消防车道与高层建筑之间,不应设置妨碍登高消防车操作的树木、架空管线等。
8.供消防车取水的天然水源和消防水池,应设消防车道。
二、消防登高面设计规范
消防登高面又叫高层建筑消防登高面、消防平台,是登高消防车靠近高层主体建筑,开展消防车登高作业、及消防队员进入高层建筑内部,抢救被困人员、扑救火灾的建筑立面。按国家建筑防火设计规范,高层建筑都必须设消防登高面,且不能做其他用途。
设置消防登高面是为了消防登高车作业的需要,保证对高层住宅的住户进行及时救援,因此,消防登高面应靠近住宅的功用楼梯,当有困难时,登高面应靠近每套住宅的阳台或主窗。
1.高层住宅应在登高面一侧,结合消防车道设置不少于一块的消防登高场地,每块消防登高场地面积不应小于15mx8m。
2.消防登高场地距住宅的外墙不宜小于5m,其最外一点至消防登高面的边缘的水平距离不应大于10m.
3.有坡道的消防登高场地,其坡道坡度不应大于15%。
4.登高面与建筑之间不得有妨碍登高的高大乔木。
5.单元式、通廊式住宅的消防登高面不应小于住宅的一个长边长度。
6.消防登高面应靠近住宅的公共楼梯或阳台、窗。
7.消防登高面一侧的裙房,其建筑高度不应大于5m,且进深不应大于4m。
8.消防登高面不宜设计大面积的玻璃幕墙。
9.塔式住宅的消防登高面部不应小于住宅的1/4周边长度。
10.登高面范围内宜有建筑的安全出口。
11.利用市政道路作为消防登高场地,其绿化、架空线路、电车网染等设施不得影响消防车的停靠、操作。
12.高层住宅的消防车道,消防登高场地应避开地下管道、暗沟、水池、化粪池等影响消防车荷载的地下设施。
13.在地下建筑上布置消防登高场地、消防车道时,地下建筑的楼板荷载计算应考虑消防登高车的重量。
三、设计基本要求
1、消防车道不应小于4m宽,转弯半径内径12m,外径16m。消防车道最大坡度8%。
2、高层民用建筑的周围,应设环形消防车道。当设环形车道有困难时,可沿高层民用建筑的两个长边设置消防车道。
3、消防车道距高层建筑外墙宜大于5m,消防车道上空4m以下范围内不应有障碍物。
4、尽端式消防车道应设回车场,回车场不宜小于15mx15m,大型回车场不宜小于18mx18m,消防登高面不小于8mx15m。
四、设计控制要点
1、位于地库顶板上的消防通行区域应核算加强结构配筋,若调整超出加强范围,需重新验算荷载或重新配筋。
2、消防车道转弯半径不应更改,可采用设置平道牙铺设隐形路面解决。
3、消防回车场轮廓及尺寸各地规定不一。一般常用18mx18m、15mx15m,正方形或四边形(如梯形或其它异形),不应用12mx12m,不宜采用回车道(报建不易通过),不宜采用圆形。
4、主要行车道(含消防车道)的坡度不应随意更改。各地坡度要求可能各不相同,园路人行道等可根据需要调整。
五、设计常见问题
1、私自随意修改消防通道走向,导致消防报建不过,严重时验收不过或造成安全隐患。
2、违反规范要求,在消防通道净宽内设置了影响消防车通行转弯的高出地面的障碍物,例如灯具、园林小品、构筑物等。
3、消防登高面一侧种植高大乔木或影响登高的廊亭灯柱等(一般界定4m以上为高大乔木),导致消防验收不过。
4、消防登高面一侧擅自增加地面停车位。一味追求甲方要求的车位数,导致防火间距不够,且给登高施救带来不便。

消防车道不应小于4m宽,转弯半径内径12m,外径16m,消防车道上空4m以下范围内不应有障碍物。

高层民用建筑的周围,应设环形消防车道。消防车道距高层建筑外墙宜大于5m,消防登高面不小于8m15m。

回车场不宜小于15m15m。用卵石和石材相结合,增加了趣味性。放置可移动的小品,不影响将来消防车的通行。

六、隐形消防车道
隐形消防车道既保证了正常使用消防车道,又改善了平日视觉上的景观效果。


▲甚至可以做成老年人喜爱的都市农场

▲最最简单的方式是做成透水铺装

▲隐形消防车道上布置曲线优美的园路,效果美观

▲用草坪预留出隐形消防道,但是空间过于拘泥于形式,效果呆板

▲隐蔽式车道,在4m幅宽的消防车道内种植不妨碍消防车通过的草坪、花卉

▲在4m幅宽的消防车道内种植不妨碍消防车通行的草坪、花卉

▲植草砖铺设消防车道只有30%~50%空隙率,覆盖率差,黄土易裸露,效果难把控

▲纯隐形的消防车道增加了小区的绿量,营造良好的视觉效果和生活环境

▲利用植物造景的手法以车道两侧多层次的列植或丛植乔灌木作为消防车道导向指示,景观效果好

▲过度的隐形带来了识别问题。会使消防车出勤时不能有效识别车道,车轮深陷普通绿地的土壤中而无法前行。