一.高层住宅楼中筒的基本元素
1.安全疏散口:封闭楼梯或防烟楼梯及前室
2.电梯,电梯厅及消防电梯前室
3.公共走道
4.设备设施及设备管井
二.各元素设计的基本要点
1.楼梯及前室
1). 基本要求:
梯段净宽1.1M(墙边到扶手中心线的净空尺寸)
梯步净宽260mm;梯步净高175mm
梯步数每段18步
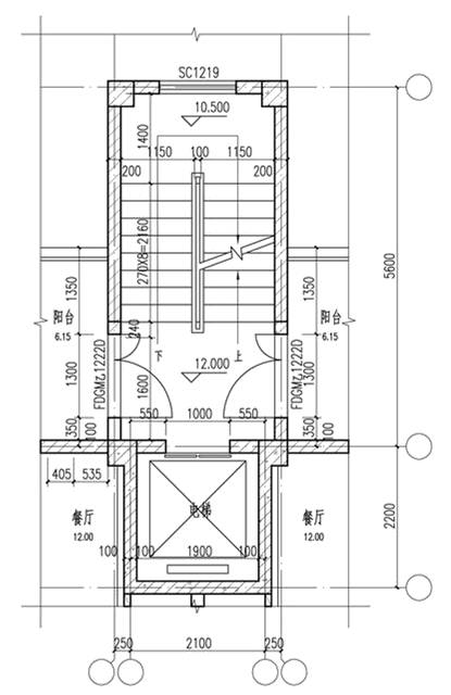
普通楼梯基本尺寸:4700*2600(8*260+2400+200=4680),参见图1。
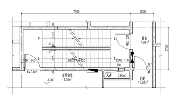
剪刀楼梯基本尺寸:7100*2700(17*260+2400+200=7020)(中间100或200防火墙)
防烟楼梯间前室的基本面积要求:住宅4.5平米;公建6.0平米
与消防电梯合用的前室基本面积要求:住宅6.0平米;公建10.0平米




2). 设计要点:
a.如地下地上共用一个楼梯,应在首层出口处将地下地上楼梯用防火墙及防火门分隔开,并且地下地上的楼梯对外疏散门均应向疏散方向开启,且门开启后相互不能影响疏散宽度。
b.楼梯间的门均为乙级防火门,标准层其开门宽度可以是1000mm,但在首层楼梯间对外开启的防火门应满足大于1100mm(等同楼梯间梯段最小宽度)。
c.楼梯间及其前室的外窗和其他部分的外窗的距离应满足水平大于1.0米,转角及正对时应大于4.0米的防火要求。
d.两个放烟楼梯间与消防电梯不能同时共用一个前室(三合一前室)(高规p128页:特别要提出的是,有少数设计在剪刀楼梯梯段之间不加任何分隔,也不设防烟楼梯间,还有一种与消防电梯合用的前室,两个楼梯口均开在一个合用前室之内,这种设计都不利于疏散,不能采用,更不能推广。
e.楼梯应出屋顶.
f.楼梯段不能设扇步。
g.当楼梯梯段井净宽大于500mm时,楼梯栏杆应按临空栏杆设计,其高度应大于1100mm。
住宅楼梯间及出入口的设置有如下几个要求:
设置开敞楼梯间的条件:
11层及11层以下的单元式住宅可不设封闭楼梯间,但开向楼梯间的户门应为乙级防火门,且楼梯间应靠外墙,并应直接天然采光和自然通风。
设置封闭楼梯间的条件:
(设置的封闭楼梯间应满足下列规定:楼梯间应靠外墙,并应直接天然采光和自然通风;楼梯间应设乙级防火门,并向疏散方向开启;楼梯间的首层紧接主要出口时,可将走道和门厅等包括在楼梯间内,形成扩大的封闭楼梯间,但应采用乙级防火门等防火措施与其他走道和房间隔开。)
(1).12层-18层的单元式住宅应封闭楼梯间。
(2).11层及11层以下的通廊式住宅应设封闭楼梯间。
(3).裙房和除单元式和通廊式住宅外的建筑高度不超过32m的二类建筑应设封闭楼梯间。
设置防烟楼梯间的条件:
除上述外的一类高层建筑和建筑高度超过32米的二类高层建筑以及塔式住宅楼,均应设防烟楼梯间。
设置一个安全出口(疏散楼梯间)的条件:
(1).18层及18层以下,每层不超过8户,建筑面积不超过650平米,且设有一座防烟楼梯间和消防电梯的塔式住宅。
(2).18层及18层以下每个单元设有一座通向屋顶的疏散楼梯,单元之间的楼梯通过屋顶连通,单元与单元之间设有防火墙,户门为甲级防火门,窗间墙宽度,窗槛墙高度大于1.2m且为不燃烧体墙的单元式住宅。
(3).超过18层,每个单元设有一座通向屋顶的疏散楼梯,18层以上部分每层相邻单元楼梯通过阳台或凹廊连通(屋顶可以不连通),18层及18层以下部分单元与单元之间设有防火墙,且户门为甲级防火门,窗间墙宽度,窗槛墙高度大于1.2m且为不燃烧体墙的单元式住宅。




2.电梯,电梯厅及消防电梯前室
1)基本要求:
a. 12层以上的住宅楼每幢需设2台以上电梯
b.12层以上的住宅楼需设消防电梯(消防电梯应800KG/台,且从首层到顶层的运行时间60秒)
c.电梯的设置数量参考标准:60-90户/台
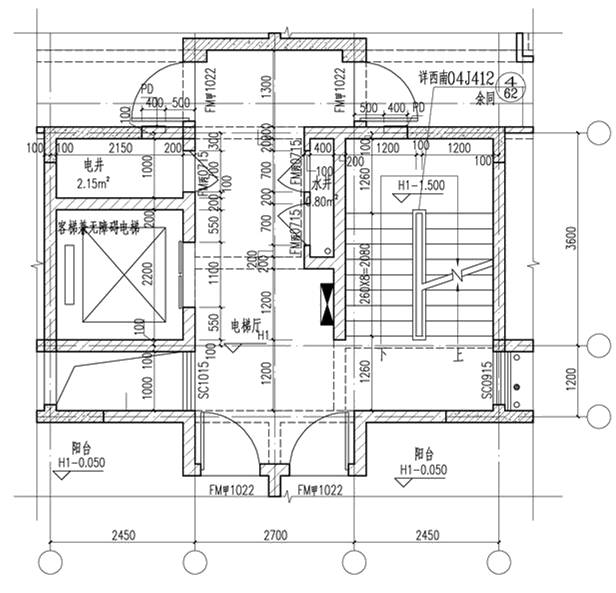
d.7层及7层以上住宅楼的电梯需满足无障碍要求,(电梯开门800mm,电梯轿厢进深1400mm,开间1100mm,一般800KG的电梯均能满足此要求。)参见图9 。
e.消防电梯与客梯,其管道井及电梯机房均应分隔开(防火墙,消防电梯机房的门应为甲级防火门)
f.电梯厅的深度应满足无障碍设计要求1800mm。若多台电梯双侧排列,则电梯厅深度应不小于向对最大电梯轿厢深度之和且小于3500mm,参见图9 。
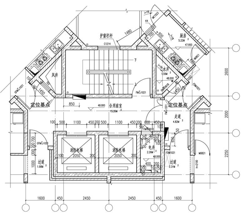
g.消防电梯前室的面积应:住宅4.5平米;公建6.0平米
与楼梯间合用的消防电梯前室的面积应:住宅6.0平米;公建10.0平米
h.消防电梯前室若有直接对外的开窗,其开窗与其他部位的开窗距离应满足水平距离大于1.0米,转角及相对时距离应大于2.0米,参见图10 。


3.公共走道
1)基本要求:
a. 公共走道的最小净宽应满足无障碍设计要求,不小于1200mm(一般设计为轴线1500mm,墙与墙之间1300净空,主要是考虑到后期的抹灰以及走道中安装消火栓后,能保证其实际净宽达到1200mm的要求。)参见图11 。
b. 高层居住建筑首层;每个外门的净宽1.10m;走道净宽单面布房为1.20m,双面布房为1.30m。(高规6.1.9条)参见图12 。
c. 长度>20m的内走道(两端无窗)、长度>30m的走道(只有一端有窗)、长度>60m的走道设机械排烟,排烟井面积应计算所得,参考值0.3m^U2^U左右


4.设备设施及设备管井
1) 高层住宅楼中筒中常见管井有:(管井门均为丙级防火门,应尽量外开,以便在走道上检修设备,节约空间)
a.水表井:
b.强,弱电井:
11层:强弱电一般共井,尺寸为1200*600=0.72平米
18-20层:强电井 1500*800=1.20弱电井 1200*800=0.96
强弱电共井2800*800=2.24
25-33层:强电井 1500*800=1.20弱电井 2000*800=1.60
强弱电共井 3500*800=2.80配电小间2500*1200=3.00
c.正压送风井(无自然通风情况下)
位置:楼梯间风井,楼梯前室风井,消防电梯前室风井,超过规定长度的走道风井
注意: 1.当楼梯前室设风井困难时,可以加大楼梯间的风井风量来保证楼梯前室的加压要求(中筒各部分加压压力由强到弱的顺序是:楼梯间-前室-走道)
2.加压送风风井要求:窄边净空500mm;内壁抹灰密封;各标准层安装正压风口的墙体尽量避免是剪力墙。(风井的面积需通过计算所得)
3.楼梯间及前室的防火门是双扇开启时,对风压损失较大,相应的风井也会增大。
4. 若建筑楼层超过32层(含地下室),则正压送风需分段设计,即分上段和下段,一般情况下,上段的加压风机位于屋顶,下段的加压风机位于地下室或者1层架空层。风井在分段层要用结构板断开
5.剪刀楼梯应分别加压送风,但可以共用一个风井。
注意:设备管井门(除为楼梯间加压送风口外)只能开在走道及各前室中,严禁将设备管井门设在防烟楼梯间内。
2)高层住宅楼中筒中的常见设施
a.防火门:楼梯间,楼梯前室及消防电梯前室的门均为乙级防火门。
b.直接开向前室的户门均应为乙级防火门,但不允许一个标准单元中所有的户门全开向前室。
c.消火栓:
① 总则:必须同时有两股水柱到达任意一处着火点,每个消火栓保护半径按25m计(不能用圆来表示,应考虑龙带拉到位置,龙带至少应能拉到最不利房间的门口)
② 高层建筑的合用前室必须设有1个消火栓,如果有开向该前室的功能房间(不包括管道井),则该合用前室必须有两个消火栓;
③ 按成都消防支队个人意见,前室和走道如果都有户门,前室必须有两个栓,走道必须有两个消火栓。
④如顶层跃层,应考虑下层消火栓能保证到楼上部 分(应考虑楼层高度)