基本概念
1、烧结普通砖的标准尺寸:240mm115mm53mm;
2、砖的强度等级:取10块砖的试样进行抗压强度试验,根据抗压强度平均值和强度标准值来划分为5个等级:MU30、MU25、MU20、MU15、MU10。
3、墙的厚度


砌筑工程量的计算规则
实心砖墙的计算规则:按设计图示尺寸以体积计算。扣除门窗洞口、过人洞、空圈、嵌入墙内的钢筋混凝土柱、梁、圈梁、挑梁、过梁及凹进墙内的壁龛、管槽、暖气槽、消火栓所占的体积。不扣除梁头、板头、垫木、木楞头、木砖、门窗走头、砖墙内加固钢筋、木筋、铁件、钢管及单个面积0.3m2以下的空洞。凸出墙面的腰线、挑檐、压顶、窗台线、虎头砖、门窗套的体积不增加。凸出墙面的砖垛并入墙体计算。






砖墙工程量计算公式
砌筑砖墙工程量按墙长乘以墙高乘以墙厚度以m3计算。
计算公式为:
V砖墙=(Lh-门窗等洞口面积)d△V
V砖墙―砌筑砖墙工程量m3
L―墙长m
h-墙高
d-墙厚
△V―应扣除(加入)部分的折算体积之和m3
1、墙长
外墙长度按外墙中心线计算,内墙长度按内墙净长计算。墙长计算方法如下:
1.1 墙长在转角处的计算
墙体在900转角时,用中轴线尺寸计算墙长。
1.2 T形接头的墙体计算
当墙长处于T形接头时,T形上部水平墙位通算完长度后,垂直部分的墙只能从墙内边算净长。
1.3 十字形接头的墙长计算
当墙体处于十字形接头时,计算方法基本同T性接头,因此十字形接头处分段的二道墙也应算净长度。

2、墙高
如墙身与基础砌体材料相同,外墙墙身以设计室内地坪为计算起点,内墙首层以室内地坪为起点,二层及二层以上以楼板面为起点。外墙、内墙、山墙墙身的高度按以下计算规则确定:
3 、砖基础与砖墙(身)划分


外墙-坡屋面
1、无檐口天棚者算至屋面底板
2、有屋架室内外均有天棚者算至屋架下弦底面另加200mm
3、有屋架无天棚者算至屋架下弦底面另加300mm
4、无天棚且出檐宽度超出600mm按实砌高度计算

外墙高度-平屋面
有挑檐算至钢筋混凝土板底
有女儿墙无檐口算至屋面板顶面

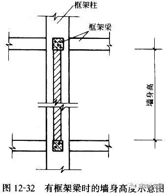
内墙
1、位于屋架下弦者算至屋架下弦底。
2、无屋架天棚者算至天棚底另加100mm
3、有钢筋混凝土楼板隔层者算至楼板顶面。
4、有框架梁的算至梁底面



山墙
内外山墙按平均高度计算
