那么什么样的图纸算是好图纸呢?
回答这个问题的答案是多样的,不是唯一的。小弟我今天就来评论下图纸。只评论一张剖面图。先上图,然后再说。

聊聊这张图,分别在如下几个方面
一、版式
二、线型
三、精细度把握
一、版式
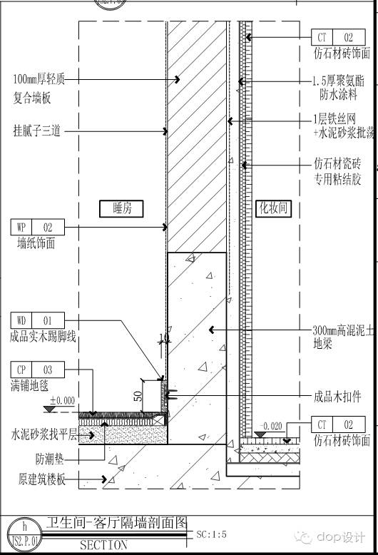
再看一下整体。

整张图面的排版很好,好在哪里呢?我们在排版的时候,原则是,用最少的图纸表达更多内容。一个项目,在能说清楚设计要求的前提下。纸张用的越少越好。落实到单张图纸,那就是越丰满越好。
文字的整齐度、美观性也是很重要的。同在一个方向,要摆齐,画图的时候辅助线拉好。无论是在模型还是在布局标注材料、尺寸。字高一定要比例系数算好,并且保证同样大。最受不了,一张纸上标的字一会大、一会小。
二、线型
线型就是打出来的图粗和细,我们先放一张图看下线宽设置。

这张图的线宽设置的就很好,好在哪?
楼板线设置的是很粗的,这是正确设置。防水层用PL线加粗,石材轮廓线用0.15(目测),其它填充线都是0.05、这样的线宽搭配看着舒服。主和次一目了然。

再来放大一点,看看线宽设置。

这是墙的剖面,最粗的是墙线,然后是石材线,最后是填充线。

这是挡水处,线宽设置的都很有逻辑。重要的粗,填充的细都是这个原则。
三、精细度把握
施工图要完全正确是一个无止境的话题,我们做项目都是商业图纸。图纸精细度把控就显得很重要。精细度决定出图的效率、项目的绘制成本等。一张图画对与画好是两种不同境界。每个人的职业态度职业精神各不同。同样的项目、同样的要求,同样的技术水平,但由不同的人来画,结果是各不同。
在我看来商业项目的绘制,重要的信息不能少,图纸的逻辑要清晰,很多需要现场来确定的信息,图纸里边就不要画了。隐蔽工程我们画图人员不用画的太细,交给现场来解决。但有些东西我们画图人员一定要标清楚。比如:材料名称、轮廓尺寸这个是要标完整,而且不能标错。

看这张图,饰面材料已经完整。需要表达尺寸的位置已经标了,这个就很不错。

这是一个踢脚线的剖面图。需要表达的尺寸、材料都有了,完美。
总结
把节点图的结构、尺寸、材料、施工做法都画对是最基本的。除了这些想要加分需要做到以下几点:
1、排版要美观,整张图视觉看着要有美感。上下左右能对齐的全对齐。让用图的人能感觉到画图人员是多么的走心。
2、线型设置一定要合理。主次关系要分明,虽是一张纸,但要看出立体效果。
3、规范要制定好,字高、标注样式、索引号、标题都要仔细思考不是随便画的。
4、比例要准,图号要准、图名要正正确。