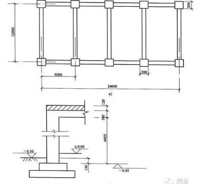
1.按图所示,计算柱脚手架及梁脚手架工程量及总工程量。

a)平面图 b)柱
【解】
(1)柱脚手架工程量:
每根柱的脚手架工程量=(柱断面周长+3.6m)柱高
=[(0.5+0.3)2+3.6](4.45+0.38+0.12)m2=25.74m2
10根柱的脚手架工程量=25.74l0m2=257.4m2
(2)梁脚手架工程量:
每根梁的脚手架工程量=设计室内地坪(或楼板上表面)至梁底的高度梁净长
6m开间粱脚手架工程量=(4.45+0.38-0.15)(6-0.5)8m2=205.92m2
12m跨度梁脚手架工程量=4.68(12-0.5)5m2=269.1m2
(3)假设该高层住宅楼为12层,现浇钢混凝土框架柱、梁按双排脚手架计算,若施工组织设计采用钢管架,则总工程量:
(257.4+205.92+269.1)m212=8789.04m2
综合基价:应执行48子目 2811.06元/100m2
综合基价合计=2811.068789.04/100=247065.188元
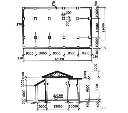
2.按图所示,计算外脚手架及里脚手架工程量及综合基价。

a)平面图b)剖面图
【解】
(1)外脚手架工程量:
[(38.5+0.24)2+(8+0.24)2](12+0.3)m2=1089.29m2
综合基价:应执行4-2子目 719.97元/100m2
综合基价合计=719.971089.29/100=7842.561元
(2)里脚手架工程量:
[(8-1.8-0.24)10+(3.5-0.24)8][(3-0.12)3+3]=997.32m2
综合基价:应执行4-20子目 147.98元/100m2
综合基价合计=147.98997.32/100=1475.834元
3.如图所示,求外墙脚手架工程量及综合基价。

【解】
外墙脚手架工程量={[13.2+11.4)2+0.244](4.4+0.3)+(7.83+0.24)1.6
+[(5.4+11.4)2+0.244]3.8)m2=404.90m2
综合基价:应执行4-1子目 526.79元/100m2
综合基价合计=526.79404.90/100=2132.972元
4.已知某砖砌围墙长120m,高2.0m,围墙厚度为240mm,围墙内外壁柱为370mm120mm,如图所示,计算围墙脚手架工程量。
【解】
围墙脚手架工程量=1202.0m2=240.00m2
综合基价:应执行4-1子目 526.79元/100m2
综合基价合计=526.79240/100=1264.296元

【解】
工程量=(3.34+0.24+6+0.24)(4+0.5)=88.56m2
应执行41子目, 526.79元/100m2
综合基价合计=526.792388.56/100=466.525元
6.如图所示高低联跨的单层工业厂房,计算该建筑物的脚手架综合基价。
【解】
边跨坡屋面建筑面积F=45.5(10+0.3-0.3)m2=455.00m2
边跨平均高度h=(6+0.5+32)m=8m,增加层(86)m=2m计2层
套定额4-1子目,综合基价:(639.37+90.552)元/100m2=820.47元/100m2
定额直接费=455/100820.47元=3733.14元
边跨平屋面建筑面积=455.00 m2
高度=(9.0+0.5)m=9.5m,增加层(9.56)m=3.5m计3层
套定额(同上),基价为(639.37+90.553)元/100m2=911.02元/100m2
定额直接费=455.00100911.02元=4145.14元
中跨建筑面积=(45.0+0.5)(18+0.6)m2=846.30m2
平均高度=(10+32+0.5)m=12m,增加层(126)m=6m计6层。
套定额(同上),基价为:(639.37+90.556)元/100m2=1182.67元/100m2
定额直接费=(846.301001182.67)元=10008.94元
所以定额直接费合计:
(3733.14+4145.14+10008.94)元=17887.22元
边跨坡屋面建筑面积=45.5(10+18+10+0.32)=1756.30m2
工程量=【45.5+(10+0.3)2】(6+0.5+32)+【45.5+(10+0.3)2】(9+0.5)+18(10+0.5)2=1534.75m2
综合基价:应执行4-4子目 847.80元/100m2
综合基价合计=847.801534.75/100=13011.611元

7.如图所示多层建筑,计算其综合脚手架综合基价。
【解】
此建筑物技术层层高2.3m,应计算建筑面积。
建筑面积=[(3.66+7.2+0.24)(5.42+2.4+0.24)5+(4.5+0.3)1.83m
=1960.13m2
檐高为17m,综合基价:1109.91元/100m2
综合基价合计=1960.13i00708.61元=13889.68元
若该题中技术层层高改为1.8m,则不计算建筑面积,因而不计综合脚手架,但因1.8ml.2m,故需将该技术层计算单项脚手架费用;若技术层改为1.0m,则不计脚手架部分的费用。
套定额9-10,但基价为53.672元/l00m2=107.34元/l00m2
定额直接费=60010053.672元=644.04元
由于是多层建筑按照建筑规则,应分别计算:
多层工程量=[(3.6+7.2+0.24)+(5.4+2.4+5.4+0.24)2] (3.64+2.3+0.3)
+(3.66+0.24)3.6+(3.6+7.2+0.24)(3.63+2.3)=867.888m2
综合基价:应执行45子目 1109.91元/100m2
综合基价合计=1109.91867.888/100=9632.776元
单层工程量=[(1.8+0.12)2+7.2]3.6=39.744m2
综合基价:应执行41子目 526.79元/100m2
综合基价合计=526.7939.744/100=209.367元(www.guifan.net)
