一、计量与计价的关系
计价:所有实体工程和为完成工程所做的工作都应得到费用报酬。(预算)

计量:为方便和减少测量计算工作量、利用风险共担机制控制造价,以工程主要部分的数量作为费用结算依据,其余作为附属工作不予另行结算。(清单)
计价的不一定计量。
二、路基工程 一清单与定额的关系
清单:路基工程包括:清理与挖除、路基挖方、路基填方、特殊地区路基处理、排水设施、边坡防护、挡土墙、挂网坡面防护、预应力锚索及锚固板、抗滑桩、河床及护坡铺砌工程。
定额:路基工程包括:路基土、石方工程、排水工程、软基处理工程

二主线路基标准横断面

三场地清理
清理与掘除、挖除旧路面与地坪、拆除结构物
清理现场:横向、纵向、扣除
砍树、挖根:胸径375px、根径500px
挖除旧路面与地坪:面层平均厚度 30cm
拆除结构物:混凝土、钢筋混凝土和砖混砌体结构,以及面层平均厚度>750px的旧路面与地坪
房基按厚度分别在拆除地坪项目或者拆除结构物项目中计量。
手压井不计量。

横向:
对于挖式边沟,指公路两侧排水沟内侧上口之间的区域;
对于填式边沟,清表范围应计至护坡道的坡脚。(与边沟开挖不重复)
纵向:河塘、结构物(河沟塘+桥梁、通道、涵洞)以及需拆除的旧路面和结构物所占面积,应予扣除。
取土场:场地清理与拆除(包括临时工程)均应列入土方单价之内,不另计量。



四挖方路基
路基挖方、改河改渠改路挖方
开挖土石方:
断面挖方,含边沟、排水沟、截水沟
+换填土、低填与零填路段的开挖
土石分界:用不小于165kW(220匹马力)推土机、单齿松土器无法松动,须用爆破或用钢钎大锤或用气钻方法开挖的,以及体积大于或等于1m3的孤石为石方,余为土方。
边沟砌体断面、结构物基坑、卸载、施工台阶的开挖不计量
涵洞、通道地基处理中清淤、换填的开挖,在此节计量
五填方路基
路基计量总填方=
①路基断面方量
(不含台背回填土方量以及路床顶面以上土路肩和中央分隔带的土方量)
+②低填和零填路段开挖后回填方量
+③清淤换填土方量
+④桥梁锥坡填土
+⑤清表土方补偿
+⑥填前压实土方补偿
+⑦软土沉降土方补偿
- ⑧软基处理中砂(碎石)垫层体积方量
- ⑨小型构造物体积方量

上图中清表土方补偿 、填前压实土方补偿 、软土沉降土方补偿的边界及厚度均为示意。

软基处理砂(碎石)垫层示意图

台背回填
六土石方计算和调配
(1)除定额中了另有说明者外,土方挖方按天然密实体积计算,填方按压实(夯实)后体积计算;石方爆破按天然密实体积计算。当以填方压实体积为工程量时,采用以天然密实方为计量单位的定额时,所采用的定额应乘以表2-2中系数。

例某二级路路基工程挖方1600m3天然密实方(其中松土360m3,普通土710m3,硬土530m3)。填方数量为1200m3压实方。在该路段内可移挖作填土方可利用土方量为1000m3天然密实方(其中松土240m3,普通土540m3,硬土220m3)。远运利用方量为普通土350m3。求土石方工程量。
【知识点】
计价方=挖方+借方=挖方+(填方-利用方)
填方=本桩利用+远运利用+借方
挖方=本桩利用+远运利用+废方
路基土石方计算的方法
先采用积距法或坐标法分别计算每一设计横断面的填、挖面积,然后利用平均断面法或棱台体积法分别计算相邻断面间的填、挖体积数量,依次类推,可以计算出路线的土石方体积。
【解】
(1)挖方数量=1600m3天然密实方。
(2)借方数量。
本段可利用:

远运利用:

借方数量:1200-862.47-301.72=35.81m3压实方弃方数量:1600-1000=600m3天然密实方
三、特殊地基处理
抛石挤淤:挖、填分别计量
挖除换填:挖、填分别计量
预压和等超载预压:只计堆载土方
塑料排水板和袋装砂井:按设计长度计量,不含伸入垫层内长度
砂砾垫层:按铺筑经压实的体积
土工布、土工格栅:铺设净面积,不计搭接卷边
粉(湿)喷桩、碎石桩:按设计桩长;引孔
预应力管桩:管桩、承台砼、承台钢筋
换土法:用人工、机械或爆破方法将路基软土挖除、换填强度较高的粘性土或砂、砾石、碎石等渗水材料,从而改变基底土的性质。适用于软土层较薄、上部无硬土覆盖的情况。

反压护道:在路堤的两侧填筑适当高度与宽度的护道,在护道荷重作用下,形成反向力矩平衡路堤填土的滑动力矩,从而保证路堤稳定。
铺设土工织物:在路堤与基底间铺设一层或多层的土工聚合物,可以起到加筋、垫层和反滤等作用。


排水砂垫层:在路堤底部地面上铺设一层较薄的砂垫层,其作用为在软土顶面增加一个排水面。在填土过程中,土中渗出的水就可从垫层中排出,加速地基固结,提高软土强度,增强路基稳定。
塑料板排水法:将预制带状塑料板用插板机将其竖直插入土中,形成类似砂井的排水通道,再在地面施加荷载预压。使孔隙水沿塑料板的通道逸出,从而加固地基土的方法。

袋装砂井:在合成纤维编织袋内充填中、粗砂构成的砂袋,装入地基孔内,以加速地基排水固结。
抛石挤淤:通过向流塑状高灵敏度的淤泥表面大量抛填土石填料,依靠填料的自重,挤开淤泥,强制置换饱和软土地基的地基处理法。当软土的液性指数较大,水不易抽干时,可采用该的方法。

CFG桩:桩体中加入水泥和粉煤灰形成了高黏结强度的桩,改善了碎石桩的刚性,不仅能很好地发挥全桩的侧摩阻作用,也能很好地发挥其端阻作用,CGF桩和桩间土、垫层一起形成复合地基。
喷桩;利用水泥、石灰等材料作为固化剂的主剂,通过特制的搅拌机械就地将软土和固化剂强制搅拌。利用固化剂和软土之间产生的物理化学反应,使软土硬结成具有整体性、水稳性和一定强度的优质地基。
膨胀土改良:改变膨胀土的亲水性、热敏性和胀缩性的方法,包括机械改良法(又称夯实法)、物理改良法及化学改良法

设置护坡:包含骨架护坡、片石护坡、植被护坡、挡土墙护坡、水泥土护坡等。膨胀土边坡不宜采取单一的防护措施,且植被防护与工程防护相结合防护效果好。
抗滑桩加固:在路基两侧采用单排或双排预制桩,并在桩体间加设冠梁、横向支撑等多种结构措施,以增强路基整体性和抗滑稳定性,提高支挡效果。

重力式挡土墙:工程实践表明,膨胀土地区挡土墙的破坏模式通常在墙体上部被剪断,因此,膨胀土地区在设计路基挡土墙时,应考虑膨胀力的作用。
隔水墙:主要起隔水作用,防止水渗入地基土层,引起地基湿陷,为湿陷地基处理的一种辅助方法。

强夯:一般采用100~200KN重锤、10~20m落距夯实地基,可消除4~8米深度内黄土的湿陷,提高黄土地基的承载力。

换填(浅层处治):先将基底湿陷性黄土挖出,并用挖出的黄土与石灰拌匀,在最佳含水量时分层摊铺、压实至设计压实度。
四、路基防护 一护坡、挡土墙
满铺平面:
按防护面积以平方米计量(给面积或厚度)
如预制实心/空心六角块、浆砌片石、植草
不规则坡面:按圬工体积以立方米计量,如锥坡
拱形及方格骨架护坡:按圬工体积以立方米计量
挡土墙:按圬工体积以立方米计量
砂砾、碎石垫层、嵌缝材料、砂浆勾缝、滤水层、基础开挖和回填等均不计量
实体工程计量时按设计图纸所示尺寸计算面积或体积
河道防护与河流段路基防护



植物护坡示意图

GES生态带示意图

植物护坡示意图


五、路面工程
垫层、底基层、基层、面层及封层、透层、粘层
垫层、底基层、基层、面层:按设计图所示顶面尺寸
计算面积进行计量
封层、透层:按设计图所示尺寸计算面积进行计量
粘层:按设计图或技术规范(含施工指导意见)要求实施、监理工程师校准的粘层面积,以m2计量。
一水泥混凝土路面
普通水泥砼、钢筋水泥砼、连续配筋砼路面
普通水泥砼路面:按不同厚度的面积以平方米计量
钢筋水泥砼路面:砼按面积计,钢筋单独计量
连续配筋砼路面:砼按面积计,钢筋单独计量
拉杆、传力杆、接缝材料、补强角隅钢筋以及为传力杆和拉杆设置的架立钢筋,不计量。 (单列)
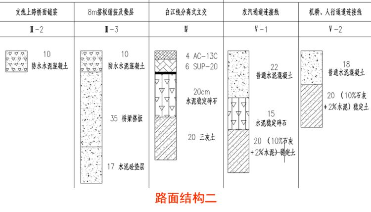
二路面结构


六、土路肩、中分带
培土路肩、中分带、加固路肩、路缘石
培土路肩、中分带填土:按体积以立方米计量
加固路肩:按路线方向每侧长度以米计量
路缘石:按路线方向每侧长度以米计量

七、路基路面排水 一路基排水
地面排水和地下排水的工程设施
地面排水:边沟、排水沟、截水沟、急流槽。
按设计水沟横断面面积乘以水沟长度与水沟圬工体积之和。
地下排水:盲沟和渗沟。
按设计设置的长度。
二路面及中分带排水
纵横向排水设施、拦水带、集水井、防水设施
路肩:盲沟、拦水带按路线方向长度计,横向不计;边坡内埋设横向排水管按长度计;防水土工布按面积计;集水井按个计;
中分带:盲沟按路线方向长度计;防水土工布按面积计;集水井按个计;横向排水管沿管长方向以米计。
三路基路面排水工程

横断面图

平面图

中分带构造

土路肩一

集水井

边沟全挖型

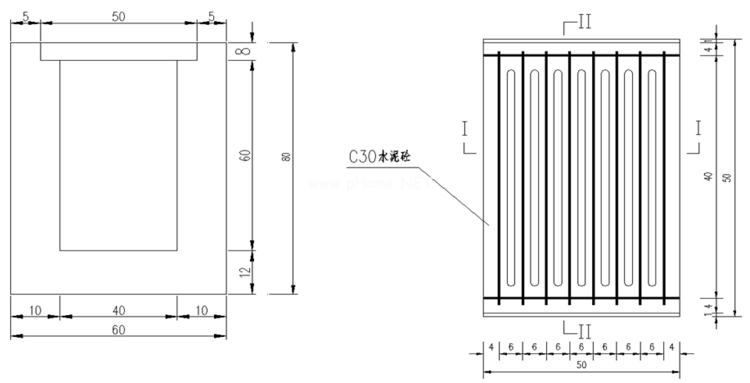
A型预制块大样

边沟 (半挖半填型)

B型预制块大样

边沟 (全填型)

C型预制块大样

矩形边沟横断面边沟盖板平面大样