那如何学习给排水算量呢?
首先要了解给排水算量的顺序
进户管管道计算阀门及卫生洁具管道支架管道及支架的防腐、保温管道消毒、冲洗
补充知识 室内给水工程施工顺序
进户管干管立管支管阀门水压试验管道冲洗消毒
1进户管
1、室内外管道界限划分
(1)入户处有阀门者以阀门为界(水表节点)。
(2)入户处无阀门者以建筑物外墙皮1.5m处为界。
2、防水套管
入户管在穿越地下室等外墙时,要设置防水套管,根据不同的防水要求分为刚性、柔性两种。刚性防水套管在一般防水要求时使用,柔性防水套管在防水要求较高时使用,如;水池壁、与水泵连接处。
(1)给排水定额单位:个
(2)规格:按被套管的管径确定。

图1-1
注意:
入户管为DN100,那么防水套管规格即为DN100的,该防水套管的规格虽是DN100,但其真正的管径不是DN100的,而应该是DN150,比被套管的管径大,否则穿不过去。DN100防水套管这一定额(6册)中已经按DN150的人工费、材料费、机械费计入了。
例题
某给排水工程给水入户管为De75,消防入户管为DN100 ,排水入户管为De160,在穿越建筑物外墙时设置防水套管
问:分别用什么规格的防水套管?
答:给水用DN80的防水套管1个。消防用DN100的防水套管1个。排水用DN150的防水套管3个。
2管道计算(干管、立管、支管)
1、给排水定额单位:10m
2、计算:按不同材质、不同管径分别累计长度。
准确计算管道长度的关键是找准管道变径点的位置,对于螺纹连接的管道来说,变径点发生在三通处。
注意:管道的弯头、阀门、穿楼板、穿墙等处一般不会是管道变径点的位置。
(1)水平管计算:应根据平面图上标注的尺寸计算,因为图纸设计原因安装工程施工图中很少有尺寸标注,或因计算太繁琐,实际工作中利用比例尺进行计量。将不同规格的管道分别计算,然后汇总。
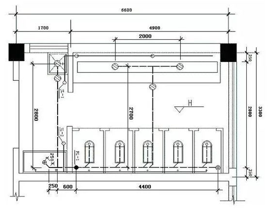
如下图1-2某卫生间的平面图中的排水系统,计算水平管道的长度时,参考图1-3中标注的管径,在平面图中用比例尺计量。
首先,查看施工图比例,并复核。
De110:从PL-1立管中心量至清扫口中心的位置。为:4.4m
De75:从排水横管上1#三通(De110De75)处量至小便槽处的2#三通及小便槽内两个De75的地漏间之长为:2.7m+2m=4.7m,再从PL-1立管中心量至3#三通处为:0.6m,两处之和为4.7m+0.6m=5.3m。
De50:从3#三通处量至最远的地漏处为:2.8m,从3#三通量至排水栓处为:0.5m,两处之和为:2.8m+0.5m=3.3m。

▲ 图1-2

▲ 图1-3
(2)垂直管计算:根据系统图标注的标高,进行计算。系统图上切忌用比例尺量计。
★如图1-4某卫生间的平面图中的给水系统,计算垂直管道的长度时,依据系统图中管标注的管径和标高进行计算。
JL-1中:De25=(2-0.8)+(2-0.9)=2.3 m
JL-2中:De25=(1.2-0.8)+(1.2-0.8)=0.8m
合计:De25:3.1m(工程量:0.31)

▲ 图1-4
3阀门及洁具
1、阀门
DN50mm时宜采用截止阀,多为螺纹连接;DN50mm时宜采用闸阀或蝶阀,多为法兰连接,经常起闭的管段上宜采用截止阀。
(1)定额单位;个
(2)规格:视其所在管道的管径大小而定,统计数量。
如:DN25的管子上的阀门一般为截止阀DN25;
DN100的管子上的阀门一般为闸阀DN100。
注意:De表示的是管道的外径,其上的阀门若不是塑料阀门时,按其公程直径的规格而定,一般De比DN大1#。
2 水表、减压阀、疏水器
(1)定额单位:组
每组定额中包含的管件(阀门等)不应重复计算。
(2)规格:视其所在管道的管径大小而定,统计数量。
例:常用阀门图例
