1、地基基础工程
1.1箱型基础外模板
一、施工要点
筏板基础底板施工时应设防水导墙,导墙高出底板上皮300 mm,导墙与地板一起浇筑。如果导墙模板采用单侧支模,外侧模板采用防水保护墙砖胎模,为保证砖胎模的稳定,应将导墙外侧回填或另加支撑加固,每隔4米砌筑一个砖垛,如下图所示:


效果图

1.2筏板上翻外梁墙基础模板
一、施工要点
筏板上翻外梁墙基础模板,一般采用12mm-15mm厚木(竹)低档次多层板事先拼装而成,外帮木方作横竖背楞,水平向间距30~40cm,竖楞间距100~150cm;当上翻梁墙模高50 cm时,按施工方案要求设置拉模杆,拉模杆上焊接40止水环;底部每隔100~150cm设置一道托模杆,托模杆由钢筋下脚料制作而成;竖向采用48短钢管或25钢筋作锁模架,间距120~150cm;外导墙按设计要求设置300宽止水钢板或止水槽等。
二、质量要求
模板刚度、强度满足施工方案要求,加固牢固,节点拼装合理,节约简捷,满足绿色施工要求。止水构造正确可靠。
三、做法详图

1.3电梯井及集水坑模板
一、施工要点
电梯井及集水坑模板多采用低档次木(竹)模整拼,可在外场整拼好,由塔吊直接吊入坑内。模板厚12~15mm,水平背楞为木方,竖向采用钢管;支撑体系视坑大小用钢管或木方;底模设置沙袋做抗浮装置,沙袋多寡按坑大小1.3~1.5倍配置。
二、质量要求
模板刚度、强度满足施工方案要求,加固牢固,节点拼装合理,节约简捷,满足绿色施工要求。四角宜采用型钢定型方式。
三、做法详图

2地下室墙体模板工程
2.1 地下室外墙木胶合板模板
一、施工工艺
地下室外墙木模板采用多层板或竹胶板加木方或钢管拼装,根据墙高场外拼装,直接调入现场,采用钢管斜支撑加固。
二、质量要求
模板刚度、强度满足施工方案要求,加固牢固,节点拼装合理,节约简捷,满足绿色施工要求。四角宜采用型钢定型方式。
三、做法详图


2.2地下室外墙单侧支模
一、施工要点
地下室外墙采用钢制定型模板,采用配套支腿进行支撑加固,外墙外侧采用不带支腿的钢模板,外侧模板通过对拉螺栓进行加固。
二、质量要求
模板刚度、强度满足施工方案要求,加固牢固,节点拼装合理,节约简捷,满足绿色施工要求。四角宜采用型钢定型方式。
三、做法详图

3、地下防水工程
3.1底板及外墙卷材防水
一、施工要点
底板垫层混凝土平面部位的卷材宜采用空铺法或点粘法,其他与混凝土结构相接触的部位应采用满粘法;卷材接缝必须粘贴严密,接缝口宽度不应小于10mm;在里面与平面的转角处,卷材的接缝应留在平面上,距立面不应小于600mm;阴阳角处找平层应做成圆弧或45。(135。)角,并应增加1层相同的卷材,宽度不宜小于500mm;防水基层必须平整、牢固,铺贴卷材前应使基层表面干燥,基层含水率小于9%,新作业面施工前先用简易法测基层含水率,即用1m2的卷材覆盖4h后察看凝结水情况,若无凝结水即可进行卷材的铺贴。
二、做法详图

3.2外墙水泥基渗透结晶型涂料防水
一、工程做法
施工前15min左右将施工面提前用干净水浇透;刮涂时应用力按刀,使刮刀与被涂面的倾斜角为50~60,按刀要用力均匀。涂层一般刮涂一至两遍,总厚度达到0.8mm。刮涂厚的防水涂层,必须在初凝前马上用油漆刷蘸水涂刷均匀;防水涂层施工完毕,必须采用干净的雾状水喷洒养护。
二、做法详图


3.3底板防水卷材错槎接缝
一、施工要点
两幅卷材的搭接长度,长边与短边均不应小于100mm。相邻两幅卷材接缝应错开1/3-1/2幅宽,上下两层卷材接缝应错开15001600mm,上下层卷材不得相互垂直铺贴。阴角及附加层做法同底板及地下室外墙防水。
二、质量要求
卷材搭接宽度允许偏差-10mm;搭接缝应粘贴或焊接牢固,密封严密,无褶皱、翘边和鼓泡。
三、做法详图


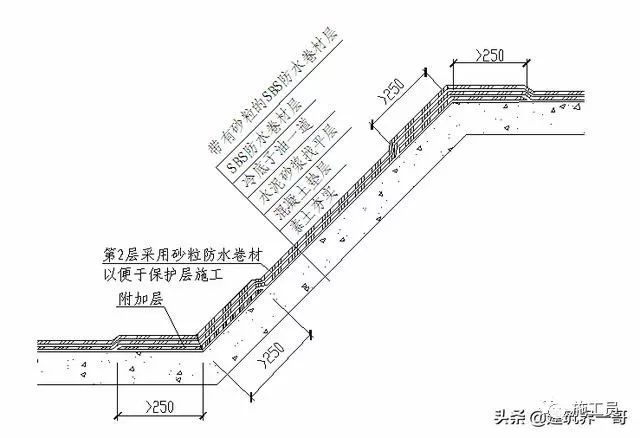
3.5、电梯井、集水坑防水
一、施工要点
电梯井、集水坑基层阴阳角必须做成50 mm的圆弧或45。(135。)八字角,阴阳角、立面内角、外角及施工缝处均做500 mm宽的附加层。电梯井、集水坑斜面的第二层防水卷材采用带有砂粒的,以便于防水保护层的施工。
二、做法详图


3.6螺栓孔眼处理
一、施工要点
拆模后将预埋的垫块取出,沿混凝土结构边缘将螺栓割断,对割断处进行涂刷防锈漆处理后,嵌入防水油膏(嵌入2/3),最后用聚合物砂浆将螺栓眼抹平。
二、质量要求
螺栓根低于墙面0~5mm,油漆不污染砼墙面,防水油膏螺栓孔2/3D,聚合物砂浆不低于M5.0,砂浆表面平整光滑,与墙面高低差不大于1mm。
三、做法详图

2、 主体结构工程
钢筋工程
2.1.1直螺纹丝头检查
一、施工要点
钢筋丝头螺纹中径尺寸的检验应符合通环规能顺利旋入整个有效扣长度。
二、质量要求
止环规旋入丝头的深度应小于等于3P(P为螺距)。
三、做法详图


2.1.2直螺纹丝头有效旋合长度检查
一、施工要点
加工人员逐个目测检查丝头的外观质量,每工作班内生产的丝头作为一批,用环规抽检10%丝头,当抽检不合格时,应用环规逐个检查该批全部丝头,剔除其中不合格丝头,并调整设备至加工的丝头合格为止。
二、质量要求
钢筋丝头螺纹的有效旋合长度用专用丝头卡板或专用卡尺板检测,允许偏差不大于1P。
三、做法详图


2.1.3翼墙端部水平钢筋锚固
一、施工要点
翼墙端部水平钢筋应伸直至对边且有15d直拐,施工中注意控制水平钢筋应伸直至对边竖筋内侧,转角墙外侧水平筋应连续通过转弯。
二、质量要求
墙主筋插筋与底板上下筋需妥善固定绑扎牢固,确保位置正确,混凝土浇筑应有专人检查修整。
三、做法详图


2.1.5转角墙端部水平钢筋锚固
一、施工要点
斜交墙端部水平钢筋应伸至对边且有15d直拐,施工中注意控制水平钢筋应伸直至对边竖筋内侧,转角墙外侧水平筋应连续通过转弯。
二、质量要求
墙主筋插筋与底板上下筋需妥善固定绑扎牢固,确保位置正确,混凝土浇筑应有专人检查修整。
三、做法详图


2.1.7墙体洞口钢筋
一、施工要点
洞口尺寸≧200mm时,洞口设附加筋,构造加筋、预埋件、电器线管、线盒、预应力筋及其配件等,位置准确,绑扎牢固,需焊接固定部位,不准咬伤受力钢筋,安装牢固,不得焊在主筋上,且附加钢筋不得焊接在受力筋上,而应绑扎在主筋上。
二、质量要求
预埋件中心线位置、水平高差应符合设计要求,混凝土浇筑应有专人检查修整。
做法详图


2.1.9穿梁管洞口钢筋
一、施工要点
当在基础承台梁上开洞时洞口尺寸Dh/5,连续开洞净距4D;当在框架梁上开洞时洞口尺寸Dh/5,且150mm,连续开洞3D。
二、质量要求
预留洞口中心线位置、水平高差应符合设计要求,混凝土浇筑应有专人检查修整。
三、做法详图


2.1.11主次梁钢筋放置顺序
一、施工要点
框架结构中,次梁上下主筋置于主梁上下主筋之上,框架连梁的上下主筋置于框架主梁的上下主筋之上
二、质量要求
钢筋型号长度应准确无误,钢筋需妥善固定绑扎牢固确保位置正确保护层厚度符合规范,混凝土浇筑应有专人检查修整。
做法详图


2.1.15箍筋取消原则
一、施工要点
当墙体水平钢筋向上排布时,在楼板内钢筋不取消。暗柱钢筋在连梁内取消。框架柱箍筋在梁内不取消,梁箍筋在柱内取消。
二、质量要求
钢筋型号数量位置符合设计要求,间距搭接及保护层厚度符合规范要求,混凝土浇筑应有专人检查修整。
三、做法详图:


2.1.17墙体竖向梯格筋
一、施工要点
竖向梯格筋用于控制混凝土的断面尺寸、控制钢筋的保护层、控制钢筋的排距、控制水平筋间距,可代替墙体竖向钢筋,但要比设计直径大一规格(例如12变为16)。竖向梯格筋起步筋距地50mm。
二、质量要求
钢筋型号数量位置符合设计要求,间距搭接及保护层厚度符合规范要求,混凝土浇筑应有专人检查修整。
三、做法详图

2.1.18墙体水平梯格筋
一、施工要点
工艺说明:墙体水平梯格筋,固定于墙体上口300~500mm处,用于控制墙体立筋间距及位置,可周转使用。
二、质量要求
钢筋型号数量位置符合设计要求,间距搭接及保护层厚度符合规范要求,混凝土浇筑应有专人检查修整。
做法详图


2.1.19定位箍筋框
一、施工要点
框架柱模板上口设置定位箍筋框,用于控制钢筋位移,定位箍分内控式和外控式两种,置于柱顶的定位箍可周转使用。
二、质量要求
钢筋型号数量位置符合设计要求,间距搭接及保护层厚度符合规范要求,混凝土浇筑应有专人检查修整。
三、做法详图

