一、脚手架类别
1、按脚手架的用途划分
1)操作(作业)脚手架
包括结构作业用脚手架和装饰作业脚手架
2)防护用脚手架
主要用于安全防护
3)承重、支撑用脚手架
主要用于模板支设
2、按脚手架的材质与规格划分
1)木、竹脚手架
2)钢管脚手架
3)门式组合脚手架
3、按脚手架的支固方式划分
1)落地式脚手架
搭设在地面、楼面、屋面或其他平台结构之上的脚手架
2)悬挑脚手架
采用悬挑方式搭设的脚手架,主要有在水平结构上设置悬挑梁搭设及竖向结构上设置三角桁架悬挑搭设两种。
3)悬吊脚手架(简称吊脚手架)
悬吊于悬挑梁或工程结构之下的脚手架。
当采用篮式作业时,称为吊篮
4)整体爬升脚手架(简称爬架)
二、脚手架材料要求
1、脚手架钢管宜采用48.33.6 钢管。每根钢管的最大质量不应大于25.8kg。钢管上严禁打孔(强条)
2、扣件在螺栓拧紧扭力矩达到65Nm 时,不得发生破坏。
3、可调托撑抗压承载力设计值不应小于40 kN,支托板厚不应小于5㎜。(强条)
4、扣件承载力设计值(KN)

2落地式脚手架
单排脚手架搭设高度不应超过24m;双排脚手架搭设高度不宜超过50m,高度超过50m 的双排脚手架,应采用分段搭设等措施。
根据建质[2009]87号文规定,搭设高度24m及以上的落地式钢管脚手架工程即为危险性较大分部分项工程;搭设高度50m及以上落地式钢管脚手架工程即为超过一定规模的危险性较大分部分项工程,需要组织专家论证。
一、纵向水平杆
1 、纵向水平杆应设置在立杆内侧,单根杆长度不应小于3 跨;
2、 纵向水平杆接长应采用对接扣件连接或搭接。
1)两根相邻纵向水平杆的接头不应设置在同步或同跨内;不同步或不同跨两个相邻接头在水平方向错开的距离不应小于500mm;各接头中心至最近主节点的距离不应大于纵距的1/3。
2) 搭接长度不应小于1m,应等间距设置3 个旋转扣件固定;端部扣件盖板边缘至搭接纵向水平杆杆端的距离不应小于100mm。


二、横向水平杆
1)主节点处必须设置一根横向水平杆,用直角扣件扣接且严禁拆除。(强条)
2)作业层上非主节点处的横向水平杆,宜根据支承脚手板的需要等间距设置,最大间距不应大于纵距的1/2;

主节点处两个直角扣件的中心距不应大于150mm。
三、立杆
1)每根立杆底部应设置底座或垫板。


2)脚手架必须设置纵、横向扫地杆。

纵向扫地杆应采用直角扣件固定在距底座上皮不大于200mm处的立杆上。

横向扫地杆亦应采用直角扣件固定在紧靠纵向扫地杆下方的立杆上。
3)脚手架立杆基础不在同一高度上时,必须将高处的纵向扫地杆向低处延长两跨与立杆固定,高低差不应大于1m。靠边坡上方的立杆轴线到边坡的距离不应小于500mm(强条)。

4) 脚手架底层步距均不应大于2m。
5)脚手架立杆接长除顶层顶步外,其余各层各步接头必须采用对接扣件连接。(强条)
立杆上的对接扣件应交错布置;两根相邻立杆的接头不应设置在同步内;
同步隔一根立杆的两个相隔接头在高度方向错开的距离不宜小于500mm;
各接头中心至主节点的距离不宜大于步距的1/3。
立杆采用搭接接长时,搭接长度不应小于1m ,并应采用不少于2 个旋转扣件固定。端部扣件盖板的边缘至杆端距离不应小于100mm。
6)脚手架立杆顶端栏杆宜高出女儿墙上端1m,宜高出檐口上端1.5m。
四、连墙件
1)脚手架连墙件数量的设置除应满足计算要求外,还应符合下表的规定。

2)连墙件的设置应符合下列规定:
应靠近主节点设置,偏离主节点的距离不应大于300mm;
应从底层第一步纵向水平杆处开始设置,当该处设置有困难时,应采用其它可靠措施固定;
应优先采用菱形布置,或采用方形、矩形布置。

3)开口型脚手架的两端必须设置连墙件,连墙件的垂直间距不应大于建筑物的层高,并且不应大于4m。(强条)
4)连墙件中的连墙杆应呈水平设置,当不能水平设置时,应向脚手架一端下斜连接。

5)连墙件必须采用可承受拉力和压力的构造。
对高度24m以下的双排脚手架宜采用刚性连墙件,亦可采用拉筋和顶撑配合使用的附墙连接方式。严禁使用仅有拉筋的柔性连墙杆。
对高度24m 以上的双排脚手架,应采用刚性连墙件与建筑物连接。

6、抛撑
1)当脚手架下部暂不能设连墙杆时可搭设抛撑。
2)抛撑应采用通长杆件与脚手架可靠连接,与地面的倾角应在45~60之间;
3)连接点中心至主节点的距离不应大于300mm。
4)抛撑应在连墙杆搭设后方可拆除。


五、剪刀撑
1、双排脚手架应设置剪刀撑与横向斜撑,单排脚手架应设置剪刀撑。剪刀撑设置应符合下表规定:

每道剪刀撑宽度不应小于4跨,且不应小于6m;

斜杆与地面的倾角宜在45~60之间。

2、高度在24m 及以上的双排脚手架应在外侧全立面连续设置剪刀撑;高度在24m以下的单、双排脚手架,均必须在外侧两端、转角及中间间隔不超过15m的立面上,各设置一道剪刀撑,并应由底至顶连续设置。

3、剪刀撑斜杆的接长宜采用搭接,搭接长度不应小于1m,应采用不少于2个旋转扣件固定,端部扣件盖板的边缘至杆端距离不应小于100mm。
4、剪刀撑斜杆应用旋转扣件固定在与之相交的横向水平杆的伸出端或立杆上,旋转扣件中心线至主节点的距离不宜大于150mm。

六、横向斜撑
1)横向斜撑应在同一节间,由底至顶层呈之字型连续布置,斜撑的固定宜采用旋转扣件固定在与之相交的横向水平杆的伸出端上,旋转扣件中心线至主节点的距离不宜大于150mm。
2)开口型双排脚手架的两端均必须设置横向斜撑(强条)
3)高度在24m以下的封闭型双排脚手架可不设横向斜杆,高度在24m以上的封闭型脚手架,除拐角应设置横向斜杆外,中间应每隔6跨设置一道。
七、斜道
1、人行并兼做材料运输的斜道的形式宜按下列要求确定:
高度不大于6m的脚手架,宜采用一字型斜道;
高度大于6m的脚手架,宜采用之字型斜道。


2、斜道的构造应符合下列规定:
斜道宜附着外脚手架或建筑物设置;
运料斜道宽度不宜小于1.5m,坡度宜采用1∶6,人行斜道宽度不宜小于1m,坡度宜采用1∶3;
拐弯处应设置平台,其宽度不应小于斜道宽度;
斜道两侧及平台外围均应设置栏杆及挡脚板,栏杆高度应为1.2m,挡脚板高度不应小于180mm;
运料斜道两侧、平台外围和端部均应设置连墙杆;每两步应加设水平斜杆及剪刀撑和横向斜杆。

3、斜道脚手板构造应符合下列规定:
脚手板横铺时,应在横向水平杆下增设纵向支托杆,纵向支托杆间距不应大于500mm;
脚手板顺铺时,接头宜采用搭接;下面的板头应压住上面的板头,板头的凸棱外宜采用三角木填顺;
人行斜道和运料斜道的脚手板上应每隔250~300mm设置一根防滑木条,木条厚度宜为20~30mm。

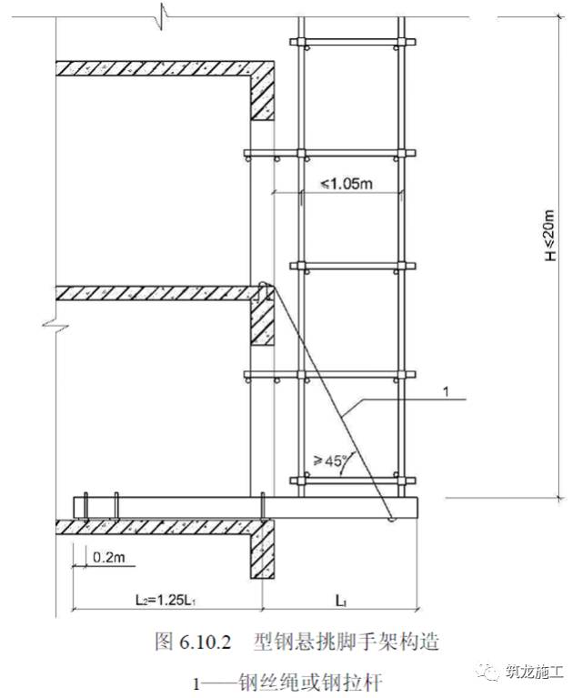
3悬挑式脚手架
常用悬挑式脚手架有型钢悬挑脚手架及三角桁架支撑悬挑脚手架,本文主要介绍型钢悬挑脚手架。根据建质[2009]87号文规定,搭设高度20m以下悬挑脚手架即为危险性较大分部分项工程,搭设高度20m及以上悬挑脚手架即为超过一定规模的危险性较大分部分项工程,需要组织专家论证。
落地式脚手架中各类杆件构造要求同样适用于悬挑式脚手架,当与悬挑式脚手架相关要求冲突时,以悬挑式脚手架要求为准。
1、一次悬挑脚手架高度不宜超过20m。
2、型钢悬挑梁宜采用双轴对称截面的型钢。如工字钢,工字钢结构性能可靠,双轴对称截面,受力稳定性好,相较其他型钢在选购、设计、施工时更为方便。
3、悬挑钢梁型号及锚固件应按设计确定,钢梁截面高度不应小于160mm。悬挑梁尾端应在两处及以上固定于钢筋混凝土梁板结构上。锚固型钢悬挑梁的U 型钢筋拉环或锚固螺栓直径不宜小于16 ㎜。
4、悬挑钢梁悬挑端与锚固端长度比应为1:1.25,且锚固端伸出锚固螺栓长度不应小于200mm。

5、用于锚固的U 型钢筋拉环或螺栓应采用冷弯成型。U 型钢筋拉环、锚固螺栓与型钢间隙应用钢楔或硬木楔楔紧。
6、每个型钢悬挑梁外端宜设置钢丝绳或钢拉杆与上一层建筑结构斜拉结。钢丝绳、钢拉杆不参与悬挑钢梁受力计算;钢丝绳与建筑结构拉结的吊环应使用HPB235 级钢筋,其直径不宜小于20 ㎜。
7、当型钢悬挑梁与建筑结构采用螺栓钢压板连接固定时,钢压板尺寸不应小于100mm10mm(宽厚);当采用螺栓角钢压板连接时,角钢的规格不应小于63mm63mm6mm。


8、型钢悬挑梁悬挑端应设置能使脚手架立杆与钢梁可靠固定的定位点,定位点离悬挑梁端部不应小于100mm。
9、锚固位置设置在楼板上时,楼板的厚度不宜小于120mm。如果楼板的厚度小于120mm 应采取加固措施。
10、悬挑梁间距应按悬挑架架体立杆纵距设置,每一纵距设置一根。

11、悬挑架的外立面剪刀撑应自下而上连续设置。
12、锚固型钢的主体结构混凝土强度等级不得低于C20。
13、悬挑钢梁悬挑长度一般情况下不超过2m能满足施工需要,但在工程结构局部有可能满足不了使用要求,局部悬挑长度不宜超过3米。
14、悬挑钢梁支承点应设置在结构梁上,不得设置在外伸阳台上或悬挑板上,否则应采取加固措施。
15、在建筑结构角部,钢梁宜扇形布置;如果结构角部钢筋较多不能留洞,可采用设置预埋件焊接型钢三角架等措施。

4脚手架施工
一、施工准备
1、单位工程负责人应按施工组织设计中有关脚手架的要求,向架设和使用人员进行技术交底。
2、应按规定和施工组织设计的要求对钢管、扣件、脚手板等进行检查验收,不合格产品不得使用。
3、经检验合格的构配件应按品种、规格分类、堆放整齐、平稳,堆放场地不得有积水。
4、应清除搭设场地杂物,平整搭设场地,并使排水畅通。
5、当脚手架基础下有设备基础、管沟时,在脚手架使用过程中不应开挖,否则必须采取加固措施。
二、脚手架地基与基础
1、脚手架地基与基础施工,必须根据脚手架搭设高度、搭设场地土质情况与现行国家标准《地基与基础工程施工及验收规范》(GBJ 202)的有关规定进行。
2、脚手架底座地面标高宜高于自然地坪50mm。
3、脚手架基础经验收合格后,应按施工组织设计的要求放线定位。
三、搭设
1、脚手架必须配合施工进度搭设,一次搭设高度不应超过相邻连墙杆以上二步。
2、每搭设完成一步脚手架后,应按规范规定校正步距、纵距、横距及立杆的垂直度。
3、底座安放应符合下列规定:

底座、垫板均应准确地放在定位线上

垫板宜采用长度不少于2跨、厚度不小于50mm的木垫板,也可采用槽钢。
4、立杆搭设应符合下列规定:
严禁将外径48mm与51mm的钢管混合使用;
相邻立杆的对接扣件不得在同一高度内,错开距离应符合规定;
开始搭设立杆时,应每隔6跨设置一根抛杆,直至连墙杆安装稳定后,方可根据情况拆除;
当搭至有连墙杆的构造点时,在搭设完该处的立杆、纵向水平杆、横向水平杆后,应立即设置连墙杆;
5、纵向水平杆在封闭型脚手架的同一步中,纵向水平杆应四周交圈,用直角扣件与内外角部立杆固定。
6、双排脚手架横向水平杆的靠墙一端至墙装饰面的距离不宜大于100mm。
7、纵向、横向扫地杆搭设应符合规范规定。
8、当脚手架施工层高出连墙杆二步时,应采取临时稳定措施,直到上一层连墙杆搭设完后方可根据情况拆除。
9、剪刀撑、横向斜杆应随立杆、纵向和横向水平杆等同步搭设,各底层斜杆下端均必须支撑在垫块或垫板上。
10、扣件安装应符合下列规定:
扣件规格必须与钢管外径相同;
螺栓扭紧力矩不应小于40NM,且不应大于65NM;
在主节点处固定横向水平杆、纵向水平杆、剪刀撑、横向斜杆等用的直角扣件、旋转扣件的中心点的相互距离不应大于150mm;
对接扣件开口应朝上或朝内;
各杆件端头伸出扣件盖板边缘的长度不应小于100mm。

11、作业层、斜道的栏杆和挡脚板的搭设应符合下列规定:
栏杆和挡脚板均应搭设在外立杆的内侧;
上栏杆上皮高度应为1.2m;
挡脚板高度不应小于180mm;
中栏杆应居中设置。

12、脚手板的铺设应符合下列规定:
脚手板应铺满、铺稳,离开墙面120~150mm;
脚手板探头应用直径3.2mm镀锌钢丝固定在支撑杆件上;
在拐角、斜道平台口处的脚手板,应与横向水平杆可靠连接,防止滑动;
自顶层作业层的脚手板往下计,宜每隔12m满铺一层脚手板。
四、拆除
1、拆除脚手架前的准备工作:
应全面检查脚手架的扣件连接、连墙杆、支撑体系等是否符合构造要求;
应根据检查结果补充完善施工组织设计中的拆除顺序和措施,经主管部门批准后方可实施;
应由单位工程负责人进行拆除安全技术交底;
应清除脚手架上杂物及地面保障物。
2、拆除脚手架时,应符合下列规定:
拆除作业必须由上而下逐层进行,严禁上下同时作业;连墙杆必须随脚手架逐层拆除,严禁将连墙杆整层或数层查处后再拆除脚手架;分段拆除高差不应大于2步,如高差大于2步,应增设连墙杆加固;(强条)
当脚手架拆至下部最后一根长立杆的高度时,应先在适当位置搭设临时抛撑加固后,再拆除连墙杆;
3、卸料时应符合下列规定:
各构件配件严禁抛掷至地面(强条)。
运至地面的构配件应及时进行检查、修整与保养,并按品种、规格随时存放。

