细节可以体现在很多地方,最明显的就是反应在图纸上。图纸是设计师的语言,一份高质量的图纸就如同一篇好文章,简洁流畅。从彭一刚老先生的手稿中,我们可以深刻地感受到老先生的设计功底,同时还能清晰地明白图纸中表达的内容。

尽管现在我们已经不需要手绘出图,全部采用计算机制图。然而,图纸中的每一个细节,小到尺寸标注、文字大小,甚至是一个图签,都能反应出一个设计人甚至是一个设计团队是否足够用心和负责。
而一份粗糙赶工完成的图纸,则有可能让他人质疑设计团队是否足够专业。甚至个别项目还因为设计图纸中表达的纰漏,引发了相关的法律纠纷。
那怎样才算是一份好的施工图纸呢?图面清晰、简明,符合设计、施工、存档的要求,适应工程建设的需要。
01绘制精度、图面效果
建筑制图是通过符号来表达构造。
关于制图的规范有《总图制图标准》、《建筑制图统一标准》和《房屋建筑制图统一标准》。
在实际的项目中,我们往往会因为各种原因忽视了一些图纸中的表达细节。
(1)总图
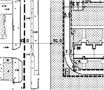
在总图设计中,容易出现不规范的地方,一是过多地表达了顶部可见部分,导致变成了屋顶平面图,二是线型,三是图例。
a、线型


以下这张图中用地红线、建筑红线还有地下建筑轮廓线用了同样的线型,尽管在线型粗细上有分别,但是还是会造成混淆,不符合制图规范。

b、标注
《总图制图标准》中要求总图中的坐标、标高、距离以米为单位。坐标以小数点标注三位,不足以0补齐;标高、距离以小数点后两位数标注,不足以0补齐。在实际项目中,很多设计师都会把标注标注成小数点后三位。
(2)平面图
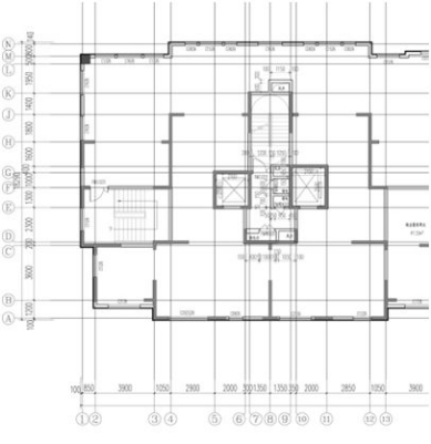
平面图是建筑专业施工图中最重要、最基本的图纸,同时也是其他工种进行相关设计与制图的主要依据。
a、轴线、轴号
在平面图的绘制中,往往容易忽视的是轴线的编号,还有就是需要标注的尺寸等。绘制平面图,凡是结构承重并做有基础的墙、柱均应编轴线及轴线号,轴线编号的一般规则可参照《房屋制图统一标准》。

b、表达不规范
一些设计公司中会在平面中表达窗的开启扇和开启方向,而这其实并不是一种规范的表达方法。

(3)剖面图
剖面图用以表示房屋内部的结构或构造形式、分层情况和各部位的联系、材料及其高度等,是与平、立面图相互配合的不可缺少的重要图样之一。
剖面图除应画出剖切面切到部分的图形外,还应画出沿投射方向看到的部分。在剖面图中,有些设计图纸会将屋面表达得很细致,但其实是没有必要这样表达的,因为还会有屋面详图详细表达屋面的做法。而需要表达的楼地面标高、门窗洞口标高却没有表达。

02图纸深度
在不同的设计阶段,图纸表达不同的深度。具体的文件编制深度,有以下相关的规范要求。
《建筑工程设计文件编制深度规定》
国标05J804《民用建筑工程建筑总平面设计深度图样》
国标09J802《民用建筑工程初步设计深度图样》
国标09J801《民用建筑工程施工图设计深度图样》
国标2009JSCS《全国民用建筑工程设计技术措施》(规划建筑)
05SJ806民用建筑工程设计互题资料深度及图样建筑专业
(1)方案阶段
方案设计文件,应满足编制初步设计文件的需要,应满足方案审批或报批的需要。除了考虑建筑的造型和功能要求外,还需要考虑管井、设备用房和疏散楼梯。这样会在很大程度上减少进入下一个阶段的图纸大改动。
(2)扩初
主要是进行技术设计,确定所有的设备用房和管井确定,以及主要管线的标高。扩初除了完成图纸。涉及建筑节能、环保、绿色建筑、人防、装配式建筑等,其设计说明应有相应的专项内容。
(3)施工图设计
应满足设备材料采购、非标准设备制作和施工的需要。对于涉及建筑节能设计的专业,其设计说明应有建筑节能设计的专项内容;涉及装配式建筑设计的专业,其设计说明及图纸应有装配式建筑专项设计内容。