一、施工准备
1.1 材料准备
材料:采用920mm1920mm18mm竹胶合板8000m2,1220mm2440mm15mm木胶合模板8000m2,背枋采用6080杉木枋,使用前全部须过刨。14对拉螺栓、蝴蝶扣 (配套螺帽)、483.5钢管,扣件(十字扣、活动扣、接头扣)、脱模剂(水剂)。100mm100mm木枋、扣件、8#槽钢、12加工成型的螺杆、铅丝等。每栋楼顶板配置3套,墙板2套,使用率必须周转10次。
1.2 机具准备:
电锯、手电钻、扳手、钳子、吊线锤等。
二、施工部署
1、作业部署
材料准备模板的配置柱子模板的安装柱子混凝土浇筑梁底模及主梁一边侧模的安装梁钢筋绑扎梁侧模安装平板模板安装梁板混凝土浇筑柱模及梁侧模拆除梁、板底模拆除
2 、劳动力组织
根据本工程的模板工程量,组织三个70人的具有很高技术水平的木工班组进场,理论上两个作业班组独立作业,划分责任区,但三个作业班组之间亦可以相互配合共同施工一个区段,施工技术人员可以根据现场的施工进度和劳动力需要具体调配。
3、特殊要求,按照碧桂园及我公司的两防规定
卫生间翻边,首先按结构图上有的施工,结构图上没有的按建筑图施工,建筑图没有的按照必须高于结构板面270 mm,门坎处高于结构板面80mm。所有大于100宽的外挑结构生根处,有砌体结构的必须上翻270mm高;高低跨相连处,高跨上翻500mm。所有翻边必须与主体结构同时一次浇筑成型。
4、施工技术措施
墙柱根端部必须留置清扫口,以便清理垃圾,楼梯上三步底模板根部必须留置10公分宽活动拉板,在上层支模时清理垃圾用。木工模板完成后必须以书面形式由质检员交予钢筋班组。特殊部位由现场施工员负责协调送上梁底立即绑扎钢筋,再封两边模。
支撑体系搭设要求
(一)扫地杆:
每根立柱底部应设置垫板,垫板厚度不得小于50mm。立杆底部200mm处设置纵横向扫地杆。


(二)顶托:
钢管立柱顶部应设可调支托,U 型支托与楞梁两侧间如有间隙,必须楔紧。可调支托螺杆伸出长度不得大于200mm,插入立杆内的长度不得小于150mm。立杆伸出顶层水平杆中心线至支撑点的长度不应超过500mm。




(三)封顶杆:
可调支托底部的立柱顶端应沿纵横向设置一道水平拉杆。立杆伸出顶层水平杆中心线至支撑点的长度不应超过500mm。

(四)立杆、水平杆的连接:
相邻两立柱的对接接头不得在同步内,且对接接头沿竖向错开的距离不宜小于500mm,各接头中心距主节点不宜大于步距的1/3 。


(五)剪刀撑:
剪刀撑应采用搭接,搭接长度不得小于500mm,用两个旋转扣件分别在离杆端不小于100mm处进行固定。





梁板模板要求
送梁底时明确开间尺寸,并按轴线垂吊,梁上口应小于5mm,梁底支撑间距为800mm,梁帮超过350㎜,梁中间应穿螺栓加固(每米一设)。
楼板顶撑间距(大龙骨)12001200,顶方(小龙骨)间距200mm。
顶撑距梁边不得超过250mm。
支设阳台、空调板、悬挑板时,按放线员已给轴线吊好,根据图纸上几何尺寸及标高支设,用水平尺找平。
下沉间吊帮应垫好铁马凳,防止模板下沉造成楼板厚度不够。
模板拼缝处大于2mm的间隙,要求使用纸胶带粘贴严密。
木方使用时,均采用立方,即木方窄面作为与模板的接触面。
车库顶板次龙骨木方间距不得大于150mm。主楼楼板如使用机接木方,间距也不得大于150mm。
梁、板模板中间部位需起拱,起拱高度按1-3。
墙体模板要求
墙体下面第一个螺栓距已浇筑砼不得超过150mm,螺栓间距不得超过450mm,顶部距模板上皮不得超过300mm。
主龙骨:第一道距底面不得超过150mm,中间间距不得超过450mm,顶部距模板上皮不得超过300mm。
小模板不得拼装于边缘处。
车库剪力墙300段应采用止水螺栓加固,支设上部剪力墙时需利用该部位的止水螺栓进行加固。
楼梯

外墙模板

楼梯模板
先立平台梁平台板的模板以及梯基的侧板。在平台梁及梯基上钉托木,将搁栅钉在托木上,搁栅的 间距为450mm,断面为6080。搁栅下立牵杆及牵杆撑,牵杆断面为50150,牵杆撑的 间距为1.2米,其下垫通长垫板。牵杆应与搁栅相垂直,牵杆撑之间应有拉杆相互连结,然后在搁栅上铺梯段底模,底板厚为25mm,底板纵向应与搁栅相垂直,在底板上画梯段宽度线,依线在两侧立外帮板,外帮板可用夹木或斜撑固定。再在两侧及中间立反三角木,反三角木的两端应与平台梁及梯基的侧板钉牢,然后在反三角木与歪帮板之间逐块钉踏步侧板,踏步侧板一头钉在外帮板的木档上,另一头钉在反三角木的侧面上,如果梯段较宽,应在梯段中间再设反三角木。
清扫口,与留在上三步根部,设置活动抽拉板,以便下次浇筑砼时清理垃圾。

翻 边
1、卫生间、厨房、平台、阳台等受水或非腐蚀性液体经常浸湿的楼地面,楼板四周除门洞及栏杆外均做
2楼层标高(建筑标高)起150高混凝土翻边。且楼面防水层与墙面防水层在翻边范围内搭接,形成完整防水体系。3、厨房排烟道尺寸为600X400,卫生间排气道尺寸为430X300,卫生间翻边300高,厨房翻边高度同上,宽度为100mm。翻边外边缘与烟道外边缘平齐。
翻边钢筋按构造要求预埋钢筋:倒箍6@300;两顶角210。如植筋需满足深度要求(10d与100mm取大值)
砼翻边施工定位、弹线要准确,以免与上部砌体偏移;
翻边混凝土模板严禁使用铁丝穿过模板加固内撑不得采用木顶棍。
所有翻边必须一次浇筑,不得二次翻边。
翻边底部需进行凿毛处理


为保证后浇带部位施工质量,后浇带部位梁板模板应单独搭设,与主体结构支架分离,在主体结构支架拆除时保留,在后浇带施工完毕强度满足要求后再拆除,避免造成悬臂构件的破坏。
脚手架支撑体系单独搭设,用短管与其他部位脚手架支架相连接,形成一个整体脚手架支架支撑体系,待其他部位脚手架支架支撑体系拆除时,拆除连接短管后,该部位脚手架支撑体系能够独立保留。

梁底模板拆除梁底顶撑顶板模板拆除顶板顶撑
拆除此部分满堂支撑脚手架时,后浇带处支撑必须随时拆除随时回顶。
在拆除和回顶过程中需要注意不能大面积拆模,一般一跨一跨循环进行,严禁梁、板同时拆除后再回顶。
后浇带二次回顶支撑拆除前,后浇带混凝土以同条件的试块强度必须达到100%。
事后回顶施工要求
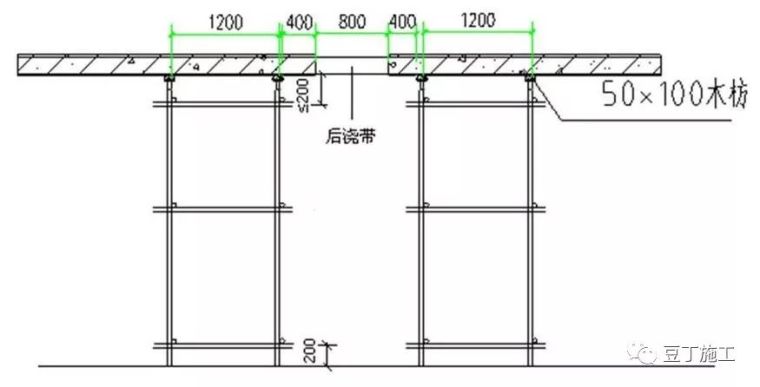
后浇带端的梁、板回顶均采用扣件式钢管脚手架支撑,材料选用50100mm木枋通设在梁板底,支架系统采用钢管搭设双排支撑架体,架体钢管顶端放置U型可调顶托,木方架设在U型可调顶托上,调节U型顶托,将木枋与梁底、板底顶撑牢固,U型可调顶托使用长度200mm。
双排支撑架体纵向间距1200mm,横向间距1000mm,根据层高设水平杆。后浇带两侧双排架每隔四个纵距设连接杆一道。(纵距、横距应经过受力计算)
搭设双排钢管架顶撑时,分别在后浇带两侧预留400mm支模空间;梁底位置另行搭设两根钢管顶撑,搭设横距与板底钢管相同。


质量数据要求
轴线位置:5mm。
底模上表面标高:5mm。
截面尺寸:柱墙梁:+4mm,-5mm。
层高垂直度:5mm。
相邻两板表面高低差:2mm。
表面平整度:5mm。
模板拆除
侧模拆除时间:不得少于24小时,以砼浇筑完成时间算起,必须保证足够的强度,保证不得缺棱掉角。
梁板模板拆除需隔层拆除,且不少于12天。
悬挑构件必须达到100%强度方可拆除
拆除完成后,不得集中堆放,并归方码垛。
模板涨模处理
砼浇筑时,如发现涨模,不得立即处理,带拆模时再进行剔凿。
涨模较小的部位,10-20mm以内的,需人工剔凿,不得采用电镐剔凿,剔凿后不露筋,可不进行抹灰修补。
木工施工安全
施工现场严禁动火,动火必须开动火证。
进入实用现场必须佩带安全帽,高处作业需悬挂安全带。
材料吊运时,不得采用单根钢丝绳吊运。
现场大量存在的习惯性安全隐患
习惯性安全隐患就是长期存在于施管人员之中的、已变成习惯性的做法、习以为常、熟识无睹的生产(施工)安全隐患。例如:
1、不编制方案,任由工人凭经验搭设。
2、按一般满堂脚手架做法搭设高大支架。
3、不对进场材料进行检查验收。
4、来者不拒,使用不合格、有变形和缺陷的材料。
5、不设扫地杆或设置过高。
6、不控制立杆的伸出长度。
7、不控制可调支座丝杆的直径和工作长度。
8、立杆采用搭接接长。
9、临时加设悬空(连在横杆上)支顶立杆。
10、横杆直接承传重型梁板荷载。