1、骨料中含过量杂质事故案例

事故及原因分析如下:
屋面局部倒塌后曾对设计进行审查,未发现任何问题。在对施工方面进行审查中发现以下问题:
1)进深梁设计时为C20混凝土,施工时未留试块,事后鉴定其强度等级只是C7.5左右。在梁的断口处可清楚地看出沙石未洗净,骨料中混有鸽蛋大小的黏土块、石灰颗粒和树叶等杂质。
2)混凝土采用的水泥是当地生产的400号普通硅酸盐水泥,后经检验只达到350号,施工时当作400号水泥配制混凝土,导致混凝土的强度受到一定影响。
3)在进深梁断口处上发现偏在一侧,梁的受拉1/3宽度内几乎没有钢筋,这种主筋布置使梁在屋盖荷载作用下处于弯、剪、扭受力状态,使梁的支承处作用有扭力矩。
4)对墙体进行检查,未发现有质量问题
综合以上施工问题,可以认为进深梁的断裂主要由于该梁受有扭矩和剪力产生的较大剪应力,而梁的混凝土强度又过低,导致梁发生剪切破坏的饿缘故。其中混凝土骨料含过量的土块等有害杂质,又是混凝土强度过低的主要原因。
2、混凝土受冻或养护温度过低事故案例
某工程为三层砖混结构,现浇钢筋混凝土楼盖,纵墙承重、灰土基础(图下图)。施工后于当年10月浇灌二层楼盖混凝土。全部主体结构于第二年1月完工。在4月间进行装修工程时,发现各层大梁均有斜裂缝。
其现象:
1)裂缝多为斜向,倾角50~60,且多发生在300mm的钢箍间距内。近梁中部为竖向裂缝
2)斜裂缝两端密集,中部稀少(值得注意的是在纵筋截断处都有斜裂缝);其沿梁高度方向的位置较多地在中和轴以下,个别贯通梁高。
3)裂缝宽度在梁端附近约0.5~1.2mm,近跨中约0.1~0.5mm;裂缝深度一般小于1/3,个别的两端穿通;裂缝数量每根梁少则4根,多则22根,一般为10~15根。

事故及原因分析如下:
1)施工原因:浇灌二层梁板时,未采用专门养护措施,浇灌后2h就在板面铺脚手板、堆放砖块进行砌墙。11月初浇灌三层现浇板时,室内温度为0~1C,未采取保温措施。根据试验资料,混凝土在21d后的强度只达28d理论强度值的42.5%,一个月后才达到52%。因此混凝土早期受冻是这起质量事故的重要原因。另外,混凝土的水泥用量偏低(只有210kg/m3,略少于225kg/m3的最低值)也是因素之一。
2)设计原因:其一是箍筋间距过大。《混凝土结构设计规范》7.2.7条规定,当梁高为500mm且V﹥0.07fcbh0时,梁中箍筋的最大间距为200mm。而本工程箍筋间距却为300mm,这就是斜裂缝多发生在箍筋之间的原因。其二是是纵筋在梁跨中间截断。《混凝土结构设计规范》6.1.5条规定,纵向受拉钢筋不宜在受拉区截断。而本工程梁中部分纵向受拉钢筋在跨中截断,截断处都出现斜裂缝,这说明受拉钢筋对梁截面的抗剪能力起到一定作用,也说明规范的规定是最适合的。
3)比较施工和设计原因,显然可见,施工中混凝土早期受冻是产生本工程质量事故的主要原因。
事故加固方案:
由于梁上有大量斜裂缝,很容易发生脆性截面破坏,引起梁的断裂,故必须进行加固。加固方案是在原大梁外包一U形截面梁,该梁按承受原来梁的的全部弯矩和剪力进行设计,并在U形截面梁的端部沿墙设置钢筋混凝土柱和基础,作为加固梁的支承。

3、混凝土初期收缩事故案例
某办公楼为现浇钢筋混凝土框架结构。在达到预定混凝土强度拆除楼板模板时,发现板上有无数走向不规则的微细裂纹,如图2.16所示。裂缝宽0.05~0.15mm,有时上下贯通,但其总体特征是板上裂纹多于板下裂纹 。

事故原因分析及处理措施:
1)查得施工时的气象条件是:上午9时气温13C,风速7m/s,相对湿度40%;中午温度15C,风速13m/s(最大瞬时风速达18m/s),相对湿度29%;下午5时温度11C,风速11m/s,相对湿度39%。灌注混凝土就是在这种非常干燥的条件下进行的。由于异常干燥加上强风影响,故使得混凝土在凝结后不久即出现裂纹。根据有关资料记载:当风速为16m/s时,混凝土的蒸发速度为无风时的4倍;当相对湿度10%时,混凝土的蒸发速度为相对湿度90%时的9倍以上。根据这些参数推算,本工程在上述气象条件下的蒸发速度可达通常条件的8~10倍。
2)因此,可以认为与大气接触的楼板上面受干燥空气和强风的影响成为产生较多失水收缩裂纹的主因,而曾受模板保护的楼板下面这种失水收缩裂纹会比较少一点。经过对灌注楼板是预留的试块和对楼板承载能力进行试验,均能达到设计要求。
3)这说明具有失水收缩的混凝土初期裂纹对楼板的承载力并无影响。但是为了建筑物的耐久性,还应使用树脂注入法进行补强。
4、混凝土麻面掉角蜂窝露筋
和空洞事故案例

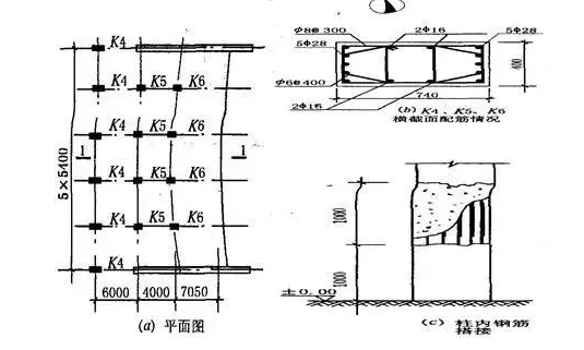
某剧场挑台平面和柱截面配筋如图2.19(a)、(b)所示。在14根钢筋混凝土柱子中有13根有严重的蜂窝现象。具体情况是:柱全部侧面面积142m2,蜂窝面积有7.41 m2,占5.2%;其中最严重的是K4,仅蜂窝中露筋面积就有0.56 m2。露筋位置在地面以上1m处,正是钢筋的搭接部位(图2.19c)。
事故原因分析:
1)混凝土灌注高度太高。7m多高的柱子在模板上未留灌注混凝土的洞口,倾倒混凝土时未用串筒、留管等设施,违反施工验收规范中关于混凝土自由倾落高度不宜超过2m及柱子分段灌注高度不应大于3.0m的规定,使混凝土在灌注过程中已有离析现象。
2)灌注混凝土厚度太厚,捣固要求不严。施工时未用振捣棒,而采用6m长的木杆捣固,并且错误地规定每次灌注厚度以一车混凝土为准(约厚40cm),灌注后捣固30下即可。此规定违反了施工验收规范中关于柱子灌注厚度不得超过20cm的界限。
3)柱子钢筋搭接处的设计净距太小,只有31~37.5mm,小于设计规范规定柱纵筋净距应50mm的要求。实际上有的露筋处净距为0或10mm。
事故处理方案:
剔除全部蜂窝四周的松散混凝土;用湿麻袋塞在凿剔面上,经24h使混凝土湿透厚度至少40~50mm;按照蜂窝尺寸支以有喇叭口的模板,如图2.19(e);灌注加有早强剂的C30(旧混凝土为C20)豆石混凝土;养护14昼夜;拆模后将喇叭口上的混凝土凿除。除以上补强措施外,还应对柱进行超声波探伤,查明是否还有隐患。

5、混凝土施工缝处理不当事故案例
某会议室门厅,屋面板为预制楼板,而大梁、圈梁、雨罩均为现浇C20钢筋混凝土构件(图2.27)。施工时,大梁混凝土先灌筑,圈梁、雨罩混凝土因故后浇灌,但却不适当地将施工缝留在大梁梁端与圈梁交接处(图2.27甲),而且施工缝处的混凝土没有妥善处理,又由于该处混凝土没有侧向限制而无法振捣,实际上形成松散的一堆 。

事故原因分析:
1)施工缝留在梁端剪力最大部位;
2)施工缝处混凝土强度等级显然不满足设计要求,甚至不足C10,严重影响梁端抗剪能力和粘着力强度;
3)新旧混凝土无法连接。
4)将梁端混凝土用工小心地凿成如图2.27乙所示形状,并将部分预制楼板,以加强梁端的抗剪能力。


6、混凝土受腐蚀事故案例
北京某旅馆的某区为一6层两跨连续梁的现浇钢筋混凝土内框架结构,上铺预应力空心楼板,房屋四周的底层和二层为490mm厚承重砖墙,二层以上为370mm厚承重砖墙。全楼底层5.0m高,用作餐馆,底层以上层高3.60m,用作客房。底层中间柱截面为圆形,直径550mm,配置9根直径为22的二级钢筋纵向受力钢筋,¢6@200箍筋,如图2.35所示。柱基础的底面积为3.50m3.50m的单柱钢筋混凝土阶梯形基础;四周承重墙为砖砌大放脚条形基础,底部宽度1.60m,二者均以地基承载力fk=180Kn/m2(持力土层为粘性土),并考虑基础宽、深度修正后的地基承载力设计值算得。
该房屋的一层钢筋混凝土工程在冬季进行施工,为混凝土防冻而在浇筑混凝土时掺入了水泥用量3%的氯盐。
该工程建成使用两年后,某日,突然在底层餐厅A柱柱顶附近处,掉下一块约40mm直径的混凝土碎块。为防止房屋倒塌,餐厅和旅馆不得不暂时停止营业,检查事故原因。
事故原因分析:
1)在该建筑物的结构设计中,对两跨连续梁施加于柱的荷载,均是按每跨50%的全部恒活荷载传递给柱估算的(另50%由承重墙承受),与理论上准确的两跨连续梁传递给柱的荷载相比,少算25%的荷重。
2)柱基础和承重墙基础虽均按fk=180Kn/m2设计,但经复核,两侧承重墙下条形基础的计算沉降估计45mm左右,显然大于钢筋混凝土柱下基础的计算沉降量(估计在34mm左右)。虽然,他们间的沉降差为11mm﹤0.002L=0.0027000=14mm,是允许的;但是,由于支承连续梁的承重墙相对软(沉降量相对大)。而支承连续梁的柱相对硬(沉降量相对小),致使楼盖荷载往柱的方向调整,使得中间柱实际承受的荷载比设计值大而两侧承重墙实际承受的荷载比设计值要小。
3)(1)和(2)项累计,柱实际承受的荷载将比设计值要大得多。
4)柱虽按¢550圆形截面钢筋混凝土受压构件设计,配置9根直径为22的二级钢筋纵向钢筋,AS=3421mm2,含钢率1.44%,从截面承载力看是足够的,但箍筋配置不合理,表现为箍筋截面过细、间距太大、未设置附加箍筋,也未按螺旋箍筋考虑,致使箍筋难以约束纵向受压力后的侧向压屈。

5)底层混凝土工程是在冬季施工的,混凝土在浇筑是掺加了氯盐防冻剂,对混凝土有盐污染作用,对混凝土中的钢筋腐蚀起催化作用。实际上,从底层柱破坏处的钢筋实况分析,纵向钢筋和箍筋均已生锈,箍筋直径原为¢6,锈后实为¢5.2左右,截面损失率约为25%。如此细又如此稀的箍筋难以承受柱端截面上9根直径为22的二级钢筋纵筋侧向压屈所产生的横拉力,起结果必然是箍筋在其最薄弱处断裂,此断裂后的混凝土保护层剥落,混凝土碎块下掉。

7、钢筋配置不当事故案例
某百货大楼一层橱窗上设置有挑出1200mm通长现浇钢筋混凝土雨篷,如图2.36(a)。待到达混凝土设计强度拆模时,突然发生从雨篷根部折断的质量事故,呈门帘状如图2.36(b)。

事故分析:

受力筋放错了位置(离模板只有20mm,如图2.36c)所致。原来受力筋按设计布置,钢筋工绑扎好后就离开了。打混凝土前,一些好心人看到雨篷钢筋浮搁在过梁箍筋上,受力筋又放在雨篷顶部(传统的概念总以为受力筋就放在构件底面),就把受力筋临时改放到过梁的箍筋里面,并贴着模板。打混凝土时,现场人员没有对受力筋位置进行检查,于是发生上述事故。

8、施工时因钢筋位置配置引起事故案例

某工程框架柱的原设计截面及配筋如上图a,在绑扎柱基插筋时,错误地将两排525变成3 25(图b)。此失误在柱基混凝土浇筑完毕后才发现。
事故案例处理方法:

1)在柱的短边各补上2 25插筋。
2)为保证新加插筋的锚固,在两个短边上各用3 25横筋与短边3 25焊成一体,并将第二步台阶加高500mm。加高台阶时将原基础面凿毛、清洗、支模、浇筑提高一级的混凝土,并在新台阶面层铺设¢6@200钢筋网一层。
3)原设计在柱底500mm高度内加密箍筋,现增至1000mm。
9、梁根断裂事故

1)该工程某县公路段的机修车间(底层)和宿舍,为2层砖混结构,建筑面积556m2,屋顶局部平面与剖面见图3-62。
2)屋顶层的挑梁尺寸与配筋情况见图3-63,混凝土C18,在拆模时发现7根挑梁根部断裂。
事故原因分析:
1)混凝土实际强度无试验资料,发现混凝土密实度很差,有很多空隙,当时的水灰比不是由试配决定的。
2)挑梁的主要受力钢筋严重往下移位。
3)悬挑部分比设计要长。
4)屋面超厚,自重加大。
5)拆模时间过早 。
处理措施:
1)将墙上残剩的挑梁根部打掉500mm,露出全部钢筋。
2)在墙内100mm处将挑梁的主筋锯断,重新焊接新的主筋。
3)修改设计,将悬挑结构改为全现浇。
10、配筋错误事故
山西某教学楼为现浇10层框剪结构,长59.4m,宽15.6m,标准层高3.6m,地面以上高度41.8m,地上建筑面积9510m2,在第4和第5层结构完成后,发现这两层柱的钢筋配错,其中内跨柱少配钢筋44.53cm2,外跨柱少配13.15cm2 。

事故原因分析:
该工程第4,5层柱的配筋相同,第6层起配筋减少,施工时,误将6层的柱子断面用于4,5层,造成配筋错误。
处理措施:
加固构件:凿去4,5层的保护层,露出柱四角的主筋和全部箍筋,用通长钢筋加固,加固直径,间距与原设计相同 。
11、空洞露筋事故
南京某单位办公大楼为5层现浇框架,其平面示意图见图3-90,2层框架柱浇注后,拆模时发现有6根柱存在空洞,烂根,露筋等严重缺陷,其缺陷情况见图3-91,92,93
事故原因分析:
1)柱浇注时分层厚度太大。
2)混凝土浇注后漏振或振捣不实。
处理措施:
由于空同,漏筋,烂根十分严重,根据现场实际情况分析混凝土内部质量也得不到保证,因此决定立即全部拆除,绑扎钢筋后,重新浇注混凝土。
12、梁开裂事故
某工程为混合结构,屋盖采用现浇钢筋混凝土梁板,梁跨度9m,为矩形截面,高800mm,宽400mm,混凝土为C18。配筋情况为:梁跨中受力钢筋4 25,支座受力钢筋2 18,浇筑后14d拆模,发现梁上由0.1-0.35mm宽的裂缝 。
事故原因分析:
规定中大于8m的梁,拆模时的强度要达到100%才可以,而现实才达到80%,于是因强度不足导致开裂。
处理措施:
检验发现裂缝没有明显开裂,不会影响结构的安全使用,所以可以采用环氧胶泥涂抹表面,封闭裂缝。
13、大梁裂缝事故
某车间12m钢筋混凝土屋面大梁,平卧生产,起吊后发现50%吊环附近混凝土局部压碎,吊环偏斜,混凝土裂缝。
事故原因分析:
1)上翼缘裂缝:吊环安装时箍筋被碰撞发生位移,未恢复原状,因此,平卧起吊是仅有两个钢箍其作用。
2)大梁腹板裂缝:腹板侧向刚度本来很小,翼缘开裂后,上部梁的侧向刚度大为减少,所以引起腹板开裂
3)吊环偏斜:两台吊车的吊环受力不均匀,受力较大的吊环,残余变形也大,因此吊环发生偏斜。
处理措施:
对翼缘处的倾斜裂缝,凿去斜缝范围内的混凝土并凿成直槎,然后用C40细石混凝土重新浇筑养护。
14、腹梁裂缝事故
某煅工车间跨度10m,屋盖梁采用双坡T形截面薄腹梁,共4榀,其形状,尺寸与配筋见图3-42,梁内无弯起钢筋,混凝土设计强度C18,实际试块强度为12-15N/mm2,在检查时发现梁支座附近有斜裂缝出现,并不断增加和扩大。

事故原因分析:
原设计无弯起钢筋,箍筋断面及数量均不足实测混凝土强度未达到设计要求。
处理措施:
由于薄腹梁的承载能力不足,必须加固,加固方案在原有的薄腹梁上加钢筋混凝土,加固后的断面见图3-43,增设箍筋来承担斜截面强度,并配置纵向构造钢筋 。
15、砼柱偏斜事故
江苏某冷作车间为装配式钢筋混凝土结构,柱距6m,跨度18m,主要构件为矩形柱,钢筋混凝土屋架,大型屋面板,吊屋面板时发现1根柱向内倾斜,柱顶向内位移50mm。
事故原因分析:
柱吊装后没有认真校正,当屋盖吊装时,发现了屋盖与柱连接处有错位,但未及时查明原因,直到吊装完后才发现有内倾现象。
处理措施:
由于柱的偏差太大,必须进行纠正,纠偏方案有两个:一是大型屋面板与屋架焊接处割开后,再对柱纠偏;二是把屋架连同屋面板等整体顶起,然后对柱纠偏 。
16、楼板开裂事故
某学校为3层混合结构,纵墙承重,外墙厚37cm,内墙厚24cm,灰土基础,楼盖为现浇钢筋混凝土肋形楼盖,在装饰工程时发现大梁两侧的混凝土楼板上部普遍开裂,裂缝方向与大梁平行,凿开后发现负钢筋被踩下。
事故原因分析:
1.施工方面:
1)浇筑混凝土时,把板中的负弯矩钢筋踩下,造成板与梁连接处附近出现通长裂缝。
2)混凝土每立方用量少于250kg。
3)在第二层楼盖浇筑后没达到规定强度,就在其上堆放施工工具,导致荷载超载。
4)混凝土在冬季施工而没采取任何施工措施。
2.设计方面:
1)对楼板的荷载计算错误。
2)梁箍筋间距太大。
17、框架梁开裂事故案例
某邻街建筑的底层为商店,2层以上为宿舍,是7层现浇框架结构,纵向二跨,其第7层平面图如图3-11所示。

室内粉饰时发现顶层纵向框架梁KJ-7,KJ-8上有15处裂缝,其位置如3-11,裂缝情况见图3-12。

事故原因分析:
1)混凝土收缩。
2).施工图漏画附加的横向钢筋。
18、拆模过早引起的倒塌
事故概况:
某轻工厂为二层现浇框架结构,预制钢筋混凝土楼板.施工单位在浇筑完首层钢筋混凝土框架及吊装完一层楼板后,继续施工第二层.在开始吊装第二层预制板时,为加快施工进度,将第一层的大梁下的 立柱拆除,以便在底层同时进行装修,结果在吊装二层预制板将近完成时,发生倒塌,当场压死多人,造成重大事故。
原因分析:
事故发生后,经调查分析,倒塌的主要原因是底层大梁立柱及模板拆除过早.在吊装二层预制板时,梁的 养护只有3天,强度还很低,不能形成整体框架传力,因而二层框架及预制板的重量及施工荷载由二层大梁的立柱直接传给首层大梁,而这时首层大梁的强度尚未完全达到设计的强度C20,经测定只有C12.首层大梁承受不了二层结构自重及结构辎重而引起倒塌。
19、因锚固长度不足而引起大梁折断
某煅工厂车间屋面梁为12米跨度的T型薄腹梁,在车间建成后使用不久.梁端头突然断裂,造成厂房部分倒塌,倒塌构件包括屋面大梁及大型面板。
事故原因分析:
事故发生后到现场进行调查分析,混凝土强度能满足设计要求,从梁端断裂处看,问题出在端部钢筋深入支座的锚固长度至少150毫米,实际上不足50毫米,梁端部至柱端外边缘的距离为400毫米,实际上去只有140~~150毫米,因此,梁端支于柱顶上的部分接近于素混凝土梁,这是非常不可靠的。加之本车间为锻工车间,投产后锻锤的动力作用对厂房振动力的影响大,这在一定程度上增加了大梁的负荷.在这种情况下,才引起了大梁的断裂。
20、 钢筋难以施工引起大量倒塌
part 1
某农村企业生产车间,砖柱上搁置大梁,施工完成后不久,大梁就倒塌。
事故原因分析:
主要是梁端支撑设计不当.原设计现浇梁垫加一锚筋.实际施工时,锚筋很难插入砌体中,因而改为局部扩大混凝土垫,使之与圈梁相连并一起浇注.因砖柱顶局部扩大,施工时顺便先砌砖柱的扩大部分作为浇混凝土的侧模.因砖逐皮外伸,浇注混凝土时没有充分搞固,因而很疏松.砖无咬槎,与混凝土结合力极差,实际上起不到承载作用.在大梁压力下,砖先掉落,疏松的混凝土也无足够承载力,于是引起大梁倒塌。
21、现浇梁柱铰接处理不妥
引起裂缝、破损
某厂房横梁与柱铰接,处理如图符合通常做法,但投入使用后,在铰接点附近发生裂缝也局部破坏。

事故原因分析:
钢筋X形原意是只能受水平力而不能承受弯矩,从而实现铰的功能,但实际上,这种做法有相当程度的嵌固作用.当两边柱子有不均匀沉降时,节点处梁端生产一角度变位,使锚筋受拉,梁端面与柱混凝土接触面受压而形成抵抗力矩.若这种弯矩过大,则会使节点处开裂,甚至局部破坏.在要求铰接的条件较高时,可改进节点做法,如图,.这两种节点做法更接近理想铰接的形式,构造也较简单,施工也很方便.梁柱间的 间隙可视具体情况及梁、柱尺寸的大小而定。
22、人字折梁计算错误而倒塌
某库房为单层结构,跨度10米,长24.5米,采用砖墙承重,屋面采用人字形折梁折梁间距3.5米,在折梁上搁置预应力钢筋混凝土檩条,每米放3根,工30根,檩条上铺85cm*60cm*5cm的预制平板.人字屋架结构及配筋如图,当铺完屋面,拆除折梁的 模板及支撑时.屋盖倒塌。

事故原因分析:
该工程愿意采用人字屋架,形式上似拱,因而在梁集中均匀配置8%18钢筋,该工程实际上无拉杆,两端又没有抗拉推力结构,实际上是 一个折线形钢筋混凝土斜梁.则使强度严重不足,承载力严重不足,加上折梁曲折处受拉钢筋受拉边顺放,在弯折处对受拉力极为不利,为规范所禁止.折梁承载力不足,构造又极不合理,必然引起屋盖的破坏。
23、钢筋绑扎不当造成的事故
某教学楼屋顶为井字梁楼盖,平面尺寸为10.814.4m, 梁断面2570cm,受力钢筋为3¢22。浇灌完混凝土拆模后,发现离支座2.5m的部位出现了大量的裂缝。见图4-12。

事故原因分析:
事故发生后,经过调查分析得知,事故是因为钢筋绑扎不当造成的。从设计图上看,受力钢筋为3根¢22的钢筋。施工中,由于¢22钢筋没有长于10cm 的料,在离支座两端2.5m处,将受力钢筋在同一截面切断,并搭接焊上1¢19、2¢22,致使该焊接截面同时有6根¢19-¢22的钢筋,钢筋间基本没有空隙。浇灌混凝土时无法保证钢筋周围的混凝土保护层,钢筋与混凝土间失去粘着力,钢筋的搭接失去作用。致使拆模后该梁在搭接部位严重开裂。
24、钢筋混凝土结构工程挑梁板支模错误引起的倒塌事故
某四层内框结构,外墙一层窗上设有挑出80cm的现浇钢筋混凝土遮阳板(图4-5)。

该工程在浇筑遮阳板的过程中突然发生局部外墙倒塌事故。倒塌物有遮阳板及全部一层窗间墙,倒向室外,倒塌线基本上沿脚手眼发生。倒塌后的吊架斜杆大部分发生严重的压曲变形。
事故原因分析:
1)倒塌事故与支撑不当有关。该遮阳板是用吊架支模:在每个窗间墙上设置一个吊架,吊架间用木垫板联系起来,并用105 cm方木支撑遮阳板的底模图(4-6 ),斜撑(105 cm)支承在窗台墙上(图4-7)。

2)通过对窗间墙施工中的受力分析和承载能力的验算得知,造成倒塌事故的直接原因是新砌好的窗间墙承受不了施工过程中由吊架传来的倾复力矩。
25、砖柱承载力不足引起的倒塌事故
某学校的教学楼,二层砖混结构,工程已接近完工,在室内进行抹灰粉刷突然倒塌,造成多人死亡。
工程概况:
该建筑的平面 、立面、剖面、及主要尺寸如图.教学楼为二层砖混结构,基础为水泥沙浆砌筑的毛石基础,墙厚180MM.顶头大教室中间深梁为现浇钢筋混凝土梁.三个月后拆除大梁底部支撑及模板,开始装修发现墙体有较大变形,工人用锤子将凸出墙体打了回去,继续施工.第三天发现大教室的窗墙在 市内窗台下约100MM处有一条很宽的水平裂缝,宽约20MM.整个房屋就全部倒塌,两层楼板叠压在一起.未及时撤离的工人全部死亡。


事故原因分析:
本工程并无正式设计图纸,只是由使用单位直接委托某施工单位建造.根据现场情况参照一般砖混结构草草画了几张草图就进行施工的.施工队伍由乡村瓦木匠组成,没有技术管理体制.事故发生后测定,砖的等级为MU0.5,沙浆强度只有M0.4.在拆模的第二天发现险情后,还不采取应急措施.才导致重大事故的发生。