1、基坑侧边防水卷材铺贴要求
基坑侧边及距坡顶、坡底800mm 宽度范围内防水卷材必须实铺。

2、桩头防水做法
①桩顶、桩侧及桩周边250 范围先刷一道渗透结晶防水涂料;
②渗透结晶防水涂料上抹20 厚聚合物防水砂浆;
③大面防水施工于聚合物防水砂浆上,边缘至桩边;
④大面防水与桩交接处以及桩头锚筋根部密封膏密封;

3、底板沉降后浇带超前止水构造做法
①沉降后浇带均采用超前止水构造;
②先浇筑超前止水构造的砼,再浇筑底板砼;
③底板砼浇筑前应对先浇筑的砼表面凿毛处理;
④超前止水伸缩缝下增设500 宽防水附加层;

4、施工后浇带构造做法(有降水)
①地下水位高于基础底板时,基础垫层施工时在后浇带位置设置抗水压垫层,构造做法如图所示;
②抗水压沉垫单独浇筑,混凝土标号同基础底板;
③防水卷材附加层在抗水压垫层下通长布置并在两边各超出250mm;
④此位置各层顺序为:地基垫层防水层防水附加层抗水压垫层底板;结点做法与设计不符时,以设计为准。

5、施工后浇带构造做法(无降水)
①地下水位低于基础底板时,按图示做法设置后浇带;
②后浇带砼接缝处位置500 宽防水附加层;

6、无外伸基础底板边缘处防水构造做法(砖胎模)
①底板施工前砌筑砖胎模并施工防水卷材及附加层;
②施工基础底板及导墙;
③上部墙体施工完毕后将砖胎模顶部后拆部分拆除;
④施工墙体防水卷材;

7、有外伸基础底板边缘处防水构造做法(砖胎模、木模板)
一、采用砖胎模施工
①基础底板施工前砌砖胎模;
②施工防水及附加层,防水在砖胎模顶部留出甩茬,此处防水留齐槎;
③施工基础底板及导墙;
④施工其余外部防水卷材,与砖胎模甩槎卷材搭接200宽;
二、采用木模板施工
①基础底板施工前支设木模;
②施工防水卷材及附加层,端部钉嵌至木方上;
③施工基础底板及导墙;
④拆除侧边木模,施工其余防水卷材,卷材在筏板侧边搭接200 宽。


8、基础内降水井封井做法
①降水井的封井时间依现场实际情况而定;
②封井时,先向井内填充碎石,后向井内灌注混凝土,井内混凝土从垫层向下高度应大于一米;
③井口处焊接封堵钢板;
④降水井应高出底板30mm;
⑤预埋钢管直径应满足取泵要求200,壁厚不小于3mm;

9、不同平面止水钢板焊接位置及做法
① 止水钢板搭接处需要双面紧贴满焊,搭接长度为100mm;
② 不同平面转角处的止水钢板采用整块板弯折后贯通;
③ 止水钢板搭接位置距离转角不应小于300mm;

10、同一平面止水钢板焊接位置及做法
同平面止水钢板相遇焊接时应将两块钢板边缘弯折处适当压平,使两块钢板在平直段进行搭接,搭接长度不低于100mm,之后再进行双面紧贴满焊;

11、止水钢板穿柱、梁部位的箍筋加固方法
① 当止水钢板需穿过柱子和梁箍筋时,此箍筋应使用开口箍,与止水钢板进行焊接;
② 单面焊接长度不小于10d 且不允许将止水钢板焊穿;
12、止水螺杆的质量要求
①双面焊接饱满;
②无砂眼、无夹渣、无漏焊;
③螺栓直径d 不应小于14mm;
④止水环厚度3mm;
13、地下室外墙止水螺杆端部处理方法
①拆除墙体模板;
②取下锥形螺套;
③ 烧断锥形螺套内外露螺杆;
④ 聚合物水泥砂浆封堵;
⑤做防水附加层;
14、地下室中间层楼板与外墙施工缝处防水构造做法
① 地下室外墙顶部施工时预埋100x100 木方在图所示位置, 后拆除,形成施工缝;
② 在施工缝位置安装膨胀止水条;
③ 浇筑楼板及墙体混凝土;
15、地下室外墙根部防水做法
①转角位置做50mm 圆弧;
②转角、变形缝、施工缝、管根处做防水附加层,宽度不小于500mm;
③防水卷材搭接宽度须符合规范要求;
④相连卷材接头应错开不小于500mm;
⑤上下两层和相邻两幅卷材的接缝应错开1/2 幅宽且两层卷材不得垂直铺贴;

16、出墙群管管根做法
①出墙群管管根应设置混凝土墩台,与外墙混凝土同时浇筑,外侧群管外皮距墩台外边混凝土300mm;
②群管横竖向净间距不小于100mm;
③群管端头采用钢板临时封堵时,钢板不应超出管边,以便正面模板安装;
④墩台内侧应设置模板定位支架,保证墩台浇筑尺寸;
⑤墩台外侧模板采用钢管加固;

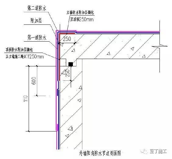
17、车库顶板阳角防水节点
①阳角防水附加层顶部不低于250mm,立墙处在施工缝向下不小于250mm;
②立面与平面转角处,卷材接头应留在平面上,距立面不小于600mm;
③立墙与平面防水卷材的搭接宽度均不小于150mm;

18、外墙卷材防水收头做法
① 地下墙体收头部位应高出设计室外地坪500mm。在未到500 高度即遇门窗洞口时,防水转入洞口;
② 收头部位使用使用密封膏密封;
③防水收头方式应根据工程实际情况进行;

19、外墙穿墙螺栓眼的封堵方法
①孔内注满发泡胶;
②挖除孔口20mm 发泡;
③抹水泥砂浆封堵;
④外墙外侧贴100*100mm1.5 厚自粘防水卷材(采用改性沥青防水涂料冷粘防水卷材);
注:外墙模板拆除后应及时对螺栓孔进行封堵并施工防水,以保证施工质量。
20、外墙穿墙孔洞封堵方法
①在外墙穿墙孔洞两侧支模,并预留灌浆漏斗;
②浇筑C25 细石混凝土并敲击模板使其密实;
③在外墙外侧孔洞新浇筑混凝土与原结构墙交接处涂刷1.5 厚聚合物水泥砂浆(JS);
21、外墙外侧主体结构和二次结构交界处防水做法
① 在主体结构与二次结构交接处挂200mm 宽钢丝网;
②外墙抹灰;(外墙不整体抹灰时,仅在挂钢丝网处抹灰)
③在交界处涂刷1.5 厚聚氨酯或聚合物水泥防水涂料(JS),涂刷范围如图所示;
④ 当设计图纸未注明时,须在图纸会审中明确;

22、穿外墙预埋套管方法
①主体结构穿外墙预埋套管按图所示设置一定角度;
②二次结构穿外墙套管须采用预制混凝土块并设置一定坡度;
③外保温在洞口处同样设置一定坡度的洞口,并将玻纤网翻入洞口,抹抗裂砂浆;

23、屋面女儿墙压顶挑檐做法
①墙体顶部与外保温交接位置必须加设混凝土挑檐;
②挑檐出挑宽度同外保温厚度(有保温线条时,盖住线条);
③女儿墙压顶上部排水坡度方向应找向屋面;

24、外窗收口防水构造做法
①窗洞四周水泥砂浆收口,收口后与窗框间留缝5-7mm;
②洞口四周涂刷防水,宽度200mm;
③安装窗框,填发泡胶。发泡胶应填塞密实,膨出部分用手按入,不得切割;
④施工保温层,抹抗裂砂浆;保温层在窗台位置坡度不小于20mm,且窗台位置抗裂砂浆厚度不小于10mm,抗裂砂浆压框5mm;
⑤洞口内侧直接刮耐水腻子,施工完毕后窗框内侧四周打胶密封;


25、窗与外墙垂直交接处防渗漏措施
①在后浇筑的混凝土柱和原结构墙体交接缝隙处涂刷1.5 厚聚合物水泥防水涂料(JS);
②在混凝土压顶和底部墙体交界处涂刷1.5厚聚氨酯防水涂料;
③外窗抗裂砂浆收口必须压窗框5mm;
④发泡胶应填塞密实,两侧用密封胶处理;
⑤外窗抗裂砂浆收口务必找坡2cm;

26、飘窗板上部做法
①飘窗板顶面须用水泥砂浆找坡,防止靠近墙体阴角积水;
②聚合物水泥防水涂料(JS)应涂刷整个飘窗板并上翻墙体250mm;

27、空调板防水做法
①无反檐时,空调板需在靠近墙体阴角200mm范围涂刷1.5 厚聚合物水泥防水涂料(JS);
②设计为带反檐,两侧为墙体时,空调板向地漏找坡2%,1.5 厚聚合物水泥防水涂料(JS)涂刷整个平台面并在墙体处上反200mm,反檐处涂刷至反檐顶;

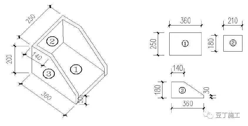
28、窗口及墙身线条滴水做法
① 涂料饰面采用成品鹰嘴线条(带网格布);
② 鹰嘴外露尺寸不得影响门窗开启;


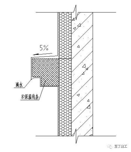
29、凸出外墙装饰构件排水要求
凸出外墙的装饰构件顶面应向外有5%的坡,以防止积水;

30、室内挡水基的要求
①挡水基采用细石混凝土浇筑,不配钢筋;
②挡水基高度200~250mm(符合砌块模数);
③挡水基宽度同墙体砌块宽度;

31、卫生间地漏防水做法
①结构施工时预埋第一节地漏;
②地面垫层用细石砼并兼做防水找平层;
③垫层施工前安装第二节地漏,顶部标高同垫层。垫层在地漏四周留设20*20 凹槽;
④施工防水层,防水施工完毕后地漏周边填嵌密封膏;
⑤施工保护层前安装第三节地漏,地漏顶标高为地砖标高-10mm,比二次放坡瓷砖标高-5mm;
⑥湿铺法粘贴地砖,完成后安装地漏篦子;

32、地漏位置地砖二次放坡
地漏位置地砖进行二次放坡

33、卫生间地砖湿铺做法
①防水保护层与瓷砖粘贴施工必须分开实施;
②瓷砖粘接层厚度不得超过10mm;
③瓷砖粘贴时防水保护层必须具备硬化上人条件(防水保护层施工完毕1 天以上);
④必须控制好防水保护层的坡度、标高等,要确保瓷砖粘接层厚度不超过10mm;

34、卫生间JS 防水要求
①阴阳角、管根做附加层,网格布宽度不得小于200mm;
②有淋浴要求部位防水高度不得小于1.8m,浴盆位置防水高度不得小于1500mm,宽度宽出淋浴房或浴盆100mm;
③其他位置防水高度不小于300mm(建筑完成面以上);
④如设计图纸或当地政府对防水高度有特殊要求时,按要求施工;
35、露台分户墙防渗漏措施
① 露台分户墙底部设挡水基;
② 隔墙端部设构造柱;
③ 顶部浇筑砼压顶并增加聚合物水泥(JS)防水层(办理洽商);
④ 先在分户墙底部施工防水后再进行挡水基施工(防水宽度超出墙两侧各100mm,反至相邻墙上300mm);



36、水暖管井防水做法
①地面采用细石混凝土一次性压光成活,向地漏找2%坡度;
②水暖管井做1.5mm 厚聚合物水泥(JS)防水层,设计无要求时,办理洽商、变更或在图纸会审时明确做法;
③水暖管井安装穿楼板套管时应高出结构面100mm;
④靠近墙体的套管根部防水在墙体砌筑前涂刷,保证管井内侧套管防水涂刷到位;
37、地下室外墙内侧增设排水槽
①施工地下室地面垫层时,在外墙墙根位置增设100mm 宽排水槽;
②排水槽在墙面抹10厚防水砂浆踢脚线,另一侧垫层阳角加30*2角钢;
③排水槽同靠近外墙的集水坑相连通;

38、地下室结构底板后浇带顶面增设疏水板
①地下室地面垫层施工时,在车库底板后浇带处垫层下加设疏水板;
②疏水板宽为后浇带宽度+2m,每侧超出接缝1m;
③疏水板高15mm,铺设时搭接100mm;
④疏水板需与最近的集水坑连通;
(注:本条仅用于常年地下水位高于基础底板的工程)
39、屋面水簸箕
做法一:
①采用15mm 厚灰色花岗岩制作;
②粘结牢固,胶缝均匀顺直;
做法二:
①采用细石混凝土预制20mm 厚构件,内压钢丝网片;
②聚合物水泥砂浆粘接牢固,内侧阴角抹20mm 八字角;

40、外墙伸缩缝装饰做法
①伸缩缝镀锌铁皮凸出装饰面10mm;
②伸缩缝位置通长增加防水卷材;
③镀锌铁皮喷与外墙同色油漆;
④外墙装饰线条在伸缩缝位置断开,留50mm缝隙,内侧打满发泡,待发泡干燥后切除外露部分,刮外墙腻子,喷外墙涂料;

41、平屋面变形缝做法
①后浇板内配筋参照空调板;
②后浇板顶面增加防水,做法同屋面;
③变形缝上口的现浇板长度覆盖整个变形缝;
④女儿墙压顶处防水卷材须向立面下翻100mm;


42、屋面侧排雨水口做法
①在雨水口位置500mm范围内向雨水口找坡;
②成品雨水口应在结构施工时预埋,不得后设置;
③雨水口内侧底面与结构板平。
④屋面板采用结构找坡或细石混凝土找坡,一次性压光;
⑤采购时,必须考虑外装饰面总厚度;

43、出屋面管管根做法
①出屋面管必须设置带翼环套管;
②套管高出屋面装饰面层100mm;
③待保温保护层完成后在管根位置浇筑300mm 高细石混凝土墩台;

44、屋面直排雨水口做法
①雨水口顶面与结构面平;
②防水卷材卷入雨水口内不少于50mm;
45、女儿墙防水封头做法
①女儿墙防水卷材铺设高度应高出屋面完成面250mm,若女儿墙挑檐至屋面完成面高度低于300mm,则铺设至挑檐底;
②防水卷材封头采用厂家配套扣条固定,钉距300mm;

46、屋面檐沟防水结构做法
①在屋面檐沟的位置做卷材防水及附加层,附加层上翻至坡屋面的长度不小于500mm;
②檐沟内向排水孔找坡;
③檐沟内防水保护层不得用保温砂浆,必须为等级不低于C25 的细石混凝土;

47、屋面设备基础防水构造做法
①屋面设备基础需高出屋面完成面至少250mm 并设置挑檐(设计无要求时,办理洽商或变更);
②防水卷材施工250mm高度处,封头处采用扣条固定,钉距300mm 且不少于2 个;

48、烟风帽及无动力风帽防水构造做法
①出屋面烟风帽基础需高出屋面完成面至少250mm 并设置挑檐(设计无要求时,办理洽商及变更);
②防水卷材施工250mm高度处,封头处才用扣条固定,钉距300mm 且不小于2 个;

49、屋面太阳能条形基础做法
①屋面太阳能基础设于屋面面层以上(如为贴砖面,则放于屋面砖基层上);
②太阳能基础不与结构板相连接,以减少防水节点,减少渗漏隐患;
③太阳能基础大小应根据计算确定,以保证整体稳定性;
④太阳能基础下混凝土层内宜甩钢筋锚固于基础内,以增加牢固性;
⑤基础表面装修做法由各项目自行确定;


标准化防水系统构造
一、地下室一级防水
1、地下室种植顶板、种植屋面:
2.0mm 非固化橡胶沥青防水涂料+1.5mm 厚强力交叉膜高分子自粘防水卷材作为实施方案,设计图纸仍保留耐根穿刺防水卷材
2、地下室非种植顶板、非种植屋面:
2.0mm 非固化橡胶沥青防水涂料+1.5mm 厚强力交叉膜高分子自粘防水卷材
3、地下室侧壁:
1.5mm 厚反应型强力交叉膜高分子自粘防水卷材两道
4、地下室底板:
方案1:1.2mm 高分子自粘胶膜防水卷材一道非沥青基(预铺反粘法施工)或1.2mm 高分子自粘胶膜防水卷材一道沥青基(预铺反粘法施工)
方案2:3mm(单面自粘,聚酯胎)+1.5mm(双面自粘,无胎体)自粘聚合物改性沥青防水卷材,Ⅱ型
二、地下室二级防水
1、地下室种植顶板、种植屋面:
2.0mm 非固化橡胶沥青防水涂料+1.5mm 厚强力交叉膜高分子自粘防水卷材作为实施方案,设计图纸仍保留耐根穿刺防水卷材
2、地下室非种植顶板、非种植屋面:
2.0mm 非固化橡胶沥青防水涂料+1.5mm 厚强力交叉膜高分子自粘防水卷材
3、地下室侧壁:
1.5mm 厚反应型强力交叉膜高分子自粘防水卷材一道
4、地下室底板:
方案1:1.2mm 高分子自粘胶膜防水卷材一道非沥青基(预铺反粘法施工)或1.2mm 高分子自粘胶膜防水卷材一道沥青基(预铺反粘法施工)
方案2: 1.5mm(单面自粘,无胎体)自粘聚合物改性沥青防水卷材,Ⅱ型
三、卫生间防水
1、卫生间地面:
1.5mm 聚氨酯防水涂层,面撒绿豆状细砂,四周沿墙上翻250 压住墙面防水砂浆层,沿门坎处向外250mm 范围涂1.5mm 聚氨酯防水涂层
2、卫生间墙面:
其他地区:聚合物防水砂浆满墙到顶
重庆地区:1.5mm 聚合物水泥(JS)防水涂料满墙到顶