一、回填土下沉

如果是均匀沉降, 一般没有问题, 如果沉降不均匀, 达到一定程度就会对房屋产生影响. 楼面因沉降而产生裂缝, 说明已很严重。
常见原因:
1 、回填土含水率过大;
2 、未按规定分层夯实;

采取措施:
1 、施工前根据当地地下水位,采取相应的降排水措施 (井点降水、帷幕止水防砂、坑内降水等); 在基槽周边设置挡水堤。
2 、控制含水量 (翻晒、撒石灰) ,工地检验方法是:用手将灰土紧握成团,两指轻捏即碎为宜。 (翻晒、晾干、换填)
3 、分层夯实,每层虚铺厚度不大于300mm 且振夯次数3 次;
4 、铺设道路的基层须满铺石宵。
二、桩顶施工没达到标准

常见原因:
1 、桩顶位移或隆起、桩身断裂
2 、沉桩达不到设计控制要求

采取措施:
1 、定位准确,沉桩过程中,发现桩不垂直,应及时纠正保持上下节桩在同一轴线上。
2、桩顶标高若低于设计标高,先将桩顶修平、凿毛、用比 CFG 桩桩身混凝土高一个强度等级的素混凝土接桩至设计桩顶标高。
三、地下室渗水

1 、防水层施工中遭到破坏(外防内贴法;保护层15mm厚1 :3 水泥砂浆保护)
2 、混凝土振捣不到位(P8 商品砼,抗渗剂)
3 、施工缝没有按规范处理(比较常见)

事前控制:止水钢板,止水带;二次浇灌前,表面凿毛,压力水冲洗施工缝,刷素水泥浆
事后控制:对渗漏点剔除深度不小于50mm 的V型槽,冲洗后用堵漏王、刷JS 防水涂料处理,并用1:2 水泥砂浆保护。
楼板管道预留洞封堵措施:
1、应在穿过楼板的管道安装牢固后,方可进行预留洞的封堵。
2、在支设底模前,事先清除洞口的垃圾及松散的混凝土,并用清水湿润洞壁及 管壁。底模应紧贴楼板底。
3、灌注混凝土前先在洞壁及管壁铺摸一层15mm 厚的水泥砂浆,然后用掺入膨胀 剂的C20 细石混凝土分两次灌注。第一次灌注至一半板厚处,待混凝土初凝后进行第二次灌注。
4、灌注混凝土的过程中应用钢筋棍将混凝土振捣密实,以避免混凝土表面出现 蜂窝麻面的现象,形成渗漏通道。
5、灌注完的混凝土表面应凹进楼板10mm ,外两次用防水砂浆抹平,管根、阴角应抹成小圆角或八字坡,剔凿洞口处,圆角应做至洞口边以外30-50mm 。最后将圆角压光。
6、当混凝土达到强度后方可拆除底模。

四、混凝土外观质量较差

1 、刷脱模剂

2 、模板间用密封条拼接;浇水湿润;清理木屑、杂质
3 、振捣到位 ( 快 插慢抽) ,控制下料口距离(2m), 分层下料
4 、原浆收光;注意养护 (薄膜)

5 、保护好成品!
6 、冬季施工须控制入模温度5 度
五、灰缝砂浆饱满度不合格
常见原因:
1 、砌筑砂浆的和易性差,直接影响砌体灰缝的密实和饱满度。
2 、干砖上墙和砌筑操作方法错误,不按三一砌砖法砌筑。
3 、水平灰缝缩口太大。

改善措施:
1 、改善砂浆和易性,应及时调整砂浆的稠度,砌筑必须提前1 天-2 天浇水湿润,含水率宜在10%-15% ,严防干砖上墙。
2 、砌筑时要采用三一砌砖法( 即一块砖、一铲灰、一揉挤) 或二三八一砌砖法等。
3 、严禁铺长灰而使底灰产生空穴和摆砖砌筑,造成砂浆不饱满。 (水平灰缝8~12mm )
4 、砌筑过程中要求铺满口灰,然后进行刮缝。
六、外墙抹灰空鼓、开裂

1、隔墙或填充墙体与混凝土交接处未按图纸和规范要求加拉结钢筋,沿交接处出现裂缝
2、基层处理不当或未清理干净,浇水不足,抹灰砂浆脱水,影响粘结力。
3、未按操作规程分遍抹灰,砂浆配制不好,使用不当。
4、大面积抹灰时需设置分格条。
5、砌体门窗洞口两侧200mm 石砌体300mm、和转角处450mm 石砌体600mm、范围以内不得留脚手架眼
6、构造柱。
1)双面胶封堵缝隙,防止漏浆;
2)以5 皮标砖为基数,先退后进。间隔500 设置2A6 且不小于1000mm 的钢筋
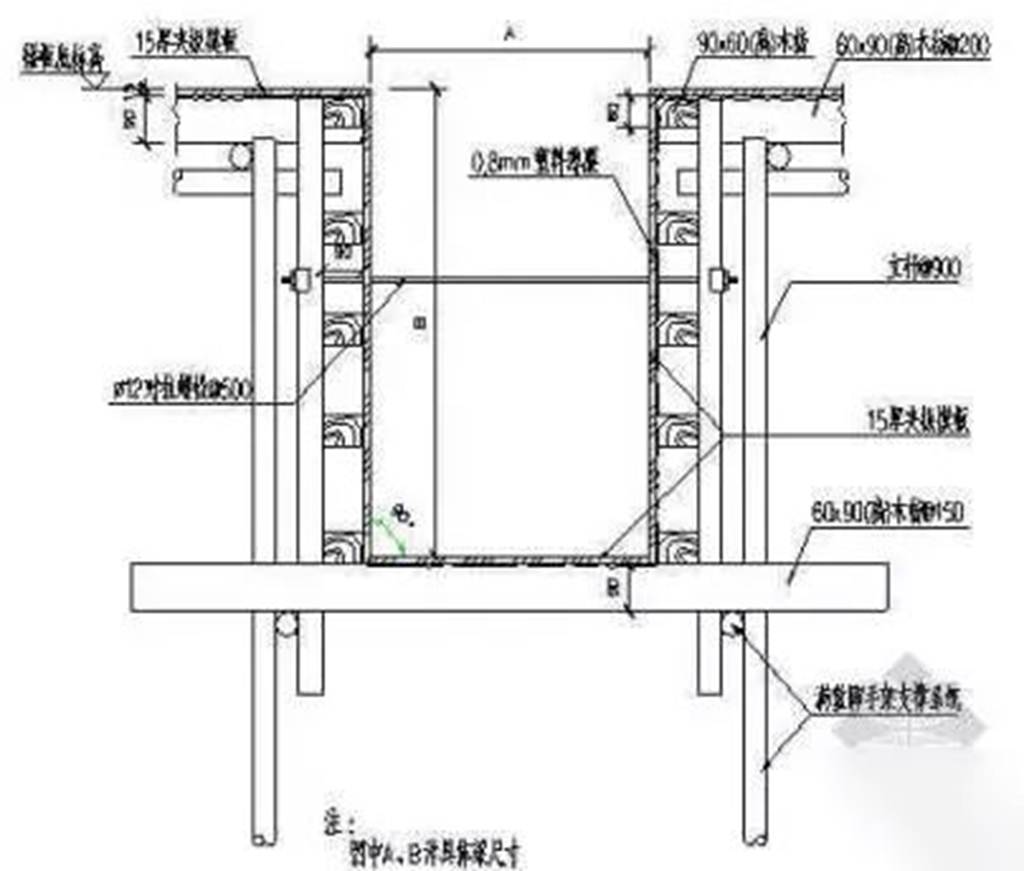
七、模板分项工程
1 、梁高550 时,必须间隔500mm 设置对拉螺杆
2 、 墙柱模板缝隙可分别采用砂浆和胶带封堵防止漏浆


3 、梁支撑立管纵横向间距1.2m 。梁底木枋间距300mm。
4 、墙柱侧模采用50 100 标准木枋或槽钢或方钢,间距400 。层高过大的墙柱必须设螺杆,螺杆间距 500 ,第一排螺杆离地小于200 ,最上面一排螺杆小于300 。


八、脚手架分项工程
1 、脚手架必须在硬化的地面上(不得悬空),严禁搭建在松软基层上
2 、勿忘记扫地杆(距地200mm )、水平剪刀撑和垂直剪刀撑,且应该对基层保护,必须设置连墙件,在立杆上垫上废木块。(每道剪刀撑宽度不应小于4 跨)
3 、时刻做好防护网、护栏、踢脚板(四洞口五临边),注意脚手架上的荷载,(注意清理脚手架上的废模板、散落砼等垃圾)
4 、必须持证上岗,并每天做好安全交底!

九、绑扎钢筋
1 、浇灌前对柱墙采取定位筋定位,并保护好钢筋接头,以便下次焊接、套筒连接;
2 、不能忽视钢筋节点处的搭接规范(最小锚固250mm ;弯钩10d 且不小于75mm )
3 、设置马凳筋、垫块(1m*1m )
4 、高空绑扎须做好防护措施,系好安全带等;
5 、独立基础底板钢筋布置:长在下,短在上条形基础底板钢筋布置:长在上,短在下(同板)
6 、柱筋(电渣压力焊Ф14 ~25mm ;螺纹连接=25 )梁筋(闪光对焊Ф14 ~25mm ;螺纹连接=25 )
注:焊接基本上淘汰了,因为焊接会导致钢筋的脆性增加,有可能在接头处脆断。
十、预埋件错位
1 、柱中心线采用小钉固定,以便拉线;
2 、安装螺栓前抄测标高,控制高度。
3 、螺栓安装完成,技术人员现场校核尺寸39
