1.楼梯的坡度与踏步尺寸
(1)楼梯的坡度:楼梯的坡度指的是楼梯段的坡度,即楼梯段的倾斜角度。
楼梯的坡度有两种表示法,即角度法和比值法。
角度法:一般楼梯的坡度在23~45之间,30为适宜坡度。坡度小于20时,采用坡道;坡度超过45时,则采用爬梯。
比值法:楼梯常用坡度为1:2.

(2)楼梯的踏步尺寸
楼梯的踏步尺寸包括踏面宽和踢面高。
踏面:行走时踏脚的水平部分。
踢面:形成踏步高差的垂直部分。

经验公式:
2h+b=600~620mm或 h+b=450mm
式中,h表示踢面高;b表示踏面宽。

常见的民用建筑楼梯的适宜梯段尺寸
在建筑工程中,踏面宽度一般为260~320mm,踢面高度一般为140~175mm。
在居住建筑中,踏面宽度一般为260~300mm,踢面高度为150~175mm较为合适。
学校、办公楼坡度应平缓些,通常踏面宽为280~340mm,踢面高为140~160mm。
当进深受限,为了人们上下楼梯时更加舒适,在不改变楼梯坡度的情况下,可采取踏面挑出和踢面倾斜的方法解决。



房屋层高H
楼梯段水平投影长度L

2.楼梯段的宽度与平台宽度
(1)楼梯段的宽度
楼梯段的宽度是指楼梯段临空侧扶手中心线到另一侧墙面(或靠墙扶手中心线)之间的水平距离。

(2)平台宽度
为了保证通行顺畅和搬运家具设备的方便,楼梯平台的宽度应不小于楼梯段的宽度。
开敞式楼梯间楼层平台应有一个缓冲空间,其宽度不得小于500mm。

封闭式楼梯间楼层平台一般与中间休息平台等宽,但是必须满足规范规定的局部尺寸的要求。

楼梯段的宽度计算

平台宽度计算
C为梯井宽度,是两梯段之间的缝隙宽,一般为60~200mm。
3.楼梯的净空高度

确定楼梯段上的净空高度时,楼梯段的计算范围应从楼梯段最前和最后踏步前缘分别往外300mm算起。

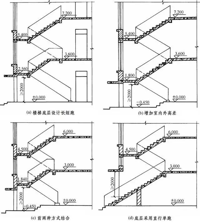
当楼梯底层中间平台下设置通道时,为满足平台下方空间净高2000mm,常采取右侧几种处理方法:

4. 栏杆扶手高度
栏杆扶手高度:指踏步前缘到扶手顶面的垂直距离。
一般建筑物楼梯扶手高度为900mm;平台上水平扶手长度超过500mm时,其高度不应小于1050mm;

幼托园建筑的扶手高度不能降低,可增加一道600~700mm高的儿童扶手。

梯井:
两个梯段之间的空隙。公共建筑梯井宽度不宜小于150mm,住宅、小学、儿童机构60-200mm。
垂直杆件间110mm。
封闭楼梯间,楼层平台一般与中间休息平台等宽,但必须满足规范规定的局部尺寸的要求。
楼梯设计的步骤石材研习社(微信号stone5A)
(1)楼梯的宽度根据房屋的层数,耐火等级和使用人数计算楼梯总宽度。
(2)确定楼梯数量和每部楼梯的梯段宽度。
(3)根据房屋类型,确定踏部的高(h)和踏步宽(b),即确定楼梯的坡度。
(4)根据房屋的层高,计算每层踏步级数(N)。
(5)根据房屋类型和楼梯在平面中的位置,确定楼梯形式。
(6)确定平台的宽度和标高。
(7)计算楼梯段的水平投影长度L和楼梯间进深最小净尺寸B。
(8)计算楼梯间的开间最小净尺寸。
(9)按模数协调标准规定,确定楼梯间开间和进深的轴线尺寸。
(10)绘制楼梯平面图和剖面方案图。
楼梯尺寸计算
以平行双跑楼梯为例,说明楼梯尺寸的计算方法,根据层高H和初选步高h定每层步数N,N=H/h。
(1)根据步数N和初选步宽b决定梯段水平投影长度L,L=(0.5N-1)Xb。
(2)确定是否设梯井。供儿童使用的楼梯梯井不应大于120mm,根据楼梯间开间净宽A和梯井宽C确定梯段宽度a,a=(A-C)/2。
(3)根据初选中间平台宽D1(D1a)和楼层平台宽D2(D2a)以及梯段水平投影长度L检验楼梯间进深净长度B,D1+L+D2=B。如不能满足,可对L值进行调整(即调整b值)。