一、总说明
本文总结了包括外脚手架、里脚手架、满堂脚手架、电梯井架等,适用于建筑、装饰工程中的脚手架工程。
脚手架搭设、拆除及所用构件,必须符合脚手架相关标准以及项目所在地相关建设工程安全防护标准的规定,架体搭设应编制、验收等应符合规范要求。
二、落地式外脚手架1、架体基础
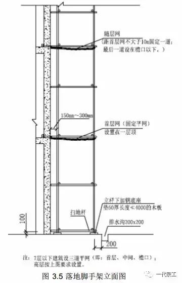
落地式外脚手架基础必须垫平夯实,在基础上沿外脚手架长度方向应设置垫板,垫板材质可采用木脚手板或槽钢等;脚手架基础应釆取有组织排水,四周设置排水沟。



构造说明:
1)立杆下部 150mm 处设置纵横向扫地杆,纵向扫地杆在上,横向扫地杆在下,均与立杆相连。
2)脚手架立杆基础不在同一高度时,必须将高处的纵向扫地杆向低处延长两跨与立杆固定, 高低差不大于 1m,靠边坡上方的立杆轴线到边坡的距离不应小于 500mm。
2、杆件布置
脚手架施工操作面必须满铺脚手板,离墙面不得大于 20cm,不得有空隙和探头板、飞跳板;
操作面外侧应设一道护身栏杆和一道 20cm 高的挡脚板;
内立杆与建筑物距离大于 150mm 时必须进行封闭;
脚手架施工层操作面下方净空距离超过 3.0m 时,必须设置一道水平安全网,双排架里口与结构外墙间水平网无法防护时可铺设脚手板;
架体必须用密目安全网沿外架内侧进行封闭,安全网之间必须连接牢固,封闭严密,并与架体固定。




构造说明:
1)架体阴阳转角处应设置 4 根立杆,大横杆应连通封闭。
2)内外立杆的连线应垂直于建筑物结构边线, 紧贴每一组立杆必须设置小横杆。
3)立杆除顶层顶部外必须采用对接,大横杆在架体转角外可以搭接,剪刀撑必须搭接。
4)剪刀撑、连墙件必须随外脚手架同步搭设、同步拆除,严禁后搭或先拆。
3、剪刀撑及横向斜撑设置
剪刀撑是对脚手架起着纵向稳定,加强纵向刚性的重要杆件,剪刀撑必须随架子的搭设高度不断增高及时加设,并且要连续设置到顶、不留间隙,斜杆底部要落在垫板上。


构造说明:
1)每道剪刀撑应跨越 5-7 根立杆, 与地面夹角为 45 -60, 杆件接长采用搭接,剪刀撑的两根斜杆均与立杆或相近的小横杆相连。
2) 24.0m 以下的外架,在架体外侧两端、转角及中间间隔不超过 15.0m 的立面上设置剪刀撑;24.0m 以上的外架,在架体外侧搭设连续剪刀撑。

3)剪刀撑斜杆的接长应采用搭接或对接,当采用搭接时,搭接长度不应小于 1m,并应采用不少于 2 个旋转扣件固定。
4)横向斜撑为双排脚手架内、外立杆或水平杆斜交呈之字形的斜杆。高度在 24.0m 以下的封闭型双排脚手架可不设横向斜撑,高度在 24.0m 以上的封闭型脚手架, 除拐角应设置横向斜撑外, 中间应每隔 6 跨距设置一道。

5)横向斜撑应设置在同一节间,由底到顶呈之 字型布置,斜撑交叉和内外大横杆相连到顶,斜撑接长必须采用搭接,不可直接用扣件连接。
4、连墙件设置
连墙件是保证脚手架稳定的最重要杆件,连墙件应从第一步纵向水平杆处开始设置,在一字型 、开口型两端必须加强设置连墙件。连墙件布置注意事项如下:


5、密目式安全网
安全网必须有出厂检验合格证及其它有关规定必须提供的相关证明文件,并符合现行规范要求。
密目式安全网在使用时必须经常检查,并有跟踪使用记录,不符合要求的安全网应及时处理。

构造说明:
1)密目式安全网应符合要求。
2)安全立网张挂必须严密,四角必须紧绷,支撑合理,受力均匀;搭接要严密牢靠,不得有缝隙。
3)安全网不得在施工期间拆移、损坏,必须在无高处作业时方可拆除。
6、立面防护设置

构造说明:
1)脚手架的钢管应横平竖直,转角位置的钢管不能超过转角 200mm,小横杆外露部分应均匀。
2)脚手架立杆应分布均匀, 一般为 1500mm, 横杆应保持水平, 一般为 1800mm,每步脚手架应设置拦腰杆,一般为 600mm 和 1200mm。
3)脚手架外侧满挂密目安全网,网体竖向连接时采取用网眼连接方式,每个网眼应用 16#铁丝与铜管固定;网体横向连接时采取搭接方式, 搭接长度不得小于 200mm。架体转角部位应设置木枋作内衬以保证架体转角部分安全网线条美观。
4) 脚手架外排立杆表面刷黄色油漆, 每隔一组或二组剪刀撑设置一道 200mm高踢脚板,固定在立杆外侧,踢脚板表面刷红白警示色油漆。
5)主节点处必须设置一道横向水平杆,用直角扣件扣接且严禁拆除。
三、电梯井操作架
电梯井操作架及后续防护方式,无论采用何种方式,均应编制专项安全施工方案。
1、分段悬挑

构造说明:
1)主体结构施工期间,在墙内预留 150150mm 方孔,采用 2 根 16#工字钢作为操作架支撑。分段搭设分段悬挑,架体高度不大于 20m,步距不大于 1.6m。
2)在施工层张挂水平网, 施工层以下每隔两层且不大于 10m 设置一道水平防护。
2、电梯井钢平台


构造说明:
1) 电梯井钢平台大小依据电梯井尺寸大小而定, 主梁采用 4 根 14#槽钢分两组背靠背焊接,次梁采用 10#槽钢,平台板采用 4mm 厚花纹钢板进行焊接。
2)在墙体预留 1501500mm 方孔,采用 4 个 14#工字钢穿墙作为架体支撑,工字钢伸出内井壁不小于 300mm,端头采用 3003004mm 钢板进行满焊。
3)平台上部焊接 4 根 60 钢管套管,操作架立杆固定在套管内采用螺杆进行连接。
4)电梯井平台与井壁之间的距离应小于 100mm。
3、自动支撑钢平台

构造说明:
1) 电梯井钢平台大小依据电梯井尺寸大小而定, 主梁采用 4 根 14#槽钢分两组背靠背焊接,次梁采用 10#槽钢,平台板采用 4mm 厚花纹钢板进行焊接。
2)在墙体预留 150150mm 方孔。
3)支腿采用 8mm 钢板围焊,内设 40 圆孔,通过铁销钉与平台主梁连接,销钉直径 38mm,支腿在提升过程中能自动旋转,提升完成后在配重作用下复位。
4)平台上部焊接 4 根 60 钢管套管,操作架立杆固定在套管内采用螺杆进行连接。
4、电梯井防护架
电梯井操作平台在提升离开后,应采用钢管穿墙搭设网格进行防护,水平防护如下图所示。

构造说明:
1)预留孔中穿 2 根 48.33.6mm 钢管,钢管外端用铜管扣件连接固定,以防滑脱。
2) 在钢管平台上铺设 50100mm 木枋, 上铺硬质材料进行封闭或张挂安全平网防护。
5、电梯井随层升降平台

构造说明:
随层升降平台为整体工具式操作平台,大小依据电梯井尺寸大小而定,平台钢梁采用 18#槽钢,立杆采用 14#可拆卸工字钢,主梁上焊接直径 22mm 圆钢作为提升点。
四、悬挑脚手架
悬挑脚手架搭设必须编制专项施工方案,方案必须包含悬挑梁平面定位布置图。
分段搭设高度超过 20m ,需组织专家进行方案论证;
悬挑脚手架的悬挑梁必须选用 16#以上的工字钢;
悬挑梁的锚固端应大于悬挑端长度的1.25倍;
悬挑长度按设计确定, 悬挑钢梁悬挑长度一般不得超过 2m; 若超过 3m,需专门设计及论证;
型钢悬挑梁固定端应采用 2 个(对)及以上锚固螺栓与建筑结构梁板固定;
楼板厚度不宜小于 120mm,小于时应采用加固措施。
挑梁的布置应保证架体力杆落在其上,并在建筑物角部荷载集中的地方应采取加强措施。(杆件搭设及防护,同前述落地式外架)

构造说明:
1)楼层预埋中 20U 型螺杆,每道钢梁设置中 16 钢丝绳作为保险绳。
2)工字钢、锚固螺杆、斜拉钢丝绳具体规格、型号依据方案计算书确定。
3)锚环在混凝土浇筑前穿 PVC 管进行预埋,螺杆丝扣用胶带进行保护。
4)脚手架底部应按规范要求沿纵横方向设置扫地杆,悬挑梁上表面应加焊钢筋以固定立杆,在横杆上方沿脚手架长度方向铺设木枋,并满铺模板进行防护。
5) 脚手架底部立杆内侧应设置 200mm 高踢脚板;底部应采用硬质材料进行全封闭。

6)钢丝绳与钢梁的夹角应在 45~ 60之间。
7)距悬挑钢梁端部 100mm 处,下面横向焊接长 80mm、直径 25mm 的钢筋作固定钢丝绳用。

8)预埋的吊环应使用光圆钢筋,其直径不宜小于 20mm(或计算确定)。


9)具体选用的钢梁型号及长度根据计算结果确定。
10)悬挑钢梁安装完后焊接 200mm 高钢筋,作为立杆的定位点。
11)悬挑钢梁的固定段长度不应小于悬挑长度的 1.25 倍。
12)悬挑钢梁的支撑点应设置在结构梁上,不得设置在外伸阳台上或悬挑板。


13)预埋环除除采用 U 型螺杆外,也可采用如下周转锚环。

锚环采用直径 20mm 的圆钢,在 10mm 厚的底座上大眼贯穿,满焊与底座上,圆钢长 35cm, 底座长 30cm, 宽 8cm, 圆钢上端 15cm 为套丝部位, 穿 PVC 管预埋于楼板内,使用完成后拆下周转使用。
14)拐角处构造,如下图所示:

五、附着式升降脚手架
附着升降脚手架,是指搭设一定高度并附着于工程结构上,依靠自身的升降设备和装置,可随工程结构逐层爬升或下降,具有防倾覆、防坠落装置的外脚手架。
附着升降脚手架主要由附着升降脚手架架体结构、附着支座、防倾装置、防坠落装置、升降机构及控制装置等构成。
供应单位必须提供设计、制造该脚手架的法定资质证书及出厂合格证,所用各种材料、工具和设备的质量合格证、材质单等质量文件。
安装单位必须提供法定的安装资质证书。
作业人员必须经过专业培训并取得上岗证书。


附着式升降脚手架使用,必须符合如下安全要求:



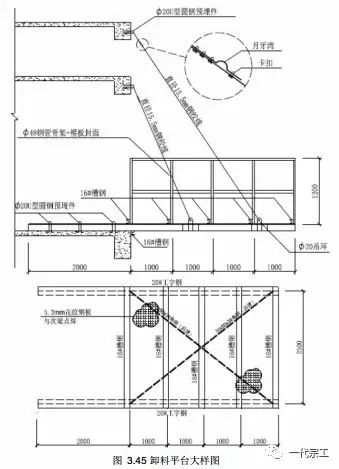
六、悬挑式卸料平台
卸料平台应根据规范和使用情况进行专项设计,用料、搭设尺寸和搭设方法应符合《建筑施工扣件式脚手架安全技术规范》要求。
卸料平台每次安装后均应进行验收,并作好记录。

卸料台安装前,应先检查预留锚环与结构的连接是否可靠,是否有松动的情况,确认无误后方可安装。
钢丝绳的锚扣,应符合规范要求。
第一次使用时应做静载实验,在确认料卸料台不变形,焊缝无开裂,锚环处砼无裂缝等现象,且经过有关部门和负责人的签字认可后,方可投入使用。


构造说明:
1)卸料平台不得与外脚手架架体直接或间接相连。


2)平台周边用钢管搭设防护栏杆, 防护栏杆内侧模板全封闭, 立杆间距 1000mm。
3)卸料平台底部应用花纹钢板焊接固定,与外架之间的间隙也应封闭好。
4)卸料平台两侧面设置固定的防护栏杆,其立杆与主挑梁焊接固定;卸料平台水平斜撑与次梁槽钢连接位置焊接。

5)防护栏杆内侧应采用钢板网封闭,并挂设限载标志牌。
6)外架平台处的横杆应采用搭接方式,以便拆改后,卸料平台能顺利安装和使用。
7)卸料平台在使用过程中,应将两侧及前方用模板竖向封闭,防止杂物坠落。
8)平台围挡内右侧挂卸料平台告示牌。

9)悬挑卸料平台前侧,可设置活动防护门。吊运长的钢管、木方时可以打开防护门,放在凹槽内,绑扎钢丝绳时更方便,以此避免将长物料堆放到防护挡板上。
10)悬挑卸料平台下设挑网,防止落物伤人。