
其中有一根梁,它是酱婶儿的:

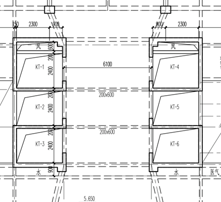
这两个筒之间的梁,截面尺寸是200*600,跨度6.1m,跨高比超过10。按照高规7.1.3的规定,这个梁应该按框架梁进行设计。

是滴,如按框架梁进行设计,那抗震等级就应该是二级咯。
但是,亲们请看条文说明:

这道理说得清清楚楚,但这最后一句又是咋回事呢?
咱先看看这个规定是在哪一章。对了,是在第七章剪力墙结构。所以,你知道问题出在哪了吗?剪力墙结构里面是没有框架的,因此你也查不到框架的抗震等级。于是,就在条文说明里面提示了一下各位童鞋:可以按剪力墙的抗震等级
哈哈,我就说嘛,建研院主编的规范哪能不遵守编制规定,在条文说明里面做规定呢?(条文说明只能解释条文,不能做新的规定!)这个工程是框架-剪力墙结构,这根梁也具有典型的框架梁的受力特征。所以按框架梁进行设计,抗震等级取二级应该是可以的
那抗震等级有没有必要与剪力墙取为一致,定为一级呢?我们就要看看这个梁的作用有没有其他的框架梁大了。貌似也没有,我看这个梁倒更像是一个楼面梁。而且这个梁的混凝土标号,显然也是随楼面而不是随剪力墙的
所以总结一下这里涉及的两个基本的常识:
1.规范的条文说明不具备与条文同等的法律效力,也不能在条文说明里面做补充规定
2.施工图审查主要看是否符合国家有关工程建设标准和规范的强制性规定,不包括推荐性标准,也不包括标准图
从这两条出发就可以看出,框剪结构里面受力性能接近框架梁的梁,即使两端与剪力墙面内直接连接,也应该按框架梁设计,根据框架确定抗震等级,这样做也并不违反规范规定。