一、某电气照明工程的工程概况、施工图与施工说明
1、工程概况、施工图
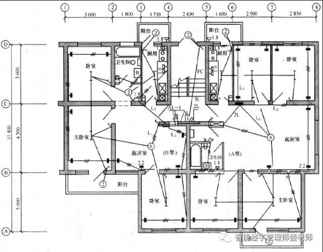
本设计图共两张,其中电气照明平面图如图3-1所示,配电系统图如图3-2所示。
(1)建筑概况。本住宅楼共6层,每层高3m,一个单元内每层共两户,有A、B两种户型:A型为4室1厅,约92m2;B型为3室1厅,约73m2。共用楼梯、楼道。
(2)供电电源。每层住宅楼采用220V单相电源、TN-C接地方式的单相三线系统供电。
2、施工说明
(1)在楼道内设置一个配电箱AL-I,安装高度为1.8m,配电箱有4路输出线(1L、2L、3L、4L),其中,1L、2L分别为A、B两户供电,导线及敷设方式为BV-3X6-SC25-WC(铜芯塑料绝缘线,3根,截面积为6mm2,穿钢管敷设,管径为25mm,沿墙暗敷),3L供楼梯照明,4L为备用。
(2)住户用电。A、B两户分别在室内安装一个配电箱,其安装高度为1.8m,分别采用3路供电,其中Ll供各房间照明,L2供起居室、卧室内的家用电器用电,L3供厨房、卫生间用电。
(3)除非图面另有注释,房间内所有照明、插座管线均选用BV-500型电线穿PVC20型管,敷设在现浇混凝土楼板内;竖直方向为暗敷设在墙体内。照明、插座支线的截面积一律为2.5mm2,每一回路单独穿一根管,穿管管径为20mm。
(4)除非图面另有注释,所有开关距地1.4m安装,插座距地0.4m安装。
(5)所有电气施工图纸中表示的预留套管和预留洞口均由电气施工人员进行预留,施工时与土建密切配合。

图3-2 某住宅楼供电系统图

图3-1 某住宅楼电气照明平面图
二、施工图预算的编制依据及说明
1、施工图预算的编制依据
①工程施工图(平面图和系统图)和相关资料说明。
②2004年江苏省颁发的《全国统一安装工程预算定额江苏省单位估价表》
③国家和工程所在地区有关工程造价的文件。
2、施工图预算的编制要求
本例的工程类别为一类工程,施工地点为南京市区。
三、分项工程项目的划分和排列
(阅读施工图和施工说明,熟悉工程内容。从电气照明平面图及电气施工说明中可知:该工程每层楼设配电箱一个(AL-1),每户设配电箱一个(AL-1-1、AL-1-2),均为嵌入式安装。楼层配电箱到户内配电箱为6mm2铜芯塑料绝缘线穿钢管沿墙暗敷。每户的配电箱均引出3条支路,各支路为2.5mm2铜芯塑料绝缘线穿UPVC管暗敷,其中照明回路沿墙和楼顶板暗敷,插座回路沿墙和楼地板暗敷。各种套管在土建施工时已经预埋设。
阅读工程图后,对工程内容已经有了一定了解,下一步可根据预算定额的规定对工程项目加以整理,避免漏项和重复立项。)
本工程可划分如下分项工程项目
1、暗装照明配电箱。
2、敷设钢管(暗敷)。
3、敷设UPVC管(暗敷)。
4、管内穿线。
5、安装接线盒。
6、安装半圆球吸顶灯。
7、安装吊灯。
8、安装单管成套荧光灯。
9、安装板式开关(暗装),
10、安装单相三孔插座。
四、工程量计算
1、计算工程量
(1)照明配电箱的安装
每层1台公用,每户1台,共3台。
(2)钢管的敷设(暗敷)
其中有单联、双联和三联。
①由配电箱ALl至AL-1-1:其敷设钢管SC25的长度为1.2+1+1.2=3.4(m)。
②由配电箱AL-1至AL-1-2:其敷设钢管SC25的长度为1.2+2.66+1.67=5.53(m)。
(3)UPVC管的敷设(暗敷)
①B型单元。
对于L1回路,有:
1.2(开关箱至楼板顶)+0.44(开关箱水平至起居室6号吊灯开关)+1.55(起居室6号吊灯开关水平至6号吊灯)+3.55(6号吊灯至卧室荧光灯)+1.55(卧室荧光灯至开关)+3.89(6号吊灯至主卧室荧光灯)+1.33(开关)+2.22(主卧室荧光灯至阳台灯开关)+0.89(阳台灯开关至阳台灯)+3.66(主卧室荧光灯至卧室荧光灯)+1.33(卧室荧光灯至卧室荧光灯开关)+2.55(卧室荧光灯至2号灯)+0.56(2号灯至开关)+2(2号灯至厨房灯)+1.67(厨房灯至开关)+1.67(厨房灯至阳台2号灯开关)+1.33(厨房阳台2号灯开关至2号灯)+1.28(8只灯,由房顶楼板至开关)=40.99(m)
对于L2回路,有:
1.8+1.33+2.22+3.1+2.89+2.44+1.89+3+6.55+3+0.413=33.42(m)
对于L3回路,有:
1.2+2.22+1.2+2.22+2+0.22+1.11+0.8+0.56=11.53(m)
②A型单元。
对于L1回路,有:
1.2+2.78+4+3.89+1.67+3.66+1.78+2.22+1.34+3.89+1.67+2.78
+1.67+2+1.67+1.67+1.11+1.68=51.8(m)
对于L2回路,有:
1.8+3.63+4.2+3.6+2+7.22+3+1.33+3.11+7+1.81+0.412=43.49(m)
对于I3回路,有
1.8+3.6+2+2+1.44+1.82+11+0.42=16.24(m)
(4)管内穿线
①钢管内穿6mm2铜芯塑料绝缘线,所需长度为
(3.4+5.53)3=26.69(m)
②B型单元。
L1回路为照明回路,都为两根线,只有起居室6号吊灯开关水平至6号吊灯为3根线,所需长度为
40.992(全部管长)+1.55=83.53(m)
L2回路为插座回路,都为3根线,所需长度为
33.423=100.26(m)
L3回路为插座回路,都为3根线,所需长度为
11.533(全部管长)=34.59(m)
③A型单元。
Ll回路为照明回路,都为两根线,只有起居室6号吊灯开关水平至6号吊灯为4根线所需长度为
51.82+42=111.6(m)
L2回路为插座回路,都为3根线,所需长度为
43.493=130.47(m)
L3回路为插座回路,都为3根线,所需长度为
16.243=48.72(m)
(5)接线盒的安装
①B型单元。
Ll回路:7+8(开关盒)=15个
L2回路:13个。
L3回路:6个。
②A型单元。
Ll回路:4+8(开关盒)=12个。
L2回路:10+2=12个。
L3回路:9个。
(6)半圆球吸顶灯的安装
每户3只,共6只。
(7)吊灯的安装
每户1只,共两只。
(8)单管成套荧光灯的安装
A型单元5只,B型单元4只,共9只。
(9)板式开关的安装(暗装)
其中有单联、双联和三联之分。A型单元9只,B型单元9只,共18只。
(10)单相三孔插座的安装
A型单元20只,B型单元18只,共38只。
2、工程量列表
工程量计算完后,为便于计算,将工程量以表格形式列出。如表3-1所示。

表3-1 工程量计算表
五、套用定额单价计算工程量定额费用
1、整理工程量、套定额,计算工程定额直接费(不含主材费用)
整理、计算结果见表3-2。

表3-2 工程预算表
2、计算主材费用
表3-3所示为主材费用计算。
表3-3 主材费用计算表

3、分部分项工程量清单总费用
1615.18+761.61(37/26-1)+4698.24=6635.64(元)
式中37/26为现行人工单价与定额人工单价的比。
六、计算措施项目费、规费、税金和工程造价(参表3-4)
1、措施项目费(原按系数计取的直接费)
在电气安装工程中脚手架搭拆费按人工费的4%计取,其中人工费占25%。
脚手架搭拆费=人工费4%=761.61(37/26)4%=43.35(元)
其中人工费=脚手架搭拆费25%=10.84(元)
2、规费(原间接费)
(1)工程定额测定费:费率1;
(2)安全生产监督费:1.9
(3)建筑管理费:3;
(4)劳动保险费:13
规费=(6961.03+43.35)18.9=7004.3818.9=132.38(元)
3、税金
税金=(6961.03+43.35+132.38)3.412%=7136.763.412%=243.51(元)
表3-4 江苏省安装工程造价计算程序(包工包料)

4、1单元电气照明工程造价
1单元一层的电气照明工程造价:
=分部分项工程量清单费用+措施项目费+规费+税金
=6961.03+43.35+132.38+243.51=7380.27(元)
1单元电气照明工程造价:
=7380.276=44281.62(元)