预制构件的设计
装配式结构在进行结构布置时,为了减少装配的数量及减小装配中的施工难度,往往不设置次梁。在进行梁柱等构件布置时,应提前知道工厂生产设备生产构件截面尺寸的边界条件,否则设计的构件无法生产。在进行剪力墙布置时,墙的布置应尽量去方便工艺拆分。
板的传力模式应根据产业化公司板的类型确定,如果采用双向叠合板,则可以不改变受力模式,如果采用单向预应力叠合板或者单向预应力空心板,则应把板的受力模式改为对边传到,单向传力。楼板的配筋,在非主要受力方向,应该进行包络设计(构造+现浇厚度双向板该方向计算)。
装配式结构用PKPM 等软件进行计算时,周期折减系数梁刚度增大扭矩折减系数等与传统设计有细微的差别,在设计中应认真对待。
装配式结构在绘制施工图时,应尽量减少柱或者剪力墙边缘构件中的套筒个数,节省造价。装配式剪力墙结构中剪力墙进行布置时,除了按传统剪力墙结构中的思维去布置剪力墙外,还应注意如下要点:
(1)在对剪力墙结构进行布置时,多布置L、T 型剪力墙,少在L、T 型剪力墙中再加翼缘,特别是外墙,否则拆墙时被拆分的很零散。
(2)剪力墙结构中翼缘长度,有两种不同的思路:
第一种是,对于L 型外墙翼缘长度一般≦600mm,T 型翼缘分长度一般1000mm(防止边缘构件现浇长度太长而在浇筑中出现问题),在门窗处留出200mm 的门垛,如图1 所示:

1、1800mm 为窗宽,200mm 为留出的窗垛(方便拆分),1000mm 为翼缘长度;
2、箭头处在层高方向,只有梁与现浇边缘构件钢筋进行锚固,在其下的200mm 窗垛与现浇边缘构件之间没有钢筋连接,只有预制混凝土与现浇混凝土相连,咬合力不是很好,在地震作用时是薄弱部位,不会与边缘构件形成整体一起受力,不应有安全问题。
3、当窗垛600mm 时,可以做空心外隔墙,也能与现浇边缘构件在交接处形成薄弱部位,不会与边缘构件形成整体一起受力,不应有安全问题。
4、装配式规范要求约束边缘构件部位宜现浇,且窗户一般应带200 的垛,所以留出200mm 的混凝土垛也是出于此方面考虑。
第二种是,对于L 型外墙翼缘长度可600mm,T 型翼缘分长度可1000mm,翼缘端部顶着窗户,如图1-2 所示:

1、1800mm 为窗宽,1400mm 为翼缘长度,其中600mm 为现浇,400mm 为预制;
2、梁带外隔墙(含窗户)与400mm 剪力墙一起预制,再把钢筋锚入600mm 现浇混凝土中;
3、箭头处在层高方向,与400mm 预制边缘构件整体相连,由于开了很大的窗洞,在箭头处是薄弱部位(地震作用时),不会与边缘构件形成整体一起受力,不应有安全问题。
(3)剪力墙与带梁隔墙的连接,主要是满足梁的锚固长度,在平面内一般不会出现问题,因为往往暗柱留有400mm 现浇(200 厚墙)或者与暗柱一起预制;一字型剪力墙平面外一侧伸出的墙垛一般可取100mm(可能出现套筒个数太多,不好安装。无论在剪力墙平面内还是平面外,门垛或者窗垛200mm 或者为0mm。当梁钢筋锚固采用锚板的形式时,梁纵筋应14mm(200 厚剪力墙)。
(4)有时候梁带墙一起预制,起重质量过大,不得不把剪力墙的长度加大;
(5)有时候,门跺部位预制构件长度太短,可以让其与剪力墙一起预制,加大剪力墙长度;
(6)剪力墙结构中梁无论现浇预制,面筋一般一排2 根钢筋,最多做2 排(现浇时,从理论上面筋可以放三根18,但施工时无法浇筑混凝土)。
(7)电井旁边管线较多时,现浇部分厚度一般60~80mm,以80mm 居多。
(8)尽量将柱子的截面尺寸一样,模具不变,根数相同,直径不相同。剪力墙与连梁也是一样,根数一样,直径不一样,侧模不变。
(9)板跨6m 以上用预应力,效果比较好,才比较经济,主要是挠度。所以一棟房屋中,建议采用双向叠合板(桁架钢筋)+单项预应力叠合板,这样一般比较经济。
墙体的拆分设计
本文分为二部分:
第一部分,墙常规拆分方法;
第二部分,分析问题与解决问题的拆分方法。
第一,墙常规拆分方法
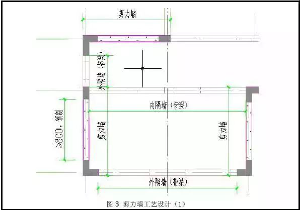
(1)对于装配式剪力墙结构,L、T 形等外部或内部剪力墙中墙身长度1000mm 时,墙身(非阴影部分)一般预制,但其边缘构件处现浇(图1~图5 中阴影部位)。外隔墙(带梁)一般为预制,如图3 所示。

1. 边缘构件现浇,基于以下因素设计:第一是受力的角度,边缘构件为重要受力部位,应该现浇;第二,边缘构件两端一般为梁的支座,梁钢筋在此部位锚固,应该做成现浇。
2. 预制外墙比较短且全部都开窗或者门洞时,预制外墙可以与相邻剪力墙的边缘构件(暗柱)一起预制,将现浇部位向内移。
3 .如果预制长度太短,在满足起吊总重量的前提下,该范围的剪力墙可以与边缘构件及外隔墙带梁一起预制,减少装配构件的个数。
(2)L、T 形等形状的外部或内部剪力墙中暗柱长度范围内平面外没有与之垂直相交的梁时,如果满足起吊重量,此暗柱与相邻的外隔墙(带梁)、墙身进行预制,如图4 所示。

(3)外隔墙或内隔墙垂直方向一侧有剪力墙与之垂直相交时,如果满足起吊重量,可将隔墙连成一块,方便吊装与施工,与剪力墙的连接如图5 所示。图5

(4)现场装配的外部剪力墙设计时,图6 中暗柱区域现浇,此时尚存200mm 长度的施工空间,现场施工困难,可采用图7 中的设计方法。

(5)电梯井、楼梯处的剪力墙宜现浇。
(6) 剪力墙与带梁隔墙的连接,主要是满足梁的锚固长度,在平面内一般不会出现问题,因为往往暗柱留有400mm 现浇(200 厚墙)或者与暗柱一起预制;一字型剪力墙平面外一侧伸出的墙垛一般可取100mm,门垛200m,整体预制时可为0。无论在剪力墙平面内还是平面外,门垛或者窗垛200mm 或者为0(留刀把)。当梁钢筋锚固采用锚板的形式时,梁纵筋应14mm(200 厚剪力墙,平面外)。需要注意的是,现浇暗柱的位置可以在图集规定的位置附近转移。
第二,分析问题与解决问题的拆分
(1)图8 中,梁带隔墙中的外隔墙会直接传力给下一层梁,并逐渐累加至以下几层,实际受力与计算模型不符合,本工程在重新进行拆分时,将400mm 长现浇部分转移,剪力墙下面隔一定间距布置20mm 厚垫块,梁带隔墙下不布置,很好的解决了以上问题,如图9所示。


(2)图10 中楼梯间外墙采用现浇时,会导致施工周期延长,成本增加等,本工程在重新进行设计时,加大楼梯间相邻板厚,让预制楼梯梯段两侧的剪力墙全部为预制,很好的解决了以上问题,拆墙方法如图11 所示。


注:图中虚线为预制梯段板范围。
(3)预制化率不高
《装配式混凝土结构技术规程》中规定构造边缘构件可以采用预制+构造的施工方法,经相关的研究,把XX 技术应用到构造边缘构件中,通过在预制剪力墙上开缺,能提高结构预制化率,采用新的拆墙工艺设计原则后,墙拆如图9、图11~~图13 所示。

注:边缘构件上开缺,用现浇混凝土与叠合梁进行连接。