一、装修图纸设计问题
装修图纸设计就好比做计算题在草稿纸上演算一遍,再把正确答案写在书本上,装修图纸设计也是如此,在经过不断的修改和检查再把正确的方案进行施工,可见,重要性非同一般。
①建筑结构图中其尺寸、比例是否标注清楚,有没有意图不明或者是相互矛盾的地方;
②整体装修图纸是否包含了全部房间设计;
③从施工角度看,有没有存在施工难度大或者是不可能完成的施工项目;
④细节地方的装修尺寸是否标注清楚,做法是怎样,比如窗台的做法、尺寸以及门的材质和门垛尺寸大小;
⑤材料选用是否合理,设计是否能满足质量方面的需求;
⑥预留洞、预埋件是否存在错漏德文情况;
⑦门窗、构件的尺寸大小、数量、规格是否相等;
二、如何看待图纸
新房整体装修效果前期在于对装修图纸的把控,不少装修小白表示看不懂装修图纸如何来把控装修效果呢?所以接下来就一起来看搞懂装修图纸的要点。
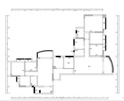
①原始建筑绘测图

原始建筑测量图包括房间的具体开间尺寸、墙体厚度、层高、房间梁柱位置尺寸、门窗洞口的尺寸位置等,是所有图纸最基础的存在,后期的设计都在建筑绘测图上进行,因此,原始绘测图也是最基本最重要的把握对象。
②装修平面图

装修平面图是最能一目了然的图纸,包含信息也是十分丰富,各个区域都能合理的体现出来,也都注明了各区域的名称;墙壁的厚度以及房间的尺寸大小都能清楚的编标志清楚,就连装饰品以及开门方向都能清楚的标识出来,能够一目了然,通俗易懂。
③天花吊顶图

天花吊顶图也是非常重要的图纸设计,在吊顶造型时其标注的尺寸大小、灯具安装位置以及详细的索引,并在天花层高处标注相应的尺寸厚度以及备注各个功能区的名字。