①空调风系统施工工艺流程
②风管制作工艺
③风管安装工艺
④风机安装工艺
⑤空调水系统安装
⑥风管实验
⑦末端安装
1空调风系统施工工艺流程

2风管制作工艺
风管制作流程

风管选型
根据施工现场具体情况,采用角钢法兰、共板法兰和插条式连接三种工艺连接或者联合使用。工艺及风管边长划分、风管钢板厚度如下:


风管样品制作
样品先行
在风管加工前,应该预先对风管进行编号预排布,合理布置开风口、三通、支架等部位管段长度;风管各种标准件提前制作样品,大面积施工按样品标准制作。

风管加工与施工过程中应注意成品保护,风管起筋、咬口、翻边加工后产品垂直堆放,防止变形。

风管制作
法兰细节要点
① 风管法兰平整,焊缝饱满,无缺口。
② 风管法兰铁皮翻边量大于6mm,小于9mm;翻边紧贴法兰,平整、无翘起,风管四角铁皮重叠处铲平无豁口,打胶严密。

③ 共板法兰风管四角制作豁口应该打胶严密,打胶应该抹平整,不出现堆叠现象。


衔接要点
金属钢板风管法兰螺栓连接螺栓孔间距应均匀,四角应有螺栓孔,送排风与空调系统风管孔距为120mm,防排烟风管孔距为80mm;螺栓孔朝向应一致。

共板法兰风管法兰卡应无毛刺、规格一致、铁皮厚度与尺寸应满足图集要求;法兰卡应该一正一反安装,便于更好受力,相邻法兰卡边缘间距为80mm。

3风管安装工艺
吊架安装
风管吊架要点
风管水平安装,直径或边长400mm,吊架间距应4m;直径或边长>400mm,吊架间距应3m。吊杆离风口及其他部件距离应大于200mm;
风管末端吊架离风管距离应不大于1000mm(一般控制在200mm)。

当水平悬吊的主、干风管长度超过20m时,应设置防止摆动的固定点,每个系统不应少于1个。

风管封堵
风管封堵要点
风管穿越防火墙应设有钢板厚度1.6mm及以上的套管。套管内部应用玻璃棉等不燃材料封堵,外面用防火泥抹面。


风管部件安装
防火阀和条形散流器安装
① 防火阀应安装在顺气流方向一侧,离墙距离不超过200mm。
② 大于630mm的防火阀需设独立吊架。吊架设置不能影响防火阀执行机构动作,应采用在防火阀顶部设置吊耳的方法。

风管底部连接条形散流器应设短管,若设置在风管侧面则短管上应设置独立吊架。

4风机安装工艺
风机安装
落地式风机安装
设备基础必须经过交接验收,其大小、平整度应满足设备安装要求。风机与基础接触处应有橡胶减振垫或弹簧减振器等减振措施,且减振电或弹簧应考虑动荷载。

吊挂式风机安装
吊挂式风机安装如果风机顶部离楼板距离小于300mm,采用圆钢吊杆上设弹簧减振器,减振器应设置于风机顶部以上位置,吊杆与风机外壳应有50-100mm的距离。若大于300mm,采用角钢或者槽钢制作防晃式吊架框。

风机连接
柔性短管安装
空调风机与风管应采用柔性短管连接,两边法兰应同轴平行、不错位,短管长度为150mm-300mm。柔性短管采用绿色防水、防尘、防霉、阻燃功能的帆布。

排烟风管的柔性短管,应采用桔红色消防专用不燃帆布,长度150mm-300mm。

风机设备接地
风机与风管连接
室外风机软接与风管之间应做跨接处理,跨接线应该为卷圈软线。

风机基础、设备本身、套管均应采用软线接至接地扁钢。

5空调水系统安装
空调水系统组成
典型中央空调机组主要由冷冻水循环系统、冷却水循环系统及主机三部分组成:

管道焊接流程

管道焊接
焊接要点
坡口机开口,标准美观;坡口氧化层与杂质打磨干净,坡口根部留有3mm缝隙,便于焊透,管道组对平直,无错边,开完坡口后要及时焊接。

焊缝成直线、表面平整无焊瘤、咬肉、凹陷和飞溅。焊接完成后及时处理焊缝。平焊法兰片焊接应采用双面焊,焊缝平整饱满。

风机盘管安装
风机盘管安装
风机盘管尽量贴近楼板水平安装,顶部留出100mm以上空间操作与检修即可。便于管道系统排气泄水以及冷凝水坡度要求。风机盘管安装应该注意在前后与下部留出送回风管与风口安装空间。

供水管依次为球阀(闸阀)-过滤器依次为球阀(闸阀)-过滤器-金属软管。回水管阀门及部件依次为球阀(闸阀)-电动二通阀-金属软管。所有阀门的阀柄不得朝下,电动二通阀应垂直向上安装。

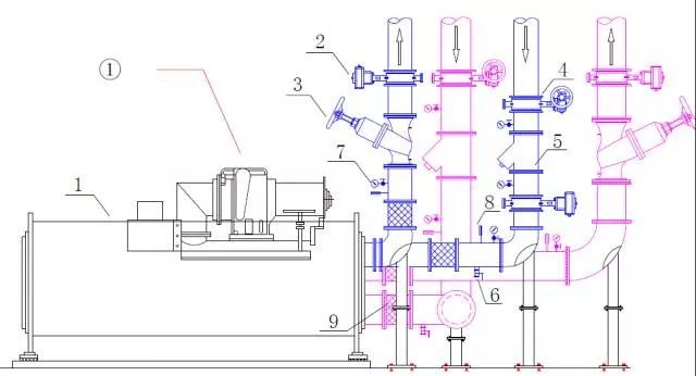
制冷机组安装
制冷机组安装
冷水机组常规接管图:1-冷水机组,2-电动阀,3-平衡阀,4-蝶阀,5-Y 型过滤器,6-泄水阀,7-压力表,8-温度计,9-软接头。

在弹簧减震器下部设置水平度调整钢板,便于设备一次就位 。机组找平可根据设备的具体外型选定测量基准面,用水平仪测量,拧住地板上的螺栓进行调整,机组纵向、横向的水平偏差均不大于1/1000。

冷却塔安装
冷却塔基础尺寸标高、强度均应满足要求基础高度按管道安装要求而定。基础经过找平找正后安装减振装置,减震装置与设备及基础螺栓固定。

冷却塔处于太阳暴晒的冷却水管可根据当地气象条件建议设计变更,保温后做保护壳,保护管道,提高制冷机组效率。

管道及设备保温
管道保温
保温材料表面平整、清洁、密实、相贯线流畅美观。阀门及各类部件单独保温,便于拆卸维护,管道标识清晰。

6风管实验
1、漏光试验:风管系统安装完成后,进行风管漏光检测。在夜晚进行,手持移动光源可采用不低于100w带保护罩的低压照明灯,或其他低压光源,光源可置于风管内侧或外侧,但其相对侧应为暗黑环境。检测光源应沿着被检测接口部位与接缝做缓慢移动,在另一侧进行观察,当发现有光线射出,则说明查到明显漏风处,并应做好记录,并填写《风管漏光检测记录》。
2、风管漏风检查:中压系统风管的严密性检验,应在漏光法检测合格后,对系统漏风量测试进行抽检,抽检量为20%,且不得小于1个系统。漏风量测试装置应采用经检验合格的专用测量仪器并填写《风管漏风检测记录》。
7末端安装
吊顶板上烟感、喷头、风口及灯具安装均匀合理的布局。

灯具、风口、喷洒头合理布置。
