一、空调负荷计算
1.空调负荷计算的组成(QL)
(1)由于室内外温差和太阳辐射作用,通过建筑物围护结构传入室内的热量形成的冷负荷;
(2)人体散热、散湿形成的冷负荷;
(3)灯光照明散热形成的冷负荷;
(4)其他设备散热形成的冷负荷;
(5)渗透空气所形成的冷负荷
(6)新风量负荷
2.空调负荷计算方法简单介绍
空调动态负荷的计算显得比较繁琐,即便是采用一些简化手段,计算工作量也是比较大的。估算最简便,捷径行路,人之通性,慢慢的被它取而代之了。
但是估算的根据并不坚定,偏于保守是不可避免的,总是顾虑怕估算的小了,这也是可以理解的。估算法也要注意与实际相符合,要根据实际的经验以及不同建筑的各自不同的情况。目前空调负荷的计算还是以估算为主。
3.民用建筑空调单位面积冷负荷(qL)

4.负荷计算单位面积冷负荷法
QL=qLS
式中:QL建筑物空调房间总冷负荷 (W)
QL 冷负荷 (W/m2 )
S 空调房间面积 (m2)
二、 空调末端(风机盘管)的计算与选择
(1)根据风量:房间面积、层高(吊顶后)和房间气体循环次数三者的乘积即为房间的循环风量。其对应的风机盘管高速风量,即可确定风机盘管型号。
(2)根据冷负荷:根据单位面积负荷和房间面积,可得到房间所需的冷负荷值。利用房间冷负荷对应风机盘管的中速风量时的制冷量即可确定风机盘管型号
一般采用第二种方法根据冷负荷选择风机盘管,在特殊场合如对噪音要求较高的场所,可用第一种方法进行校核。
确定型号以后,还需确定风机盘管的安装方式(明装或安装),送回风方式(底送底回,侧送底回等)以及水管连接位置(左或右)等条件。
房间面积较大时应考虑使用多个风机盘管,房间单位面积负荷较大,对噪音要求不高时可考虑使用风量和制冷量较大的风机盘管。注意:对于风管超过一定长度的风盘,应采用中、高静压的风盘,且出风管道上不宜多于两个出风口。
三、 采暖负荷计算
1.采暖负荷计算的组成(Qn)
冬季采暖通风系统的热负荷,应根据建筑物下列散失和获得的热量确定:
1)围护结构的耗热量,包括基本耗热量和附加耗热量,
2)加热由门窗缝隙渗入室内的冷空气的耗热量
3)加热由门、孔沿及相邻房间浸入的冷空气的耗热量;
4)建筑内部设备得热;
5)通过其他途径散失或获得的热量。
对于一般民用住宅层高在3m 以下工程上可采用面积热负荷法进行概算。
单位面积热负荷法:
Qn=KqnS
式中:Qn 建筑物的采暖设计热负荷,W
S建筑物的建筑面积,m2;
qn 建筑物的采暖单位面积热负荷,W/m2,
K附加系数
建筑各个区域的围护结构、冷空气渗透情况均有差别,如果需要计算的较为准确,应根据各个区域在建筑中的位置(如:是否靠近外墙、外墙上的门窗)和门窗(是否有冷空气渗透)进行分别计算。
2. 室内采暖单位面积热负荷计算(qn)
1)一般原则
别墅的负荷一般要比住宅的大一些。
别墅的顶层负荷要大于中间层或底层。
普通卫生间根据面积提供500~1000W的定值来计算。
别墅地下室一般不配。
客卧一般负荷相对较大。
对于外墙较大或玻璃面积较大的,建议做负荷计算
2)室内采暖单位面积热负荷估算表(qn)

3. 附加系数
附加系数为采暖面积与全房间面积的比值,根据下表进行选择:

上表的附加系数为标准推荐数值,在实际工程中应根据实际情况做出具体调整。
房间进深大于6 米时,以距外墙6 米为界分区当作不同的单独房间,分别计算供暖热负荷。
4.另一种采暖热负荷的估算办法
Qn=aRnV(tn-tw)
Qn 采暖热负荷 W
tn 室内空气温度 ℃
tw 室外供暖计算温度 ℃
V建筑的体积 m3
Rn 体积热指标 根据建筑的保温情况宜取0.4-0.7
a修正系数。请参考下表

四、 采暖末端计算与选择
1. 地暖盘管
地暖面盘管的管间距直接影响到地板的散热量,而地板散热量需满足室内负荷的要求。
管间距根据管材、室内设计温度、供水温度、地板材料等因素而定。
下表是PE-RT管材,地面材料为水泥地砖,在不同水温、室内温度和管间距的条件下的地面散热量(其他地面材料的散热量数据见附录1)

2. 散热片
根据散热片进出口水温,求出散热片平均水温;
根据室内设计温度求出散热温差;
根据散热温差查散热片选型表,获得单片散热量q。
五、 空气源热泵冷暖机组配置计算
1. 确定建筑的负荷
由设计院获取
根据建筑物的负荷指标和相应建筑面积的乘积,得出建筑的负荷。
将各空调房间的负荷逐个相加得出空调总负荷。
2. 机组台数和容量的确定
机组总负荷的确定:建筑的负荷或空调总负荷80%左右的同时使用率。公寓房可不考虑同时使用率。特殊情况需根据建筑功能和使用情况确定。
大、中型工程应选二台以上,但不宜过多,并考虑备用机组的可能性。
若建筑物的最大负荷与最小负荷的差距过大,宜大、小容量机组搭配工作。
六、 机组安装位置规划和环境控制
1. 机组安装位置规划
1) 热泵主机的安装与空调室外机的安装要求相似。可安装在屋顶、阳台、地面上。出风口应避开迎风方向。
2) 主机(侧出风)与四周墙壁或其他遮挡物之间的距离不能太小,出风口1米内不应有遮挡物,保证主机换热器的吸热散热不受阻碍。
3) 主机(顶出风)进风口1米内不能有遮挡物,出风口2米内不应有障碍物,保证主机换热器的吸热散热不受阻碍。
当机组安装在屋檐下或机组上方有水平障碍物时,机组的安装位置必须在通风良好的地方,否则容易发生气流短路,造成机组散热能力差。
2. 机组安装环境控制
1) 尽量不在阳光直射的地方。
2) 不在卧室的窗台或卧室的附近。
3) 进、出风有足够的距离,便于散热。
4) 能承受室外机自重的 2-3 倍以上的地方。
5) 没有油烟或其它腐蚀气体的地方。
6) 不影响其它因素或环境的地方。
七、 采暖和冷暖系统介绍
1. 采暖和冷暖系统分类
1) 开式循环系统:管路中的循环水与大气相通的系统。循环水水与大气接触,易腐蚀管路;用户与机房高差较大时,水泵则需克服高差造成的静水压力,耗电量大。
2) 闭式循环系统:管路系统不与大气接触,在系统最高点设有排气阀的系统。管道与设备不易腐蚀;不需克服高度差,从而循环水泵功率小。
3) 同程式系统:并联环路中的各支路的流程都是相等的系统。
◆优点:系统的水力稳定性好,各设备间的水量分配均衡。
◆缺点:由于采用回程管,管道的长度增加,水阻力增大,使水泵的能耗增加,并且增加了初投资。

4) 异程式系统:并联环路中的各支路流程不等的系统
◆优点:异程式系统简单,耗用管材少,施工难度小。
◆缺点:各并联环路管路长度不等,阻力不等,流量分配难以平衡。

5) 定水量系统:系统中循环水量为定值,或夏季和冬季分别采用不同的定水量,负荷变化时,改变供、回水温度以改变制冷量或制热量的系统。
特点:定水量系统简单,操作方便,不需要复杂的自控设备和变水量定压控制。
6) 变水量系统,一般适用于间歇性降温的系统(影院、剧场、大会议厅等):保持供水温度在一定范围内,当负荷变化时,改变供水量的系统。
特点:变水量系统的水泵的能耗随负荷较少而降低,在配管设计时可考虑同时使用系数,管径可相应减少,降低水泵和管道系统的初投资;但是需要采用供、回水压差进行流量控制,自控系统比较复杂。
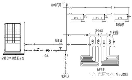
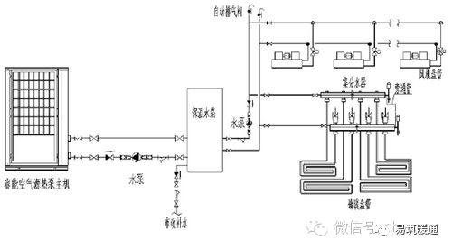
2. 空气源热泵采暖和冷暖常用系统型式
采暖系统图不带缓冲水箱

采暖系统图带缓冲水箱

冷暖系统图不带缓冲水箱

冷暖系统图带缓冲水箱
八、 水泵选型计算
冷暖系统按空调系统的水流量和水阻力选定水泵流量和扬程。
1. 水泵的流量:
在没有考虑同时使用率的情况下选定的机组,可根据产品样本提供的数值乘以1.1~1.2倍的系数选用。
如果考虑了同时使用率,建议用如下公式进行计算。公式中的Q为没
有考虑同时使用率情况下的总负荷。
L = Q0.86/ △T
L循环水流量 m3/h
Q总负荷 kW
△T进回水温差 ℃(采暖系统取10℃,冷暖系统取5℃)
水泵的流量 = (1.1~1.2)系统循环水量
2. 水泵的扬程:应为它承担的供回水管网最不利环路的总水压降。
最不利环路阻力计算经验公式如下:
Hmax =p1+p2+0.05L(1+ K)
△P1:机组内部的水压降;
△P2:最不利环路中并联的各末端装置的水压损失最大一台(或部分)的水压降。
0.05L:沿程损失取每100m管长约5mH2O;
式中K为最不利环路中局部阻力当量长度总和与直管总长的比值。当最不利环路较长时K取0.2~0.3;最不利环路较短时K取0.4~0.6。
水泵扬程(mH2O)= (1.1~1.2) Hmax
3. 其他要求:
水泵必须选用热水泵,其Q~H 特性曲线,应是随着流量的增大,扬程逐渐下降的曲线。同时适用于水/乙二醇(最高30%)溶液。
应根据水泵提供商提供的参数要求,并根据现场水力系统的要求选泵,水泵应在其高效区内运行。
九、 膨胀罐选型计算

C = 系统中的水容量(包括热泵主机、管道、末端等)约为系统循环
水流量的1/15 到1/20。
e = 水的热膨胀系数(系统冷却时水温和锅炉运行时的最高水温的水
膨胀率之差,见下表),标准设备中e=0.0359(90℃)
P1=膨胀罐的预充压力(绝对压力)
P2=系统运行的最高压力(绝对压力)
V = 膨胀罐的体积

选型经验:
5HP 以下 选用的2L 膨胀罐
5-10HP 选用的5L 膨胀罐
10-18HP 选用的8L 膨胀罐
18-30HP 选用的12L 膨胀罐
30-45HP 选用的18L 膨胀罐
45-60HP 选用的24L 膨胀罐
(其中制冷/热量KW 和HP 的换算关系为1HP2.5KW)
十、 储能(缓冲)水箱计算
水暖系统需要考虑系统水容量对系统稳定性的影响,对于空气源热泵地暖系统,最大的影响因素是冬季机组除霜。空气源热泵机组化霜时间为 3-8min,取化霜时间 4 min 来计算蓄能水箱容积。
系统热稳定性要求:冬季运行时,主机除霜时间 4 min,供水温度允许降低不超过3℃。
系统最小水容量M1:
= Q * T /(C*3) (kg)
Q主机制热量 (kw)
T化霜时间 (S)
C水的比热取4.2 (kJ/kg℃)
系统水容量M2:
= 0.15*L (kg)
L系统管路总长 (m)
储能水箱有效容积M:
= M1-M2 (kg)
十一、 系统管道计算
1. 管径计算公式如下:

Q:管段内流经的水流量(L/s)
D:管道内径(mm)
V:假定的水流速(m/s) (管内水流速推荐表如下,单位m/s)

2. 管径经验选定法系统水流量和单位长度阻力损失表

3. 连接各末端装置的供回水支管的管径,宜与设备的进出水管接管管径一致,可查产品样本获知。
十二、 分集水器选择
1. 材质为黄铜材质或不锈钢材质,同时适用于水/乙二醇(最高30%)溶液。
2. 一般规格:

3. 选型建议:根据盘管环路数选择分集水器支路数,支路数应控制在8路以内,若超过8 路,可增设多一套分集水器解决。分集水器主管管径应至少比系统供水管管径大一个规格,支路数越多,分集水器主管管径宜越大,具体以实际水力计算为准。
十三、 地暖管的选择
1. 地暖管管径
1) 在水阻力不超限的情况下,水流速度越大管道内越不容易积气,有利于减小传热热阻从而增加散热量。一般管道内水流速度不得小于0.25m/s,一般流速应在0.25m/s-0.5m/s 之间为宜,分集水器内的水流速一般不宜超过0.8m/s,过小的流速会影响散热量,过大的流速则会增加水泵的负担,且水流噪声会较明显。
2) 一般要求在任何情况下系统水流量不得小于系统额定水流量的 60%,如果实际中有可能出现流量小于60%的情况,需加装压差旁通阀或其他旁通措施,否则可能导致机组保护。
3) 从减少加热盘管的水侧阻力,提高采暖效果的角度考虑,加热管道宜选择外径20 管道,从施工安装方便的角度考虑,加热管道宜选择外径16 管道,根据工程实际情况选择合适的方案。
2. 地暖管长度
加热盘管的长度和环路简易计算(例:采暖房间内面积10 ㎡,分集水器与采暖房间连接距离10 米)

加热盘管长度建议:每环路加热盘管长度宜控制在60~80 米,最长不应超过100 米,各环路长度宜相等或相近,管长差值应控制在15 米内。
3. 地暖管材质
PE-X :交联聚乙烯 ,力学性能好,耐低温和高温。但是没有热塑性,不能采用热熔接,通常采用卡式连接。是目前欧洲在地暖系统中使用量最大的一个品种。进口和国产的差价更大,低价位的产品应用存在一定的风险。
PE-RT:中密度聚乙烯,力学性能好,耐应力开裂,低温冲击,耐水压,耐热蠕变的性能。具有可以热熔连接、原料性能稳定可靠和柔韧性好等优点,其综合的优良特性使之在地板辐射采暖领域中具有一定的竞争力。价格适中。
PB:聚丁烯 ,管材最柔软,相同压力下,管壁设计最薄,是当前几种用于热水的塑料管中价格最贵和可靠性最高的品种。
由于采暖系统中渗入氧会加速系统的氧化腐蚀,选择PB、PE-X、PE-RT塑料管道时宜选择含有阻氧层的管道。
十四、 散热片的选择
1、根据房间的热负荷和散热片的散热量相匹配的原则进行选型;
2、兼顾房间的舒适性、美观性来确定与之相符的散热片的型号;
3、散热片选型的计算方法:
A=Q/q12
A: 散热片片数
Q: 房间热负荷
q: 单片散热量
1: 散热片片数修正系数

2: 散热片连接形式修正系数

十五、 风机盘管的选择
风机盘管分类
按形式:卧式暗装、卧式明装、立式暗装、立式明装、卡式五种
按厚度:超薄型、普通型
按有无冷凝水泵:普通型、豪华型
按机组静压:0Pa、12Pa、30Pa、50Pa、80Pa (机外静压)
按照排管数量 :两排管、三排管
按制式:两管制、四管制
确定型号以后,还需确定风机盘管的安装方式(明装或安装),送回风方式(底送底回,侧送底回等)以及水管连接位置(左或右)等条件。
房间面积较大时应考虑使用多个风机盘管,房间单位面积负荷较大,对噪音要求不高时可考虑使用风量和制冷量较大的风机盘管。
考虑所接风管的沿程阻力、出风口的阻力、软接的阻力, 低静压(12pa)直接接风口或接不超过1米的风管,中静压的风盘(30pa)接不超过四米的风管,高静压(50pa)的风盘接不超过七米的风管。