1.保温管道立管支架
1.1 适用范围
垂直管道承重支架适用于DN200以上冷冻水系统及其它保温立管;垂直 管道固定支架适用于所有型号冷冻水系统及其它保温立管。
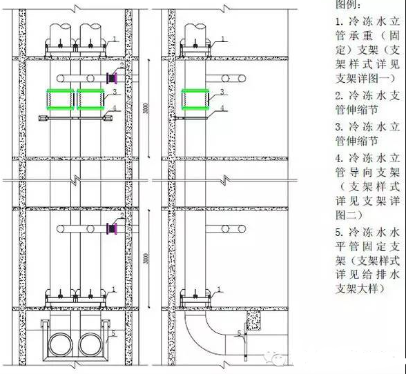
1.2 固定支架与承重支架及补偿器安装位置图示(示例管道DN600,管井壁为剪力墙)。

1.3 支架详图
1.3.1 支架详图一
1.3.1.1 图例

1.3.1.2 规格表
1)为方便套管安装及管道保温施工,型钢支架框架底部与楼板完成面的
距离建议不小于150mm;
2)尺寸表(mm)

1.3.1.3 采购要求
型钢、膨胀螺栓、镀锌螺丝均为国标规格;
1.3.1.4 工艺要求
1)采用本支架时,需相关结构专业考虑管道运行时的荷载对结构安全的影响;
2)固定支架的焊缝应进行外观检查,满足焊接工艺的要求(见焊接工艺章节),焊接变形应予以及时矫正;
3)如设计要求安装补偿器,则承重定支架必须设置在补偿器的上部;如
设计不要求设置补偿器,则承重支架一般位于管井的最下方,设置数量依据设计要求或受力分析决定;
4)立管高度在50m以下时不需要考虑因立管伸缩导致的支管补偿,超过
50m 按现场实际对支管进行补偿,支管补偿最好采用自然补偿,当自然补偿
无法满足要求时采用补偿器补偿;
5)只设置一个固定支架时,立管最下方第一个水平支架需要做加固处理
或将其支架所用型钢型号放大(具体大小需经过受力分析以后确定,承重支架的受力计算见附录一);
6)制作合格的支、吊架,应进行防腐处理(见除锈防腐刷油章节),妥
善保管,在安装完成后进行必要的成品保护措施。
7)支架肋板及支撑板的选用参见HG/T21629-1999管架标准图或室内管
道支架及吊架03S402;
8)图示仅为单管样式,多管时组合使用;
1.3.2 支架详图二
1.3.2.1 图例

1.3.2.2 规格表,尺寸表(mm)

1.3.2.3 采购要求
型钢、膨胀螺栓、镀锌螺丝均为国标规格;
1.3.2.4 工艺要求
1)根据立管管径的不同现场设置立管导向支架(参见建筑给水排水及采暖工程施工质量验收规范GB50242-2002 表3.3.8);
2)镀锌扁钢抱箍不宜拧紧,以防管道伸缩时对木托造成损坏;
3)支架掌板安装点应首选结构梁或剪力墙,如管井壁为空心砖墙时,可将支架安装于楼板底,在其上焊接2mm 厚钢板并将套管预先焊接在钢板上,钢板的宽度应能遮住预留洞为宜(钢板紧贴楼板底)见给排水穿楼板支架;
4)如管井壁为剪力墙,支架的安装高度,距地面应为1.5~1.8M,2 个以上的支架应匀称安装;
5)支架所选用的型钢不得切断,转角处煨弯处理,支架的焊缝应进行外观检查,满足焊接工艺的要求(见焊接工艺章节),焊接变形应予以矫正;
6)制作合格的支、吊架,应进行防腐处理(见除锈防腐刷油章节),妥善保管。
7)图示仅为单管样式,多管时组合使用;
2.冷却水管道立管支架
2.1 适用范围
垂直管道承重支架适用于DN200 以上冷却水系统立管;
垂直管道固定支架适用于所有型号冷却水系统;
2.2.1 支架详图一
2.2.1.1 图例

2.2.1.2 规格表
1)为方便套管安装及管道保温施工,型钢支架框架底部与楼板完成面的
距离建议不小于150mm;
2)尺寸表(mm)

2.2.1.3 工艺要求
1)采用本支架时,需相关结构专业考虑管道运行时的荷载对结构安全的影响;
2)固定支架的焊缝应进行外观检查,满足焊接工艺的要求(见焊接工艺章节),焊接变形应予以矫正;
3)冷却水管道承重支架一般位于管井的最下方,设置数量根据设计要求或受力计算决定;
4)冷却水管一般不考虑管道补偿;
5)只设置一个固定支架时,立管最下方第一个水平支架需要做加固处理或将其支架所用型钢型号放大(具体大小需经过受力分析以后确定,承重支架的受力计算见附录一);
6)制作合格的支、吊架,应进行防腐处理(见除锈防腐刷油章节),妥善保管。
7)图示仅为单管样式,多管时组合使用;
8)支架肋板及支撑板的选用参见HG/T21629-1999管架标准图或室内管道支架及吊架03S402;
9)冬季运行的冷却塔(能源塔)管道设置应参考冷冻水管道。
2.2.2 支架详图二
2.2.2.1 图例

2.2.3 支架详图三
2.2.3.1 图例

2.2.3.2 规格表,尺寸表(mm)

2.2.3.3 工艺要求
1)根据立管管径的不同现场设置立管固定支架(参见建筑给水排水及采暖工程施工质量验收规范GB50242-2002 表3.3.8);
2)支架连接板安装点应首选结构梁或剪力墙,如管井壁为空心砖墙时,可将支架安装于楼板底,在其上焊接2mm 厚钢板并将套管预先焊接在钢板上,钢板的宽度应能遮住预留洞为宜(钢板紧贴楼板底)见给排水穿楼板支架;
3)如管井壁为剪力墙,支架的安装高度,距地面应为1.5~1.8M,2 个
以上的支架应匀称安装;
4)支架的焊缝应进行外观检查,满足焊接工艺的要求(见焊接工艺章
节),焊接变形应予以矫正;
5)制作合格的支、吊架,应进行防腐处理(见除锈防腐刷油章节),妥善保管。
6)图示仅为单管样式,多管时组合使用;
管道水平支架
1.小管径管道支架(见给排水管道支架章节);
2.龙门式管道支架(见给排水管道支架章节);
3.反抱式管道支架
3.1 适用范围
1)本支架适用于安装空间比较狭小,特别是吊顶空间受限的部位;
2)本支架仅适用管道外径108mm。
3.2 图例

3.3 规格表,尺寸表(mm)

3.4 工艺要求
1)本支架仅限于狭小空间使用,其它情况不推荐使用,且楼板底支架立杆的长度2000mm;
2)支架制作时,U 型扁钢抱箍与紧固螺栓之间必须焊接牢固;
3)焊缝应进行外观检查,满足焊接工艺的要求,焊接变形应予以矫正;
4)制作合格的支、吊架,应进行防腐处理,妥善保管。
4.热力管道
4.1 丁字托滑动支架
4.1.1 适用范围
适用于管道直径25~159 之间,温度350℃的蒸汽、热水、蒸汽凝结水、压缩空气管道和低温管道的支座设计、加工及安装。
4.1.2 大样图

4.1.3 规格表,尺寸表(mm)

注:a-滑动面与固定面间隙;e-丁字托支座长度;
b-滑动面钢板宽度;h-丁字托高度;
s1-丁字托支撑板厚度;s2-丁字托活动面钢板厚度;

4.2 U 型托导向支架
4.2.1 适用范围
适用于管道直径219~530 之间,温度350℃的蒸汽、热水、凝结水、压缩空气管道及低温管道支架安装,宜用于管道不会产生纵向垂直作用力的位置。
4.2.2 大样图

注:a-滑动面与固定面间隙;e-丁字托支座长度;
b-滑动面及支撑板宽度;h-丁字托高度;
s1-U 型支撑板及活动面钢板厚度;
4.2.3 规格表,尺寸表(mm)

4.2.4 工艺要求
1)使用时,应根据滑动支座的热位移量,固定支座的水平推力来选择支座的型式;
2)管道的热变形计算
计算公式:X=aL△T
x 管道膨胀量;
a 为线膨胀系数,取0.0126mm/m℃;
L 补偿管线(所需补偿管道固定支座间的距离)长度;
△T 为温差(介质温度-安装时环境温度);
3)本支架参见动力设施国家标准图籍R402《室内热力管道支吊架》和R403《室外热力管网支吊架》;
4)支架的形式参见同规格给排水支架;
5) 支座的焊缝应进行外观检查,满足焊接工艺的要求(见焊接工艺章节),焊接变形应予以矫正;
6)制作合格的支座,应进行防腐处理(见除锈防腐刷油章节),妥善保管。
4.3 U 型托导向支架(限位)
4.3.1 适用范围
适用于管道直径219~530 之间,温度350℃的蒸汽、热水、凝结水、压缩空气管道及低温管道支架安装,宜用于管道会产生横向和纵向垂直作用力的位置。
4.3.2 大样图

注:a-滑动面与固定面间隙;e-丁字托支座长度;
b1、b2-滑动面及支撑板宽度;h-丁字托高度;
s1-U 型槽支撑钢板厚度;s2-U 型槽活动面钢板厚度;
4.3.3 规格表,尺寸表(mm)

4.3.4 工艺要求
1)使用时,应根据滑动支座的热位移量,固定支座的水平推力来选择支座的型式;
2)管道的热变形计算见水平单向滑动支架。
3)支架的限位空间距离控制在3~5mm。
4.3.5 产品图片

4.3.6 增设垫片形式

1)滑动支座中支撑板与支座间可粘接聚四氟乙烯垫片,垫片可为方形(即与支座满接触),也可为如上图所示。
2)实例图片

4.4 水平管道固定支架
4.4.1 适用范围
适用于管道直径57~530 之间,温度350℃的蒸汽、热水、蒸汽凝结水、压缩空气及低温管道的支座设计、加工及安装。
4.4.2 大样图

注:a-U型槽支撑板及固定面钢板厚度;e-丁字托支座长度;
b-U 型槽宽度;h-丁字托高度;
c-两管管边到管边间距;d-管边到支架边间距
4.4.3 规格表,尺寸表(mm)

4.4.4 采购要求
型钢等均为国标规格;
4.4.5 工艺要求
1)与梁连接的钢板应尽可能较长,增大螺栓之间的距离。
2)管道的热变形计算见水平单向滑动支架。
4.5 立管导向支架
4.5.1 适用范围
本工艺标准适用于民用及一般工业建筑蒸汽压力不大于10bar管道安装工程。
4.5.2 大样图

蒸汽管道减压阀组、疏水阀组安装
1.适用范围
本工艺标准适用于民用及一般工业建筑蒸汽压力不大于10bar管道及附属装置安装工程。
2.大样图

3.工艺要求
1)水平安装的管道要有适当的坡度,当坡向与蒸汽流动方向一致时,应采用I=0.003 的坡度,当坡向与蒸汽流动方向相反时,坡度应加大到I=0.005~0.01。干管的局部低点及末端应设置疏水器。
2)蒸汽干管的变径、供汽管的变径应为下平安装,凝结水管的变径为同心。管径大于或等于70mm,变径管长度为300mm;管径小于或等于50mm 变径管长度为200mm(蒸汽管道需上开孔接支管)。
3)采用丝扣连接管道时,丝扣应松紧适度,不允许缠麻,涂好铅油,丝扣上到外露2~3 扣,对准调直时印记为止。
4)补偿器安装时,卡架不得吊在波节上。试压时不得超压,不允许侧向受力,将其固定牢。
5)在管段两个固定管架之间,至少安装一个以上的轴向型补偿器,固定管架和导向管架的分布:第一导向管架与补偿器端部的距离不超过4倍管管径;第二导向管架与第一导向管架的距离不超过14倍管径。
6)减压阀安装时,减压阀前的管径应与阀体的直径一致,减压阀后的管径可比阀前的管径大1~2 号。
7)减压阀阀体上的箭头必须与介质流向一致,两侧应采用法兰连接截止阀。
8)减压阀前应装有过滤器,过滤器过滤网目数应满足减压阀要求。对于带有均压管的薄膜式减压阀,其均压管应接往低压管道的一侧。旁通管是安装减压阀的截止阀,暂时通过旁通管进行供汽。
9)为了便于减压阀的调整工作,阀前的高压管道和阀后的低压管道上都应安装压力表。阀后低压管道上应安装安全阀,安全阀排气管应接至室外。
10)疏水器应安装在便于检修的地方,并应尽量靠近用热设备凝结水排出口下。蒸汽管道疏水时,疏水器应安装在低于管道的位置。
11)安装应按设计设置好旁通管、冲洗管、检查管、止回阀和除污器等的位置。用汽设备应分别安装疏水器,几个用汽设备不能合用一个疏水器。
12)疏水器的进出口位置要保持水平,不可倾斜安装。疏水器阀体上的箭头应与凝结水的流向一致,疏水器的排水管径不能小于进口管径。
13)旁通管是安装疏水器的一个组成部分。在检修疏水器时,可暂时通过旁通管运行。
14)减压阀组和疏水阀组可不做保温处理,介质温度过高时,应有防触碰烫伤保护措施。
冷冻机房布置
1.冷冻机房内排气阀排水排气管道布置
1.1 图示

1.2 说明:
1)冷冻机房内排气阀排水管必须集中后排放;集中排放点主排水管需在土建进行地面找平时预埋至排水沟,并在水沟中安装顺水弯头;
2)壁挂式集水器的大小可根据现场排水管的数量自行设计;
2.冷水机房整体布置
2.1 冷冻站内部颜色要求:
2.1.1 图例

2.1.2 说明:
1)水泵及其它设备周边以及集水坑周边涂100mm 宽黄黑相间色带,色带内黄黑条角度为45 度;
2)机房主走道两边涂50mm 宽黄色色带;
3)机房主走道为绿色;水泵及其它设备基础以及辅助区域为蓝色;
4)无水沟盖板的明沟两边要有50mm 宽黄色色带;
5)机房地面可以用显著的字体标明该区域功能,具体布置可根据现场情况决定;
2.1.3 图片

3.冷冻机房内支架形式:
3.1 吊顶式支架参见给排水支架样式
3.2 落地式支架
3.2.1 单管支架
3.2.1.1 图例

3.2.1.2 规格表

3.2.1.3 工艺要求
上部筋板的焊缝相交处,应切去小角使焊缝不相交,或焊接时使焊缝不相交。
3.2.2 落地式多管组合式支架
3.2.2.1 图例

3.2.2.2 规格表,尺寸表(mm)

3.3 工艺要求
1)支架支杆可以采用槽钢、工字钢或无缝钢管制作,现场可根据支杆高度及管道大小通过受力计算合理选折型钢型号;
2)支架各个部件可以采用焊接亦可以采用螺丝连接,本图中所示全部为丝接组合式支架;
3)支架筋板及其它附件的选用参见HG/T21629-1999管架标准图;
4)本图中所示的支架仅是一个个例,其它多种形式的组合和运用可根据现场实际情况及深化图纸灵活选择组合方式及支架样式。
3.4 产品图片
本次提供的图片内容全部为机房框架组合式支架的现场应用,图中支架为水泵基础与进出水集管的组合,可进行场外预制,场内安装,连接形式全部为丝接,这样可以大大提高现场施工效率,但是对设备参数和现场。化有较高要求,现场可根据实际情况灵活进行搭配,提高工作效率。

冷冻机房的组合支架做法
1.适用范围
适用于大型泵房、站房等管道机房内高大空间管道系统安装支架。
2.大样图

压力表、温度计、管道橡胶软接头
与给排水中相同,详见给排水部分。
补偿器
1.适用范围
由于热力管道或制冷管道过长,自然补偿无法满足的情况下需要装补偿器。(一般直管长度超过40m 时需要加装补偿器);
2.补偿器样式
一般使用到的补偿器有波纹补偿器和方形补偿器。
2.1 波形补偿器
波形补偿器的特点是:结构紧凑,但制造困难,补偿能力小(每个波只能补偿5~10mm),轴向推力大,流体阻力比回折弯式补偿器小。

2.2 方形补偿器
方形补偿器的优点是:制作方便,工作可靠,补偿能力大(通常可达400mm);作用在固定点上的轴向力甚小。
其缺点是:尺寸大,不能安装在狭窄部位;流体阻力大,变形时,两端的法兰和管道会受力至弯曲。在管径相同时方形比园形制造方便,成本低,挠性大25~30%。

3.工艺要求
3.1 补偿器支架的定位
3.1.1 方型补偿器固定支架及导向支架的定位见下图1。方型补偿器一般布置在两固定支架中间,偏离中心不应超过8m。
3.1.2 波纹补偿器固定支架及导向支架的定位见下图,波纹补偿器一般靠近其中的一个固定支架安装。

3.2 补偿器的安装
3.2.1 安装前的准备
必须前确保管道的导向支架、固定支架已定位安装完成,以确保补偿器的同心不受影响。
3.2.2 安装补偿器的热力管道固定支架最大允许跨距Lg表(m)。

3.2.3 计算两固定支架间管道的膨胀量
计算公式:X=aL△Tx 管道膨胀量
其中a-线膨胀系数,取0.0126mm/m℃
L-补偿管线(所需补偿管道固定支座间的距离)长度
△T-为温差(介质温度-安装时环境温度)
3.2.4 补偿器进行预压缩或预拉伸
△X=△L(0.5-(t-tmin)/(tmax-tmin)
其中: △X-预压缩或预拉伸量,当△X>0 时预拉伸,当△X<0 时预压
缩;
△L-补偿器最大补偿量;t-安装时的环境温度;
tmin-管道运行时的最低温度;tmax-管道运行时的最高温度;
预压缩或预拉伸应根据补偿器安装时的环境状况决定预压缩或预拉伸的量;最大预压缩或预拉伸量不超过补偿器额定补偿量的40%。波纹补偿器的具体操作为对称拧地动波纹补偿器本身自带的螺纹导杆上的螺母,使波纹补偿器均匀的压缩或拉伸,达到与压缩量或拉伸量时检查补偿器的两片法兰是否平齐。方型补偿器需要配合自制的螺丝杆,进行压缩或拉伸。
3.2.5 小型补偿器建议按以下方法安装
1)波纹补偿器一类有法兰的补偿器。在已安装好的管道上用气焊切去相应长度的管道(长度应该等于压缩后补偿器长度加两片法兰的厚度,注意管道法兰需要内外两面焊),然后将补偿器嵌入管道法兰之间,拧紧螺母。
2)方型补偿器一类没有法兰的补偿器。在已安装好的管道上用气焊切去相应长度的管道(长度应该等于压缩后补偿器长度加两道相应厚度水管焊缝的距离),然后将补偿器嵌入管道之间,然后点焊定位,最后完成焊接。
3.2.6 后续工作
连接可靠后,松开波纹补偿器的导向杆上螺母或螺丝杆,使波纹补偿器能有足够的伸缩空间。
3.3 注意事项
1)在两个固定支架之间只能布置一个轴向型波纹补偿器。
2)补偿器在安装前应先检查其型号、规格及管道配置情况,必须符合设计要求,清除波纹间异物,防止机械损伤。
3)波纹管安装好后要松开波纹管预压缩装置的螺母,使其处于自然压缩状态。
4)安装前必须了解该种型号产品是否有安装方向要求。同时严禁用波纹补偿器变形的方法来调整管道的安装偏差,以免影响补偿器的正常功能、降低使用寿命及增加管系、设备、支承构件的载荷。安装过程中,不允许焊渣飞溅到波壳表面,不允许波壳受到其它机械损伤。
5)补偿器所有活动元件不得被外部构件卡死或限制其活动范围,应保证各活动部位的正常动作。
6)装有补偿器的管系,在固定支架、导向支架、滑动支架等施工图设计要求安装完毕之前,不得进行系统试压。
7)水压试验结束后,应可能尽快排出波壳中的积水,并迅速将波壳内表面吹干。
8)与补偿器波纹管接触的保温材料应不含氯。
9)安装方型补偿器的时候要考虑补装排气阀或泄水阀。
3.4 附:空调水系统立管固定支座受力计算与波纹补偿器选择
3.4.1 竖向水管固定支架垂直推力的组成
1)管道自身的重量和保温材料的重量fg
Fg=L(qg+qb) (1)
式中 L计算管道的长度,m;
qg、qb管道及保温材料单位长度重力,N/m。
2)活动支架与管道之间因温度变化而伸缩所产生的摩擦力
由于摩擦力与正压力成正比,而垂直安装的管道不会像水平管道那样对活动支架产生那么大的正压力,一般认为可以忽略不计。
3)补偿器的弹性力fd
由于补偿器的形式不同,其产生的变形反力也不一样。大致有以下几种:
①采用方型补偿器或L 型、Z型自然补偿器时,可按其形状、管径等因素计算在X、Y 轴方向上产生的弹力;
②采用套管式补偿器时,需考虑套管内部摩擦力产生的推力ftm。
③采用不锈钢波纹管补偿器时,需考虑波纹管因变形产生的弹力(或拉力)fd:
Fd=KX
式中 xK补偿器总体的轴向刚度,N/mm;
补偿器的轴向变形量,mm。
由于不锈钢波纹管补偿器具有占用空间小、不易泄漏、补偿量大、应用范围广的优点,本文以这种形式的补偿器来进行分析和举例。
补偿器在使用中会被压缩或拉伸,产生的弹性反力有时向上,也有时向下。为保证固定支架的计算受力是最大力,可将此力方向按与重力方向一致考虑,故在下述推力计算中均按向下方向计算。
4)管内水压力产生的推力fn
管内水压力的作用,会在垂直于管道内壁面上产生压力。在竖向管道中,这个压力在水平方向上的合力为零;而在垂直方向上,根据管径的不同变化会产生向上或向下的推力。如图1所示,这段管段为上细(流通断面积为A1)下粗(流通断面积为A2),变径处的管内水压力为pn,它在垂直方向上的分压力为pmy=pnsina。那么它产生的向上托力为:

反之,当管段为上粗、下细时,产生的推力是向下的。如果竖向管段的上端封住,而下端设有波纹补偿器且管径不变时,固定支架会承受一个向上的托力。相当于公式中A1= 0时,fn=-pnA2这里np为该管段顶端之内压。反之,当该管段下端封住或转弯、而上端设有波纹补偿器时,fn=pnA1,产生一个向下的推力,且pn为管段下端的水内压。在一个运行的空调水系统中,严格地讲,管内的水压力会随着每一处的位置不同及流量的不断变化而变化的。为了简化计算,本文将其分成两种工况来考虑:一种是当系统水泵不运行的静态工况;另一种是只考虑系统满负荷运行,水在流动状态下的动态工况。由于水泵扬程的作用,在管内同一位置上流动状态下的水内压力一般要比静止状态下的水静压力大。因此在断面有变化的计算管段中,当水内压作用力向上时,推力应按静态计算;当水内压作用力向下时,推力应按动态计算。
需要说明的是,这种管内水压力作用的计算方法在计算管内各个不同高度上的水压力时,已经考虑了重力影响的因素,不必再考虑管内水重量对固定支架的作用力。
5)其它力
水在管内流动还会产生其它的力。如流动的水与管壁间的摩擦力;流过弯头时产生的离心力等。由于计算较繁琐,且对固定支架受力的影响较小,一般可予忽略。
3.4.2 计算公式
表1 中的示意图是设计中常见的固定支架的布置型式,并相应列出了固定支架的受力计算公式。

计算的值等于管内水的重量。可见,当竖向管道上没有波纹补偿器时,可以仅计算全部管材、保温层、管内水的重力及自然补偿管段在竖直方向上的弹性力的和,使计算简单、明了。这时,支架所受的推力不受管内水压力的影响,使计算所得的推力较小。利用这一特性,在设计竖向管道时,只要管道的热伸缩位移控制量允许,应尽量不采用波纹或套筒式补偿器,以获得较小的支架推力。
表2 管内各管径变化处的压力值 MPa

在序号4,5中,固定支架还受到了一个水平方向的推力,这是由于自然补偿管段所产生的。
在序号2中,上下各有一个波纹补偿器,它们的推力方向相反,会相互抵消一部分。但由于补偿器型号、安装情况不尽相同,为了安全起见,通常只考虑抵消0.7倍的较小补偿器的弹性力。
3.4.3 金属波纹补偿器的选用
在选用金属波纹补偿器时,除了应注意其型式、压力、材质、工作温度等各种因素外,还有一个很重要的性能疲劳寿命必须充分予以重视。一些厂家的资料显示,很多产品的额定补偿量是按其许用疲劳寿命n=1000 次进行计算的。适当减小实际补偿量,可以大大延长其使用寿命。如果实际补偿量为额定补偿量的74%,则寿命次数可为标准次数的3~4 倍;当为70%以下时,可达到4~5 倍。所以在选用金属波纹补偿器时,应适当增大它的额定补偿量。
波纹补偿器在安装前一般应按照要求进行预拉伸或预压缩。预变形量可按下式计算:

若补偿器经过正确的预拉伸(或预压缩)后进行安装,它便能在正常的长度范围内工作,波纹器所受的应力较小、变形较少,弹性力也小。这时在计算弹性力公式中的可以取实际最大轴向补偿量的一半,即= L/2。
若补偿器未进行正确的预拉伸(或预压缩),会产生较大的轴向变形。这样不但会增加固定支座的推力,而且会影响它的使用寿命。当然,若选用的补偿器的补偿量是实际最大伸缩量的数倍时,往往也会采用不预拉伸的方法进行安装,为保证固定支座受力计算的安全性。
3.4.4 计算举例
下图为两管制水系统中的一根供水立管。夏季最低水温为7℃,冬季最高水温为65 ℃。使用时的最大温差t=58 ℃。立管上设置了2个波纹补偿器。补偿器离固定支架的距离均为 25 m。其单侧膨胀量:L= tL =17.4mm;


其中fy为自然补偿管段在垂直方向上的弹力(计算从略)。
在甲、乙固定支架的受力计算中,管道变径处的内压pn均取用了静态时的水压力,这样求得的支架受力是一个最大值。如取用动态时的管内压力,Fy会小一些。
丙固定支架受力计算取动态的管内水压力是为了得到最大Fy值。
从计算可知,丙支架所受的力达100多kN,这时要求结构设计必须采取相应加固措施。如果在同一管井内有多根这样的竖向管道,应将固定支架错层设置,以避免设置层受力集中,使结构设计更加合理。
电缆桥架分类和安装
1.托盘式电缆桥架

托盘式电缆桥架是石油、化工、轻工、电讯等方面使用最广泛的一种。它具有重量轻、载荷大、造型漂亮、结构简略、装置便利等长处。它即适用于动力电缆的装置,也适合于操控电缆的敷设。
2.槽式电缆桥架

槽式电缆桥架是一种全封闭型电缆桥架。它最适用于敷设计算机电缆、通讯电缆、热电偶电缆及其他高活络体系的操控电缆等。它对操控电缆的屏蔽搅扰和重腐蚀中环境电缆的防护都有较好的作用。
3.梯式电缆桥架

梯级式电缆桥架是依据国内外有关材料而改善规划的。它具有重量轻、成本低、造型别具、装置便利、散热、透气好等长处。他适用于一般直径较大电缆的敷设,适合于高、低压动力电缆的敷设。
4.组合式电缆桥架

组合式电缆桥架是一种新式桥架,是电缆桥架系列中的第二代产品。它适用各项工程、各种单位、各种电缆的敷设,它具有结构简略、装备灵敏、装置便利、方式新颖等特色。组合式电缆桥架只需选用宽100、150、200mm的三种基型就可以组成您所需求尺度的电缆桥架,它不需出产弯通、三通等配件就可以依据现场装置恣意转向、变宽、分引上、引下。在恣意部位、不需求打孔、焊接就可用管引出。它既可便利工程设计,又便利出产运送、更便利装置施工,是现在电缆桥架中最抱负的产品。
5.大跨距电缆桥架

当时大跨距电缆桥架一般是由拉挤玻璃钢型材拼装而成,适用于电力电缆、操控电缆、照明电缆及配件等。与铁制桥架比较,具有运用寿命长(一般规划寿命为二十年)、装置便利且成本低(比重仅为碳钢的1/4,施工中无需动火,单根桥架长度可达8米,乃至更长)、切开便利、不需保护等优越性。
电缆桥架安装要求
(1)槽式大跨距电缆桥架由室外进入建筑物内时,桥架向外的斜度不得小于1/100。
(2)电缆桥架与用电设备交越时,其间的净距不小于0.5m。
(3)两组电缆桥架在同一高度平行敷设时,其间净距不小于0.6m。
(4)在平行图上绘出桥架的路由,要注明桥架起点、结尾、拐弯点、分支点及升降点的坐标或定位尺度、标高,如能制作桥架敷设轴侧图,则对资料计算将更准确。直线段:注明全长、桥架层数、标高、类型及标准。拐弯点和分支点:注明所用转弯接板的类型及标准。升降段:注明标高改变,也可用部分大样图或剖面图表明。
(5)在平行图上绘出桥架的路由,要注明桥架起点、结尾、拐弯点、分支点及升降点的坐标或定位尺度、标高,如能制作桥架敷设轴侧图,则对资料计算将更准确。直线段:注明全长、桥架层数、标高、类型及标准。拐弯点和分支点:注明所用转弯接板的类型及标准。升降段:注明标高改变,也可用部分大样图或剖面图表明。

(6)电缆引下点方位及引下方法,一般来说,大批电缆引下可用笔直弯接板和笔直引上架,少数电缆引下可用导板或引管,注明引下方法即可。
(7)电缆桥架宜高出地上2.2米以上,桥架顶部距顶棚或其它障碍物不该小于0.3米,桥架宽度不宜小于0.1米,桥架内横断面的填充率不该超越50%。
(8)电缆桥架内缆线笔直敷设时,在缆线的上端和每距离1.5米处应固定在桥架的支架上,水平敷设时,在缆线的首、尾、转弯及每距离3~5米处进行固定。
(9)在吊顶内设置时,槽盖敞开面应坚持80毫米的笔直净空,线槽截面利用率不该超越50%
(10)布放在线槽的缆线能够不绑扎,槽内缆线应顺直,槽内缆线应顺直,尽量不穿插,缆线不该溢出线槽,在缆线进出线槽部位,转弯处应绑扎固定。笔直线槽布放缆线应每距离1.5米固定在缆线支架上。
(11)在水平、笔直桥架和笔直线槽中敷设线时,应对缆线进行绑扎。4对线电缆以24根为束,25对或以上主干线电缆、光缆及其它信号电缆应根据缆线的类型、缆径、缆线芯数分束绑扎。绑扎距离不宜大于1.5米,扣距离应均匀,松紧适度。
(12)桥架水平敷设时,支撑距离一般为1.5-3m,笔直敷设时固定在建筑物构体上的距离宜小于2m。电缆桥架型式及种类的挑选及铺设标准。
(13)要求桥架防火的区段,有必要选用钢制或不燃、阻燃资料。