空气既是需要利用空调技术对特定空间空气环境进行调节和控制的主体,又是空调工程中需要根据不同要求进行热湿处理的对象。
因此,全面、深入地了解空气的特性,熟悉反映空气状态的参数及相互间关系的线图,会熟练运用焓湿图是学习和掌握中央空调技术的重要基础。
空气的状态参数
我们常说的空气是干空气和水蒸气的混合物。
空气中水蒸气含量的变化对空气的干燥和潮湿程度会产生重要影响,从而对人的舒适感及健康、产品产量和质量、生产工艺过程、设备状况、处理空气的能耗等都有极大的影响。
基于上述种种原因,平时可以忽略的空气中的水蒸气,在空调范畴里不仅不能忽略而且还要把它放在非常重要的地位来对待。
空气除了组成、性质、状态等定性的描述外,为便于对其进行处理和调控,还需要有对空气进行定量分析和描述的物理量,称为空气的状态参数。
状态参数通常是指识别某一个或某一类客观事物的数值特征或数量特征的度量。可以说每一个客观的物体都有其特定的状态参数。
从空调的目的出发,主要从压力、温度、湿度和能量特性四个方面来描述空气的状态,所涉及的参数即为空气的状态参数。
温度:露点温度tL、干球温度t、湿球温度tS。
湿度:含湿量d、相对湿度。
压力:大气压力B、水蒸气分压力Pq、饱和水蒸气分压力Pq,b。
焓:h。
露点温度
任一状态的未饱和空气,在保持所含水蒸气量不变的条件下,使其温度逐渐降低,当温度低于某一个临界温度时,空气中的水蒸气便开始凝结出来,这个临界温度就称为这个状态空气的露点温度。
露点温度通常用tL表示,单位为℃。
在含湿量不变时,空气温度下降,由未饱和状态变为饱和状态,此时空气的相对湿度= 100%。在空调技术中,把空气降温至露点温度,达到除湿干燥空气的目的。
湿度
在空调工程中,测量和调节空气的湿度是仅次于温度控制的重要任务,尤其是需要知道空气中水蒸气的含量有多少和某一状态空气吸收水蒸气的能力有多大时。这两种情况可以分别用含湿量d和相对湿度这两个湿度类状态参数来度量。
含湿量定义为每千克干空气中含有的水蒸气量。
相对湿度定义为空气中的水蒸气分压力与相同温度下饱和空气的水蒸气分压力之比。
含湿量这个参数只能反映空气中水蒸气量含量的多少,不能直观地反映空气是否饱和,即是否还能容纳水蒸气。
焓
焓表示空气含有的总热量。
在空调工程中,最常见的空气处理过程是冷却或加热空气,经常会碰到诸如将空气从30℃冷却到20℃需要多少冷量,或将5℃的冷空气加热到20℃需要多少热量之类的问题。
焓是代表空气能量状态的参数,并能进行空气能量变化的计量。
焓严格来说应称为比焓或质量焓,但工程上常简称为焓,用h表示。
空气状态参数之间的关系
通常在进行空调方面的计算时,一般都认为大气压力基本不变。在大气压力不变的条件下,理论上知道下面五个(组)参数中的任意两个(组),就可以利用公式求解出其余的几个(组)参数,这两个(组)参数称为独立参数。
1)干球温度或饱和水蒸气分压力(此两者为非独立参数),两者任知其一。
2)湿球温度。
3)含湿量或水蒸气分压力或露点温度(此三者为非独立参数),三者任知其一。
4)相对湿度。
5)焓。
已知温度t和含湿量d,求解焓h的公式:

从式可看出,空气的焓不仅与温度有关,还与其所含水蒸气的多少有关,因此在空调工程中,空气被处理时焓增加、减少还是不变,要由温度和含湿量二者的变化情况决定。
已知干球温度t(饱和水蒸气分压力Pq,b)和相对湿度,求解含湿量d的公式:


空气的焓湿图
焓湿图最基本的应用是查找参数。此外,焓湿图还可以用于判断空气的状态、表示空气的状态变化和处理过程等。

焓湿图看上去比较复杂,实际上只有6种线条:
① 45的等焓线;
② 垂直的等含湿量线;
③ 近似水平的等温线;
④ 弧型的等相对湿度线;
⑤ 水蒸气分压力线;
⑥ 热湿比线。

等相对湿度线的绘制要借助等t线和等d线来确定。
例如绘制80%的等相对湿度线,首先选择一个温度,例如10℃,查附录A得到该温度下的饱和水蒸气分压力Pqb,根据公式计算d。

这样,由选择的t和计算得的d就确定了一点,再计算下一个温度确定另一点,最后把所有点连接起来就绘制出80%的等相对湿度线了。


关于焓湿图,需要特别注意以下几点;
1)饱和空气线即相对湿度为100%的等相对湿度线,见上图中最右下方的弧线。
这条弧线通常称为饱和线,其上每一点都是空气的饱和状态。
饱和空气的一个特点就是干球温度、湿球温度、露点温度完全相等。
2)大部分焓湿图中没有画出等湿球温度线。
因为等湿球温度线与等焓线基本平行,故工程上近似地用等焓线代替等湿球温度线,即过某一点的等湿球温度线就是过该点的等焓线。
3)焓湿图中也没有等露点温度线。
等含湿量线就是等露点温度线。因为露点温度的定义已说明含湿量相同的状态点,露点温度均相同。
空气干球温度、湿球温度和露点温度在焓湿图上的查找方法

热湿比和热湿比线
为了说明空气状态变化的方向和特征,常用空气状态变化前后的焓差h和含湿量差d的比值来表示。这个比值称为热湿比(单位为kJ/kg) ,也称为角系数,即:

在空调过程中,空气常常由一个状态(A)变为另一个状态(B)。在整个状态变化过程中,如果空气的热湿变化是同时进行的,那么在焓湿图上,状态A和状态B之间的直线连线就是空气状态变化的过程线,称为热湿比线。
从热湿比的定义式可知,实际上是直线的斜率。而直线的斜率与直线的起始位置无关,两条斜率相同的直线必然平行。
根据直线斜率的特性(公众号 机电人脉),在焓湿图上以任意点为中心作出一系列不同值的标尺线,实际应用时,只需把等值的标尺线平移到空气状态点,就可画出该空气状态的变化过程线了。该作法称为平行线法(参见下图)。

热湿比线的另一种作法是辅助点法(下图)
在焓湿图上找到空气的初状态点A。
任取一个d值,则可计算出h=d。
在焓湿图上找到比A点的焓值大h的等焓线,和比A点的含湿量值大d的等含湿量线,以及这两条线的交点B。
连接A、B两点,这条连线就是所要作的热湿比线。

焓湿图的应用
对于空调专业人员来说,焓湿图是一个重要的工具,无论是工程设计、系统调试,还是运行管理,都需要用到焓湿图。
焓湿图的应用主要包括
确定空气所处状态
查找空气状态参数
分析空气状态变化过程
确定两种不同状态空气混合后的状态点
确定空气状态及查找参数
根据任意两个独立的空气状态参数,就可以在焓湿图上找到相应的状态点,并可判断出空气是处于什么状态,还可查找出其他的状态参数。

【例1-2】
已知某日气象台预报的天气温度是30℃,相对湿度是60%。
1)在焓湿图中标出相应状态点。
2)查出该状态空气的其余参数。
3)画出过此状态点的等湿球温度线和等露点温度线。
【解】
1)在焓湿图上找到30℃等温线与60%等相对湿度线的交点A。
2)由过A点的45斜线查得其焓为71kJ/kg干,过A点的垂直线查得其含湿量为16.15g/kg干,水蒸气分压力为25.50102Pa。

3)过A点作等湿球温度线(其实就是等焓线并以虚线表示),与饱和线相交于B点。由于饱和线上的干球温度与湿球温度相同,故B点的干球温度也就是B点的湿球温度,也即A点的湿球温度为23.9℃。

4)过A点作等露点温度线(其实就是等含湿量线并以点划线表示),与饱和线相交于C点。由于饱和线上的干球温度与露点温度相同,故C点的干球温度也就是C点的露点温度,也是A点的露点温度,为21.8℃。

5)找到30℃等温线与饱和线的交点D,D点的水蒸气分压力即为A点的饱和水蒸气分压力,其值为42.2102Pa。

【例1-3】
为了知道某房间内空气的状态,使用一个干湿球温度计进行实测,测得干球温度为30℃,湿球温度为20℃。求该房间内空气的其他参数。
【解】
1)先在饱和线上找到干球温度为20℃的状态点B,由于B点在饱和线上,此点的干球温度与湿球温度相等,故B点的湿球温度也为20℃。

2)过B点,作等湿球温度线(近似以等焓线代替),与30℃的等温线相交于A点,此点就是房间内空气的状态点。由于A点在饱和线的上部区域,故房间空气为未饱和空气。
3)其余参数的查找方法参见例1-2。
表示空气的状态变化过程
空调的一个基本任务就是对空气进行这样和那样的加工,例如将冬季的室外冷空气加热;将夏季的室外热空气冷却;对空气进行除湿或加湿等,这些对空气的加工过程统称为热湿处理。
热湿处理过程中空气的状态要发生变化,因为空气的每个状态在焓湿图上都可以用一个点来表示,而连续的点就是线,因此空气状态变化的情况可以在焓湿图上用线条表示出来。
(1)加热过程
是等湿加热过程或等含湿量加热过程的简称。
特点 空气的含湿量保持不变(dB=dA,即d=0),但温度升高,焓增加(hB>hA,即h>0)。
在焓湿图上用垂直向上的直线A-B表示。
空气状态变化的热湿比值为:

空气通过电加热器和热水或蒸汽加热器时所发生的状态变化过程即为加热过程。
加热器的加热量为:
Q = qm(hBhA) kw
式中 qm空气的质量流量,单位为kg/s。
(2)冷却过程
凡是空气在状态变化过程中温度要降低的过程统称为冷却过程,按冷却过程是否有结露现象发生,冷却过程又可分为干冷过程和湿冷过程两种。
1)干冷过程
即等湿冷却过程或称等含湿量冷却过程。
特点 空气的含湿量保持不变(dc=dA,即d=0),但温度降低(不低于露点温度),焓减小(hc<hA,即h<0)。
在焓湿图上用垂直向下的直线A-C表示。
空气状态变化的热湿比值为:

空气通过制冷装置的蒸发器或空调设备的表冷器、冷却盘管时无结露现象发生,以及与温度为tl的水进行热湿交换时的状态变化过程均为干冷过程。
在干冷过程中空气放出的热量也即处理空气所需要的冷量为:
Q = qm( hC - hA) kw
2)湿冷过程
又称为减焓减湿过程。
特点:空气的温度要降低到其露点温度以下,因此会有结露现象发生,这就意味着空气的含湿量要减少(dc <dA,即d<0)。
湿冷过程在焓湿图上一般用直线A-C""表示。(空气状态的实际变化过程是先由A点到饱和线上的C""点,再保持饱和状态由C""点减含湿量变化到C""点)。
由于湿冷过程不仅空气的焓要减小(h <0),含湿量也要减少(d <0),因此其热湿比值为:

空气通过制冷装置的蒸发器或空调设备的表冷器、冷却盘管时,有结露现象发生以及与温度低于tl的水进行热湿交换时的状态变化过程均为湿冷过程。
湿冷过程是夏季空调中最常用的空气热湿处理过程。在此过程中,空气放出的热量也即处理空气所需要的冷量(又称为制冷量)为:
Q = qm ( hB""- hA) kW
湿冷过程凝结出的水蒸气量为:
W = qm(dB""- dA) g/s
(3)等焓过程
凡是空气在状态变化过程中焓保持不变的过程统称为等焓过程或绝热过程。
按空气在等焓变化过程中含湿量是增加还是减少,等焓过程又分为等焓加湿过程和等焓减湿过程两种。
1)等焓加湿过程
特点 焓不变(h=0),含湿量增加(d>0)。
又称为绝热加湿过程。
在焓湿图上 用45的直线A-D表示。
在等焓加湿过程中,空气状态变化的焓湿比值为
当往空气中喷雾(微小水滴)加湿时,工程上把此过程当作等焓加湿过程对待。同理,水在空气中的自然蒸发,工程上也当作等焓加湿过程对待。
空气经雾化式或自然蒸发式加湿装置处理,或与温度为tS的水进行热湿交换时的状态变化过程均按等焓加湿过程对待。
等焓加湿过程对空气的加湿量为:
W = qm(dDdA) g/s
2)等焓减湿过程
特点 空气的焓不变(h=0),含湿量减少(d<0),
在焓湿图上用45直线A-E表示。
空气状态变化的焓湿比值为:

用固体吸湿剂(如硅胶)处理空气时,工程上近似按等焓减湿过程对待。
该过程从空气中除去的湿量为:W = qm(dEdA) g/s
(4)等温加湿过程,简称等温过程
特点 空气的温度不变,含湿量增加,在焓湿图上用接近水平的直线A-F表示。
工程上把对空气进行喷蒸汽加湿处理的过程视为等温加湿过程。
该过程的加热量为:Q = qm(hF- hA) kW
该过程的加湿量为:W = qm(dF- dA) g/s

①加热过程 AB
②冷却过程 AC
干冷过程 AC
湿冷过程 AC
③等焓过程
等焓加湿过程 AD
等焓减湿过程 AE
④等温过程 AF

例:考察一个等湿降温过程,设空气初状态的干球温度为33℃,含湿量为14g/kg干。查焓湿图,求当空气终状态的干球温度分别为33℃、28℃、21℃和19.4℃时,相应的湿球温度、露点温度、相对湿度和焓。
暖通设计中焓湿图运用
通过焓湿图,可以确定湿空气的状态参数点,而且可以非常直观地表示出湿空气的状态变化过程,这样便于分析计算湿空气的处理过程。
1、通过已知两个空气状态参数,查询另外其它参数。前面我们已经讲过。举例:试标出27,60%在焓湿图上的点,并查询其他参数。

(友情提醒:以下表格请手机横屏查阅!)

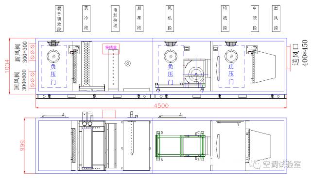
空气处理机组中各功能在焓湿图中的体现
工程实例(夏季工况)


2、一次回风系统中计算送风量
通过焓湿图,焓湿图可以帮助工程、设备设计人员、清楚准确的描述空气处理过程,标定送风温度、计算送风量、计算焓差、计算冷量、加湿量,验算设计的准确性。举例如下:
例:某机房总余热Q=3314W,总余湿W=0.264g/s,要求室内参数维持在tN=221 ℃ ,N=55 5%;求送风状态和送风量。
(1) 求热湿比=Q/W=3314/0.265=12600
(2) 在I-d图上,标定房间回风温度点N,画热湿比线,取送风温差8 ℃,就可以得到送风温度点O,送风露点L。I-d图如下
(夏季工况)
送风量G=Q/(IN- I0 )=3314/(46-36)=0.33kg/s=1426CMH
表冷器冷量:=G*(IN- IL)
加热量=G* (IO- IL)
以上的例子是通过温差法计算送风量,但在洁净室的设计时一般是采用保证换气次数的条件下,先得出风量再推算焓差,最后得出送风温度点。以上只是焓湿图应用的一点,在二次回风系统,全新风空调系统都可以应用,基本上所有的空气处理过程都可以通过焓湿表现出来。
空气的热湿特性
1、湿空气的组成
干空气及一定量的水蒸气的混合物称为湿空气。因为湿空气中水蒸气的含量很少,且一般处于过热状态。
湿空气中的水蒸气含量虽然较少,但其变化对环境产生重要影响。大气中发生的雨、雪、霜、雹、雾、露等自然现象均由湿空气中的水蒸气的相变所致。因此研究湿空气中水蒸气含量的调节在空气调节中占有重要地位。
2、湿空气的主要参数及确定法密度
(1)湿空气的密度
密度=干空气密度与水蒸气密度之和,即
= g+ q =Pg/RgT+Pq/RqT(热力学第一定律)=0.002484B/T-0.00134Pq/T
B大气压力,T湿空气热力学温度,Pq水蒸气压力
在实际计算时,在标准条件下(压力101325Pa,温度20℃)取值=1.2kg/m3
(2)湿空气的压力
在通风空调及干燥工程中,一般采用大气作为工质,此时的湿空气的总压力即为当地的大气压力:B=Pa+Pv(道尔顿定理)
Pa=干空气压力
Pv=水蒸气气压力
标准大气压力= 101325Pa。
(2)湿空气的压力特性
水蒸气分压力的大小反映了湿空气中水蒸气含量的多少,水蒸气含量越多,其分压力也越大。在一定的温度条件下,一定量的湿空气中能够容纳水蒸气的数量是有限的。湿空气的温度越高,它允许的最大含水蒸气量也越大。当空气中水蒸气含量超过最大允许值时,多余的水汽会以水珠的形式析出,即出现结露现象。此时,水蒸气达到饱和状态。由此可知,未饱和的空气中,水蒸气的含量没有达到最大允许值,它还具有吸收水蒸气的能力。我们周围的空气通常是未饱和空气。
考虑到湿空气体积会温度变化,因此采用水蒸气密度作为衡量湿空气很不方便,因此可以科学家们发明了含湿量
d = 对应于1kg干空气的湿空气所含有的水蒸气的质量。
d=q/g=0.622P q /(B-P q )单位:g/kg
B大气压力, Pq水蒸气压力
含湿量可以确切的表示湿空气中实际含有的水蒸气量的多少。所以在空气调节中常用含湿量的变化来表示被加湿或减湿的过程。并用此参数来计算加湿量。
(4)湿空气的绝对湿度与相对湿度
每立方米湿空气所含有的水蒸气质量,称为湿空气的绝对湿度。也即为其水蒸气密度:
相对湿度是另一种度量湿空气水蒸气含量的间接指标。它的定义为空气中的水蒸气分压力与同温度下饱和水蒸气分压力之比。它表示空气接近饱和的程度。相对湿度大,说明空气潮湿,接近饱和状态,吸收水蒸气的能力弱,相对湿度小,说明空气干燥,远离饱和状态,吸收水蒸气的能力强。
可以近似表示为=d/d b*100%
d含湿量, d b 饱和含湿量
3、含湿量、绝对湿度、相对湿度区别
(1)定义
含湿量1kg干空气的湿空气所含有的水蒸气的质量
绝对湿度每立方米湿空气所含有的水蒸气质量
相对湿度水蒸气分压力与同饱和水蒸气分压力之比
(2)使用
含湿量经常使用,大多用于计算加湿量,单位g/kg 。
绝对湿度不经常使用,单位g/m3 。
相对湿度经常使用,大多用于湿负荷计算,无单位。
(3)湿空气的湿球温度是在定压绝热的条件下,空气与水的直接接触达到稳定的热湿平衡时的绝热饱和温度,也称热力学湿球温度。由于在工程应用中测量不可能实现,常用干湿球温度计的湿球温度代替。只须测试方法正确,采集风速大于4m/s即可。
露点温度在含湿量不变的条件下,湿空气达到饱和时的温度。
(4)湿空气焓值用于度量空气热量变化,表示物质内能。
在等压过程中,焓的改变等于系统热的转换。一般发生相变化时(PhaseTransition),压力保持一定的情况下,焓的变化量就等于相变过程中的潜热。
湿空气的焓等于1公斤干空气的焓加上与其同时存在的0.001d公斤水蒸气的总和:
i= 1.01*t +0.001*d*( 2501+1.85*t )(kj/kg)
t湿空气温度、d湿空气含湿量