强制性标准
为长期贯彻落实国家住房和城乡建设部《关于开展工程建设强制性标准实施情况试点检查的通知》(建办标函〔2009〕183号)和兵团建设局《兵团工程建设强制性标准实施情况试点检查工作方案》(兵建发〔2009〕87号)等文件精神,切实有效执行《建设工程质量管理条例》、《民用建筑节能条例》、《建设工程安全生产管理条例》和《实施工程建设强制性标准监督规定》等法律法规,进一步加强工程建设强制性标准的执行力度,提高质量安全、建筑节能强制性标准的实施水平。针对近年来施工中的一些薄弱环节或关键性的技术问题进行分类整理,具体内容如下:
1、基底标高不同时,基底应按1:2的台阶逐步放坡,基础砌体应从低处砌起,并应由高处向低处搭砌。当设计无要求时,搭接长度不应小于基础扩大部分的高度且不宜少于500mm。

地基局部升台留设部位
不同标高基础砌筑示意
2、砖砌体的转角处和交接处应同时砌筑,严禁无可靠措施的内外墙分砌施工。对不能同时砌筑而又必须留置的临时间断处应砌成斜槎,斜槎水平投影长度不应小于高度的2/3(多孔砖为1/2)。当内外墙分砌的可靠措施设计文件中无明确要求时,应采取在墙体中部增设截面120mm墙宽的C20现浇混凝土圈梁,圈梁的纵筋412,箍筋6@200;其竖向间距不应大于1.2m。圈梁应锚入临近的构造柱中或水平锚固伸入相邻墙体内,其水平锚固长度从临时间断处算起每侧均不少于2.5m。
内外墙分砌施工构造
3、对于后砌填充墙、隔墙墙长大于5m或8、9度抗震设防时的填充墙、隔墙,其墙顶应与楼板或梁可靠拉结。当墙顶的可靠拉结设计无明确要求时,应采取待填充墙砌筑完并至少间隔7天后,在墙顶浇筑同墙厚、宽度不小于150mm、高度不小于200mm,内配有至少110钢筋的C20细石混凝土下悬短柱,短柱中距不应大于1.2m。短柱内钢筋必须与结构连接牢固。
4、建筑外门窗的安装必须牢固。在砌体上安装门窗严禁用射钉固定。一般当外墙门窗洞口周围设计无混凝土边框时,在砌筑砌体中应设置截面尺寸不小于11511590mm,强度等级不小于C20的混凝土块;其间距必须满足验收规范和施工安装的要求。
5、在8度抗震设防地区承重砌体窗间墙最小宽度以及承重砌体外墙尽端至门窗洞边的最小距离小于1.2m时,应采取局部加强措施。若设计未给出明确要求,可采用在洞边增设截面尺寸为180mm墙厚,强度等级不小于C20的混凝土构造柱;构造柱纵筋412,箍筋6@200,上下分别锚入过梁和楼盖中。
6、门窗等洞口处不应采用无筋砖过梁;过梁支承长度,6~8度时不应小于240mm,9度时不应小于360mm。当过梁支座沿墙端的纵向长度不够时,过梁支承应采取可靠的锚固措施。

过梁短支座设置构造
7、抗震设防烈度8度和9度时,楼梯间及门厅内墙阳角处的大梁支承长度不应小于500mm,并应与圈梁或楼盖可靠连接。
8、抗震框架结构上层柱内钢筋比下层柱内钢筋直径大时,上层钢筋的最短切断点在梁底向下延伸的长度不少于llE+( Hn/6、hc、500mm中的较大值 ),其它符合钢筋连接的质量要求。
上柱钢筋直径比下柱钢筋直径在时构造
9、现浇板跨中正弯矩钢筋伸入现浇混凝土支座的锚固长度应取100mm和过支座中心线中的较大值。现浇板跨中正弯矩钢筋伸入砌体支座的锚固长度不应小于120mm 、h板和过中心线中的较大值。另外当连续板内温度收缩应力较大时,伸入支座的锚固长度均宜适当增加至15d。对与边梁(含圈梁)整浇的板,支座负弯矩钢筋的锚固长度应la。
10、当梁端实际受到部分约束但按简支计算时,应在支座区上部设置纵向构造钢筋,其截面面积不应小于梁跨中下部纵向受力钢筋计算所需截面面积的1/4,且不宜少于2Ф12的钢筋,该纵向钢筋构造自支座边缘向跨内伸出的长度不应小于0.2lo。

过梁简支变嵌固支座构造
11、现浇楼梯应与主体结构同步施工,不得采用在墙体内留置水平沟槽的方式进行施工。楼梯梯板的施工缝应留置在楼梯梯板跨度中间1/3 的范围内,施工缝距相应踏步面前缘的距离为1/2~2/3的踏步宽度且支施工缝的梳子板应垂直与楼梯底板。

楼梯梯板施工缝留置构造
12、现浇构件底模及其支架的拆除必须符合《混凝土结构工程施工质量验收规范》中第4.3.1条的规定;而侧模拆除时的混凝土强度应达到2.5MPa以上,并能保证其表面及棱角不受损伤。
柱墙模板采用高强螺杆进行加固,确保柱墙断面准确
13、剪力墙及框架柱等结构钢筋最大位移量不得超过35mm;否则必须报审施工技术处理方案。任何人严禁擅自采取将移位钢筋割除或热煨弯的处理方法。
竖向钢筋采用卡具式塑料垫块定位
14、屋面保温层的含水率必须符合设计要求。当保温层干燥确有困难时,应与设计单位协商采用排汽屋面。当设计无明确要求时,应采用金属排汽管,排汽管的纵横间距均不应大于6m,其管径应控制在20~50mm的范围内,保证排汽效果并避免屋面板发生局部热桥现象。排汽管出口应煨弯至口朝下且出口距屋面面层的高度不应少于300mm。
15、厕浴间、厨房和有排水( 或其他液体)要求的建筑地面面层与相连接各类面层的标高差应符合设计要求。当设计无明确要求时,地面内外高差应控制在15~20mm之间并宜以1:1的斜坡过渡。门槛斜坡下口宜与内墙饰面层平齐。
16、厕浴间和有防水要求的建筑地面必须设置防水隔离层。楼层结构必须采用现浇混凝土或整块预制混凝土楼板四周除门洞外,应做强度等级不应小于C20的混凝土翻边。当设计无具体要求时,混凝土翻边的宽度不得小于90mm且不应小于墙厚的1/2,其高度不应小于300mm,翻边内应配有双向10@250的钢筋网片。浇筑混凝土翻边时不应留设施工缝;否则应在其内侧增设一道柔性防水层。
17、设置地面辐射供暖系统的卫生间地面必须在绝热层下和填充层上各做一层柔性防水层并应在卫生间过门处设置不少于150mm厚且不小于S6的抗渗混凝土止水墙。
低温地辐射卫生间防水构造
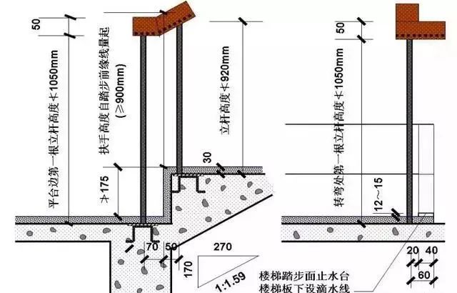
18、室内楼梯扶手高度自踏步前缘线量起不应小于0.90m。靠楼梯井一侧水平扶手长度超过0.50m时,其高度不应小于1.05m。而住宅、托儿所、幼儿园、中小学、少年儿童专用活动场所以及文化娱乐建筑、商业服务建筑、体育建筑、园林景观建筑等允许少年儿童进入活动的场所栏杆必须采取防止少年儿童攀登的构造,当采用垂直栏件做栏杆时,其杆件净距不应大于0.11m。

19、楼梯栏杆及扶手的安装必须符合设计要求。若设计无明确要求,楼梯井净宽大于0.20m的楼梯必须采取防止少年儿童攀滑的措施,楼梯栏杆应采取不易攀登的构造,当采用垂直杆件做栏杆时,其杆件净距不应大于0.11m。楼梯扶手高度自踏步前缘线量起不宜小于1.05m,水平扶手长度超过0.5m的,其高度不应小于1.1m。

20、住宅外窗窗台距楼面、地面及可踏面的净高低于0.90m时,应有防护措施。当设计防护措施不明确时,应采取在外窗的内侧增设防护栏杆等措施。防护栏杆的垂直杆件净距不应大于0.11m;防护栏杆与外窗框的净距宜控制在0.1~0.2m之间。对于六层及六层以下的住宅防护栏杆净高不应低于1.05m,七层及七层以上的住宅防护栏杆净高不应低于1.10m。同时,防护栏杆不得采取便于少年儿童攀登的构造。
21、住宅内设有淋浴器和洗衣机的部位应设置地漏,其水封深度不得小于50mm;地面排水坡度不应小于1%。构造内无存水弯的卫生器具与生活排水管道连接时,在排水口以下应设存水弯,其水封深度不得小于50mm。另外,地下室、半地下室中卫生器具和地漏的排水管,不应与上部排水管连接。
22、阳台、外廊、室内回廊、连廊、内天井、上人屋面及室外楼梯等临空处应设置防护栏杆离楼面或屋面0.10m高度内不宜留空。所设置的坎台宽度不宜大于200mm;否则,防护栏杆高度应从可踏面算起。
23、建筑屋面水落口的管径应比相应雨水管放大一级,其周围直径500~800mm范围内的排水坡度应控制在5%~10%之间;而水落口与找平层之间应留设15~20mm宽的凹槽,槽内填嵌防水密封材料,其上再铺贴防水层并贴入水落口杯内不应少于50mm。
24、除建筑变形缝外,在墙面和地面上连续粘贴EPS板的长度和宽度不宜大于12m且不得大于20m;否则必须设置15~20mm宽的抗裂分格缝,缝内填充弹性闭孔保温材料,表面用建筑胶做防水处理。
25、一般节能建筑的室外门窗框每侧与洞口墙体之间应留设20~30mm宽(外窗副框与洞口之间间隙宜留设10~20mm宽。而当面砖饰面时宜留设40~50 mm宽,外墙金属幕墙时宜留设50~60mm宽,外墙干挂石材幕墙时宜留设70~80mm宽)的空隙并用保温材料(优先选用聚氨酯泡沫填充剂)填嵌饱满。
26、一般弹性涂料、彩色装饰砂浆、柔性面砖饰面时保温层以一布二浆为保护层,但建筑物首层(EPS板密度不小于22kg/m3)、外墙洞口以及外墙贴硬质面砖的部位应加铺一层网格布成二布三浆保护层。
27、外墙组合塑料窗及连窗门的拼樘料应采用与其内腔紧密吻合的增强型钢作为内衬,型钢两端比拼樘料长出10~15mm。拼樘料上下两端必须与结构可靠连接。
28、外墙外保温系统应包覆门窗框外侧洞口、女儿墙、阳台、勒脚、雨罩、雨篷柱、靠外墙阳台栏板、空调室外机搁板、附墙柱、凸窗、上人口、装饰线和靠外墙阳台分户隔墙等外墙出挑构件及附墙部件,其做法必须符合设计要求且保温层的厚度均不得少于30mm。
29、室外散水、明沟、踏步、台阶和坡道等附属工程应与建筑物之间应留出10~20mm宽的缝隙,缝内填嵌柔性密封材料。附属工程的面层和基层(含基土等各构造层)均应符合设计和规范要求。水泥混凝土散水必须设置纵向伸缩缝,一般其沿长米间距不宜大于3m。
30、室内外墙面、楼地面、天棚及女儿墙变形缝的做法(含细部构造)必须符合设计要求。当设计无明确要求时,应严格按照本地区现行标准设计图集进行施工。