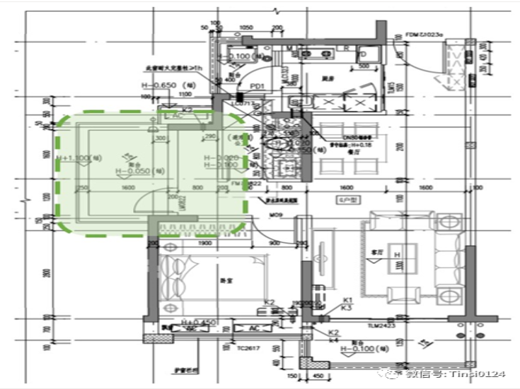
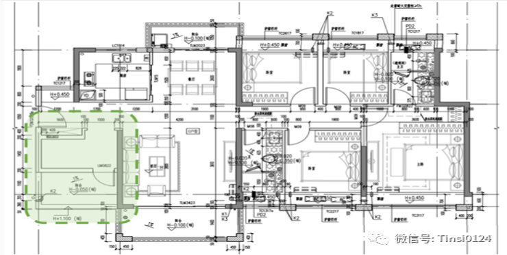
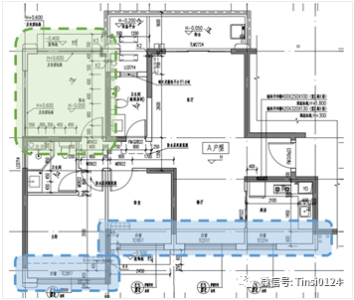
1、 凸窗;
属于非常常见的方式;尤其对于赠送面积卡的比较严一点的城市;
室内改造的时候可以选择改或者不改,凸窗加以利用也是一个容易出氛围的空间。

以下是凸窗的节点改造做法:室内的墙体现场做的时候就胡考虑砌砖,凸窗板面采用的是预制板直接搁置在砌体上面。
后期业主改造的时候直接敲掉砌体墩子就好,直接扩大面积。更有甚者,连天花上面的凸窗也可以改掉,前提是凸窗的梁可以直接做到外墙位置。

2、 阳台改房间:

有些地方是一半阳台一半储藏间,比如XX项目;有些地方可以整个阳台改房间,比如XX;主要还是看城市技术管理规定中关于面积计算的规则,另外对于户均的控制或者阳台率的控制来考虑。
一般结构剪力墙是不能外凸超过结构的,且阳台基本都是凸阳台,需要在结构主体之外。

另外这种阳台改房间的,一般开窗都是高位转角窗,很多开发商在做样板房的时候会考虑做成书房或者儿童房。
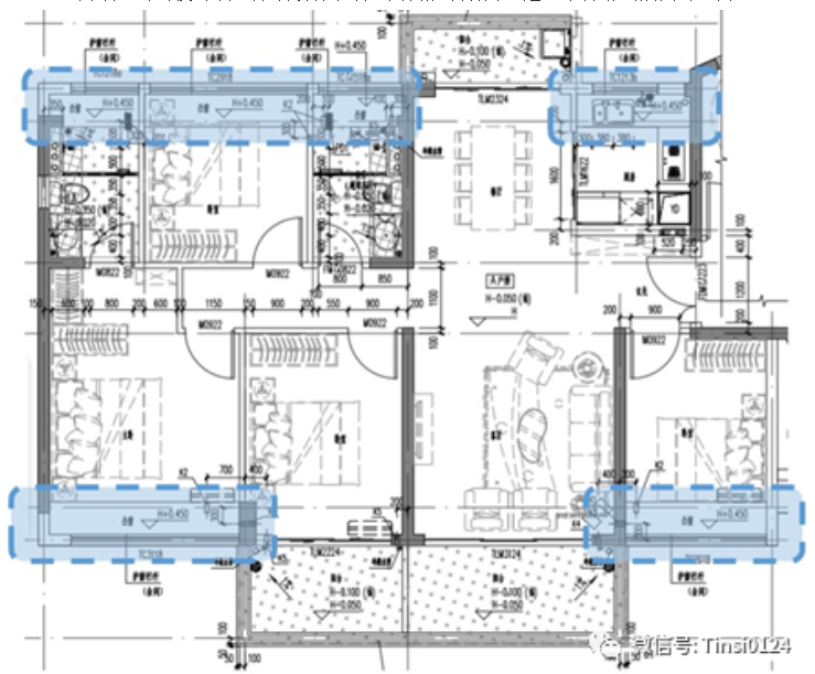
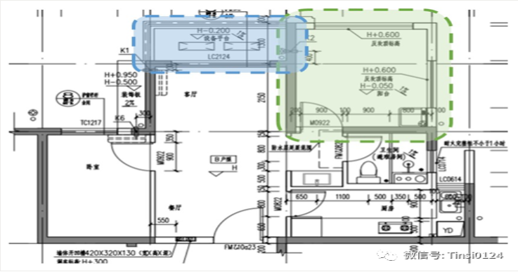
3、 阳台和凸窗都有赠送

这个项目的户型赠送的比较多,当然也主要是跟当地的规划条件有关系,有很多地方已经做不到这种多方式和大面积的赠送了。
亮点:阳台可以改造成一个房间,设备平台可以改造成景观阳台,凸窗也可以砸掉扩大房间的空间,满满的都是卖点。
4、设备平台改阳台;

设备平台改造成景观阳台,客厅的窗会做成落地窗,实际施工的时候会做成推拉门;值得注意的是设备平台的结构板标高比普通的阳台结构板可能会低的多,主要看当地的城市技术管理规定。

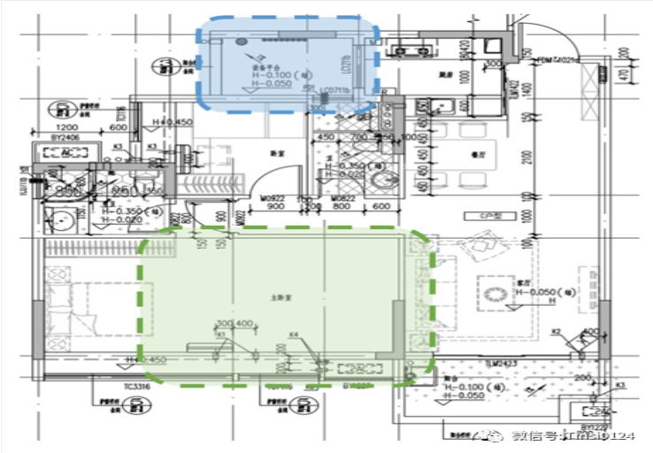
这个是XX和XX项目比较常见的处理手法:主卧的房间隔出来一堵墙体,还可以增加一个房间,凸窗也可以砸掉,增加主卧的空间;设备平台通常也会被改造成生活阳台。

5、掏洞加板改造一个房间;

这个是XX的某个在售项目,56平方的三房两卫,5.6米层高,经过天井加板,客厅上空加建一个房间,复试做到了三房两卫,产品类型比较受年轻人的青睐,小空间满足大需求,产品亮点:从层高上满足了空间的需求。
一般业主在签订认购合同的时候,有些开发商会把这个板的改造费用也包含在内,有些是毛坯交付的,设计会预留加建的条件,后期由业主自理。