一套完整的景观施工图包含哪些图纸?
功能介绍我怎么选择做景观设计?成为一名景观设计湿,你需要一个好的身体,好的脾气,好的创意,好的作品....很感谢甲方爸爸让我活到现在,不说了,看这个公众号真的学到不少东西,我去改图了。
景观施工图是景观设计到景观施工的桥梁;是完美体现设计者设计概念的工具;是施工进行的凭证;是实现想法到现实中的完美体现。
一套完整的景观施工图到底包含哪些?
按国家制定的行业标准进行设计,能完整提供环境景观施工所需要的全部图纸及所应达到可供施工的设计深度,施工图纸一般包括以下几个方面的图纸:园建、植物、水电、结构。

园建
封面和目录这里就不多做赘述了,具体情况根据实际来
设计说明
①项目概况
②设计依据
③设计内容及范围
④设计技术说明
⑤竖向设计说明
⑥室外工程材料及构造措施
⑦施工要求
⑧图纸编排说明及图纸使用说明
⑨其他需要注意事项
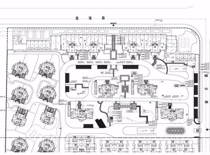
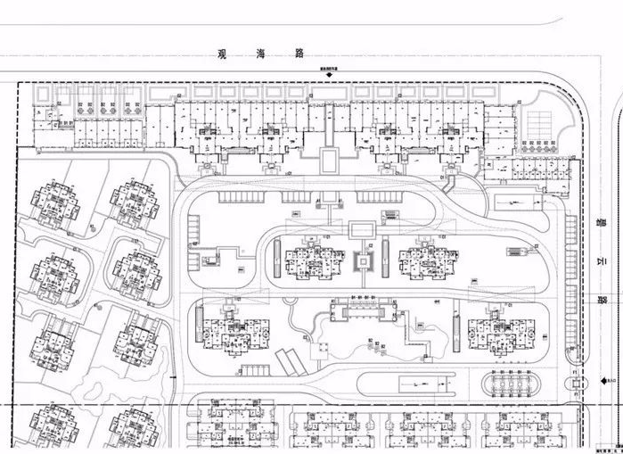
总图
①总平面图
对于总图的绘制,我们是以建筑底图为准,彩平方案作为一个参照来进行推敲的。在推敲的过程中对于一些数据是依据设计规范和方案的意图来确定的,具体位置的确定则是依据甲方提供的底图中已有不变的物体确定,如:建筑、消防的登高面、附属构筑物、红线、市政道路等。

②分区索引平面图
a.地形太长太窄的图,分段索引,分段画图
b.索引时要将索引框内的东西都抠出来
c.即使有标准断面图,也得在索引圈中标明详见***

③分区竖向平面图
a.道路标高:标交叉点、转弯点、变坡点标高,坡度、坡长及坡向;若无道路剖面可表示横断面坡向时,也需标明;需有道路中心线。
b.场地(硬地)标高:仅标控制点标高和坡向,不需要标坡度和坡长。如一个广场内有坡度,则把最高标高和最低标高标一下,再加坡向即可。
c.绿地标高:当绿地、场地标高关系与标准详图不一致时才需表示,仅标控制点标高即可;如绿地、场地标高关系与标准详图一致,当坡地放坡有变化,则需表示坡向、最缓坡度和最陡坡度;大面积造型坡地加等高线,文字角度可与等高线相平。
d.挡土墙标高:仅标角点和控制点标高
e.水体标高:分水面/水底标高,在同一标高点上标注。
f.需表示雨水口和地漏位置;排水沟用双虚线图例表示。

④分区尺寸平面图
a.尺寸标注与小品界限必须保持距离,以免打印出来两者混淆
b.尺寸标注的线型建议采用最细的线,出图时容易区分
c.尺寸标注不是越多越好,标出重要的放样数据

⑤分区网格平面图
a.作为放样依据的平面控制点必须明确标识出,且其位置必须在整个施工过程中较外固定(且无障碍)的点,如固定的构筑物上
b.放样图名称下要标注网格间距(如5*5m,10*10m)
c.小广场网格放样图也要有基准点,即使是相对的基准点

⑥分区铺装平面图
a.cad填充图案必须与现场做法一致,注意规格、表面、角度
b.大面积拼花广场铺装,应有具体规格、尺寸、角度、厚度、表面以及铺装的放样

⑦分区家具平面图
家具主要包括:小品、雕塑、指示牌、花钵、花箱、垃圾箱、成品桌椅等。

详图
①铺装详图:
a.图纸内需体现定位平面,铺装材料。
b.图纸详细尺寸标注以毫米为单位,较总图应更为详尽,铺装铺贴样式及材料分割线均需要体现。
c.铺装尺寸需与材料规格结合考虑,不宜出现小于1/3碎砖;控制在1/2最佳。
d.直线段硬质铺设要求对缝整齐,缝隙宽度一致,板材之间完成面高差应控制在验收标准范围内,曲线段铺装要求曲线圆滑,采用弧形切割。特殊节点有的需要石材编号拼贴组合。
e.碎拼铺装按常规要求采用碎角料及砸碎拼接效果往往难以把控,宜排版编号切割,杜绝阴角石材,往往能取得更佳效果。
②景观详图
a.图纸图名建议按照具体构筑物名称另取,如弧形廊架平面图、观景亭详图
b.景观详图需与索引总图对应,详图总尺寸(坐标)与总图节点定位尺寸(坐标)要一致。
c.有对应的剖面、立面和做法,立面需反映各看面的贴面样式,材料及尺寸;
d.剖面、立面节点及异形材料断面在单体图纸无法表示清楚的,需要增加大样图,曲线异形及LOGO等铭牌还需要增加网格放样。
e.大样及剖立面详图可采用相对标高,但要标明0.00的绝对标高值.
f.在大样平面图中,水底铺装要用铺装线来画,并且保证水池喷头及水底射灯在铺装的中心位置。
g.构筑物定位以柱中心为轴线来定位,并且在总图上显示其轴线并标注轴线相交点的绝对坐标。
h.如果门窗比较多的,需要出门窗表,包括门窗的数量,材料,以及开关方式等等。
i.一些特殊材料或做法图纸上不能表达清楚的须在图右下角注明:
如:I所有钢结构均为单面或双面贴角满焊,焊缝高不小于6MM,焊口除毛刺后挫平,防锈漆两道.
II.防腐木作防腐处理,连接方式为榫接,榫接处采用高性能胶粘结.
j.注意与一些配套工程的驻留及美化,如空调机箱,预埋管线等。
通用大样
①硬质广场(分车行和人行)、道路(分主干道、次干道、园路、汀步)、路缘石做法(平地面、高出地面,道牙降坡),各种硬质相接细部做法,伸缩缝处理等类
②绿地收边做法,绿地与道路广场硬质相接做法类,绿地与木质平台相接做法、木质平台与硬质相接做法。
③通用树池、种植池、坐凳等做法类,局部侧面增加细部处理的还需要增加立面节点详图。
④停车位做法,井盖做法(分为硬质中井盖及绿化中井盖两种)
⑤栏杆、台阶通用做法类(含各种防护栏杆的节点做法)
⑥水景防水做法(横跨地库边界和落与素土上两种情况),坡道,挡土墙等类
⑦灯具、标识、家私或小品等非成品设计基座通用做法类
绿化
设计说明
①选用苗木的要求(品种、养护措施)
②栽植地区客土层的处理,客土或栽植土的土质要求
③施肥要求
④苗木供应规格发生变动的处理
⑤重点地区采用大规格苗木采取号苗措施、苗木的编号与现场定位的方法
⑥非植树季节的施工要求
苗木统计表
①种类或品种
②规格、胸径以厘米为单位,写到小数点后一位;冠径、高度以米为单位, 写到小数点后一位
③观花类标明花色
④数量
乔木布置平面图
将所有植物图层中除了乔木之外的其他植物图层关闭,对乔木进行名称、数量等进行标注。
花、灌木布置平面图
将所有植物图层中除了花、灌木之外的其他植物图层关闭,对其植物进行名称、数量、面积等进行标注。(有时太过拥挤时,将地被植物单独做一张平面图)
水电
电气说明
讲述给电气设计原则,及其实施质量要求
电气布置平面图
灯具布置、灯具种类、规格、数量,交待灯具、控制箱等电气的布置位置,及回路连接方式,加上文字说明
给排水设计说明
讲述给排水设计原则,及其实施质量要求
给水布置平面图
景观给水一般分为两种:景观用水和灌溉用水,标出用水点、水管线路、取水点、管径用水、管底标高、坡度等
排水布置平面图
景观排水一般分为两种:雨水和污水,在雨水聚集点布置好雨水篦、收集池等设施,标出管径大小、管底标高、坡度等
施工图是个再设计的过程,我们在做施工图的过程中要把握细节,在平时的学习过程中也需要多积累。