一、采用三维参数化的必要性
在大跨度桥梁中,钢桥具有绝对优势,但钢桥结构复杂、设计工作量大。传统上钢桥设计采用AutoCAD等二维CAD软件出图,由于设计信息分散保存在大量视图及图纸中,容易产生差、错、碰、漏现象,同时由二维点、线、圆弧、标注等图元描述的三维实体不能由计算机自动判释,使得实施产品数据管理和协同设计遇到很大障碍。

从CAD技术的发展趋势看,三维参数化技术是解决上述问题的有效途径。三维参数化就是要将几何及尺寸关系嵌入到三维模型中,从而体现工程师的设计意图。采用三维参数化设计具有以下优势:
1.结构设计就是一个构思、验证的迭代过程,直观的三维显示,使整个结构一目了然,可大大提高设计效率。
2.完整地体现工程师的设计意图,避免了曲解。
3.方便处理复杂的空间几何关系。
4.零部件及二维工程图纸管理方便,这一点对大型结构设计尤其重要。三维模型对几何对象的定义是完备的,可即时创建二维工程图,可自动生成各种视图和多种形式的剖面,并可自动生成材料表。
5.三维模型与工程图之间、工程图各视图之间、模型与材料表之间完全相关,避免了简单低效的劳动。
6.可实现一定程度上的并行设计,从而缩短设计周期。只要结构形式确定了,就可以利用初步拟定的尺寸作为参数开展设计,后期一旦尺寸有变动,只需要更改参数就可以更新模型和相应的工程图。
7.在概念设计和技术设计阶段建立的模型可供下一阶段使用,也可供汇报演示,建立的模型可供有限元分析使用,节约了设计成本。

二、基于三维参数化的二次开发
用于钢结构三维参数化设计平台发展比较快,主要可分为两类:用于机械行业的主要有Catia、UG、Solidworks、Inventor等,可用于机械、模具、钣金、管道、小型全焊结构的设计,大部分产品附加了机械行业的标准件库,用于建筑行业的主要产品有Bently公司的ProStructure、达索公司的3D Experience、芬兰Tekla公司的Tekla Structure、英国AceCAD公司的StruCAD等,主要用于高层建筑、体育场馆、工业厂房的设计,一般都提供了比较丰富的型材和节点库。
由于缺乏专门用于钢桥三维设计的软件,只能借用其它通用软件或结合其它专业来完成,但桥梁设计与机械领域的设计相比又有一些自身的特点。这些特点使得直接利用现有软件进行钢桥设计存在诸多不便,工程师在使用时面临的是一个陌生的环境,充斥着诸如特征树、抽壳、拔模、放样、凸台等等术语,无法利用熟悉的桥梁专业术语如桁式、节点长度、杆件、梁、节点板、拼接板、填板等专有概念进行构思和设计,因此有必要在现有平台基础上进行二次开发,形成一套包含钢桥设计专用参数化对象库的软件包。

考虑到性价比、易用性、开发接口等因素,中铁建大桥院在2009年起选择Solidworks作为支撑平台进行钢桥三维设计工具包的开发。到目前为止,该成果已成功应用于贵广铁路某四线铁路斜拉钢桁梁桥、国内最大跨度公路钢桁系杆拱桥珠海横琴二桥、深茂铁路潭江桥等已建和在建项目中。

三、从三维模型到二维图纸
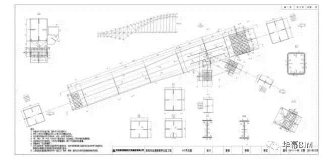
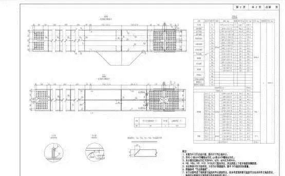
现阶段国内桥梁设计均需交付二维图纸,这种传统意义上二维工程图实际上是工程师通过空间想象将脑海中的三维模型投影、剖切到二维平面上的产物,相应得到的二维图纸表现能力及校核纠错功能相比实际三维模型大打折扣。


与之相反,由三维模型直接生成的图纸则表现形式更为丰富,三维布置图、预拼装图能精准无误的表示各细部结构的空间位置,二维剖面图及大样图是由三维模型经过计算机程序自动投影、剖切得到,比由人脑加工转换得到的二维图纸更加高效、精准,也更便于其他人员再次复核。因此,不仅在空间构造表现方面,三维图纸有其绝对优势,而且在剖切示意及大样展示及工程数量统计方面,由自动生成的二维图纸更能保证精确度。
三维模型关联工程图纸的方式,在改善了出图效能的同时也将工程师的工作重心真正意义地转移到了设计上面,而不是常规的先有图纸后有模型,能有效保证BIM三维模型的精确性,并能提高设计院应用BIM 的积极性。到目前为止,中铁建大桥院已有多座大型复杂钢结构桥梁采用了直接由三维建模生成施工图。
四、迈向BIM时代
在三维参数化技术方面的积累为中铁建大桥院迈入BIM时代提供了良好的基础。三维参数化建模是BIM系统的核心功能,也是其区别于传统CAD系统的主要特征。在桥梁全生命周期和各专业横向的数据交换过程中,三维参数化模型起到了信息载体的作用,同时Solidworks、Inventor等BIM工具软件生成的三维参数化模型可采用IFC(IndustryFoundation Classes)、STEP(产品数据交换标准)等格式进入BIM平台软件,为协同设计打下了良好的基础。

在使用过程中也发现,Solidworks软件虽然使用方便、建模效率高、对二维出图支持好,但在管理大模型(如全桥模型)时性能下降明显。因此引进了CATIAV6平台,与原有的Solidworks软件一起形成一个高低搭配的BIM环境。在这个环境中,Solidworks作为BIM创作工具对钢桥节点、杆件、锚箱等次级装配进行建模,CATIA V6平台负责全桥模型组装、融合其它专业数据、设计协同、生成供发布用的轻量级模型等工作。

实际上,在实施BIM的过程中,类似的细节问题会大量存在,相信随着技术人员熟练程度的提高、BIM软件的不断升级和BIM应用的深化二次开发等,BIM技术对桥梁设计的巨大推动作用将会逐渐显现。
五、小结
目前与BIM相关的标准正在形成与完善,相关人才培训、技术政策、软件研发还不能完全满足BIM实施的要求,因此在桥梁设计中全面采用BIM技术会遇到相当大的困难。
在BIM实施时,单一软件肯定不能满足桥梁设计的要求,需要对不同厂商的软件进行集成,搭建一个合适的BIM环境,可以通过定制开发等手段基本解决不同软件间的数据交换问题。由于桥梁设计的特殊性,对现有BIM软件进行用户定制和二次开发不可避免。需要针对具体应用场景采用三维参数化模板、直接调用软件API等方式进行开发。
由于目前施工图交付还是以二维图为主,由三维模型生成二维施工图往往称为影响BIM落地的关键因素。在三维建模时考虑到二维出图的要求,可以减少后期工作量。
