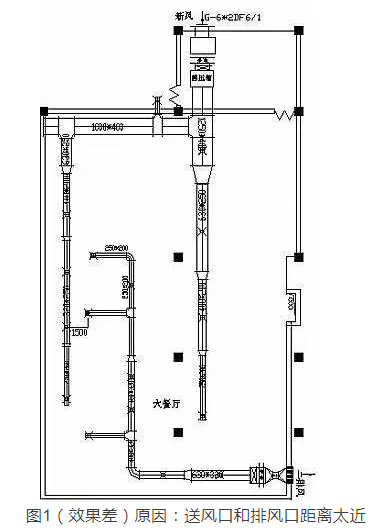
1.送、排风口的距离要适当
排风口与送风口至少保持3米的距离以防气流短路
图示:

2.选用合适的风阀
从原则上讲,系统风压平衡的误差在10%-15%以内,可以不设调节阀,但实际上仅靠调风管尺寸来调风压是很困难的,所以,要设风量调节阀进行调节。
①风管分支处应设风量调节阀。在三通分支处可设三通调节阀,或在分支处设调节阀。
②明显不利的环路可以不设调节阀,以减少阻力损失。
③在需防火阀处可用防火调节阀替代调节阀
④送风口处的百叶风口宜用带调节阀的送风口,要求不高的可采用双层百叶风口,用调节风口角度调节风量。
⑤新风进口处宜装设可严密开关的风阀,严寒地区应装设保温风阀,有自动控制时,应采用电动风阀。
3.风管的布置
①要尽量减少局部阻力,即减少弯管、三通、变径的数量
②弯管的中心曲率半径不要小于其风管直径或边长,一般可用1.25倍直径或边长
③为便于风管系统的调节,在干管分支点前后,应预留测压孔。测压孔距前面的局部管件的距离应大于5b(b为矩形风管的长边或圆形风管的直径),距后面的局部管件的距离应不小于2b。通风机出口处气流较稳定的管段上宜应预留测压孔。
4.新风进口位置
①进风口宜设在室外空气比较洁净的地方,保证空气质量
②宜设在北墙上,避免设在屋顶和西墙上,并宜设在建筑物的背阴处这样可以使夏季吸入的室外空气温度低一些
③进风口底部距室外地面不宜小于两米,当进风口布置在绿化地带时,则不宜小于一米
④应尽量布置在排风口的上风侧,且低于排风口,并尽量保持不小于10米的间距
5.新风口的要求
①宜采用固定百叶窗
②多雨地区宜采用防水百叶窗以防雨水进入
③为防止鸟类进入,百叶窗内宜设金属网
6.排风管的新做法
类似酒店客房的排风系统设计可如下考虑:利用排气扇将室内风排到走廊的吊顶内,在走廊设排风管排风,为有效利用余热,排风机可设置于卫生间。