卫生间在后期使用过程中,若防、排水处理不当,易造成卫生间室内潮湿、地面装饰层下滞水。致使卫生间门口内、外两侧墙体150mm左右出现长毛、脱皮等现象,这种现象是因为卫生间装饰层下长期滞水产生的水平渗漏引起的。卫生间渗漏包括竖向渗漏和水平渗漏,竖向渗漏在施工中较容易被重视,然而水平渗漏却往往被人们所忽视,这对建筑的使用功能会造成严重的影响,给居住者带来诸多不便,所以在施工过程中应引起足够的重视。

所谓水平渗漏就是卫生间由于洗澡或者其他用水不当等原因所产生的滞水从装饰面层的缝隙(地砖拼接的砖缝)渗到装饰层下、防水层之上的砂灰层(卫生间防水层和地砖之间的水泥砂灰层),砂灰层里的水无处排走,会一直停留在这个位置。日积月累,停留在此处的滞水层液面上升,滞水长期停留会滋生细菌,形成污水池,给人们的正常生活造成不利影响。其危害一是当滞水层液面超过卫生间门口下处防水标高时,由于结构原因,卫生间门口处防水层不能上返,滞水就会向室内流,使临近卫生间的房间墙体长毛、脱皮;其二表现为卫生间内侧墙体产生高150mm左右的长毛、脱皮现象。这一现象是由于水的表面张力原因,产生的毛细现象。当砂灰层滞留的水顺着墙体空隙形成的毛细管上升到一定高度(大约150mm),从而滋生细菌霉斑,长期使用对居住者身体产生不利影响。因此为避免产生类似问题就需要在施工过程进行处理。

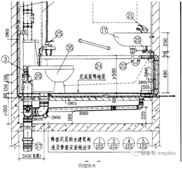
卫生间的排水从建筑结构上可分为同层(降板、墙排、垫层式)排水方式和异层板下排水方式。以同层排水方式处理卫生间渗漏往往在施工中受到重视,处理方法及工艺成熟。在降板最低标高(行成坡度的防水层上部的最低点)处设一个污水收集装置将上层渗漏的水收集排出形成二次排水系统。

异层板下排水的卫生间,结构地面比室内低50mm。在建筑结构施工完成后,需要在结构层上做找平层、防水层、防水保护层(即砂灰层)装饰面层等工序。这种结构层,引起的水平渗漏往往是在施工中被忽略的部分。要进行处理,首先在防水层施工中,适当做好坡度,坡度坡向排水点。在排水点位置采用特制的管件或者采用相应的工艺,利用虹吸作用,及时的排走砂灰层堰积的水,避免业主后期在使用水过程中,未通过地面地漏及时排走极少部分装饰面层渗漏至下方防水层之上的,砂灰层间的水,规避水平渗漏的产生。此处施工时,需要注意不能破坏防水层并在排水口的位置做好防水修补;在装饰施工铺地砖的时候注意保护好排水孔,以防被泥沙堵住,留出排水间隙。