概述
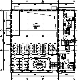
前段时间设计一框架结构售楼处,根据建筑使用功能要求,地上部分主要有三大块功能分区:沙盘展厅部分为通高一层,层高10.1m;休息洽谈及内部办公区域分为两层,层高分别为5.6m和4.5m;样板间分为三层,层高为3.6x2+3.15m(此部分顶层为坡屋面);故形成错层结构,局部平剖面见图1和图2。
项目所在地区抗震烈度分别为8度(0.20g),一组,场地类别为Ⅱ类,丙类设防。地下一层为车库,运用PKPM进行结构设计计算。

图1 建筑二层平面布置图

图2 建筑剖面
结构的难点和重点
工程规模看似很小,但是平面和竖向均不规则,无论跃层柱还是错层可均归纳为楼板局部不连续,进而引起楼层侧向刚度和抗剪承载力存在突变。使用pkpm软件进行计算,跃层柱属于很普遍的情况,主要注意正确定义柱子的计算长度,而错层属于比较复杂的情况,也是本工程的难点,按照惯例和个人工程经验,个人建议计算错层一般按以下情况对待:当错层部位相邻高差不大于楼层楼层普遍梁高且不大于600mm时,按照一个标准层计算,其余情况则应增加标准层来计算设计。
结构计算中的问题和原因
明确计算方法,我们按部就班进行pkpm建模计算,由于错层和坡屋面的原因,模型分为6个标准层,层高依次为4.8(地下)+3.6+1.8(最先方案)+1.8+2.9+3.15(坡屋面),根据建筑图按常规输入各构件及荷载计算,查看计算结果发现如下问题:
整体指标方面:地下一层和顶层坡屋面层除外,其余各标准层存在相邻楼层侧向刚度比和抗剪承载力之比不满足规范的情况,层间位移角Y方向为1/529,大于1/550,位移比1.30。
配筋方面:错层处框架柱剪压比在第一第二标准层超限。
原因分析:计算时为了模拟真实的受力情况,我们将错层两侧按照两个标准层来输入,形成个别楼层层高较小,如第三层为1.8m,与首层3.6m相差很大,造成刚度和抗剪承载力相差过大;错层柱剪压比超限也由此而引起。
解决方法
明确问题产生原因,下一步我们就努力减小由于层高差距引起的刚度突变。
在最大化满足建筑使用的前提下,我们把首层休息办公区域层高抬高200mm(样板间部分3.6m不能变化),即最终的三四标准层层高为2.0m+1.6m,其次加大第三标准层框架梁梁高及梁宽来增加刚度(优选梁高,但往往梁高受限,本工程框架柱为700x700,根据建筑要求也不可加大),同时降低下层结构刚度,如减小部分框架梁梁高。
错层柱超限可通过减小截面削弱其刚度,降低所受地震力,但同时考虑Y向位移角不足,采取加大此排框架柱尺寸至800x800。
根据上述方法,又对个别细节部位构件反复调整计算,结果显示侧向刚度比、抗剪承载力之比和层间位移角(最大为1/6071/550), 最大位移比为Y-偶偏下为1.26,均满足规范要求,错层柱不再超限。
容易忽略的重要指标复核
计算到这里,查看pkpm结果各项都满足规范就开始进行绘图工作为时尚早。
这里还要清楚一点,错层结构建模中人为的增加了大量的标准层,造成计算中跨层部分位移角和位移比结果失真,不能区别真实楼层与计算楼层的关系,故必须对实际高度进行手算补充校验。详细介绍可参照《建筑结构设计问答及分析》第3.6.3条,针对本工程需要对标高5.6m(休息办公区域顶板处,层高5.6m)、标高7.2m(二层样板间顶板处,层高3.6m)和标高10.1m(二层办公区域顶板处,层高4.5m)进行校核,位移角校核见下表1,位移比校核见表2(鉴于篇幅限制,表2只列出X+和Y-两个方向中位移比最大的一组数据)。
表1.1

表1.2

表2.1

表2.2

通过上表可以看出,手算补充结果中位移角最大值为Y向7.2m标高处,1/6161/550,满足规范要求,但我们注意下与pkpm计算结果里面7.2m标高处比较,1/6161/632,所以补充验算是必要的也是必须的。位移比最大值1.25为Y-标高7.2m处,也满足我们的计算要求。
一些构造措施
到这里我们的方案和计算已基本完成,开始施工图绘制。本工程虽然属于多层框架,但错层受力复杂,我们仍然可以参照《高规》第10.4节内容,错层柱提高抗震等级,箍筋全高加密,同时为了提高错层柱延性,参照《抗规》第6.3.6条文说明,错层柱内设置核芯柱,如图2;错层两侧楼板定义弹性膜计算,板厚最小120mm,配筋双层双向。
引申和结论
现在随着建筑功能的多样化,对结构工程师的要求也越来越高,对结构方案和软件计算的分析和判断尤为重要。不能机械的只运用计算机,只要电算结果不超限就认为方案可行甚至合理,也要结合实际情况对计算结果进行评估,必要时必须手算补充验算,确保工程安全!

图2 错层柱内置芯柱大样图