所谓的剪力墙Lc其实是约束边缘构件才有的,他表示一个尺寸范围,专业名叫做约束边缘构件沿剪力墙肢的长度
什么是约束边缘构件,来跟我一起读YBZ,大家是不是很熟悉了,没错,典型代表就是YBZ暗柱,Y约束、B边缘。构造边缘构件可没有哦(GBZ)
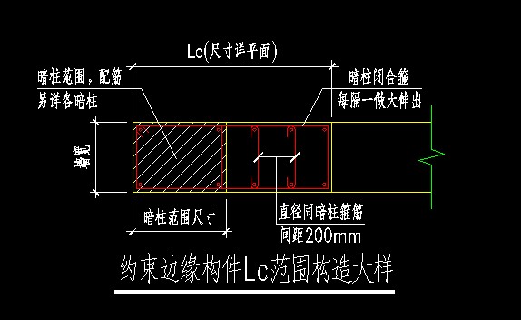
在16G101-1第13、14页中有注明Lc的具体范围(如图)

剪力墙这部分LC由非阴影区和阴影区组成,λv这个符合我就不解释了,对我们造价人来说无用,阴影区就是暗柱,非阴影区就是暗柱以外剪力墙身以内,非阴影区的配筋率和阴影区的配筋率不一样,非阴影区的配筋会比阴影区的少,一般非阴影区就配置拉筋或者箍筋,纵向钢筋一般由剪力墙身的纵筋代替,,相信经常建模的人不陌生,因为很多图纸都是这样的配筋形式(如图)

那么在广联达如何画这部分的内容呢?
一般有几种方法
方法一:土建计量GTJ2021中新增约束边缘非阴影区功能,约束边缘构件可以用暗柱和约束边缘非阴影区组合布置。正常布置暗柱后,新建约束边缘非阴影区,点画布置在暗柱和墙相交位置。

方法二:在软件中通常把非阴影区的部分定义为暗柱,即把它和暗柱本身当做一个暗柱处理,钢筋是在暗柱的截面编辑器中绘制。如图:

方法三:新建参数化柱,在参数化图形中,选择对应形状中最后一种形式,按照图纸将尺寸对应输入,然后在属性列表中中输入相应的钢筋信息。如图:

注意:
1.若将约束边缘暗柱阴影部分和非阴影部分分别单独用暗柱布置,对暗柱钢筋计算没有影响,影响梁支座的识别。
2.土建计量GTJ中,暗柱需要新建柱后,修改属性中结构类别为暗柱。