
如果你真的这么理解的话就大错特错了啊,这种符号其实是起止,终止的意思,意思就是在此处钢筋就截断了,不是代表弯钩哦,为此我特意的去查阅了相关解释,且听我慢慢道来。
首先,这个问题,我还特意询问了下搞结构设计的,他们制图人员用制图软件(盈建科、板王)画的钢筋选择斜钩就会有这种截断符号,但是这斜钩并不是弯钩的意思,一般我们看到画135°弯钩、180°弯钩的都是圆钢才会有,而螺纹钢一般都是弯锚、直锚那种。
这里科普下钢筋分圆钢、螺纹钢这类,然后圆钢用HPB300表示,以前是HPB235不过淘汰了,然后二级钢就是螺纹钢用HRB335表示,不过也不多见了,然后就是HRB400三级钢、HRB500四级钢这种,如果后面带个E就是抗震钢筋,所谓HPB就是热轧光圆钢筋,HRB就是热轧带肋钢筋,带肋肯定是带螺纹那,当然还有冷轧钢筋,CRB表示,CRB500、CRB600这类。
继续下面的讲解,下图就是用板王绘制板筋,可以看到的是圆钢都是有180°弯钩的。


我们可以查阅《GBT-50105-2010建筑结构制图标准》,第3.1节中钢筋符号可以发现这么一张图

在序号2的位置注明了无弯钩的钢筋端部,并且附上了图例,且在说明里面备注了45°斜线
什么意思,就是两种情况
1、没有弯钩的钢筋端部用这种图例
2、长短投影重叠时,短钢筋端部用这种图例。
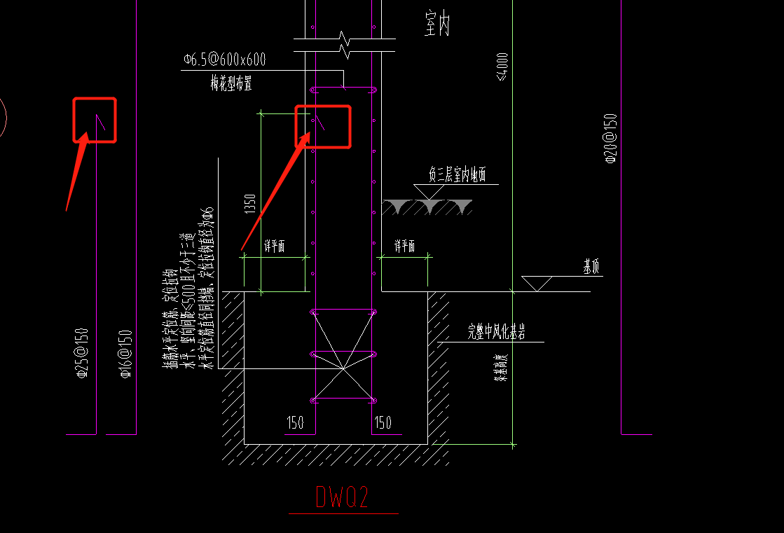
可能很多人不知道什么是长短钢筋投影重叠,我找张图给大家看就知道了(如下图)

上图的挡墙垂直加强筋就是典型的长短钢筋重叠,挡墙是双排的垂直钢筋,在其中一排又附加了垂直加强筋,两者重叠形成隔一步一的方式,而我标注红框的位置上,就是垂直加强筋的端部,短钢筋在此处中止。
这样大家就明白了这个标识的意思了吧,其实板筋也是这种起止符号,因为板底筋一般都是直接伸进梁里面,没有弯钩,一般只有面筋才有(如下图)

起止符号的都是底筋,90度弯钩的都是面筋
一般板筋区分有下列原则
弯钩90度的都是面筋 起止符号的就是底筋
弯钩朝右和下的是面筋,弯钩朝左和上的是底筋 左上底右下面 还有一种直接画直线,直线的是底筋(PS:如果没有特别注明的话) 下面这张图还没讲完,大家看到序号6,注明无弯钩的钢筋搭接图例,是不是有两个起止符号
记住一个起止符号是从此处断开,两个起止符号表示此处搭接。
我们翻开16G101-1第63页看看

在我红色圈的位置上面每排两个、两排四个起止为搭接连接区段,下面每排两个、两排四个起止也为搭接区段,中间一个0.3lle的非连接区段,大家看明白了。然后机械连接和焊接连接符号也各不相同。
这就是钢筋弯钩、弯折、起止符号、终止符号的最终意思