因为多数时候假定条件是能自然满足的,并不需要验算,也不需要特别处理,久而久之我们就很容易忽视对假定条件的考究。下面介绍四个很常见同时也很容易被忽视的问题,望引起注意。
一、楼梯间剪力墙没有楼板支撑:
下图一是高层住宅公共区域很常见的布置形式。走廊联通各户,走廊北侧是楼电梯间,南侧是各种管道井(如风井、水暖井、强弱电井)。

楼梯间外墙的两侧都没有楼板支撑,墙体稳定性如何保证?
尽管该墙内侧有楼梯斜板,但按照传统做法,楼梯斜板与剪力墙仅仅是简单贴合,既没有钢筋连接,混凝土也不是整体浇筑,起不到支撑作用。对该墙平面外能起到支撑作用的,只有楼梯的两块平台板。但平台板是与窗顶连梁连接的,通过连梁才能间接约束该剪力墙,可见约束效果是比较薄弱的,从下图二中可以看得比较直观。

现在高度100米左右的高层住宅比比皆是,如果不能提供可靠的平面外支撑,则在地震作用下,该剪力墙的安全性存在隐忧。
建议借助楼梯斜板的平面内刚度为楼梯间外墙提供支撑,以保证其稳定性。具体做法是,楼梯斜板双层双向配筋,并将钢筋可靠地锚入剪力墙内;楼梯斜板的厚度和配筋率适当提高。
二、楼道侧面管道井集中布置,致使楼道板变成无根悬挑板:
主体结构施工时,管道井的楼板一般为后浇;即钢筋照常绑扎,先不浇混凝土;待管道安装完毕再补浇混凝土。但对于图一所示的情况,阴影线所示区域全部后浇,切断了楼道板在剪力墙上的支座,使得楼道板变成了悬挑板,而且该悬挑板的另一侧是楼梯间和电梯间,没有楼板。也就是说,楼道板变成了无根的悬挑板,安全性很差,见下图三;

另外,由于管道密集,楼板有效截面较小。加上在管道安装和调直过程中,往往不得不将预留的钢筋切断;管道安装完毕后,也很难将被切断钢筋进行很好的调直和焊接;补浇混凝土以后,也难以形成一块完整的楼板,依然是以悬挑板的状态在受力。加之管道井的隔墙密集,重量很大,楼道板的安全性不容小视。
针对上述状况,且考虑到加梁会影响楼道净高和观瞻,建议做法如下:
(1)将楼板加厚(180~200mm左右);一来方便预埋强弱电管线,二来方便设暗梁。
(2)在管道井周边设暗梁,将垂直于楼道方向的暗梁当做主梁,沿楼道方向的暗梁当做次梁,并延伸至入户门顶连梁,使之形成连续梁,参见下图四。

三、坡道贴附在地下室外侧,形成间接受力的挡土墙:
顾名思义,挡土墙就是承受土压力的,所以一般来说,挡土墙总有一侧是临土的。但有的地下室外墙并不临土,或者只有小部分临土,但间接承受较大的土压力。这种挡土墙就需要特别注意。
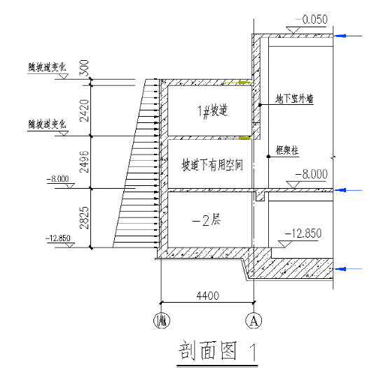
如下图汽车坡道平面图,汽车坡道贴附在地下室外墙的外侧,貌似地下室外墙(A轴墙)不挡土,但实际上该墙受力状态更复杂、更不利。该工程地下一层为大型商超,层高8米,所以坡道很长。

坡道横剖面如剖面图1 和剖面图2。


如不加注意,很容易只把坡道外墙当作挡土墙,把坡道斜板和顶板当作挡土墙的支座。实际上,坡道斜板和顶板的内侧并没有与地下室楼板对位,而是支承在地下室外墙上(A轴和35轴墙),从而将土压力传给该墙。由于坡道下方是可利用空间,该外墙并没有落地(见剖面图1),最终实际上是将土压力传给了8米高的框架柱上(绿色箭头所示),这显然是不成立的。即使如剖面图2所示地下室外墙是落地的,8米高的墙承受坡道板传力的土压力,其厚度和配筋也是可观的。
针对此问题,采用发挥坡道斜板平面内刚度和承载力的办法,使其成为坡道外侧挡土墙的支座。但坡道斜板长度达到56米,故需要给坡道斜板增设支点。在不影响建筑空间的情况下,为坡道斜板增设了四个支点,将斜板的跨高比控制在6以内,如下图汽车坡道剖面图:

四个支点是:
(1)车道顶板敞开处的上反梁,与地下室内的剪力墙对位;
(2)在3~4轴间、标高-2.600处设汽车坡道支撑板,与主体结构核心筒剪力墙对位;
(3)在7轴上标高-6.8米处设汽车坡道支撑梁,实际是水平轴压杆,与主体结构核心筒剪力墙对位;
(4)坡道斜板底端与-2层顶板整浇。
由下图可以看出,坡道外侧挡土墙的四个支座:基础底板、-2层顶板、坡道斜板、坡道顶板。坡道斜板和顶板将土压力直接传给主体结构剪力墙,地下室外墙(A轴和35轴墙)不再承受土压力。

四、坡道入口位于主体结构的边跨:
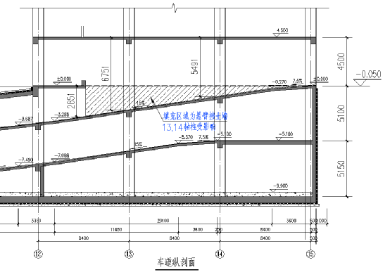
如下图,地下车库的坡道入口位于主楼的边跨,造成主楼边列柱(下图中A轴柱)在0.000形不成嵌固端,且柱侧面承受土压力,对主体结构很不利。

下图为A轴柱列的纵剖面图。A轴挡土墙依靠坡道斜板的平面内刚度和承载力支撑。阴影区为悬臂挡土墙。阴影区内13轴和14轴的柱段侧面承受土压力。
下图为坡道横剖面,可以看清楚,A轴柱在0.000形不成嵌固端,且侧面承受土压力。
为了避免这种不利状况,经征得建筑师和甲方的支持和同意,在A轴外侧的地下室增加一跨,-2层用于停车,-1层为变电所。如下图:

结构布置如下图;

变电所顶板可为13轴和14轴的框架柱提供嵌固作用,变电所外墙承受土压力,A轴墙和框架柱不再承受土压力。