
上图就是本文的主角深圳万科滨海云中心,塔楼外立面为鳞次栉比的锯齿形幕墙造型,西南视角看为玻璃幕墙,东南视角看为石材幕墙,富有层次感与节奏感。
从左看,向右看!迥然不同项目位于深圳市福田区车公庙片区南部,南依滨河大道,西接泰然九路,北靠泰然八路。作为万科的商业与产业研发大楼,主楼高161米,地下四层,地上34层;建筑面积超过8万平方米。其中大堂为15米通高玻璃幕墙,骨架表面均为不锈钢材质;架空层采用菱形蜂窝不锈钢吊顶,塔楼板块全部采取锯齿状单元式幕墙,
1.引言
在当代建筑行业,肌理作为视觉艺术的一种基本语言形式被广泛运用到幕墙设计中,设计师通过各种纵横交错、高低不平、粗糙平滑的纹理变化,表达建筑外表皮的纹理特征,形成肌理幕墙。肌理幕墙通过引入更多折皱、斜线、弧线和不规则线条等几何变化要素,形成立体感和韵律强烈的肌理表皮,不仅可以表现建筑的不同质感,同时也使建筑呈现多样的视觉效果。

肌理在建筑幕墙上的应用,既有简单规律形体,也有错乱无章的不规则变化。为了让建筑形体更丰富,有些建筑平面采用不规则斜线相连,形成类似锯齿的平面,其建筑幕墙相应为锯齿状肌理幕墙,如图一示意。近些年因其造型美观、层次感强烈,锯齿状幕墙应用越来越多。考虑其幕墙节点构造复杂性,同时随着施工现场人工成本的不断攀升以及人们对于幕墙品质的要求越来越高,锯齿状幕墙以单元式实现的案例越来越多,需要幕墙工程设计人员对于上述幕墙设计有一些深入的研究。

本文针对锯齿状单元式幕墙的设计进行分析和总结,同时,在工法上创新采用了组合L型的整体装配式板块,在工厂组装加工,提高生产效率、提高组装安装质量,供广大幕墙工程设计人员参考。

2.定义
本文主要介绍的是锯齿状单元式幕墙设计,根据《建筑幕墙术语》(GB/T 34327-2017)3.3.1.2条内容,文中所述的锯齿状单元式幕墙定义如下:由面板与支承框架在工厂制成的不小于一个楼层高度的幕墙结构基本单位,直接安装在主体结构上组合而成的框支承建筑幕墙,其幕墙单元构成的平面形式为锯齿形状,如下图二示意。

3.自身特点
锯齿状幕墙作为建筑设计的一种流行元素,有其自身特点,主要表现在四个方面:室外效果、室内效果、节能减排、减少光污染。
3.1室外效果
锯齿状幕墙平面为规则或不规则的斜线相连组成,一方面通过形体的虚实对比,让建筑立体感和层次感更强,呈现给人们的视觉效果更具有震撼性。另一方面,对于锯齿状幕墙的两个斜面,我们可以分别赋予不同的幕墙面板材料(如图三示意),其质感也各不相同,当我们处于这个建筑的不同视角时,会有不同的建筑效果呈现,给建筑带来多样化及可变性,丰富了建筑本身的外立面装饰效果。

3.2室内效果
建筑的生命是由光的照射而产生的,自然光给予了空间特性,也给予了建筑生命,自然光影营造出光影空间的形式美。锯齿状幕墙通过在幕墙的两个斜面分别设置透明幕墙与非透明幕墙,透明幕墙采用玻璃幕墙,非透明幕墙采用金属板或石材等幕墙形式,太阳光照入室内时形成了光影交替的效果(如图四示意),在丰富空间语境的同时,也营造出明暗层次、虚实对比的视觉感,为室内空间赋予凝魂。

3.3节能减排
锯齿状幕墙的两个斜面分别设置透明幕墙与非透明幕墙,一方面间隔布置的透明幕墙可以满足建筑采光要求,同时也可以在透明幕墙上设置开启扇,以达到自然通风的需求。另一方面对于间隔布置的非透明幕墙,因其传热系数K值较透明幕墙低很多,可以将整栋建筑的节能参数大幅降低。同时我们可以利用太阳光照射的朝向问题,在锯齿状幕墙东南朝向的斜面上设置透明幕墙,在锯齿状幕墙西北朝向的斜面上设置非透明幕墙,减少西晒,最大限度达到建筑的节能减排。
此外我们也可以通过在锯齿状幕墙的某个面(常规选择西北朝向)设置穿孔金属板(如图五示意),在其室内侧设置内平开窗,既保证了开窗与不开窗时室外建筑效果的完整性与一致性,又保证了其自然通风的效果,同时穿孔金属板兼顾室外遮阳的功能,也可以极大的降低建筑能耗。

3.4减少光污染
玻璃幕墙在其华丽外表的背后,由其产生的光污染也在影响着人类的生活、工作、健康、安全等,因此光污染也在越来越多地受到人们的关注。当太阳光入射到光滑的平面上时,发生镜面反射,反射光也是平行光,平行光只沿一个方向传播,在该方向上光强较强,形成反射眩光。玻璃幕墙由于其表面光滑,对太阳光进行镜面反射时会形成光污染,因而在锯齿状幕墙中通过玻璃幕墙与非透明幕墙间隔布置,可以减少玻璃幕墙面积,同时可以利用漫反射原理,达到减少光污染的效果。
4.实施方式
锯齿状幕墙实现方式有两种,第一种方式是主体结构本身设计为锯齿形平面,第二种方式是幕墙平面自身构成锯齿状,上述两种实施方式分析如下。
4.1主体结构本身设计为锯齿形平面
主体结构平面为锯齿状,通过混凝土结构梁外挑锯齿状的楼板实现,幕墙平面沿着锯齿状的混凝土挑板自然形成,如下图六示意。其幕墙受力体系同标准常规幕墙一致,即每个分格的幕墙竖向龙骨均直接悬挂在混凝土挑板上,幕墙传力简单直接,荷载由面板至横竖龙骨,再由竖向龙骨直接传递给主体结构。其主体结构边界条件充分,幕墙节点构造也相对简单。但是相对而言其主体结构施工难度较大,模板工程比较复杂。

4.2幕墙平面自身构成锯齿状
当主体结构边梁为直线混凝土梁,建筑平面为锯齿状平面,幕墙需要通过自身体系形成锯齿状平面,常规设计是将单个板块设计成三角形板块,多个三角形板块顺序连接形成锯齿状幕墙,如下图七示意。其主体结构比较规则,施工简单。然而对于这种实现方式的锯齿状幕墙,其存在悬挑立柱,结构受力复杂,同时三角形位置的室内空间一般为幕墙悬挑位置空间,不会做为室内正常使用的空间,在空间利用率上相对较低

5.荷载取值
对于锯齿状单元式幕墙而言,其荷载取值依据《建筑结构荷载规范》(GB 50009-2012)相关内容即可,设计过程中荷载取值无特殊之处,需要重点关注风荷载的局部体型系数以及风荷载的加载方向。
5.1 风荷载的局部体型系数
关于风荷载体型系数,规范给出了清晰的定义,即风作用在建筑物表面一定面积范围内所引起的平均压力(或吸力)与来流风的速度压的比值,它主要与建筑物的体型和尺度有关,也与周围环境和地面粗糙度有关。由于体型系数涉及的是固体与流体相互作用的流体力学问题,十分复杂,对于复杂的不规则形状的建筑,一般应由风洞试验确定。若项目没有风洞试验数据,对于封闭式类矩形平面带锯齿状幕墙的建筑,其幕墙锯齿的进出尺寸相对建筑平面而言占比较小,风荷载体型系数可参考封闭式矩形平面建筑选取,即按照《建筑结构荷载规范》GB50009-2012中8.3.3及8.3.4条和8.3.5条的规定进行计算。在计算幕墙龙骨时,对于非直接承受风荷载的围护构件,局部体型系数可按构件的从属面积折减,其从属面积应与风荷载加载方向的面积对应一致。
5.2 风荷载的加载方向
锯齿状幕墙因其锯齿的进出尺寸大小各异,其相对于建筑平面占比也各不相同,《建筑结构荷载规范》GB50009-2012并未对此类细微的锯齿状平面给出详细的加载方向,因此在项目设计过程中风荷载加载方向各不相同,争议较多,具体分为两种:一种是沿着锯齿幕墙的各个平面法线方向加载,并把各种不利的正负风荷载进行组合并进行验算,具体参见下图八。另外一种沿着建筑平面的迎风面法向方向,再将风荷载分解到锯齿幕墙的两个斜面,具体参见下图九。


上述两种加载方式,比较保守设计方式是各种加载方式吓均进行验算。本文笔者认为正常情况下,幕墙锯齿的进出尺寸相对建筑平面而言占比较小,在计算幕墙龙骨时,对于非直接承受风荷载的围护构件,可考虑风荷载沿着建筑平面的迎风面法向方向加载,而对于面板,作为直接承受风荷载的构件,可考虑风荷载沿着面板平面的法向方向加载。
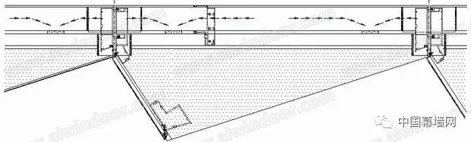
6.排水设计

另一种是单元式上横梁水槽料直线布置,其水槽路径沿着锯齿状平面的底边设置,见下图十一示意,各板块的单元式横梁水槽料能拉通呈直线,板块之间的水槽料拼接方式同标准幕墙一样,板块之间的横滑块为整体横滑快,此位置漏水隐患相对较小。此外插接横梁直线布置,板块不存在两个方向的插接,施工简单。但因防水密封的构造要求需要在单元板块的顶部及底部,水槽料与锯齿两个斜边构成的区域,采用铝板或其他防水板密封,以保证水槽外侧区域与室内空间的密闭,达到幕墙整体防水密封性。上述水槽设置方式对于板块顶部及底部三角形区域的防水板密封要求较高,且安装完成后无法进行修补,此外对于幕墙本身而言,因额外增加了防水板,其成本相对较高。

7.体系设计
锯齿状单元式幕墙体系设计主要有两种:第一种体系适用于主体结构本身设计为锯齿形平面,每个锯齿可以分为两个及以上板块,也可以为一个整体转角板块。无论锯齿的单元如何划分,因主体结构本身为锯齿平面,每个单元的立柱均可直接挂接在混凝土挑板上,具体见图十二中①所示。板块受力同常规板块一样,仅仅是在支座位置通过构造设计保证其能承受锯齿面两个方向的风荷载作用。第二种体系适用于幕墙平面自身构成锯齿状,每个锯齿设计为一个三角形板块。三角形板块底边的两个立柱可以直接挂接在混凝土结构梁上,锯齿尖部的立柱依靠斜向撑杆及横梁,与底边的两个立柱组成空间桁架结构,具体见图十二中②所示。此三角形板块受两个方向的风荷载,考虑侧向风荷载的传力,需要在横滑块上构造设计一个凸出构件,此凸出构件作为单元幕墙竖向龙骨底部的插芯,可与单元幕墙竖向龙骨紧密配合并在高度方向搭接一定的深度,且左右不能位移,同时将横滑块一端与下板块的上横梁采用自攻钉连接,而不是简单的插接固定,通过上述构造设计,三角形板块的侧风荷载在单元幕墙底部由竖向龙骨传递给横滑块,再由横滑块过渡给下方板块,从而形成稳定的受力体系,具体见图十二中③所示。

8.结语
锯齿状单元式幕墙实现方式有两种,其单元式上横梁排水槽的布置同样有两种,相应的体系设计也有两种方式,各种设计均有其自身的特点。根据上述对比分析,总结以下几点体会:
8.1锯齿状单元幕墙在建筑设计中具有丰富的建筑装饰效果,同时又具有一定的节能减排功能,具有较高的参考价值;
8.2 锯齿状单元幕墙锯齿平面的两种实现方式各有利弊,需要在主体结构设计时依据各方的需求进行选择设计方向;
8.3 锯齿状单元幕墙的上横梁排水槽宜直线布置,既有利于单元幕墙防水的可靠性,又方便现场单元幕墙的安装;
8.4锯齿状单元幕墙的风荷载加载方向是其幕墙结构计算的重点,也是存在争议的地方;
8.5锯齿状单元幕墙的连接及构造均需要考虑两个方向的风荷载,尤其是幕墙平面自身构成锯齿状,三角形板块上下插接位置需要考虑上下两个板块如何进行两个方向的荷载传递,不能仅仅依靠上下插接横梁之间的摩擦力。