如何计算预制钢筋混凝土桩工程量?
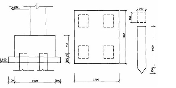
【例】图为预制钢筋混凝土桩,柴油打桩机打桩,二类土,计算桩基的制作、运输、打桩、打送桩以及承台的工程量(30根)。

预制钢筋混凝土方桩(示意)
【解】(1)定额工程量:
1)预制桩图示工程量:
V图=(8.0+0.3)0.30.3m4根30根=89.64m
套用基础定额2-2。
2)制桩工程量:V制= V图1.02=89.64m1.02-91.43m
3)运输工程量:V运= V图1.019=89.64m1.019=9134m
4)打桩工程量:V打= V图=89.64m
5)送桩工程量:V送=(1.8-0.3-0.15+0.5)0.30.3430m=19.98m
6)桩承台工程量:V承台=1.91.9(0.35+0.05)30m=43.32m
(2)清单工程量:
清单工程量计算见表。
