如何计算钢梯工程量?
钢梯
清单工程量和定额工程量计算规则相同,按设计图示尺寸以质量计算。不扣除孔眼、切边、切肢的质量,焊条、铆钉、螺栓等不另增加质量,不规则或多边形钢板以其外接矩形面积乘以厚度乘以单位理论质量计算。

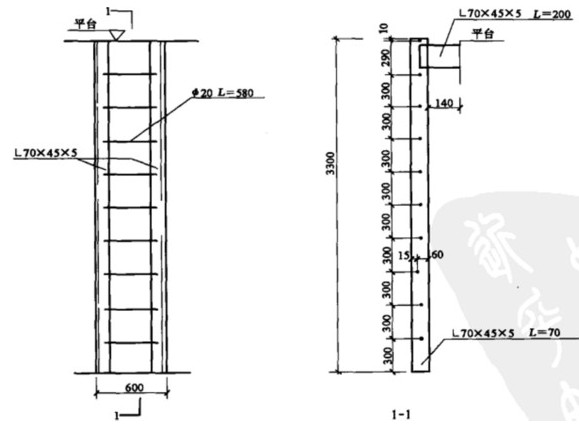
某钢梯示意图
【解】(1)定额工程量:
角钢:L70455=3.324.403kg=29.06kg
L70455=0.224.403kg=1.76kg
L70455=0.0724.403kg=0.62kg
20:0.58102.47kg=14.33kg
工程量合计:(29.06+1.76+0.62+14.33)kg=45.77kg
套用基础定额12-38。
(2)清单工程量计算方法同定额工程量。
清单工程量计算见表。
