如何计算一砖内外墙工程量?
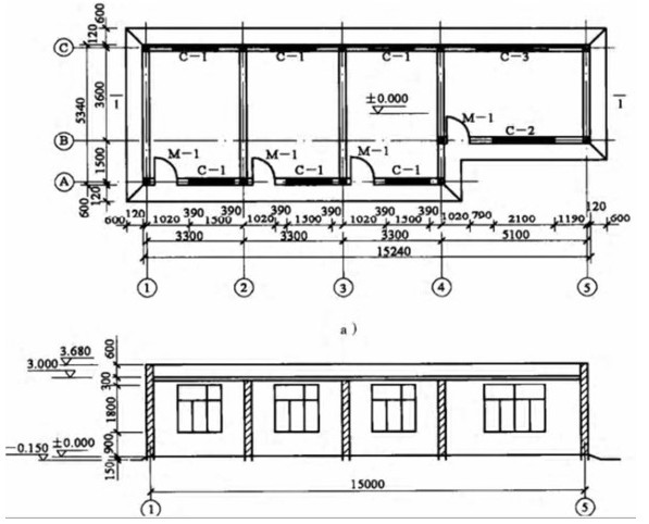
【例】某单层建筑物如图所示,门窗见表,试根据图所给尺寸计算一砖内外墙工程量。

某建筑物示意图 a )平面图 b ) 剖面图
表 门窗统计表
门窗名称
代号
洞口尺寸/mmmm
数量/樘
单位面积/m2
合计面积/m2
单扇无亮无砂镶板门
M-1
9002000
4
1.8
7.2
双扇铝合金推拉窗
C-1
15001800
6
2.7
16.2
双扇铝合金推拉窗
C-2
21001800
2
3.78
7.56
【 解 】 (1)定额工程量:
外墙中心线:L中=(3.33+5.1+1.5+3.6)2m=40.2m
构造柱可在外墙长度中扣除,因此
L中=(40.2-0.24x11)m=37.56m
内墙净长线:L净=[(1.5+3.6)2+3.6-0.126]m=13.08m
外墙高(扣圈梁):H外=(0.9+1.8+0.6+0.15)m=3.45m
内墙高(扣圈梁):H内=(0.9+1.5)m=2.7m
应扣门窗洞面积:取表5-18中数据相加得:
S门窗=(7.2+16.2+7.56)m2=30.96m2
应扣门洞过梁体积(在混凝土分部算得):VGL=0.146
衬则内外墙体工程量:
V墙=(L中H外+L净H内-F门窗)墙厚-VGL
=[(37.563.45+13.082.7-30.96)0.24-0.146]m3
=32.00m3
套用基础定额4-10。
(2)清单工程量:
H外=(0.9+1.8)m=2.7m
H内=(0.9+l.8+0.3)m=3.0m
H女儿墙=0.6m
V外=[(37.562.7-30.96)0.24-0.146]m3=16.76 m3
V内=13.083.00.24m3=9.42m3
H女儿墙=40.20.60.24 m3=5.79 m3
清单工程量计算见表。
表 清单工程量计算表
序号
项目编码
项目名称
项目特征描述
计量单位
工程量
1
010302001001
实心砖墙
外墙,墙体厚240mm,墙体高2.7m
m3
16.76
2
010302001002
实心砖墙
内墙,墙体厚240mm,墙体高3.0m
m3
9.42
3
010302001003
实心砖墙
女儿墙,墙体厚240mm,墙体高0.6m
m3
5.79