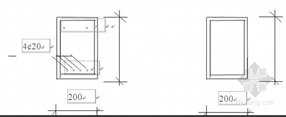
一、已知某梁的截面尺寸及配筋如下图所示,梁砼的强度等级为C20,原设计纵向受拉钢筋为4ф20(HRB335),其钢筋的截面面积AS1=1256mm2,现拟用同直径的钢筋(HPB235)代替,求代换后所需钢筋的根数、说明代换后钢筋的排列方式并验算砼构件截面强度是否满足设计强度的要求。
解:

(1)代换方式:等强代换。要求n2(n1d12fy1)/(d22fy2)=(4300)/210=5.71根,取6根,As1=1256m2,As2=3146=1884m2。
(2)代换后,钢筋之间的平均净距s=(200-620)/7=11.42mm,因此钢筋需布置成两排,上2根下4根。此时,需验算构件截面的抗弯承载力是否满足要求。
(3)aS1=35mm,aS2=60mm。相应h01=450-35=415mm,h02=450-60=390mm。
代换后As2fy2[h02-(As2fy2)/(2fcb)]=1884210[390-(1884210)/(29.6200)]=113.54kNm
代换前As1fy1[h01-(As1fy1)/(2fcb)]=1256300[415-(1256300)/(29.6200)]=119.40kNm
结论:代换前后截面强度相差在5%以内,因此代换符合要求。