详图的特点是比例大,反映的内容详尽。
常用的比例有1:50、1:20、1:10、1:5、1:2、1:1等

一、外墙身详图
外墙身详图也叫外墙大样图,是建筑剖面图的局部放大图样,表达外墙与地面、楼面、屋面的构造连接情况以及檐口、门窗顶、窗台、勒脚、防潮层、散水、明沟的尺寸、材料、做法等构造情况。
是砌墙、室内外装修、门窗安装、编制施工预算以及材料估算等的重要依据。
在多层房屋中,各层构造情况基本相同,所以,外墙身详图只画墙脚、檐口和中间部分三个节点。
为了简化作图,通常采用省略方法画,即在门窗洞口处断开。
(一)外墙身详图的内容
1.墙脚 :外墙墙脚主要是指一层窗台及以下部分,包括散水(或明沟)、防潮层、勒脚、一层地面、踢脚等部分的形状、大小材料及其构造情况。
2.中间部分:主要包括楼板层、门窗过梁、圈梁的形状、大小材料及其构造情况。还应表示出楼板与外墙的关系。
3.檐口:应表示出屋顶、檐口、女儿墙、屋顶圈梁的形状、大小、材料及其构造情况。


墙身大样图一般用1:20的比例绘制,由于比例较大,各部分的构造如结构层、面层的构造均应详细表达出来,并画出相应的图例符号。
(二)外墙身详图的识读
1.了解墙身详图的图名和比例。
2.了解墙脚构造。
3.了解中间节点
4.了解檐口部位

如右图所示,表示飘窗处墙体的详细做法。与墙身大样图(一)基本相同。而该详图主要表示客厅飘窗的做法,窗内护窗栏杆的做法。

墙身大样图的图线选择可参照下图所示--建筑详图图线宽度选用示例。

二、楼梯详图
楼梯是垂直交通工具,最常用的是钢筋混凝土楼梯。
楼梯由楼梯段、休息平台(包括平台板和梁)和栏杆(或栏板)等组成。
楼梯按形式分有:单跑楼梯、双跑楼梯、三跑楼梯、转折楼梯、弧形楼梯、螺旋楼梯等。
楼梯按传力途径分有:板式楼梯和梁板式楼梯

楼梯详图是由楼梯平面图、楼梯剖面图和楼梯节点详图三部分构成
(一)楼梯平面图
楼梯平面图就是将建筑平面图中的楼梯间比例放大后画出的图样,比例通常为1:50。

在底层平面图中,还应注出楼梯剖面图的剖切符号。

楼梯平面图的识读
(1)了解楼梯间在建筑物中的位置。
(2)了解楼梯间的开间、进深、墙体的厚度、门窗的位置。
(3)了解楼梯段、楼梯井和休息平台的平面形式、位置、踏步的宽度和数量。
(4)了解楼梯的走向以及上下行的起步位置,该楼梯走向如图中箭头所示,两面平台的起步尺寸分别为:
(5)了解楼梯段各层平台的标高
(6)在底层平面图中了解楼梯剖面图的剖切位置,及剖视方向。

(二)楼梯剖面图
楼梯剖面图是用假想的铅垂剖切平面,通过各层的一个梯段和门窗洞口,将楼梯垂直剖切,向另一侧未剖到的梯段方向作投影,所得到的剖面图。
楼梯剖面图主要表达楼梯踏步、平台的构造、栏杆的形状以及相关尺寸。

楼梯剖面图的识读
(1)了解楼梯的构造形式
(2)了解楼梯在竖向和进深方向的有关尺寸
(3)了解楼梯段、平台、栏杆、扶手等的构造和用料说明
(4)被剖切梯段的踏步级数
(5)了解图中的索引符号,从而知道楼梯细部做法

(三)楼梯节点详图
楼梯节点详图主要表达楼梯栏杆、踏步、扶手的做法

该详图主要表示踏步防滑条的做法,即防滑条的具体位置和采用的材料。

(四)楼梯详图的画法
1.楼梯平面图的画法
(1)根据楼梯间的开间和进深尺寸,画出定位轴线,画出墙体轮廓

(2)画出楼梯休息平台宽度D,梯段水平长度L、宽度B和梯井宽度C

(3)根据尺寸L、B及踏步个数n,用等分两平行线间距离的方法,画出踏面,其个数等于n-1

(4)画出洞口、烟道等细部。按图线层次描深,注写标高、尺寸、轴线编号、楼梯上下方向指示线等


2.楼梯剖面图的画法
(1)画出定位轴线及墙体轮廓。再根据标高,定出室内外地坪、各楼面及休息平台的高度位置。根据平台宽度D和梯段长度L,定出梯段的位置

(2)确定梯段的起步点,在梯段长度内画出踏步形状。其方法有两种:一种是网格法,一种是辅助线法。
网格法:在水平方向等分梯段的踏面数和竖直方向等分梯段的踏步数后,形成网格状,沿网格图线画出踏步形状。

辅助线法:把梯段的第一个踢面作出,并用细实线与最后一个踢面(即平台板边线或楼面板边线)相连,然后用踏面数等分所作的辅助线,过辅助线上的等分点向下作垂线和向右(左)作水平线,得到踢面和踏面的投影,形成踏步。

(3)画楼梯板厚度,栏杆、扶手等轮廓
(4)加深图线,画材料图例;标注标高和各部分尺寸;写图名、比例、索引符号、有关说明等,完成楼梯剖面图。


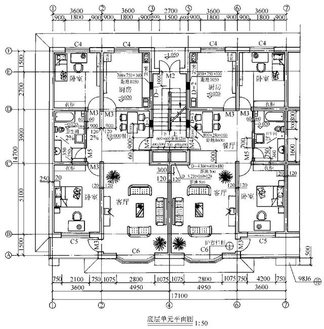
三、单元平面图
单元平面图就是对建筑平面图的局部,进行放大后的图样。
单元平面图的比例常用1:50或1:30。
单元平面图的识读
(1)了解图名、比例
(2)了解墙体的厚度
(3)了解房间的功能、位置、相互关系(一梯两户式)
(4)了解每一房间内家具、设备的位置以及预留洞的大小和位置
(5)了解各房间门窗洞的准确位置
(6)了解不同房间的标高
