一、土建成品保护主要措施
1、标识管理
对重要项目(易污染损坏项目),如防水、油漆、门窗、石材及机电设备等通过各种标识管理提醒施工人员注意成品保护。
2、测量定位
定位基坑采取周围浇筑砼固定,搭设保护架,悬挂明显标志以提示,水准引测点尽量引测到周围老建筑物上或围墙上,标识明显,不准堆放材料遮挡。
3、土方和护坡工程
(1)在人工清土过程中,在基坑底部应保持中间余土高于两端余土,以保证基坑开挖过程中基坑内不积水,尤其是土方开挖到设计标高时,应保证基底土壤不受浸泡,以免影响地基的承载力。
(2)基坑边坡施工成型后,在基坑周遍距离基坑边缘1.5米范围内不得堆放施工材料和施工机具,在施工现场内形式的车辆,不得在基坑边缘行驶,防止边坡被破坏。
(3)对定位标准桩、轴线引桩、标准水准点等,要刷上醒目的颜色,挖运土时不得碰撞。并经常测量和校核其平面位置、水平标高和边坡坡度是否符合设计要求。定位标准桩和标准水准点也应定期复测和检查是否正确。
(4)开挖基坑不得超过基底标高,开挖后应尽量减少对基土的扰动,在基底标高以上预留20cm土层不挖,待做基础垫层前再挖至设计标高。
(5)钎探完成后,应作好标记,保护好钎孔,未经质量检查人员和有关工长复验,不得堵塞或灌砂。
4、临水、临电、临建工程
(1)作为临水、临电等使用,运进施工现场的成品,例如:电箱、消火栓等应码放在平整、无积水 、宽敞的场地,不与其它材料设备等混放在一起,并有防雨雪设施。
(2)临水地下水管安装完毕,未进行回填土之前严禁进行踩踏。
(3)临电电箱进入施工现场安装完毕后,必须在电箱上设防护棚,避免电箱和消火栓被碰撞坏,同时应注意消火栓和电箱上的油漆不被损坏。
(4)临建房屋在达到成品阶段,由项目部的区域施工管理人员对工人进行现场交底,将临建工程的各个分项按照正式工程的成品保护标准进行保护,尤其应当注意临建部分不受破坏和污染。
5、钢筋工程
(1)墙筋:已绑扎好的墙筋禁止施工人员从墙筋中穿过,安装电管人员在安装时禁止搬、撬、踩墙筋,操作时临时采用马凳。
(2)板筋:施工时先绑扎下层钢筋,再铺设水电电管(一次到位),然后再绑扎负弯屈筋或上层钢筋,绑扎板筋时从一头开始向后退着绑扎,不许踩踏,为减少钢筋被踩踏,施工现场钢筋帮扎时采用跳板保护 。
(3)当楼板或底板钢筋绑扎完毕后,严禁在成型的钢筋上随意走动或集中堆放施工荷载。
(4)钢筋绑扎成型后,必须及时组织下道工序施工,防止长时间漏置在空气中或遇雨雪对钢筋造成腐蚀。
(5)绑扎完的梁、板钢筋,要设钢筋蹬,上铺脚手板作人行通道,要防止板的负弯矩筋被踩下移以及受力构件配筋位置变化而改变受力构件结构。
(6)绑扎完的墙、柱钢筋,人员上下要经过脚手架,禁止攀爬钢筋。
(7)浇筑砼时,地泵管应用钢筋蹬架起并放置在跳板上,不允许直接铺放在绑好的钢筋上,以免泵管振动将结构钢筋振动移位。
(8)浇筑砼时,应设专人看钢筋,以防钢筋跑位。
(9)钢筋绑扎完成后,严禁施工机械的油污等污染钢筋,如果钢筋被油污污染可采用适当浓度的洗涤液进行清洗,并用清水冲洗干净。
(10)钢筋绑扎成形后,认真执行三检制度,对钢筋的规格、数量、锚固长度、预留洞口的加固筋、构造加强筋等都要逐一检查核对,骨架的轴线、位置、垂直度都必须实测检查,经质量员检验合格后报请监理公司验收,做好隐蔽验收记录,质量达到优良水平。
6、模板工程
(1)墙模:墙体是定型大钢模,吊装就位时尽量要一次就位成功,不要用钢管及榔头敲、砸模板,以防模板变形。
(2)楼板模板:支设完毕后,各工种操作人员要密切配合,不得随意损坏模板。机电安装人员(水、电)禁止在其上面配管,钢筋工堆放钢筋要分散堆放,不要使劲拽、拖、拉钢筋。
(3)楼板模板支设完成后,严禁在模板上堆放集中施工荷载。
(4)支设楼板的多层板和木方在支设完毕后浇水润湿的过程中严格控制浇水的数量,防止模板受潮过大而变形。
(5)加工后的多层板、加工成型的门窗洞口模板,在拆模后必须集中堆放在干燥的区域内,防止模板变形。同时为了避免木材的含水率过大,在模板成型后,在模板的表面刷清漆,形成对木材的封闭,从而保证模板的几何形状和尺寸。
7、混凝土工程
(1)楼梯:已浇筑好的砼楼梯采用角钢或旧模板条保护踏步的护角。
(2)墙面:禁止乱剔、乱凿、乱画,门洞口在1.5m范围内用旧模板保护,方法:将220mm宽的旧模板用钢筋卡卡住。阳台栏板上口及窗台下口均采用旧模板钢筋卡卡住,一方边角被破坏。
(3)楼板:避免在楼板上凿洞,做好各类洞口的封闭工作,随时清理楼面上的垃圾,保持楼面的清洁。
(4)混凝土成型后严禁随意进行剔凿。
(5)加强成品保护意识,保证钢筋不受油污、锈浊,防止降低混凝土与钢筋之间的握裹力。
(6)交叉施工时,各工种对上道工序的成品、设备必须进行检查和办理书面接交手续。
(7)混凝土浇筑后未达到1.2MPa严禁上人采踏或进行下道工序施工。
(8)混凝土浇筑后,在没有达到设计强度之前严禁在楼板等处集中堆放模板、架料等集中荷载。
(9)混凝土浇筑后,严格控制拆模时间,严禁过早拆除模板,尤其是梁、板模板。
(10)凝土浇筑后严格按照施工规范和技术要求进行养护和保温。
8、地下防水工程
(1)底板防水施工时,严禁穿硬底带钉的鞋在上面行走,底板防水施工完毕后,办理交接手续,及时做防水保护层。
(2)保护墙两侧设计无保护层时,在绑扎钢筋时,为保护防水层,在保护墙内侧放置多层板,当钢筋绑扎完毕后把多层板移至他处周转使用,周边防水保护墙都需要保护。
(3)对防水砼工程砼浇筑完毕后,拆模时要注意不得碰坏施工企口缝,撞动金属止水带和扯破橡塑变形缝止水带,并且对该部分成品采取有针对性的保护措施,办理交接手续,责任工程师要将实际情况记录在施工日记中,做为一个重点检查项目。
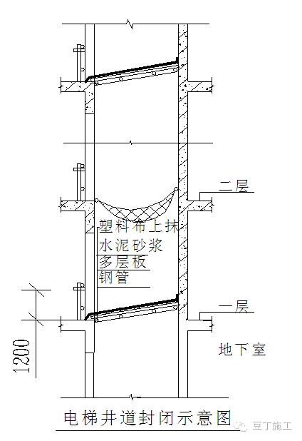
(3)电梯井道分别在首层、装修层上一层等位置进行封闭,能够使得雨水、施工用水和施工杂物有组织的清理运出。
电梯厅井道楼层临时封闭示意图:

(4)楼梯间、电梯井、楼层洞口均采取类似上述临时封闭的方法进行封闭。
9、回填土工程
(1)回填土施工完毕的每一层都必须防止被雨临或者被水浸泡。
(2)当回填土施工的过程中如遇到雨天,应将已经回填的部分进行覆盖。
10、砌筑工程
在砌筑围护工程中,水电专业及时配合预埋管线,以避免后期剔凿对结构质量造成隐患,墙面要随砌随清理,防止砂浆污染,雨季施工时要用塑料布及时覆盖已施工完的墙体。在构造柱、圈、梁、模板支设时,严禁在砌体上硬撑、硬拉。
11、地面与楼地面工程
(1) 地砖楼地面
a 水电的综合布线管槽、各类管道,都应全部完成,并经过监理检查认可后,与土建专业进行交接。
b 土建将安装完毕的木门框,用9层胶合板将1.2米以下框周围包钉好,防止碰撞,在地面施工时,要安排木工随时检查门框的位置、垂直度有无变动和错误,若有变动和错误,在施工过程中及时校正和修改。
c 运输砂浆或细石砼过程中,凡经过各类门口处时,推车要缓慢,防止撞坏门框。
d 水电进入二次安装时,对使用的人字梯、高橙的下脚要用麻布或胶皮包好,以防止滑到和碰坏已施工完成的地砖、花岗岩地面。

(2)整体楼地面
整体楼地面工程施工时,要加强对水电的种类管线、木门框的成品保护。整体楼地面面层压光后,要加强养护和封闭保护,养护期间严禁上人施工,等强度达到后严禁在其上面拌制砂浆。为防止墙面涂料、油漆对地面的污染,在其上层覆盖一层木屑进行成品保护。
12、门窗工程
(1) 木门框完成后,在1.2米以下用胶合板将框周围包钉好,防止碰撞,木门窗油漆应将五金件用纸胶带或塑料布包裹地,门窗套与墙面交接处贴纸胶带,以防止油漆对五金件及墙面的污染,油漆涂刷后漆膜未干前要安排人看护,防止触摸。
(2) 铝合金门窗在安装前必须粘贴塑料保护胶带,以防止水泥砂浆的腐蚀和污染,在进行铝合金门窗与墙体的接缝处打密封胶时要及时清理多作的胶液。
(3) 在风天施工时要及时将门窗关闭好,以防止门窗玻璃打碎和门窗框松动力、变形。
(4) 门窗玻璃要做好标识保护。

13、装修楼梯踏步
(1)楼梯踏步装修施工时进行封闭隔离,严禁人员从施工部位的楼梯上下,施工部位的各楼道口处用模板封闭处理。
(2)施工完成后必须待强度达到标准后方可人员上下,人员上下必须轻走轻踏,严禁对装修面层产生不利。
14、石材门套按下图保护方法进行保护

15、瓷砖墙面
(1)镶贴好的磁砖墙面,要及时清擦干净残留在门窗框、扇上的砂浆。特别是铝合金门窗框、扇,事先应粘贴好保护膜,预防污染。
(2)其它工种(水电、通风、设备、安装等)的各种工作应做在陶瓷锦砖镶贴之前,防止损坏面砖。
(3)拆除架子时注意不能碰撞墙面。
16、玻璃幕墙工程
(1)幕墙工程由专业分包商完成,属于易损、易污染材料,而且一旦破坏,损失很大,因此除必须采取切实有效的成品保护措施(诸如贴保护膜、设临时围挡等),还必须制定现场巡视检查、工作面书面交接以及严格的奖惩制度等。
(2)填封密封胶条或玻璃胶的开启扇,应待24h后方可开启。
(3)避免用强酸性洗涤剂清洗玻璃。热反射玻璃的反射膜面若溅上碱性砂浆,要立即用水冲洗干净,以免使反射膜变质。
(4)不能用酸性洗剂或含研磨粉的去污粉清洗反射玻璃的反射膜面,以免在反射膜上留伤痕或使反射膜脱落。
(5)防止焊接、切割及喷砂等作业产生的火花和飞溅的颗粒物质损伤门窗扇玻璃。如焊接火花飞溅到钢化玻璃上,会使其表面产生细微的伤痕,在受到风压或振动力的作用,伤痕就逐渐扩大,一旦进入玻璃厚度中心部分的拉应力层后,会引起玻璃突然全面地破碎。
17、墙、顶棚涂料
(1)墙面、顶棚涂料施工时要与水电、灯具、面板的安装穿插进行,其一般顺序为:
顶棚涂料涂刷完成后,进行灯具、烟感、喷撒头等的安装,墙面在涂刷最后一遍涂料前,灯具、面板、空调等进行安装。灯具、面板安装时要戴清洁的白手套,以保持墙面、顶棚的清洁,并用塑料薄膜和胶带包裹好,由水电向土建进行交接,再进行最后一遍涂料施工。
(2)墙面、顶棚涂料施工前应将地面清理干净,并用塑料布或报纸将地面覆盖,并对门窗进行包裹和保护,以便墙面涂料施工,防止对地面、门窗的污染。
(3)在涂刷分界线时,采用纸胶带粘贴的方法,避免污染其它界面。
(4)对滴在门窗框、窗台、地面的油漆、涂料要及时擦干净。
18、屋面工程
(1)屋面找平层应按设计的流水方向,向雨水口和天沟进行找坡找平。喷固化施工前要清扫干净,防止杂物将雨水口、雨水管堵塞;防水施工完成后,要及时将防水保护层做好。在施工中运送材料的手推车支腿应用庶布或胶皮包扎好,防止将防水层刮破,并安排防水人员随时检查,一但发现有刮破的,要及时进行修补。
(2)在施工防水时,要注意防止对外墙和其屋面的设备的污染。
二、机电工程成品保护措施
1、成品保护的主要项目
结合本工程实际情况,参照一般高档写字楼的机电安装工程,机电重要设备(如发电机组、高低压开关柜、变压器、空调机、冷水机组、风机盘管、风机、热交换器、水泵、水箱、变频设备等)、所有面层装置(如阀门、开关、插座、风口、喷洒头、消火栓箱等)、高档仪器仪表(如调控仪表装置等)、主要材料(如钢塑复合管、阀部件、灯具)等要重点采取措施防盗、防破坏、防污染。
2、成品保护措施通则
制定成品保护的检查制度、交叉施工管理制度、交接制度、考核制度、奖罚制。
(1)项目部总工对施工管理人员进行方案交底,各施工管理人员对各分包的技术交底及各分包单位对班组及成员的操作交底的同时,必须对成品保护作交底。
(2)上道工序与下道工序(主要指机电与土建,与其它专业分包商的工序交接)要办理交接手续,项目部各责任工程师要把交接情况记录在施工日记中。所有入户作业的人员必须接受成品保护人员的监督。
(3)各专业施工需要其它专业配合时,由总承包单位进行协调,严禁随意拆改其它专业成品。
(4)设备定货应给定准确到货时间,缩短设备进场库存时间。适当集中安装,减少安装延续时间。最好在现场具备安装条件时进货,组织一次性进货到位,取消库存和二次搬运等中间环节。
(5)材料、设备搬运过程中,对于易损材料,设备,轻拿轻放,搬运到操作面后再拆除外包装,严禁为便于搬运提前拆除外包装。
(6)搬运材料、机具及施焊时,要有具体防护措施,不得将已做好的墙面和地面弄脏、砸坏。
(7)在现场搭设库房,以便材料的存放,防止风、雨的侵蚀。对于不宜受潮、容易锈蚀的材料,在库房内搭设货架存放。如经除锈、刷油防腐处理后的管件、管材、型钢、托吊支架等金属制品,应放在有防雨、雷措施及运输畅通的专用场地,其周围不应堆放杂物。存放时码放整齐,注意码放高度及稳固。
(8)对使用的人字梯、高凳的下脚要用麻布或胶皮包好,以防止滑到和碰坏已施工完成的地砖等地面。
(9)大型设备吊装时,要合理选择吊点,绳索在设备、配件上的绑扎处加软垫,并且要按顺序安装,避免返工。
(10)对于必须安装而且易损坏,丢失的材料,设备及机房内的设备要在形成封闭条件后再安装,并设专人负责管理,变配电、控制室不宜用来充当现场临建。安装完毕后,如有其他承包商进入施工,要办理登记并要有保护措施后方可施工,施工完毕后要进行及时检查,如发现有损坏,立即向项目经理报告,由项目经理与责任方协调解决。
(11)设备机房内发电机组、高低压开关柜、水泵、风机盘管及空调设备等均用塑料薄膜及外固包装箱板防护,以防灰尘等外因影响,留出两端接口处,供管道连接。
(12)重要的控制箱、盘,通电后设立明显的禁止触摸标志,防止无关人员随意触动,引起误操作,造成设备损坏。
(13)装修、安装阶段特别是收尾、竣工阶段的成品保护工作尤为重要,必须按照成品保护方案要求进行作业。
(14)机电灯具、面板的安装应与墙面、天花的施工穿插进行,其顺序为:
天花龙骨吊装施工开始但未完成前,进行灯具、空调风口、烟感、喷洒头等的安装,墙面在涂刷最后一遍涂料前,灯具、开关插座的面板等进行安装。灯具、面板安装时要戴清洁的白手套,以保持墙面、天花板的清洁,并用塑料薄膜和胶带包裹好,机电面层安装完成后,向土建进行交接,再进行最后的收尾施工。
(15)机电的各类管道全部施工完成后,须经过总包方和监理检查认可后,与总包商及其它专业承包商进行交接。
3、水、暖、卫成品保护
(1)UPVC管:
a、道安装完成后,应将所有管口封闭严密,防止杂物进入,造成管道堵塞。
b、安装完的管道应加强保护,尤其立管距地面2m以下时,应用木板捆绑保护。
c、严禁利用塑料管道作为脚手架的支点或安全带的拉点,吊顶的吊点,不允许明火烘烤管道,以防管道变形。
d、粉刷前应将管道用纸包裹,以免污染管道。
(2)机制铸铁管:
a、预留管口的临时封堵不得随意打开,以防掉进杂物,造成管道堵塞。
在回填房心土时,对于已铺设好的管道上部要先用细土覆盖200mm以上,并逐层夯实,不许在管道上部用蛤蟆夯等机械夯土。
b、预制好的管道要码放整齐,垫平,垫牢,不许用脚踩或物压,也不得双层平放。
c、不许在安装好的支托、吊管道上搭设架子或拴吊物品,竖井内管道在每层楼板处做型钢支架固定。
(3)暖气片:
a、散热器试压安装过程中要立向抬运,码放整齐,应注意不要将门口、墙角、地面碰坏。应保护好柱型炉片的炉腿,避免碰断。翼型炉片防止翼片损坏。
b、剔凿散热器托钩时,应注意不要将墙打穿。在轻质墙上栽托钩及固定卡时,应用手电钻打洞,防止将板墙剔裂。
c、钢制串片散热器在安装过程中,防止将叶片碰倒,安装后不得随意蹬踩,应将卷曲的叶片整修平整,并防止杂物掉入叶片中间。
(4)消火栓箱:
a、消火栓门安装,先将门扇拆下、编号;待交工时按编号安上,以免损坏。
b、报警配件,消火栓箱内附件,安装完后应向看护人作书面交接,防止丢失和损坏。
(5)给水、采暖管:
a、安装好的管道不得用做吊拉负荷及作支撑,也不得蹬踩。
b、搬运材料、机具,应注意门口角棱,并轻放,不得将已做好的墙面和地面弄脏、砸坏。施焊前,应将已做好的墙面和地面加以保护后,方可施焊。
c、管道安装好后,应将阀门的手轮,水表卸下,保管好。竣工时,统一安装。
d、通水试验前,应检查地漏是否畅通,分户阀门是否关好,然后按层段分户,分房间逐一进行通水试验,以免漏水,使装修工程受损。
(6)卫生洁具
卫生间的卫生洁具安装时要与土建装修施工相交叉,因此,卫生洁具应在墙地面镶贴工程、吊顶工作、户门完成后进行安装。卫生洁具安装完成后,用塑料布和硬纸壳覆盖并用胶带封好,以防止施工人员的大小便及建筑垃圾的浸入,防止其它工序施工时的污染和损坏,成品完成后移交给土建成品保护专职人员看护。移交后,再进入施工。
4、电气成品保护
(1)配合阶段:
a、在主体配合过程中,由于交叉作业比较频繁,流动性大,故管路敷设完毕合,在浇筑砼时,应派专人看护,以免振捣时损坏配管及盒、箱移位,遇有管路损坏时要及时修复。
b、朝上的管口容易掉进杂物,因此在结构配管过程中,每完成一道工序应及时将管口用堵头封死。
c、顶模拆除完毕,应及时扫管,清理箱、盒,做防腐处理;同时用胶带将箱盒四周的墙面加以保护,确保防腐周边墙面清洁,无污梁。
(2)管内穿线:
a、穿线时不得污染设备和建筑物品,应保持周围环境。
b、在缆线、压接、焊包全部完成后,应将导线的接头盘入箱盒内,并封堵严密,以防导线污染,同时防止盒箱管内进入杂物。
c、穿线时不得遗漏,带护线套管及用护口保护。
d、配管、配线器具完成后,不得再在盒、箱内动用油漆,防止导线和电气器具的污染。
e、设备、器具进入现场后,码放整齐、稳固、并要注意防潮,搬运时应轻搬、轻放,以免碰坏表面的镀锌层、油漆及玻璃罩和开关箱盘的板面,同时防止器具设备被污染或丢失,应设专人看管。
f、紧固螺丝时,不应用过猛,以免瓷件及PVC外壳碎裂。
g、安装完毕,不得再次进行上腻子、喷涂以保持面板灯具的清洁。
进入装修阶段后,作为总承包商,将组织专门的成品保护管理队伍,分区域进行成品保护的管理工作,加强日常巡视工作,采取措施增强管理力度,保证本工程成品保护工作的顺利实施。