1.《地下工程防水技术规范》GB50108-2008
2.《屋面工程质量验收规范》GB50207-2012
3.《聚合物水泥防水涂料》JC/T894-2001
4.《聚氨酯防水材料》GB/T19250-2013
5.《弹性体改性沥青防水卷材》(聚酯胎)GB18242-2008
6.《改性沥青聚乙烯胎防水卷材》GB18967-2009
7.《聚氯乙烯防水卷材》GB12952-2011
8.《水泥基渗透结晶型防水材料》GB18445-2012
9.《建筑工程施工质量验收统一标准》GB50300-2013
注:如需上述9本规范电子版资料包,在豆丁施工公众号输入防水规范四个字获取下载地址。
一、外墙防渗漏
外墙防渗漏要点:
外墙防渗漏,主要有三道防线,一是外墙涂料和腻子,二是抹灰砂浆,三是结构墙体或砌体墙体。有时要加强防水会增加一层防水层,通常是涂刷一层水泥基防水涂料。
混凝土墙体的渗漏点常常是因为拉杆洞封堵不密实和预留孔洞的封堵不佳引起的。堵洞要采用专门的封堵材料,同时要凿喇叭和清孔,封堵要双面封堵而不是只进行单面封堵。
混凝土本身的一些质量缺陷也会引起渗漏。因此在抹灰前要对混凝土墙体本身的一些缺陷如开裂、露筋、蜂窝、麻面等要先按规范进行修补。
砌体墙面会因为砌块破裂、灰浆不饱满,墙体开裂,顶砖缝隙,砌体墙与混凝土墙体之间的粘接不实等原因而引起渗漏。为防止砌体墙出现开裂现象,需搞图纸和规范设置拉结筋、构造柱、圈梁、过梁、卧梁等构造,按规范严格保证砌体的技术间歇不急着砌高和顶砌。
抹灰前要满挂网,减少抹灰裂缝。分层抹灰,抹灰搓压和表面收光,增加抹灰的密实度。使抹灰层成为一层防渗漏的壳。为了提高抹灰层的防渗效果,在砂浆中适量加入防水剂和杜拉纤维。外墙涂料与腻子,选用弹性好憎水性强的产品,保证不漏刮不漏刷,并满足最低涂抹厚度标准要求。
外墙防渗漏做法:
1.外墙螺栓孔洞防漏
外墙(剪力墙)采用三段式止水螺杆,工艺流程:砼墙面扩孔割除螺杆浇水湿润水泥砂浆堵塞外侧JS防水施工饰面施工


2.外墙孔洞防渗漏
(1)混凝土外墙(有保温)。如外墙脚手架拉杆、悬挑架型钢穿墙等孔洞的封堵。
工艺流程:穿墙钢管或悬挑架型钢取出基层凿毛湿润两侧支模浇注混凝土两侧拆模凿除凸出砼外侧刷JS 防水外墙保温及装饰面层施工。


(2)砌体结构外墙(有保温)
工艺流程:基层清理屋面保温层找坡层管口防水附加层屋面防水层抹灰打密封胶刚性保护层。

3.穿外墙管道防渗漏
工艺流程:定位固定浇筑混凝土U-PVC管接长外饰面(保温)施工。
混凝土外墙穿管道节点做法

砌体外墙穿管道节点做法

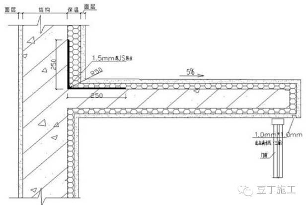
4.外墙空调洞口防渗漏
工艺流程:定位固定浇筑混凝土U-PVC管接长外饰面(保温)施工。

5.外墙线条防渗漏
工艺流程:钢筋混凝土结构板保温层水泥砂浆找坡饰面层。
凸出外墙飘窗、雨罩、线条、阳台防渗漏

6.外墙变形缝防渗漏
工艺流程:缝口处理填入填充料抹底层灰粘贴防水卷材外保温施工安装定型成品挡水板打密封胶外饰面层施工。

二、楼地面防渗漏
楼地面防渗漏要点:
1.厨房、卫生间、阳台等分隔墙或外墙如是砌体墙,墙底做200高的混凝土坎。
2.下沉式卫生间设侧排地漏,便于排回填陶粒内的集水。
楼地面侧排水管的补洞措施:凿除洞口四壁松动石子、浮浆,清除垃圾和灰尘,由里向外做成楔形,在外侧用模板支承,充分洒水湿润。管子外壁和预留洞壁刷一遍掺108胶的水泥浆,然后分两次用1:2干硬性水泥砂浆(掺3.8%防水粉)塞满、压实,表面抽平、打毛。补洞后挂牌明示:24小时内不得碰动。
3.结构找坡:按地漏高度确定找坡坡度及方向,并在阴阳角处抹成100mm半径圆弧。
4.防水涂膜墙地面一次性完成,在涂刷之前要对基层进行清理与修补。
5.渗漏试验:在侧排水管、地漏固定补洞、找平层完成后,养护3-4天,进行满灌水试验24小时(第一次)。不渗漏后再进行下道工序。911防水层施工完成后养护1-2天,然后做24小时盛水试验(第二次),经监理及甲方认可后,方可进行下道工序施工。
楼地面防渗漏做法:
1.厨房地面防渗漏做法(厨房无地漏时可不做防水)
工艺流程:基层清理找平找坡层防水层闭水试验防水保护层饰面层闭水试验。

2.卫生间地面防渗漏做法
(1)降板式卫生间
工艺流程:基层处理找平找坡层防水层闭水试验防水保护层饰面层闭水试验。

(2)沉箱式卫生间
工艺流程:基层处理侧排口、管周等部位封堵找平找坡层防水附加层防水层闭水试验防水保护层沉箱内管道安装侧排口裹无纺布保护室内立管周浇细石混凝土陶粒混凝土层找平找坡层防水层闭水试验防水保护层饰面层闭水试验。


3.阳台地面防渗漏做法
工艺流程:基层清理找平找坡层防水层闭水试验防水保护层饰面层闭水试验。

4.管道穿楼板防渗漏做法
工艺流程:安装管道支模浇注混凝土闭水试验打密封膏找平找坡层防水附加层防水层闭水试验防水保护层饰面层闭水试验。


5.地漏节点防渗漏做法
厨卫阳台地面向地漏处找坡不小于2%,地漏周围250mm范围内找坡不小于5%,且地漏口比楼地面完成面低10mm。
工艺流程:安装地漏支模浇注混凝土闭水试验打密封膏找平找坡层防水附加层防水层闭水试验防水保护层饰面层闭水试验。

6.烟风道穿楼板防渗漏做法
工艺流程:检查洞口基层处理安装烟风道堵塞孔洞闭水试验打密封膏找平找坡防水附加层防水层闭水试验防水保护层饰面层闭水试验。


7.管道井防渗漏做法
工艺流程:安装管道封堵孔洞闭水试验打密封膏浇筑反坎施工管井墙找平找坡层防水附加层防水层闭水试验防水保护层饰面层闭水试验。


三、屋面防渗漏
屋面防渗漏要点:
1.屋面混凝土采用抗渗混凝土(添加有防水或抗渗剂的混凝土),出屋面板的管线加带翼板的刚性套管并高出屋面250mm以上,支模与绑扎钢筋、垫混凝土保护层垫块、垫马凳保证不得有穿透屋面结构板的铁丝、钢筋、木条等,浇筑混凝土不得留施工缝或产生施工冷缝,不漏振且振捣密实,并人工对全板进行压实、收面等。
屋面砼必须一次浇筑完成,女儿墙和高出屋面的水箱间、机房、楼梯间等与屋面砼接触处的砼必须高出屋面板100~200mm,并与屋面板同时浇灌,阻止水从该处渗漏。找平层抹灰时在阴阳角转角处用圆角抹子抹100mm半径圆弧,然后二次收光。
屋面砼浇筑完成后即时浇护并养护14天以上。
2.找平层抹灰时在阴阳角转角处用圆角抹子抹100mm半径圆弧,然后二次收光。找平层完成后养护5天,然后进行灌水试验24小时,无渗漏点出现方可进行防水层施工。
3.屋面落水口应比防水层低20mm,且要做成喇叭口,对立管洞口要洒水湿润洞壁和管面,在粘结面刷一道108胶水泥浆,先灌10-15mm厚1:2水泥砂浆,再灌砼,用铁棒捣实,刮平表面,第二天刷嵌一层911防水涂膜,再补10-15mm厚1:2水泥砂浆,凹10mm左右。待修补终凝后进行蓄水试验。
4.防水涂膜施工前,应对屋面阴阳角、天沟、檐口、水落口、变形缝、分割缝、出屋面设施底部、上人口等节点处进行附加增强处理(增加一层2.0厚911防水涂膜)。
屋面防渗漏做法:
1.平屋面防渗漏做法
工艺流程:钢筋混凝土结构层找坡层防水层闭水试验保温层隔离层刚性保护层
上人屋面/露台防渗漏做法

不上人屋面/露台防渗漏做法

2.出屋面烟风道防渗漏做法
出屋面烟风道壁的混凝土必须与屋面结构板同时浇筑,烟道壁墙体采用砼浇筑,出屋面烟风道混凝土反坎的浇筑高度H600㎜。
工艺流程:基层清理阴角加强层涂刷基层处理剂防水层建筑密封油膏抹灰保屋面保温和饰面打密封胶。

3.女儿墙防渗漏做法
工艺流程:基层清理阴角加强层涂刷基层处理剂防水层建筑密封油膏抹灰保屋面保温和饰面打密封胶。

4.屋面变形缝防渗漏做法
工艺流程:基层清理阴角加强层涂刷基层处理剂防水层建筑密封油膏抹灰保屋面保温和饰面打密封胶。

5.屋面地漏防渗漏做法
工艺流程:基层清理阴角加强层涂刷基层处理剂防水层建筑密封油膏抹灰保屋面保温和饰面打密封胶。


6.出屋面管道防渗漏做法
工艺流程:基层清理管周附加防水层屋面防水层保温层和刚性保护层沥青麻丝塞缝抹灰保护层打密封油膏。

7.出屋面反坎防渗漏做法
工艺流程:基层清理防水附加层找坡层屋面防水层屋面保温层和刚性保护层抹灰打密封胶。

四、铝合金窗防渗漏措施
1.在窗楣上口做成品滴水线,成品滴水线应嵌贴密实、顺直,在窗台上做向外大于10%排水坡度,高差大于20mm。
2.窗洞口尺寸预留要准确(一般每边预留25mm塞缝),当预留尺寸大于45mm时必须用细石砼灌密实。窗框固定后,用1:2干硬性水泥砂浆(掺3.8%防水粉)将铝合金窗框与洞口墙体间的缝隙填塞密实。
3.淋水试验:塞缝完成后,养护2-3天,在窗框周边做24小时淋水试验
4.淋水试验后在塞缝砂浆外表面刷一道黑豹Ⅱ型防水涂料再用防水砂浆收边,最后在外侧窗框与外墙交接处用8钢筋条勾缝,门窗框与洞口装饰面之间缝隙采用耐候中性密封胶密封,其宽度及深度不得小于6mm。
5.铝合金外门窗型材上的每个孔洞,必须先注胶,再安装螺丝,型材每个接缝处必须先打胶,打胶要饱满不透光。
五、地下室防渗漏措施
地下室渗漏部位主要在砼本身裂缝、施工缝、止水带、后浇带、预埋件和管道穿墙或底板处。
1.大体积砼:地下室承台底板大都是大体积砼,防渗漏的关键是控制温度收缩裂缝,通过掺加高效混凝土泵送剂及活性混合材料、采用抗渗混凝土,最大限度地降低水泥用量和水用量,通过延缓混凝土的凝结时间,推迟混凝土水化热峰值,使砼在开始降温时,其抗拉强度得到足够的增长,具体措施见《混凝土结构裂缝控制的技术措施》。
2.施工缝处理
(1)施工缝留置的位置必须正确,严禁在砼底板上和在墙上垂直留施工缝,底板与墙体间需要留设水平施工缝时,应将施工缝留设于墙上,高出底板上表面约500mm处。
(2)施工缝不得留平口缝,一定要采用企口施工缝,施工缝处可设置二道抗渗防线,即为采用刚性和柔性相结合的方式处理,以提高施工缝处的抗渗性能。
(3)应加强对施工缝和后浇带的处理,要认真清除施工缝处的浮粒和杂物并应将原砼表面凿毛,用清水将施工缝冲洗洁净然后浇筑新砼。
(4)在浇筑新砼之前,应先铺一层水泥浆或同强度等级的水泥砂浆,再浇筑砼,并应加强振捣,确保砼的密实。
3.变形缝止水带处理:变形缝漏水比较普遍,由于缝中橡胶止水胶带不易固定牢靠,浇筑混凝土时经常跑位,有的跑位严重,特别是顶板和底板止水带常落到下层钢筋上。水平止水带下方混凝土不易密实,常形成沟洞、蜂窝、麻面等。因此,施工中应焊钢筋骨架将止水带固定在准确位置上,待水平止水带下方混凝土浇捣密实后,再固定止水带。严禁在止水带上穿孔。
4.预埋件的表面应进行认真除锈处理,预埋件的安装必须牢固,对预埋件周围的砼应加强振捣,确保预埋件周边的砼密实性。
5.管道穿墙处理
(1)管道和电缆穿墙(或底板)的部位,必须认真做好防水处理,管道穿墙处必须设置止水片,也可在管道四周焊锚固筋,以便使管道与结构形成整体。
(2)热力管道穿越外墙部位应采用橡胶止水套处理。
(3)电缆穿墙部位的电缆与套管之间应用石棉水泥(麻刀灰)填嵌密实,再用素灰嵌实封闭。
6.墙根与底板交界处:墙根与地面交界处及周边部分有潮湿、滴水现象,二者交界处有漏水点。分析其渗漏原因,是由于振捣下一步底板混凝土时,前一步已振捣完的底板和墙根20~30厘米高混凝土受牵连振动,使砼振捣不密实,另外,墙根混凝土在模板支护下没有下沉,而底板混凝土受振动下沉,则在墙根处拉裂。同时,该部位应力过于集中,养护不及时也易造成干裂引起渗漏。
因此,在振捣下部底板混凝土时,不要将振捣棒插到上部混凝土内及两步混凝土交界处,要离开一定距离,且应大于振捣棒振幅距离,避免已振捣完的底板和墙根混凝土再次受振捣;浇筑高墙根混凝土时应在底板砼初凝后浇筑,同时注意振捣棒不要插入已初凝的底板混凝土内。
7.穿墙支模螺栓处理:外墙穿墙螺栓止水板焊接应严密;拆模后穿墙螺栓在外墙面切割时不留头,外部抹砂浆时应将钢筋头盖严,以防穿墙螺栓在地下水作用下形成化学腐蚀,并不断向内墙方向腐蚀造成漏水。
8.外墙防水层施工:外墙做涂料防水层前,必须先抹水泥砂浆找平层,并且赶平压光。因为拆模之后混凝土表面存在较多水眼,若直接做涂料防水层,涂料表面同样会形成许多孔眼,这是造成地下室漏水的根源。另外若虽抹找平层,但不赶平压光,做涂料防水层后会造成涂膜厚薄不均,表面有孔眼。回填砂石时,因基础很深必须用串筒,不能直接用车往槽坑翻倒,以免砂石砸坏保护层及防水层。
六、防开裂空鼓技术做法
1.砌体裂缝解决主要方法
与混凝土墙拉结筋拉结可靠;上下各两层外墙设置抗裂柱或腰梁;吸水率高的砌体材料采用干法施工工艺;严格砌体流程,每施工之间有间歇时间,让砌体逐步完成收缩。
2.不同材料交接处裂缝解决主要方法
抹灰层内采用增加钢丝网,其他材料采用粘贴绷带加强或打胶封闭。
3.楼板屋面结构裂缝
屋面及外挑结构要进行抗裂验算复核;加强楼板混凝土浇注旁站监督,防治钢筋严重移位。
4.外墙涂料面龟裂
严禁在砂浆抹灰面直接采用平涂工艺,应采用质感涂料
5.抹灰层开裂
大的裂缝主要处理好与混凝土结合部位,小裂缝通过涂料解决
6.抹灰层空鼓
抹灰基层处理是关键,合适的配合比;一线公司正在研究改进抹灰层空鼓开裂试验:如深圳区域的机械抹灰、上海区域的石膏砂浆应用等,结果有待观察,目前抹灰杜绝空鼓还有难度。集团内棚顶全部采用不抹灰工艺,抹灰空鼓坠落事件极少;根本的解决方案还是采用大钢模及PC预制内墙板施工工艺,不抹灰,就不会有空鼓。
7.瓷砖空鼓
采用专用粘结材料,做到空鼓也不会坠落;改进工人操作工艺,减少空鼓,如深圳区域推广薄贴法工艺;限制吸水率低的玻化砖上墙,已经取消新C标装修的玻化砖上墙;研究干挂工艺。