本文分为二部分:
第一部分,墙常规拆分方法;
第二部分,分析问题与解决问题的拆分方法。
第一,墙常规拆分方法
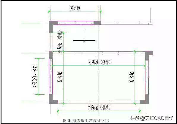
(1)对于装配式剪力墙结构,L、T 形等外部或内部剪力墙中墙身长度1000mm 时,墙身(非阴影部分)一般预制,但其边缘构件处现浇(图1~图5 中阴影部位)。外隔墙(带梁)一般为预制,如图3 所示。

1. 边缘构件现浇,基于以下因素设计:第一是受力的角度,边缘构件为重要受力部位,应该现浇;第二,边缘构件两端一般为梁的支座,梁钢筋在此部位锚固,应该做成现浇。
2. 预制外墙比较短且全部都开窗或者门洞时,预制外墙可以与相邻剪力墙的边缘构件(暗柱)一起预制,将现浇部位向内移。
3 .如果预制长度太短,在满足起吊总重量的前提下,该范围的剪力墙可以与边缘构件及外隔墙带梁一起预制,减少装配构件的个数。
(2)L、T 形等形状的外部或内部剪力墙中暗柱长度范围内平面外没有与之垂直相交的梁时,如果满足起吊重量,此暗柱与相邻的外隔墙(带梁)、墙身进行预制,如图4 所示。

(3)外隔墙或内隔墙垂直方向一侧有剪力墙与之垂直相交时,如果满足起吊重量,可将隔墙连成一块,方便吊装与施工,与剪力墙的连接如图5 所示。

(4)现场装配的外部剪力墙设计时,图6 中暗柱区域现浇,此时尚存200mm 长度的施工空间,现场施工困难,可采用图7 中的设计方法。

(5)电梯井、楼梯处的剪力墙宜现浇。
(6) 剪力墙与带梁隔墙的连接,主要是满足梁的锚固长度,在平面内一般不会出现问题,因为往往暗柱留有400mm 现浇(200 厚墙)或者与暗柱一起预制;一字型剪力墙平面外一侧伸出的墙垛一般可取100mm,门垛200m,整体预制时可为0。无论在剪力墙平面内还是平面外,门垛或者窗垛200mm 或者为0(留刀把)。当梁钢筋锚固采用锚板的形式时,梁纵筋应14mm(200 厚剪力墙,平面外)。需要注意的是,现浇暗柱的位置可以在图集规定的位置附近转移。
第二,分析问题与解决问题的拆分
(1)图8 中,梁带隔墙中的外隔墙会直接传力给下一层梁,并逐渐累加至以下几层,实际受力与计算模型不符合,本工程在重新进行拆分时,将400mm 长现浇部分转移,剪力墙下面隔一定间距布置20mm 厚垫块,梁带隔墙下不布置,很好的解决了以上问题,如图9所示。


(2)图10 中楼梯间外墙采用现浇时,会导致施工周期延长,成本增加等,本工程在重新进行设计时,加大楼梯间相邻板厚,让预制楼梯梯段两侧的剪力墙全部为预制,很好的解决了以上问题,拆墙方法如图11 所示。


注:图中虚线为预制梯段板范围。
(3)预制化率不高
《装配式混凝土结构技术规程》中规定构造边缘构件可以采用预制+构造的施工方法,经相关的研究,把XX 技术应用到构造边缘构件中,通过在预制剪力墙上开缺,能提高结构预制化率,采用新的拆墙工艺设计原则后,墙拆如图9、图11~~图13 所示。

注:边缘构件上开缺,用现浇混凝土与叠合梁进行连接。