一、电气设备安装工程的组成
一般的电气设备安装工程是以接受电能,经变换、分配电能,到使用电能或从接受电能经过分配到用电设备所形成的工程系统。按其主要功能不同分为电气照明系统、动力系统、变配电系统等,这种以电能的传输、分配和使用为主的工程系统常称为强电工程。
1. 电气照明系统
将电能转换为光能的电气装置构成照明工程。它包括工矿企业生产用照明和民用建筑照明等。
照明系统可分一般照明系统、局部照明系统和混合照明系统。
电气照明系统的范围一般包括:电源引入-控制设备(配电箱)―配电线路―照明灯(器)具。
2.防雷及接地系统
(1)防雷装置
防雷装置是为了保护建筑物、构筑物以及设备免遭雷击破坏的一种保护装置,通常由三部分组成:接闪器(避雷针、避雷网)或避雷器、连接线(引下线)、接地装置。
(2)接地装置
接地装置由接地体和接地线(接地母线)组成.
电气设备接地按其作用通常有工作接地、保护接地、保护接零、重复接地和防雷接地之分。
3.动力系统
动力系统是将电能作用于电动机来拖动各种工作设备或以电能为能源用于生产的电气装置,如高、低压或交、直流电机,起重电气装置,自动化拖动装置等。
动力工程通常以一个车间或一栋厂房为一个单位工程,它的范围为:电源引入―各种控制设备―配电线路(包括二次线路)―电机或用电设备接线―接地、调试等。
4.变配电系统
变配电系统是用于变换和分配电能的电气装置总称,由变电设备和配电设备两大部分组成。
变配电系统作为一个单位工程时,它的范围一般从电力网接入电源点起,到分配电能的输出点的整个工程内容,同时也包括该系统内的照明、接地、防雷装置等。
二、常用电气材料和设备
1.材料
常配电系统是用于变换和分配电能的电气装置总称,由变电设备和配电设备两大部分组成。
变配电系统作为一个单位工程时,它的范围一般从电力网接入电源点起,到分配电能的输出点的整个工程内容,同时也包括该系统内的照明、接地、防雷装置等。
2.设备
常用电气设备包括:成套高压开关柜和低压配电屏、箱、盘,随设备带来的母线支持瓷瓶,组合型成套箱式变电站,电力变压器,高压隔离开关,高压断路器,高压熔断器,互感器,电力电容器,蓄电池等。
三、电气施工图
1 .电气施工图的组成
电气设备安装工程施工图一般包括变配电工程图、动力工程图、照明工程图、外电工程图、防雷接地工程图等。电气施工图一般由基本图和详图两部分组成。
(1)基本图
电气施工图中的基本图包括图纸目录、施工图说明、系统图、平面图、立(剖)面图、控制原理图等,设备材料表也属于基本图的范围。
①施工图说明
在电气施工图中,施工说明一般注明的是供电方式、电压等级、主要线路敷设形式及在图中未明确的各种电气设备安装高度、工程主要技术数据、施工和验收要求及有关事项等。
②主要设备材料表
设备材料表列出该项工程所需的各种主要设备、管材、导线等器材的名称、型号、规格、数量,是提供订购主要设备、材料的依据。
③电气系统图
电气系统图是依据电气工程的组成和配电方式画出的,它是概括地把整个工程的供配电线路用单线连结形式表示的线路图,它不表示电气设备、电气线路的具体空间位置关系。
④电气平面图
电气平面图一般包括变配电工程平面图、动力平面图、照明平面图、弱电(电话、广播)平面图、室外电气工程平面图,在高层建筑中有标准层平面图,干线布置图等。
⑤控制原理图
用于对用电设备的控制和保护的电器设备,一般统称为控制电器。
控制原理图是根据控制电器的工作原理,用规定的图形和文字符号画成的电路展开图。它一般不表示电器元件的具体安装空间位置。
(2)详图
①大样图
电气工程详图多为配电盘(箱、板)、控制盘盘面布置及某些安装部件的大样图。
②标准图
标准图是一种具有通用性质的详图,它表示一组设备或部件的具体图形和详细尺寸,便于制作安装。
2.电气施工图的特点
电气施工图不同于机械工程图,一般的电气平面图是在简化的土建平面图上绘制的,另外还有一些电气系统图、原理图和接线图。电气施工图的特点是:
(1) 简图是电气施工图的主要形式,即它是用图形符号、带注释的围框或简化外形表示系统或设备之间相互关系的图。
(2) 图形符号、文字符号和项目代号是构成电气施工图的基本要素。
(3) 电气装置和电气系统主要是由电气元件和电气连接线构成,所以电气元件和电气连接线是电气施工图描述的主要内容。
(4) 位置布局法和功能布局法是电气施工图中两种最基本的布局方法。
(5) 电气设备和线路在平面图中并不按比例画出它们的形状和外形尺寸,通常采用图例来表示的。
四、《电气设备安装工程预算定额》组成内容及注意的问题
1.组成内容例如:

2.使用定额应注意的问题
(1)定额未计价材料的计算
电气设备安装工程预算定额中的未计价材料,大部分都是主要材料。定额中用括弧表示的材料为未计价材料,其价值编制预算时应另行计算;定额中未列消耗量的主材,编制预算时应按施工图用量,按规定的损耗费增加损耗量。
(2)脚手架搭拆费
电气设备安装工程(10kV以下架空线路除外)脚手架搭拆费,计取标准是按
工程人工费的4%计算,其中人工工资占搭拆费的25%,即
脚手架搭拆费=工程人工费4%
其中人工费=脚手架搭拆费25%
计算基数为各分项工程人工费、超高增加费和高层建筑增加费中的人工费
(3)工程超高增加费
除章、节说明某些分项定额已考虑高空作业因素外,凡操作物安装高度超过楼地面5m以上、20m以下的电气安装工程,其工程超高增加费按超高部分人工费的33%计算,即
工程超高增加费=超高分项工程人工费33%

(4)高层建筑增加费
电气设备安装工程高层建筑增加费按表2.2的规定计算。该费用全部为人工工资。

(5)安装与生产同时进行增加费和在有害身体健康环境中施工增加费
这两种增加费均属于人工费,它们的计算式为:
安装与生产同时进行增加费=(各分项工程的人工费+子目系数增加费中的人工费)10%
在有害身体健康环境中施工增加费=(各分项工程的人工费+子目系数增加费中的人工费)10%
五、定额的套用与工程量计算
电气设备安装工程涉及的范围广,分项工程项目又多,预算定额章节也较多。在编制电气设备安装工程计价时,为了不使工程项目套错定额和工程量漏算,应对整个电气工程分系统划分分项工程,分系统计算工程量。
电气照明系统
1. 照明控制设备
电气照明工程的控制设备主要指照明配电箱、板以及箱内组装的各种控制开关、熔断器、计量仪表、盘柜配线等。照明工程控制设备安装,分成套型控制设备和单体控制设备安装。
2.配管、配线
配管、配线是指电气设备安装工程中配电线路和配电线路保护管的敷设。
(1) 配管
配管的工作内容包括:测位、划线、打眼、埋螺栓、锯管、套丝、煨弯、配管、刨沟、抹砂浆保护层、接地,刷漆。
水平方向敷设的线管应以施工平面图的管线走向、敷设部位和设备安装位置的中心点为依据,并借用平面图上所标墙、柱轴线尺寸进行线管长度的计算,若没有轴线尺寸可利用时,则应运用比例尺或直尺直接在平面图上量取线管长度,如图所示:

垂直方向敷设的线管(沿墙、柱引上或引下),其配管长度一般应根据楼层高度和箱、柜、盘、板、开关、插座等的安装高度进行计算,如图所示

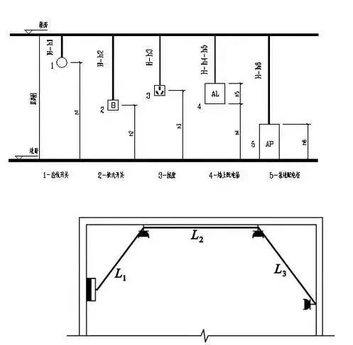
地敷设示意图
为配管埋地敷设示意图。设图中配电箱安装高度底边距地1.5米,插座距地0.3米;配电箱至插座配管为沿墙、地面暗敷设,设埋地深度0.1米;则整个配管长度为:1.5米(箱底垂直至地面)+0.1米(垂直入地深)+L1(配电箱与中间墙左插座水平距离,可用比例尺在图上量出)+0.1米(垂直出地面)+0.3米(垂直入插座)+0.4米(垂直出插座入地)+L2(中间墙两插座水平距离,可用比例尺在图上量出)+0.4米(垂直出地入插座)+0.4米(垂直出插座入地)+L3(至右墙插座水平距离,可用比例尺在图上量出)+0.4米(垂直出地面入插座)
(1)配线
配线工程定额按不同的配线形式编有管内穿线,瓷夹板配线,塑料夹板配线,鼓形绝缘子配线,针式绝缘子配线,蝶式绝缘子配线,木槽板配线,塑料槽板配线,塑料护套明敷配线,以及线槽配线等。
①管内穿线
定额分照明线路、动力线路和多芯软导线,并按导体材料、导线截面积及芯数划分项目。
照明线路管内穿线,套用定额2-1169~1173,当导线截面积大于或等于6平方毫米时,应执行动力线路相应项目。动力线路管内穿线,套用定额2-1174~1211。多芯软导线管内穿线,套用定额2-1212~1226。
工程量计量单位:100m、100m/束,工程量按施工图 图示单线(束)延长米计算。
计算管内穿线工程量可与计算配管工程量同时进行,计算式如下:
管内穿线工程量=管内穿线单线长度(m)100

②塑料护套线明敷配线
定额项目按建筑物结构、护套线芯数(二芯、三芯)和单根线芯截面积大小等因素划分,使用时分别套用定额2-1313~1336。如塑料护套线BVV-22.5在木结构上明敷设,套用定额2-1313,而在砖混结构上明敷时,则套用2-1319。
工程量计量单位:100m,工程量按施工图图示分二芯、三芯线路延长米计算,包括水平及绕梁、柱和上下走向的垂直长度加规定的预留线长度。
(2)接线箱、盒安装
在配管配线工程中,无论是明配还是暗配均存在线路接线盒(分线盒)、接线箱、开关盒、灯头盒以及插座盒的安装。
接线箱定额按明装、暗装及接线箱的不同规格(半周长)划分项目,使用时套用2-1373~1376;接线盒按接线盒、开关盒、普通接线盒、防爆接线盒、钢索上接线盒及明装、暗装划分子目,使用时套用2-1377~1381。如,暗装开关盒套用2-1378,而暗装灯头盒则套用2-1377。
工程量计量单位:10个;工程量按施工图图示数量计算,或按施工工艺及规范要求计算。
线路接线盒(分线盒)产生在管线的分支处或管线的转弯处。暗装的开关、插座应有开关接线盒和插座接线盒,暗配管线到灯位处应有灯头接线盒。钢管配钢质接线盒,塑料管配塑料接线盒,如图2.5所示。
